-
Home type
Single family
-
Year built
1999
-
Lot size
7,840 sq ft
-
Price per sq ft
$340
-
HOA fees
$142 / Mo
-
Last updated
Today
-
Views
12
-
Saves
1
Questions? Call us: (925) 397-0350
Overview
Best deal for a 55+ community home in Brentwood! Freshly painted on the interior and new luxury vinyl plank flooring installed. Large, corner lot is a short walk to the pool, spa and clubhouse. Enjoy all the healthy lifestyle activities in Summerset including tennis, pickleball and bocce. Close to medical facilities, shops and golf. The Brentwood Golf Course and restaurant are located just before the entrance to the community. Livermore and Walnut Creek are a 35 minute drive away. This is a golden opportunity!
Interior
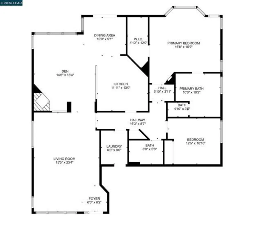
Bedrooms
- Bedrooms: 2
Bathrooms
- Total bathrooms: 2
- Full baths: 2
Cooling
- Central Air
Fireplace
- 1, Family Room
Levels
- One
Size
- 1,734 sq ft
Exterior
Private Pool
- No
Patio & Porch
- Porch, Patio
Roof
- Tile
Garage
- Attached
- Garage Spaces: 2
- Garage
Carport
- None
Year Built
- 1999
Lot Size
- 0.18 acres
- 7,840 sq ft
Waterfront
- No
Sewer
- Public Sewer
Community Info
HOA Information
- Association Fee: $142
- Association Fee Frequency: Monthly
- Association Fee Includes: Gym, Tennis Court(s), Pool, Other, Clubhouse, Spa/Hot Tub, Security
Senior Community
- No
Location
- City: Brentwood (cc)
- County/Parrish: Contra Costa
Listing courtesy of: Lily Wescott, Coldwell Banker
MLS ID: 41126539
Based on information from California Regional Multiple Listing Service, Inc. as of Mar 10, 2026 and/or other sources. All data, including all measurements and calculations of area, is obtained from various sources and has not been, and will not be, verified by broker or MLS. All information should be independently reviewed and verified for accuracy. Properties may or may not be listed by the office/agent presenting the information.
Summerset Real Estate Agent
Want to learn more about Summerset?
Here is the community real estate expert who can answer your questions, take you on a tour, and help you find the perfect home.
Get started today with your personalized 55+ search experience!
Want to learn more about Summerset?
Get in touch with a community real estate expert who can answer your questions, take you on a tour, and help you find the perfect home.
Get started today with your personalized 55+ search experience!
Homes Sold:
55+ Homes Sold:
Sold for this Community:
Avg. Response Time:
Community Key Facts
Age Restrictions
- 55+
Amenities & Lifestyle
- See Summerset amenities
- See Summerset clubs, activities, and classes
Homes in Community
- Total Homes: 2,013
- Home Types: Single-Family, Attached
Gated
- Yes
Construction
- Construction Dates: 1994 - 2005
- Builder: Del Webb, Various, Lennar Homes
Similar homes in this community
Popular cities in California
The following amenities are available to Summerset - Brentwood, CA residents:
- Clubhouse/Amenity Center
- Golf Course
- Fitness Center
- Outdoor Pool
- Aerobics & Dance Studio
- Ballroom
- Library
- Billiards
- Tennis Courts
- Bocce Ball Courts
- Lakes - Scenic Lakes & Ponds
- Parks & Natural Space
There are plenty of activities available in Summerset. Here is a sample of some of the clubs, activities and classes offered here.
- Aerobics
- Bible Study
- Billiards
- Bingo
- Bocce Ball
- Book Club
- Bowling
- Bridge
- Bunco
- Canasta
- Ceramics
- Chi Ball
- Computer Club
- Crafts Club
- Cribbage
- Dancing Club
- Diabetic Support Group
- Dominoes
- Drawing Club
- Duplicate Bridge
- Fine Arts Club
- Happy Hours
- Hearts
- Kare Bears Club
- Mahjong
- Music Club
- Nine Tee's Club
- Pilates
- Pinochle
- Planned Trips
- Poker
- Pool Club
- Potlucks
- Quilt Club
- R.V. Club
- Rough Riders
- Rummy Cube
- Scrapbooking Club
- Stretch N' Tone
- Summerset Singers
- Swimming
- Tai Chi
- Tango Lessons
- Tap Class
- Tennis
- Veterans Club
- Walking Club
- Watercolor Classes
- Yoga
- Zumba




