- 3 beds
- 3 baths
- 1,481 sq ft
2823 Cottage Ln, Paso Robles, CA, 93446
Community: Traditions at River Oaks
-
Home type
Single family
-
Year built
2002
-
Lot size
3,163 sq ft
-
Price per sq ft
$405
-
HOA fees
$330 / Mo
-
Last updated
3 days ago
Questions? Call us: (805) 600-8212
Overview
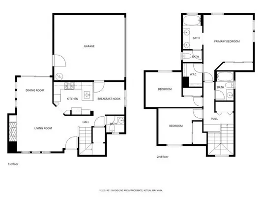
Don't miss this well-priced home in the desirable Cottages at River Oaks: this well appointed 3 bed, 2 & 1/2 bath residence has a sophisticated and upscale interior and offers the perfect Paso Robles Wine Country retreat, either as your primary residence or your second home. The open floor plan is highlighted by a stone trimmed chef's kitchen with glass tiled backsplash, coffee bar, stainless steel appliances, including a Bosch dishwasher (Bosch = quiet) with a sunny breakfast nook, an open living and dining area that easily flows to the private covered patio and backyard. A spacious primary suit is accentuated with 2 closets, one of which is a walk-in closet. Two additional bedrooms, one full bathroom and a laundry closet complete the upper level. Additional features include luxury vinyl flooring, custom window coverings, lots of cabinet space, a powder room on the lower level, and an attached 2 car garage with extra storage space. The desirable community is entered though a secure gate and offers a clubhouse, sparking pool and spa, AND the monthly association fees include high speed internet and a cable box - utilities for which you would otherwise spend approximately $150/month. Making life even easier, you are only a few blocks away from the River Oaks Golf Course featuring the Spirit of Paso Robles Bar and Grill - in the summertime you will most certainly enjoy their summer concert series, and the River Oaks Hot Springs Spa with artesian mineral springs soaking tubs. Centrally located to all of Paso's wonderful offerings such as the vibrant Event Center with year round activities, including the renowned Mid-State Fair; five star Allegretto Resort with a day spa and fabulous restaurant and bar; wineries; and the historic downtown Paso Robles' myriad of posh boutiques, wine bars, cafes and seasonal events. This is a terrific value and opportunity to purchase a turn-key home in a gated community in the Paso Robles Wine Country for under $600,000 and to achieve the dreamy Paso lifestyle, a stylish blend of sophistication and laid-back elegance. This is home so don't let it slip away. Just say YES and Welcome Home!
Interior
Appliances
- Dishwasher, Water Heater
Bedrooms
- Bedrooms: 3
Bathrooms
- Total bathrooms: 3
- Half baths: 1
- Full baths: 2
Laundry
- In Closet
- Inside
Cooling
- Central Air
Heating
- Fireplace(s), Forced Air
Fireplace
- None
Features
- Ceiling Fan(s), Open Floorplan, Tile Counters, All Bedrooms on Upper Level, Entrance Foyer, Kitchen, Primary Suite
Levels
- Two
Size
- 1,481 sq ft
Exterior
Private Pool
- No
Patio & Porch
- Covered, Patio
Garage
- Attached
- Garage Spaces: 2
Carport
- None
Year Built
- 2002
Lot Size
- 0.07 acres
- 3,163 sq ft
Waterfront
- No
Water Source
- Public
Sewer
- Public Sewer
Community Info
HOA Fee
- $330
- Frequency: Monthly
- Includes: Pool, Spa/Hot Tub, Clubhouse, Front Yard Maintenance
Senior Community
- No
Listing courtesy of: Lorelei Komm, GUIDE Real Estate, 805-286-0299
MLS ID: NS25267848
Based on information from California Regional Multiple Listing Service, Inc. as of Dec 15, 2025 and/or other sources. All data, including all measurements and calculations of area, is obtained from various sources and has not been, and will not be, verified by broker or MLS. All information should be independently reviewed and verified for accuracy. Properties may or may not be listed by the office/agent presenting the information.
Traditions at River Oaks Real Estate Agent
Want to learn more about Traditions at River Oaks?
Here is the community real estate expert who can answer your questions, take you on a tour, and help you find the perfect home.
Get started today with your personalized 55+ search experience!
Want to learn more about Traditions at River Oaks?
Get in touch with a community real estate expert who can answer your questions, take you on a tour, and help you find the perfect home.
Get started today with your personalized 55+ search experience!
Homes Sold:
55+ Homes Sold:
Sold for this Community:
Avg. Response Time:
Community Key Facts
Age Restrictions
- 55+
Amenities & Lifestyle
- See Traditions at River Oaks amenities
- See Traditions at River Oaks clubs, activities, and classes
Homes in Community
- Total Homes: 208
- Home Types: Single-Family
Gated
- Yes
Construction
- Construction Dates: 1999 - 2016
- Builder: Estrella Associates
Similar homes in this community
Popular cities in California
The following amenities are available to Traditions at River Oaks - Paso Robles, CA residents:
- Clubhouse/Amenity Center
- Fitness Center
- Outdoor Pool
- Aerobics & Dance Studio
- Library
- Walking & Biking Trails
- Demonstration Kitchen
- Outdoor Patio
- Multipurpose Room
- BBQ
There are plenty of activities available in Traditions at River Oaks. Here is a sample of some of the clubs, activities and classes offered here.
- Aerobics
- BBQs
- Swimming




