- 2 beds
- 2 baths
- 1,440 sq ft
287 Sunrise Ter 124, Arroyo Grande, CA, 93420
Community: Sunrise Terrace
-
Year built
1976
-
Price per sq ft
$337
-
HOA fees
$290 / Mo
-
Last updated
2 days ago
-
Views
18
Questions? Call us: (805) 519-8428
Overview
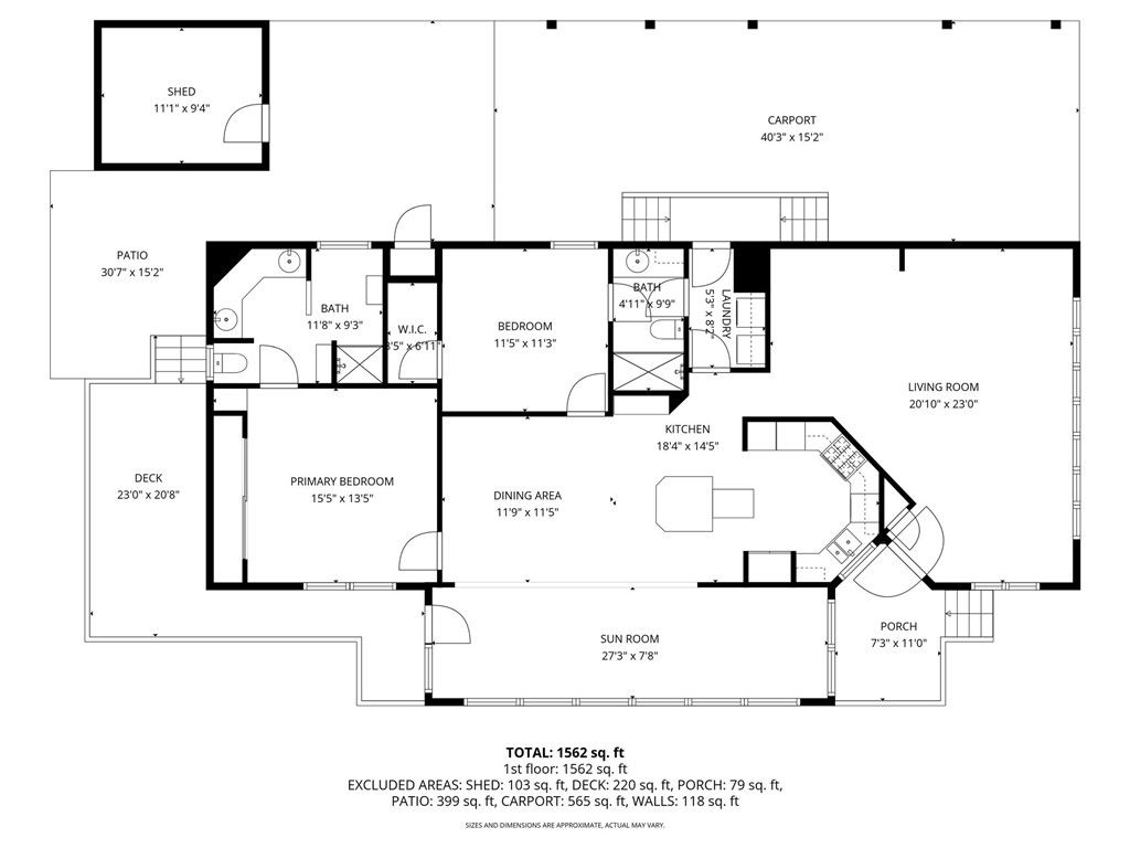
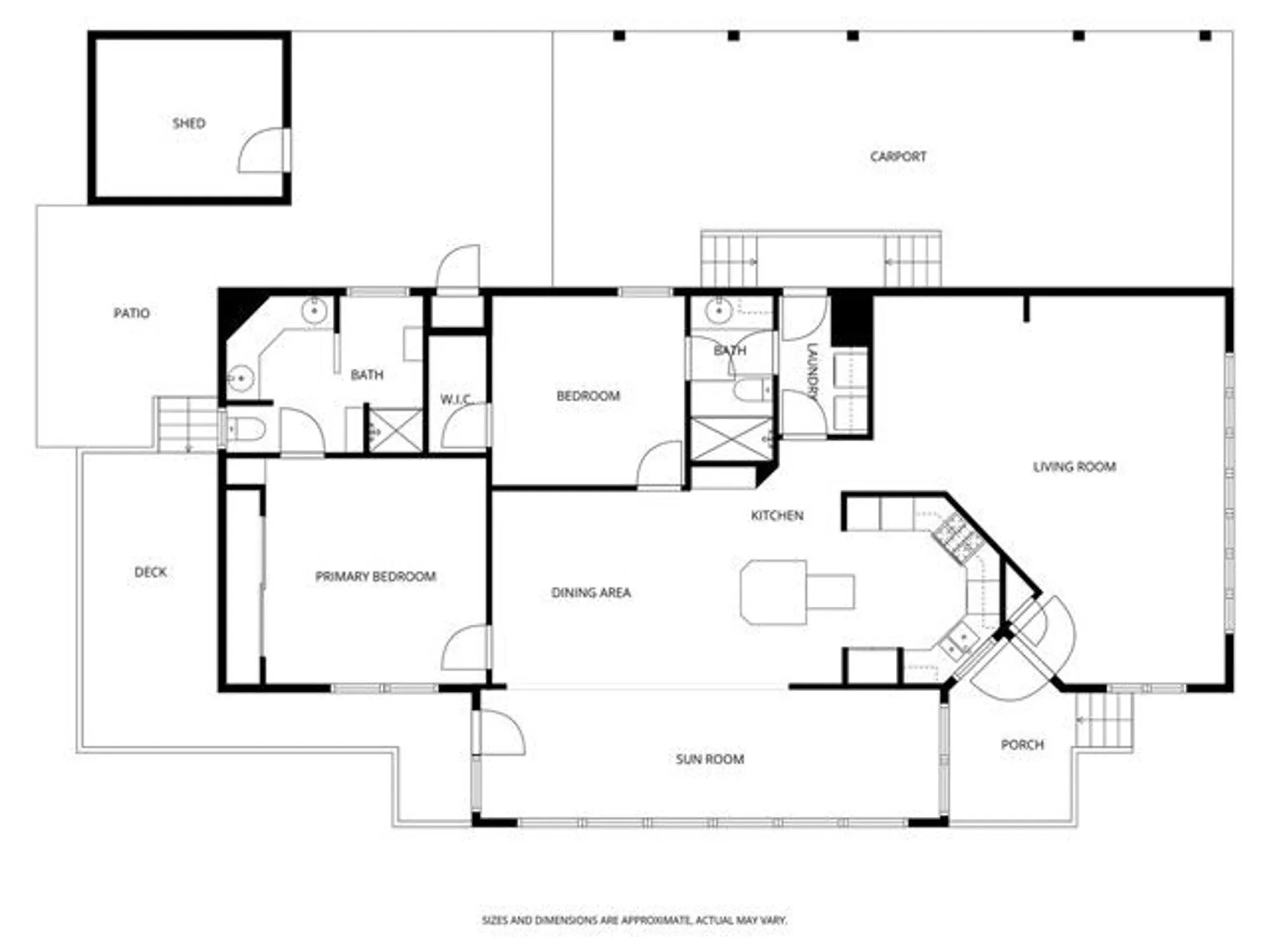
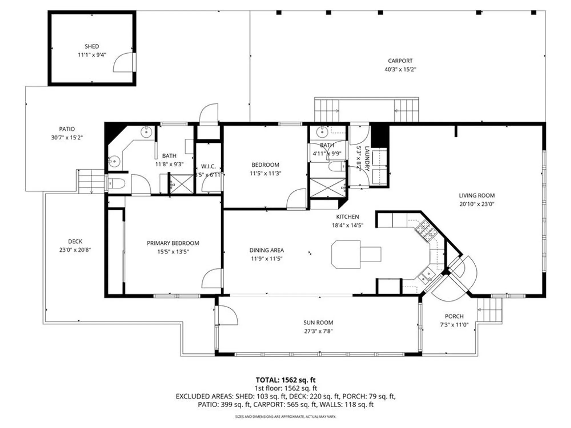
Roomy 2 bedroom, 2 bath home with a living room, dining area, family room, enclosed sunroom and a lovely setting with a forest view in the back yard. There is a spacious primary bedroom and ensuite bath and a sizeable guest bedroom with an attached bath. The family room, kitchen and enclosed sunroom are open to each other as a great room concept. There is a sizable deck off the rear of the home that takes full advantage of the beautiful forest views off the back. The carport can accommodate two cars and there is a very cute, clean shed with a concrete floor. This home has so much potential with some updating or remodeling. The exterior has been very well cared for and there is a very nice yard/garden space as well. Sunrise Terrace Mobile Home Park is a senior park and there is not land lease. There is an HOA fee of $290 a month. This park has many amenities that include, a pool, hot tub, spa, tennis and pickle ball courts, BBQ area, fire pit, bocce ball court, billiards, dog park, community room and a small golf course. Information is not verified or guaranteed.
Interior
Appliances
- Built-In Range, Dishwasher, Electric Oven, Disposal, Gas Range, Gas Water Heater, Microwave, Refrigerator
Bedrooms
- Bedrooms: 2
Bathrooms
- Total bathrooms: 2
- Full baths: 2
Laundry
- Gas Dryer Hookup
- Inside
Cooling
- None
Heating
- Forced Air
Fireplace
- None
Features
- Living Room Deck Attached, Open Floorplan, Storage, Bonus Room, Family Room, Kitchen, Laundry Facility, Living Room, Primary Bathroom, Primary Bedroom, Sunroom
Levels
- Two
Size
- 1,440 sq ft
Exterior
Private Pool
- No
Patio & Porch
- Covered, Deck, Front Porch
Roof
- Flat
Garage
- None
Carport
- Carport Spaces:
- Carport
- Attached Carport
- Driveway
- Concrete
- Guest
- Off Site
- On Site
Year Built
- 1976
Waterfront
- No
Water Source
- Public
Sewer
- Public Sewer
Community Info
HOA Fee
- $290
- Frequency: Monthly
- Includes: Pool, Spa/Hot Tub, Barbecue, Picnic Area, Dog Park, Tennis Court(s), Clubhouse
Senior Community
- Yes
Listing courtesy of: Monica King, BHGRE HAVEN PROPERTIES, 805-550-0603
MLS ID: SC25258421
Based on information from California Regional Multiple Listing Service, Inc. as of Nov 29, 2025 and/or other sources. All data, including all measurements and calculations of area, is obtained from various sources and has not been, and will not be, verified by broker or MLS. All information should be independently reviewed and verified for accuracy. Properties may or may not be listed by the office/agent presenting the information.
Sunrise Terrace Real Estate Agent
Want to learn more about Sunrise Terrace?
Here is the community real estate expert who can answer your questions, take you on a tour, and help you find the perfect home.
Get started today with your personalized 55+ search experience!
Want to learn more about Sunrise Terrace?
Get in touch with a community real estate expert who can answer your questions, take you on a tour, and help you find the perfect home.
Get started today with your personalized 55+ search experience!
Homes Sold:
55+ Homes Sold:
Sold for this Community:
Avg. Response Time:
Community Key Facts
Age Restrictions
- 55+
Amenities & Lifestyle
- See Sunrise Terrace amenities
- See Sunrise Terrace clubs, activities, and classes
Homes in Community
- Total Homes: 300
- Home Types: Single-Family
Gated
- Yes
Construction
- Construction Dates: 1974 - 2002
- Builder: Multiple Builders
Similar homes in this community
Popular cities in California
The following amenities are available to Sunrise Terrace - Arroyo Grande, CA residents:
- Clubhouse/Amenity Center
- Golf Course
- Fitness Center
- Indoor Pool
- Outdoor Pool
- Card Room
- Ballroom
- Library
- Billiards
- Walking & Biking Trails
- Tennis Courts
- Bocce Ball Courts
- Shuffleboard Courts
- Horseshoe Pits
- R.V./Boat Parking
- Demonstration Kitchen
- Outdoor Patio
- Pet Park
- Golf Practice Facilities/Putting Green
- Picnic Area
- BBQ
There are plenty of activities available in Sunrise Terrace. Here is a sample of some of the clubs, activities and classes offered here.
- Billiards
- Bocce
- Golf
- Horseshoes
- Luncheons
- Monthly Breakfasts
- Outings
- Shuffleboard
- Tennis
- Women's Club



