- 3 beds
- 2 baths
- 1,732 sq ft
3112 Club Dr 124, Port Charlotte, FL, 33953
Community: Riverwood
-
Home type
Condominium
-
Year built
2006
-
Lot size
2,385 sq ft
-
Price per sq ft
$150
-
Taxes
$4340 / Yr
-
HOA fees
$764 / Mo
-
Last updated
3 days ago
-
Views
2
Questions? Call us: (941) 336-6775
Overview
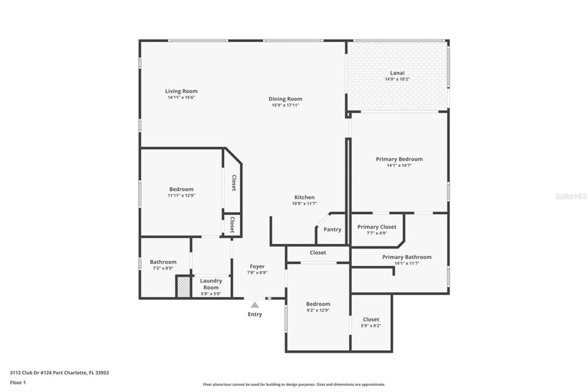
Located in the desirable Riverwood community, this beautiful 1st-floor condo offers an open, split floor plan with 3 bedrooms, 2 baths, a single-car garage, and a layout designed for both comfort and functionality. Large ceramic tile laid on a diagonal, luxury vinyl, and carpet flow throughout the home, creating a welcoming atmosphere. A versatile third bedroom features a Murphy bed, walk-in closet, and built-in shelving, making it ideal for hosting guests or creating a home office. The second guest bedroom is located near the full guest bath, offering a comfortable and private retreat for visitors. The laundry area is conveniently tucked behind louvered doors, maximizing space. Open to the spacious family room, the kitchen is equipped with granite countertops, solid wood cabinets, a breakfast bar, and a walk-in pantry. Sliding doors from the adjacent breakfast nook lead to the screened-in porch, which includes sliding plexiglass panels for added versatility. Enjoy year-round use of this space, whether soaking in fresh air or staying protected from the elements, all while taking in views of the lush landscaping. Privately situated, the primary suite also offers porch access and features an ensuite with dual sinks, a tiled walk-in shower, and a garden tub for unwinding. NEW Roof 2025!! As part of the vibrant Riverwood community, residents enjoy amenities such as a par 72 championship golf course, a state-of-the-art fitness center, a resort-style pool, pickleball courts, and Har-Tru tennis courts. Beyond your doorstep, relish easy access to world-class fishing, boating, dining, shopping, and the sandy beaches of the Gulf of Mexico. Conveniently situated between Sarasota and Ft. Myers on Florida's West Coast. Call us now for your exclusive private showing. Embrace the amazing laid-back Florida lifestyle you've always dreamed of!
Interior
Appliances
- Dishwasher, Disposal, Dryer, Electric Water Heater, Microwave, Range, Refrigerator, Washer
Bedrooms
- Bedrooms: 3
Bathrooms
- Total bathrooms: 2
- Full baths: 2
Laundry
- Inside
Cooling
- Central Air
Heating
- Electric
Features
- Ceiling Fan(s), Open Floorplan, Main Level Primary, Solid-Wood Cabinets, Split Bedrooms, Stone Counters, Walk-In Closet(s), Window Treatments
Levels
- One
Size
- 1,732 sq ft
Exterior
Private Pool
- No
Patio & Porch
- Rear Porch, Screened
Roof
- Tile
Garage
- Attached
- Garage Spaces: 1
- Garage Door Opener
- Garage Faces Side
- Off Street
Carport
- None
Year Built
- 2006
Lot Size
- 0.05 acres
- 2,385 sq ft
Waterfront
- No
Water Source
- Public
Sewer
- Public Sewer
Community Info
HOA Information
- Association Fee: $764
- Association Fee Frequency: Monthly
- Association Fee Includes: Basketball Court, Clubhouse, Fence Restrictions, Fitness Center, Gated, Golf Course, Maintenance, Park, Pickleball, Playground, Recreation Facilities, Shuffleboard Court, Spa/Hot Tub, Storage, Tennis Court(s), Pool(s), Escrow Reserves Fund, Fidelity Bond, Insurance, Maintenance Structure, Maintenance Grounds, Maintenance, Recreation Facilities, Trash
Taxes
- Annual amount: $4,340.38
- Tax year: 2024
Senior Community
- No
Features
- Association Recreation - Owned, Clubhouse, Community Mailbox, Deed Restrictions, Dog Park, Fitness Center, Gated, Guarded Entrance, Golf Carts Permitted, Golf, Irrigation-Reclaimed Water, Playground, Pool, Restaurant, Sidewalks, Tennis Court(s), Street Lights
Location
- City: Port Charlotte
- County/Parrish: Charlotte
- Township: 40S
Listing courtesy of: Brian Burget, PEACE HARBOR REAL ESTATE INC., 941-380-1909
MLS ID: C7517568
Listings courtesy of Stellar MLS as distributed by MLS GRID. Based on information submitted to the MLS GRID as of Feb 26, 2026, 02:35am PST. All data is obtained from various sources and may not have been verified by broker or MLS GRID. Supplied Open House Information is subject to change without notice. All information should be independently reviewed and verified for accuracy. Properties may or may not be listed by the office/agent presenting the information. Properties displayed may be listed or sold by various participants in the MLS.
Riverwood Real Estate Agent
Want to learn more about Riverwood?
Here is the community real estate expert who can answer your questions, take you on a tour, and help you find the perfect home.
Get started today with your personalized 55+ search experience!
Want to learn more about Riverwood?
Get in touch with a community real estate expert who can answer your questions, take you on a tour, and help you find the perfect home.
Get started today with your personalized 55+ search experience!
Homes Sold:
55+ Homes Sold:
Sold for this Community:
Avg. Response Time:
Community Key Facts
Age Restrictions
- None
Amenities & Lifestyle
- See Riverwood amenities
- See Riverwood clubs, activities, and classes
Homes in Community
- Total Homes: 1,323
- Home Types: Single-Family, Attached, Condos
Gated
- Yes
Construction
- Construction Dates: 1992 - 2014
- Builder: Centex
Similar homes in this community
Popular cities in Florida
The following amenities are available to Riverwood - Port Charlotte, FL residents:
- Clubhouse/Amenity Center
- Golf Course
- Restaurant
- Fitness Center
- Outdoor Pool
- Card Room
- Ballroom
- Library
- Billiards
- Tennis Courts
- Bocce Ball Courts
- Shuffleboard Courts
- Lakes - Scenic Lakes & Ponds
- Demonstration Kitchen
- Outdoor Patio
- Pet Park
- Picnic Area
- On-site Retail
- Multipurpose Room
- Croquet Court/Lawn
- Locker Rooms
- Spa
- Beach
- Lounge
- BBQ
There are plenty of activities available in Riverwood. Here is a sample of some of the clubs, activities and classes offered here.
- Ballroom Dance
- Billiards
- Bocce Ball
- Book Club
- Breakfast Bike Club
- Croquet
- Movie Night
- Riverwood Chorus
- Rosary Club
- Scrapbooking
- Tai Chi
- Tap Class
- Tennis
- Shuffleboard
- Water Exercise
- Yoga
- Zumba




