-
Home type
Condominium
-
Year built
1980
-
Price per sq ft
$247
-
HOA fees
$845 / Mo
-
Last updated
3 days ago
-
Views
4
Questions? Call us: (828) 532-2025
Overview
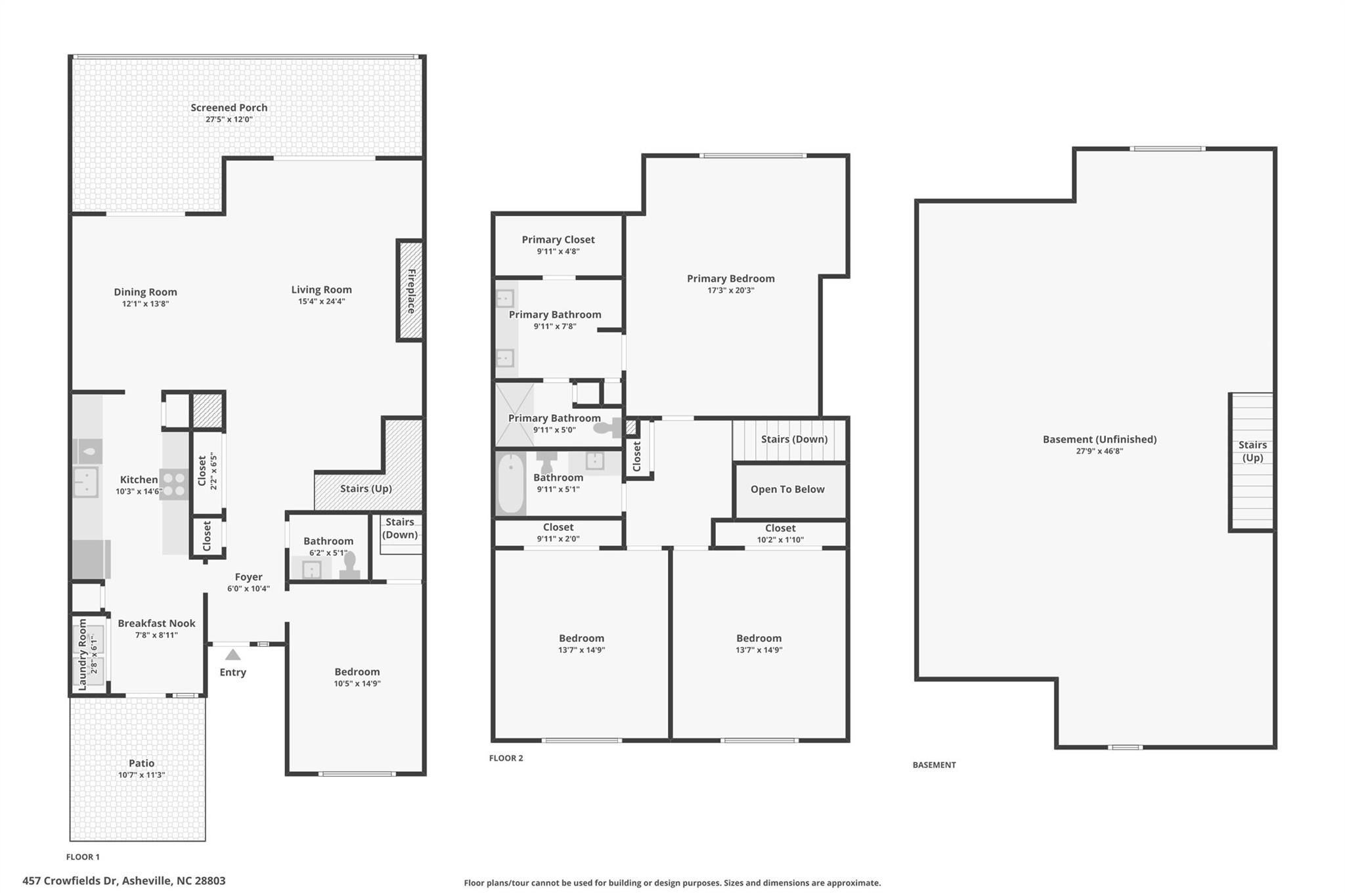
Updated Crowfields condo in move-in ready condition. Recently updated with new hardwood flooring throughout, this home offers a warm and inviting layout ideal for both everyday living and entertaining. Enjoy the beautiful kitchen for single or multiple guests. The spacious primary bedroom offers comfort and privacy, along with a well-appointed bath. Two additional bedrooms and a full bath provide flexibility for guests, office space, or hobbies. The living and dining rooms flow seamlessly, creating an open and functional living area. A large coat closet on the main level provides excellent storage, while the unfinished basement offers abundant additional storage space. Step outside and enjoy privacy on the back porch—perfect for morning coffee or relaxing evenings. This recently updated home combines comfort, style, and convenience in one of Asheville’s desirable communities.
Interior
Appliances
- Dishwasher, Disposal, Electric Oven, Electric Range, Electric Water Heater, Refrigerator
Bedrooms
- Bedrooms: 3
Bathrooms
- Total bathrooms: 3
- Half baths: 1
- Full baths: 2
Laundry
- Main Level
Cooling
- Ceiling Fan(s), Heat Pump
Heating
- Central, Heat Pump
Fireplace
- 1, Living Room
Features
- Cable Prewire
Levels
- Two
Size
- 2,308 sq ft
Exterior
Private Pool
- No
Roof
- Composition
Garage
- None
Carport
- None
Year Built
- 1980
Waterfront
- No
Water Source
- City
Sewer
- Public Sewer
Community Info
HOA Information
- Association Fee: $845
- Association Fee Frequency: Monthly
Senior Community
- Yes
Listing courtesy of: Glenn Haden, Howard Hanna Beverly-Hanks Asheville-Downtown Listing Agent Contact Information: 828-329-3290
MLS ID: 4357281
Listings courtesy of Canopy MLS as distributed by MLS GRID. Based on information submitted to the MLS GRID as of May 03, 2026, 09:07am PDT. All data is obtained from various sources and may not have been verified by broker or MLS GRID. Supplied Open House Information is subject to change without notice. All information should be independently reviewed and verified for accuracy. Properties may or may not be listed by the office/agent presenting the information. Properties displayed may be listed or sold by various participants in the MLS. Some IDX listings have been excluded from this website.The Digital Millennium Copyright Act of 1998, 17 U.S.C. § 512 (the "DMCA") provides recourse for copyright owners who believe that material appearing on the Internet infringes their rights under U.S. copyright law. If you believe in good faith that any content or material made available in connection with our website or services infringes your copyright, you (or your agent) may send us a notice requesting that the content or material be removed, or access to it blocked. Notices must be sent in writing by email to [email protected] DMCA requires that your notice of alleged copyright infringement include the following information:(1) description of the copyrighted work that is the subject of claimed infringement;(2) description of the alleged infringing content and information sufficient to permit us to locate the content;(3) contact information for you, including your address, telephone number and email address;(4) a statement by you that you have a good faith belief that the content in the manner complained of is not authorized by the copyright owner, or its agent, or by the operation of any law;(5) a statement by you, signed under penalty of perjury, that the information in the notification is accurate and that you have the authority to enforce the copyrights that are claimed to be infringed; and(6) a physical or electronic signature of the copyright owner or a person authorized to act on the copyright owner’s behalf. Failure to include all of the above information may result in the delay of the processing of your complaint.
Crowfields Real Estate Agent
Want to learn more about Crowfields?
Here is the community real estate expert who can answer your questions, take you on a tour, and help you find the perfect home.
Get started today with your personalized 55+ search experience!
Want to learn more about Crowfields?
Get in touch with a community real estate expert who can answer your questions, take you on a tour, and help you find the perfect home.
Get started today with your personalized 55+ search experience!
Homes Sold:
55+ Homes Sold:
Sold for this Community:
Avg. Response Time:
Community Key Facts
Age Restrictions
- 55+
Amenities & Lifestyle
- See Crowfields amenities
- See Crowfields clubs, activities, and classes
Homes in Community
- Total Homes: 192
- Home Types: Attached
Gated
- Yes
Construction
- Construction Dates: 1970 - 1999
- Builder: Pulliam Properties
Similar homes in this community
Popular cities in North Carolina
The following amenities are available to Crowfields - Asheville, NC residents:
- Clubhouse/Amenity Center
- Outdoor Pool
- Arts & Crafts Studio
- Library
- Lakes - Scenic Lakes & Ponds
- Lakes - Fishing Lakes
- Gardening Plots
- Parks & Natural Space
There are plenty of activities available in Crowfields. Here is a sample of some of the clubs, activities and classes offered here.
- Arts & Crafts
- Book Club
- Catered Dinners
- Crafts & Conversation
- Day Trips
- First Friday
- Fly-Casting
- Holiday Events
- Men's Coffee
- Movie Nights
- Mah Jongg
- Private Parties
- Social Activities
- Special Interest Groups
- Storytelling
- Tai Chi
- Water Aerobics




