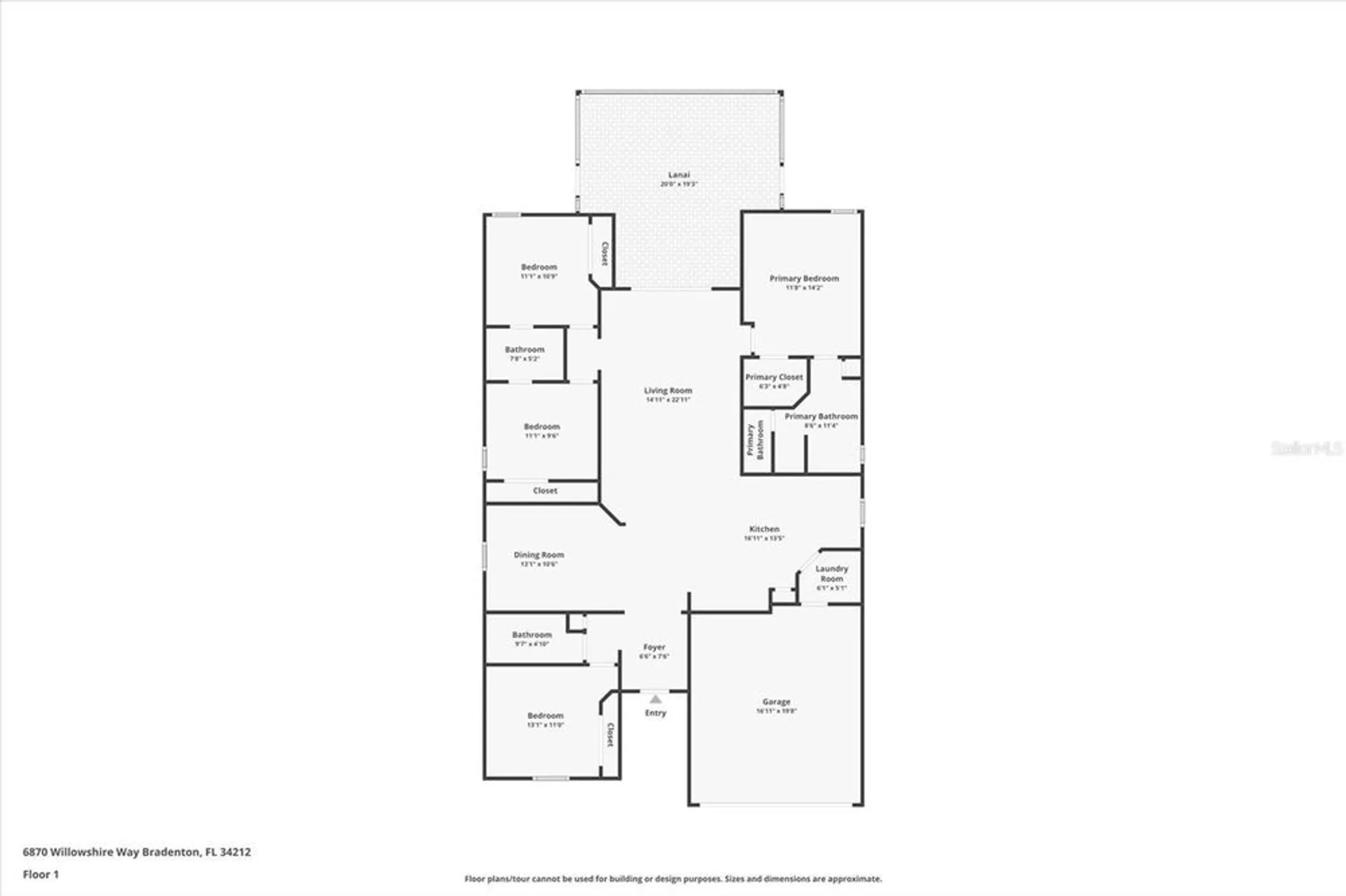
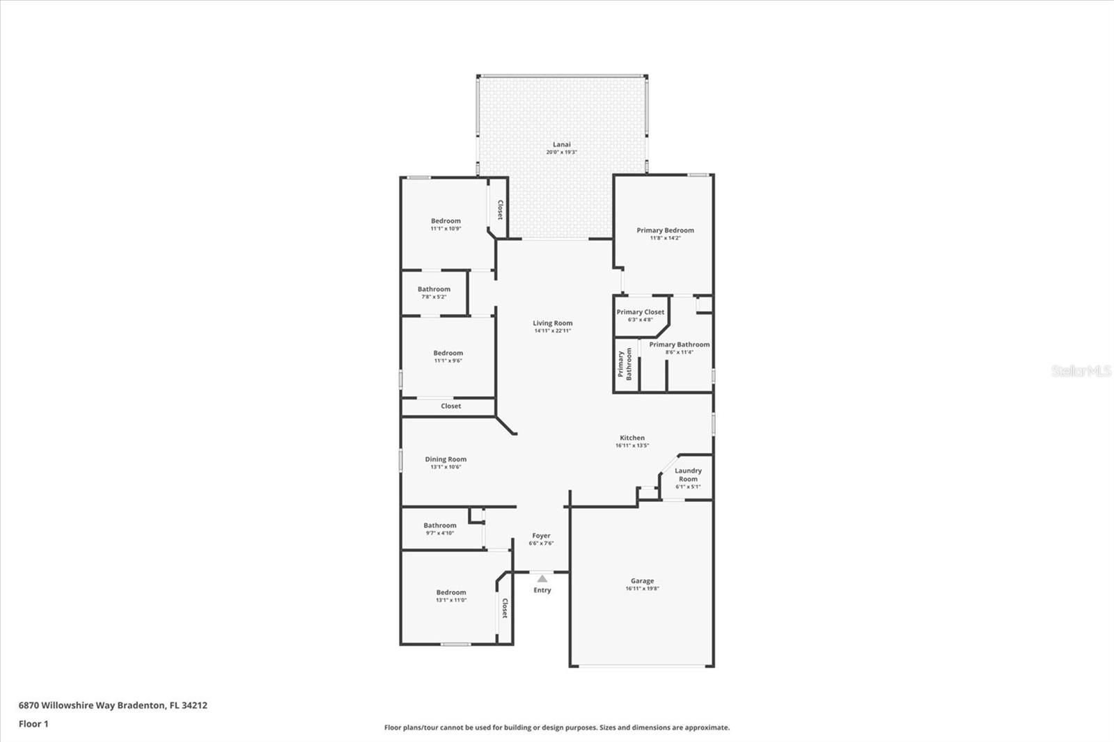
- 4 beds
- 3 baths
- 1,908 sq ft
6870 Willowshire Way, Bradenton, FL, 34212
Community: River Strand
-
Home type
Single family
-
Year built
2015
-
Lot size
7,218 sq ft
-
Price per sq ft
$236
-
Taxes
$4567 / Yr
-
HOA fees
$492 / Mo
-
Last updated
Today
-
Views
3
Questions? Call us: (941) 900-3044
Overview
REDUCED PRICE! Best Value in River Strand Golf & Country Club – Don’t Miss This Rare Opportunity! Lowest Priced 4-bedroom Home in River Strand Golf and Country Club—an unbeatable opportunity to own in one of the most desirable gated golf communities in the area. Brand New HVAC System (2025) and Brand New Water Heater (2024). This beautiful Alexandria floor plan offers 4 spacious bedrooms, 3 bathrooms, a flex room, a 2-car garage, and nearly 2,000 sq. ft. of well-appointed living space with a tile roof for long-lasting durability and curb appeal. Just steps from the Sanctuary Resort Pool, Hot Tub, Fitness Center, and Pickleball Courts, this home puts resort-style living right at your doorstep. Whether you're looking for a primary residence, a second home, or a smart investment, this is a value you won’t find again. This gorgeous home Standout Features include; Chef’s Kitchen: Granite countertops, stainless-steel appliances & solid wood cabinets; Open-Concept Living: Ideal layout with 18” tile floors and crown molding throughout the main areas; Extended, Screened Lanai: Enjoy peaceful, private views perfect for relaxing or entertaining; Primary Suite Retreat: Double vanity, soaking tub, walk-in shower, and a walk-in closet; Added Value: Water softener, hurricane shutters, upgraded lighting, and more! ** Social, Non - Golf Deeded Home. Social member fees are included in monthly HOA fees. Social members pay $80.00 (golf cart included) during season and $45.00 during the off season. Social members can book up to 4 days in advance during season and 1 day in advance during season. Social Members must call to make reservations. Why This Home Stands Out? It’s the only 4-bedroom home at this price in the entire community, features a tile roof, and you will live a Maintenance-free lifestyle! Unmatched Community Amenities: • 24-hour gated security • Championship 27-hole golf course, driving range, and PGA instruction • Resort-style pools, spas, resistance pool, and tiki bar • Fitness center, aerobics studio, 9 tennis courts, 8 pickleball courts, and more • Clubhouse with dining, events, and social activities Prime Location! Quick access to I-75, Sarasota, Tampa, St. Pete & top beaches and just minutes from shopping, dining, and Lakewood Ranch’s Main Street This home offers the best combination of size, upgrades, and price in River Strand. It won’t last long—schedule your showing today before it's gone!
Interior
Appliances
- Dishwasher, Dryer, Range, Refrigerator, Washer
Bedrooms
- Bedrooms: 4
Bathrooms
- Total bathrooms: 3
- Full baths: 3
Laundry
- Laundry Room
Cooling
- Central Air
Heating
- Natural Gas
Fireplace
- None
Features
- Ceiling Fan(s), Crown Molding, Open Floorplan, Main Level Primary, Walk-In Closet(s)
Levels
- One
Size
- 1,908 sq ft
Exterior
Private Pool
- No
Roof
- Tile
Garage
- Attached
- Garage Spaces: 2
Carport
- None
Year Built
- 2015
Lot Size
- 0.17 acres
- 7,218 sq ft
Waterfront
- No
Water Source
- Public
Sewer
- Public Sewer
Community Info
HOA Fee
- $492
- Frequency: Monthly
Taxes
- Annual amount: $4,566.52
- Tax year: 2023
Senior Community
- No
Location
- City: Bradenton
- County/Parrish: Manatee
- Township: 34S
Listing courtesy of: Sophia Kramedas-Ghanayem, KW SUNCOAST, 941-792-2000
MLS ID: A4631093
Listings courtesy of Stellar MLS as distributed by MLS GRID. Based on information submitted to the MLS GRID as of Oct 26, 2025, 07:42am PDT. All data is obtained from various sources and may not have been verified by broker or MLS GRID. Supplied Open House Information is subject to change without notice. All information should be independently reviewed and verified for accuracy. Properties may or may not be listed by the office/agent presenting the information. Properties displayed may be listed or sold by various participants in the MLS.
River Strand Real Estate Agent
Want to learn more about River Strand?
Here is the community real estate expert who can answer your questions, take you on a tour, and help you find the perfect home.
Get started today with your personalized 55+ search experience!
Want to learn more about River Strand?
Get in touch with a community real estate expert who can answer your questions, take you on a tour, and help you find the perfect home.
Get started today with your personalized 55+ search experience!
Homes Sold:
55+ Homes Sold:
Sold for this Community:
Avg. Response Time:
Community Key Facts
Age Restrictions
- None
Amenities & Lifestyle
- See River Strand amenities
- See River Strand clubs, activities, and classes
Homes in Community
- Total Homes: 1,260
- Home Types: Single-Family, Attached, Condos
Gated
- Yes
Construction
- Construction Dates: 2006 - 2018
- Builder: Multiple Builders, Lennar
Similar homes in this community
Popular cities in Florida
The following amenities are available to River Strand - Bradenton, FL residents:
- Clubhouse/Amenity Center
- Golf Course
- Restaurant
- Fitness Center
- Outdoor Pool
- Tennis Courts
- Pickleball Courts
- Basketball Court
- Outdoor Patio
- Multipurpose Room
- Dining
- BBQ
- Golf Shop/Golf Services/Golf Cart Rentals
- Bar
There are plenty of activities available in River Strand. Here is a sample of some of the clubs, activities and classes offered here.
- Basketball
- Golf
- Pickleball
- Tennis




