- 2 beds
- 2 baths
- 1,526 sq ft
6935 Stoneywalk Ct, Bradenton, FL, 34203
Community: Tara Golf & Country Club
-
Home type
Villa
-
Year built
1993
-
Lot size
0 sq ft
-
Price per sq ft
$229
-
Taxes
$1415 / Yr
-
HOA fees
$1325 / Qtr
-
Last updated
Today
-
Views
2
Questions? Call us: (941) 241-1745
Overview
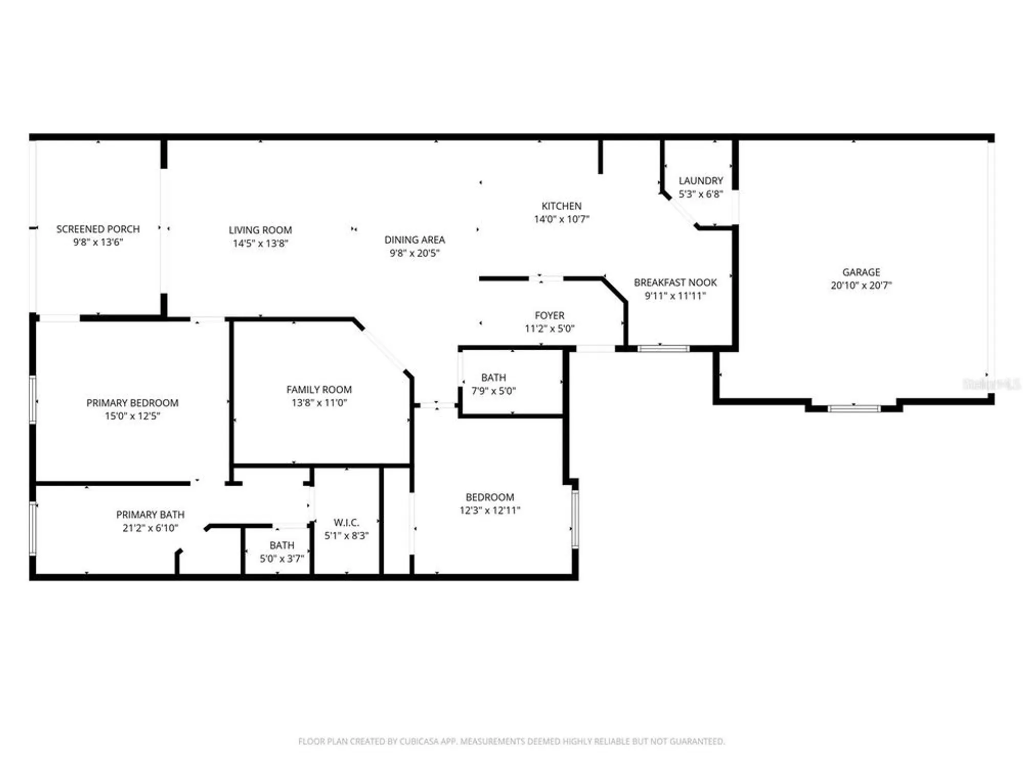
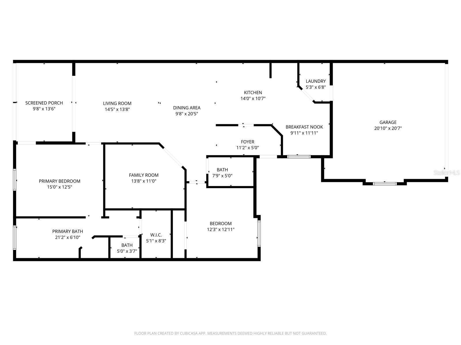
Beautiful 2-Bedroom + Den Villa with Country Club Amenities! Welcome to this fully furnished villa, offering comfort, style, and resort-style living! This spacious home features 2 bedrooms plus a den, 2 updated bathrooms, and a 2-car garage with a 220-volt electric hookup — perfect for electric vehicle charging or workshop use. Inside, you’ll find crown molding, granite countertops, and a modernized kitchen and baths. The eat-in kitchen with plenty of storage, making it as functional as it is beautiful. Enjoy year-round comfort in the enclosed Florida room, perfect for relaxing or entertaining. Located in Tara Golf & Country Country Club community, you’ll have access to unlimited golf, a clubhouse restaurant, and a wide variety of activities — including brand-new pickleball courts, tennis, and bocce ball. Cool off in one of the two sparkling swimming pools — one conveniently located right behind the villa and another at the clubhouse with a poolside snack bar. This villa comes fully equipped with all necessary household goods, so you can move right in and start enjoying the Florida lifestyle immediately! Highlights: 2 Bedrooms + Den 2 Updated Bathrooms 2-Car Garage with 220V Outlet Fully Furnished with Household Goods Enclosed Florida Room Crown Molding & Granite Countertops Eat-In Kitchen with Ample Storage Country Club Privileges: Unlimited Golf, Pickleball, Tennis, Bocce, Restaurant 2 Pools (One Just Steps from Your Door) Conveiently located, minutes from Interstate 70- one exit south takes you to UTC mall, Sarasota airport. Less than an hour you can be in the Tampa/St Pete area. Cruise port, theaters, professional sports in baseball, hockey and football! One time capital contribution of $6571 is required of Buyer, unless already a member of Tara G&CC. Villa roof 2022, HOA pays for exterior building insurance, all exterior maintenance is taken care of by HOA. The HOA will also allow a 12X15 screen enclosure to be added to your villa if completed to assigned standards. Villa is priced to sell now! Perfect for someone looking to downsize, or someone who needs a little more living area. Great community of 32 units. Save the gas, get a golf cart for transportation around Tara- even go to Publix and local shopping center! Don’t miss this opportunity to own your piece of paradise!
Interior
Appliances
- Dishwasher, Disposal, Dryer, Electric Water Heater, Microwave, Range Hood, Refrigerator, Washer
Bedrooms
- Bedrooms: 2
Bathrooms
- Total bathrooms: 2
- Full baths: 2
Laundry
- Laundry Room
Cooling
- Central Air
Heating
- Central
Features
- Built-in Features, Ceiling Fan(s), Crown Molding, Eat-in Kitchen, Living/Dining Room, Main Level Primary, Walk-In Closet(s), Window Treatments
Levels
- One
Size
- 1,526 sq ft
Exterior
Private Pool
- No
Patio & Porch
- Enclosed
Roof
- Shingle
Garage
- Attached
- Garage Spaces: 2
- Driveway
- Electric Vehicle Charging Station(s)
- Garage Door Opener
Carport
- None
Year Built
- 1993
Waterfront
- No
Water Source
- Public
Sewer
- Public Sewer
Community Info
HOA Information
- Association Fee: $1,325
- Association Fee Frequency: Quarterly
- Association Fee 2: $1,170
- Association Fee Includes: Cable TV, Clubhouse, Fence Restrictions, Fitness Center, Golf Course, Maintenance, Pickleball, Pool, Recreation Facilities, Spa/Hot Tub, Tennis Court(s), Vehicle Restrictions, Cable TV, Internet, Maintenance Structure, Maintenance Grounds
Taxes
- Annual amount: $1,415.00
- Tax year: 2024
Senior Community
- No
Features
- Association Recreation - Owned, Clubhouse, Community Mailbox, Deed Restrictions, Fitness Center, Golf Carts Permitted, Golf, Irrigation-Reclaimed Water, Pool, Restaurant, Sidewalks, Tennis Court(s)
Location
- City: Bradenton
- County/Parrish: Manatee
- Township: 35
Listing courtesy of: Sharon Viner, EXIT KING REALTY, 941-497-6060
MLS ID: A4671405
Listings courtesy of Stellar MLS as distributed by MLS GRID. Based on information submitted to the MLS GRID as of Feb 26, 2026, 02:37am PST. All data is obtained from various sources and may not have been verified by broker or MLS GRID. Supplied Open House Information is subject to change without notice. All information should be independently reviewed and verified for accuracy. Properties may or may not be listed by the office/agent presenting the information. Properties displayed may be listed or sold by various participants in the MLS.
Tara Golf & Country Club Real Estate Agent
Want to learn more about Tara Golf & Country Club?
Here is the community real estate expert who can answer your questions, take you on a tour, and help you find the perfect home.
Get started today with your personalized 55+ search experience!
Want to learn more about Tara Golf & Country Club?
Get in touch with a community real estate expert who can answer your questions, take you on a tour, and help you find the perfect home.
Get started today with your personalized 55+ search experience!
Homes Sold:
55+ Homes Sold:
Sold for this Community:
Avg. Response Time:
Community Key Facts
Age Restrictions
- None
Amenities & Lifestyle
- See Tara Golf & Country Club amenities
- See Tara Golf & Country Club clubs, activities, and classes
Homes in Community
- Total Homes: 1,844
- Home Types: Single-Family, Attached, Condos
Gated
- No
Construction
- Construction Dates: 1989 - 2006
- Builder: Lee Wetherington
Similar homes in this community
Popular cities in Florida
The following amenities are available to Tara Golf & Country Club - Bradenton, FL residents:
- Clubhouse/Amenity Center
- Golf Course
- Fitness Center
- Outdoor Pool
- Card Room
- Tennis Courts
- Pickleball Courts
- Bocce Ball Courts
- Lakes - Scenic Lakes & Ponds
- Outdoor Patio
- Steam Room/Sauna
- Golf Practice Facilities/Putting Green
- Multipurpose Room
- Spa
- Dining
- Golf Shop/Golf Services/Golf Cart Rentals
- Bar
There are plenty of activities available in Tara Golf & Country Club. Here is a sample of some of the clubs, activities and classes offered here.
- Bingo Nights
- Bocce Ball
- Bridge
- Dinner Dances
- Golf
- Golf Tournaments
- Holiday Celebrations
- Line Dancing
- Mahjong
- Pickleball
- Pool Parties
- Tennis
- Trivia Events
- Wine Tastings




