- 2 beds
- 2 baths
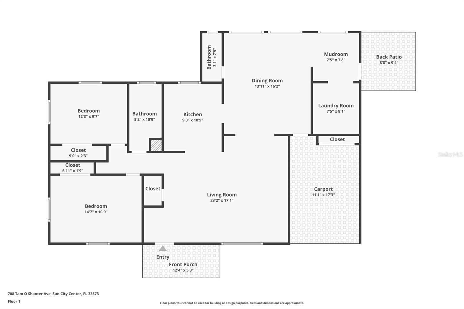
- 1,387 sq ft
708 Tam O Shanter Ave, Sun City Center, FL, 33573
Community: Sun City Center
-
Home type
Single family
-
Year built
1963
-
Lot size
7,000 sq ft
-
Price per sq ft
$130
-
Taxes
$3713 / Yr
-
Last updated
1 day ago
-
Views
8
Questions? Call us: (813) 590-4515
Overview
One or more photo(s) has been virtually staged. Welcome to 708 Tam O’Shanter Ave, ideally located in the heart of the highly desirable 55+ community of Sun City Center. This charming 2-bedroom, 1.5-bath home offers comfort, efficiency, and easy Florida living in a peaceful neighborhood known for its pride of ownership and friendly atmosphere. Inside, you’ll find durable luxury vinyl plank (LVP) flooring throughout, creating a seamless, modern look with low-maintenance appeal. The functional floor plan provides comfortable living spaces, while the fully paid-off solar system adds exceptional value and energy savings for years to come. Step outside to enjoy the fenced backyard—perfect for relaxing, gardening, or giving pets a secure space to roam. Quiet streets invite evening strolls or golf cart rides as you take in the beautifully maintained surroundings. Residents of Sun City Center enjoy access to resort-style amenities including pools, fitness centers, clubs, and countless social and recreational activities designed to support an active, connected lifestyle. Conveniently located near shopping, dining, medical facilities, and major roadways, this home offers both tranquility and accessibility in one of Florida’s most sought-after active adult communities. Experience the best of 55+ living—comfort, community, and convenience all in one place.
Interior
Appliances
- Convection Oven, Dishwasher, Disposal, Dryer, Electric Water Heater, Ice Maker, Microwave, Range, Refrigerator, Washer
Bedrooms
- Bedrooms: 2
Bathrooms
- Total bathrooms: 2
- Half baths: 1
- Full baths: 1
Laundry
- Inside
- Laundry Room
Cooling
- Central Air
Heating
- Central, Heat Pump
Features
- Ceiling Fan(s), Open Floorplan, Solid-Wood Cabinets, Thermostat
Levels
- One
Size
- 1,387 sq ft
Exterior
Private Pool
- No
Patio & Porch
- Covered
Roof
- Shingle
Garage
- None
Carport
- Carport Spaces:
Year Built
- 1963
Lot Size
- 0.16 acres
- 7,000 sq ft
Waterfront
- No
Water Source
- Public
Sewer
- Public Sewer
Community Info
Taxes
- Annual amount: $3,712.74
- Tax year: 2025
Senior Community
- Yes
Features
- Clubhouse, Deed Restrictions, Dog Park, Fitness Center, Golf Carts Permitted, Golf, Pool, Street Lights
Location
- City: Sun City Center
- County/Parrish: Hillsborough
- Township: 32
Listing courtesy of: Mike Youngblood, TMWRK BROKERAGE LLC, 727-277-9032
MLS ID: TB8479028
Listings courtesy of Stellar MLS as distributed by MLS GRID. Based on information submitted to the MLS GRID as of Mar 20, 2026, 06:04am PDT. All data is obtained from various sources and may not have been verified by broker or MLS GRID. Supplied Open House Information is subject to change without notice. All information should be independently reviewed and verified for accuracy. Properties may or may not be listed by the office/agent presenting the information. Properties displayed may be listed or sold by various participants in the MLS.
Sun City Center Real Estate Agent
Want to learn more about Sun City Center?
Here is the community real estate expert who can answer your questions, take you on a tour, and help you find the perfect home.
Get started today with your personalized 55+ search experience!
Want to learn more about Sun City Center?
Get in touch with a community real estate expert who can answer your questions, take you on a tour, and help you find the perfect home.
Get started today with your personalized 55+ search experience!
Homes Sold:
55+ Homes Sold:
Sold for this Community:
Avg. Response Time:
Community Key Facts
Age Restrictions
- 55+
Amenities & Lifestyle
- See Sun City Center amenities
- See Sun City Center clubs, activities, and classes
Homes in Community
- Total Homes: 9,500
- Home Types: Single-Family, Attached
Gated
- No
Construction
- Construction Dates: 1961 - 2018
- Builder: Multiple Builders, Lennar, WCI, Del Webb
Similar homes in this community
Popular cities in Florida
The following amenities are available to Sun City Center - Sun City Center, FL residents:
- Clubhouse/Amenity Center
- Restaurant
- Fitness Center
- Indoor Pool
- Outdoor Pool
- Aerobics & Dance Studio
- Indoor Walking Track
- Hobby & Game Room
- Card Room
- Ceramics Studio
- Arts & Crafts Studio
- Lapidary Studio
- Stained Glass Studio
- Woodworking Shop
- Ballroom
- Performance/Movie Theater
- Computers
- Library
- Billiards
- Walking & Biking Trails
- Tennis Courts
- Pickleball Courts
- Shuffleboard Courts
- Horseshoe Pits
- Softball/Baseball Field
- Basketball Court
- Volleyball Court
- Lawn Bowling
- Outdoor Patio
- Pet Park
- Steam Room/Sauna
- Handball Courts
- Day Spa/Salon/Barber Shop
- Multipurpose Room
- Community Transit
- Gazebo
- Boat Launch
- Lounge
- Golf Shop/Golf Services/Golf Cart Rentals
- Gathering Areas
- Laundry
- Bar
There are plenty of activities available in Sun City Center. Here is a sample of some of the clubs, activities and classes offered here.
- Aerobics - Low Impact Aerobics
- Amateur Radio
- American Association of University Women
- Aquatic Fitness
- Art Club
- Arts and Crafts Clubs
- Audubon Society
- Ballroom Dance
- Big Band
- Big Band Dance
- Billiards
- Bingo
- Boom Ba Dance
- Bridge Association
- British Connection
- Bunka - Bunka Arts
- Bunka - Tai-Pan Bunka Club
- Caberet
- Cards
- Ceramics
- Chess Club
- China Painting
- Chorus-Men's
- Community Emergency Response Team (CERT)
- Computer Club (PC & Mac)
- Crafts and Things
- Dance
- Dog Owners Group
- Exercise
- Flexercise & Aerobic Dance
- Florida Senior American Cameo Club
- Foxy Seniors Dance Club
- Friends of European Brass
- Fun Squad
- Galaxy Bridge
- Guild of Technical & Electronic Experimenters
- High Twelve Masonic
- Historical Society of Greater SCC
- Horseshoe Pitching
- Intellectual Information Exchange Club
- International Forum of SCC
- Investment Club
- Ladies' Penny Ante
- Lapidary
- Lawn Bowling
- Man-to-Man
- Men's Club
- Men's Poker
- Metaphysical Group
- Minibus Trips
- Model Yachts
- Moonglow Dance
- Music
- Needlecrafters
- Needlepointers
- Photography
- Pickleball
- Pinochle
- Progressive Bridge
- Recreational Vehicle
- Registered Nurses
- Sawdust Engineers
- Sew 'N Sews
- Shellcrafters
- Shuffleboard
- Softball
- Solo Line Dancing
- Square Dancing
- Stained Glass
- SwimDancers
- Tap Dancing
- Tax Aide
- Tennis
- Tillers & Toilers
- Travel Club
- Unit Presidents Exchange Group (UPEG)
- Veterans
- Volleyball
- Weavers Guild
- Weight Control Group
- Women's Club
- Woodcarvers
- Writing
- Yoga




