- 4 beds
- 3 baths
- 2,889 sq ft
79 Plantation Passage Dr, Bolivia, NC, 28422
Community: Winding River Plantation
-
Home type
Single family
-
Year built
2026
-
Lot size
10,890 sq ft
-
Price per sq ft
$277
-
HOA fees
$2088 / Annually
-
Last updated
Today
-
Views
2
Questions? Call us: (910) 807-7892
Overview
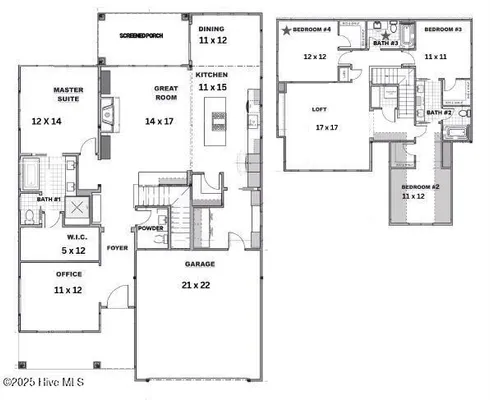
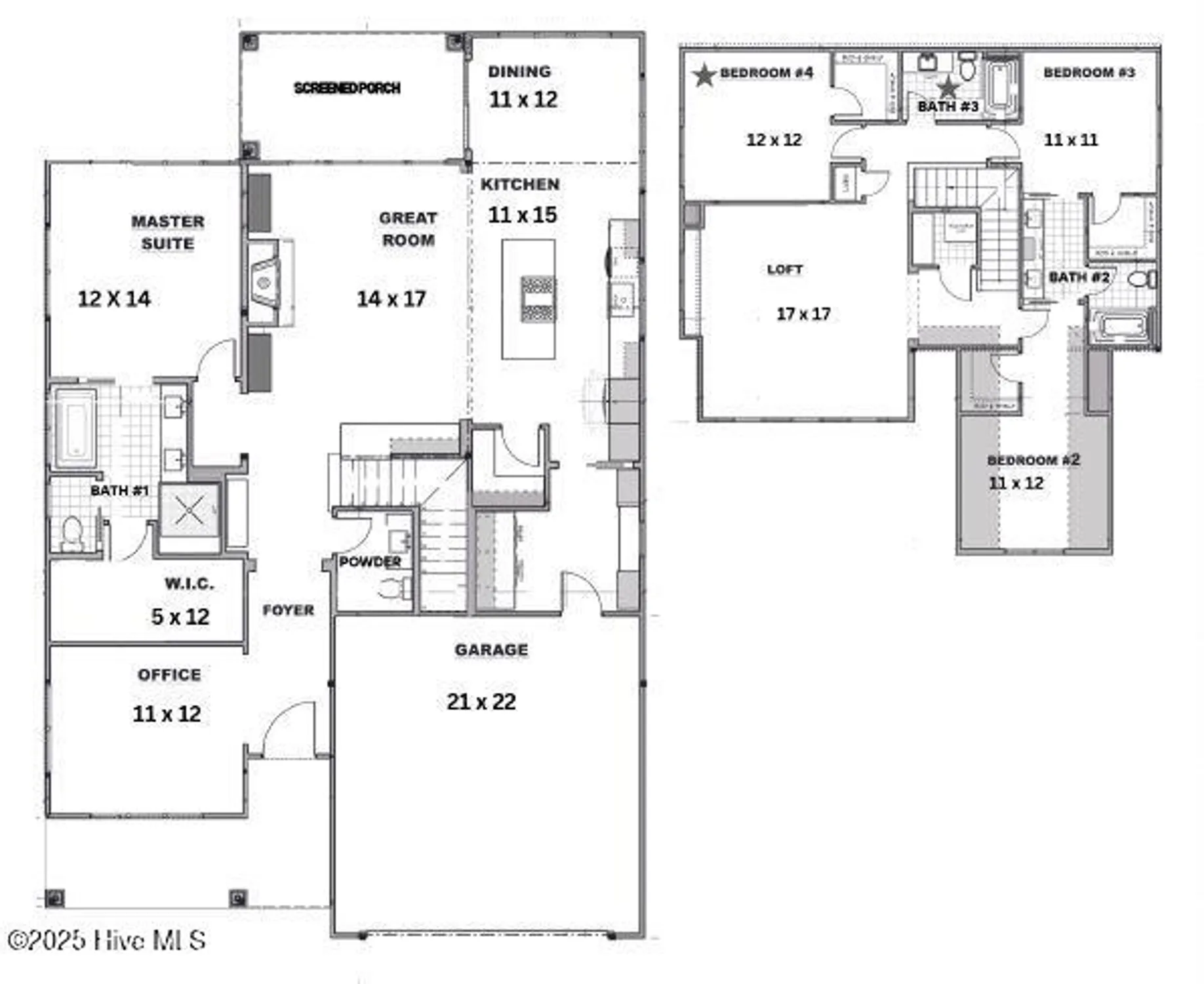
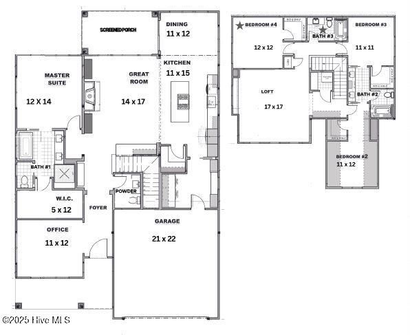
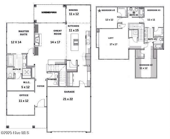
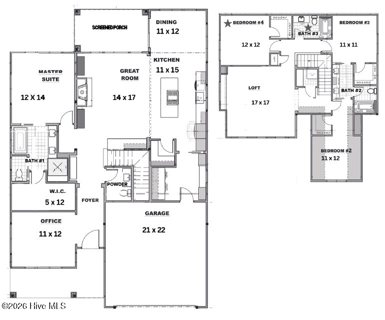
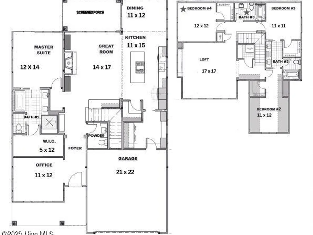
UNDER CONSTRUCTION The Coquina by Elan Homes features a spacious and inviting design, boasting three bedrooms and three bathrooms. The open living plan creates a seamless flow between the common areas, enhancing the sense of connectivity and allowing for a versatile use of space. Additionally, the inclusion of an office provides a dedicated area for work or study. The thoughtful layout of the house combines functionality with a modern aesthetic, making it an ideal setting for both daily living and special occasions. The three bathrooms add convenience and privacy for the residents and guests. One of the highlights of this home is the covered porch at the back, offering a charming outdoor space that can be enjoyed year-round. Whether you're looking to relax with a cup of coffee, entertain guests, or simply take in the fresh air, the covered porch provides a cozy and sheltered retreat. Overall, this home is designed to balance comfort and style, providing a welcoming environment for various activities and moments of relaxation. Photos are representative of the floor plan not the actual property.
Interior
Bedrooms
- Bedrooms: 4
Bathrooms
- Total bathrooms: 3
- Full baths: 3
Cooling
- Heat Pump
Heating
- Heat Pump, Electric
Features
- Master Downstairs, Walk-In Closet(s), Vaulted Ceiling(s), High Ceilings, Mud Room, Kitchen Island, Ceiling Fan(s), Pantry, Wet Bar
Levels
- Two
Size
- 2,889 sq ft
Exterior
Private Pool
- No
Patio & Porch
- Open, Covered
Roof
- Shingle
Garage
- Attached
- Garage Spaces: 2
- Attached
- Garage Door Opener
- On Site
Carport
- None
Year Built
- 2026
Lot Size
- 0.25 acres
- 10,890 sq ft
Waterfront
- Yes
Water Source
- Public
Community Info
HOA Information
- Association Fee: $2,088
- Association Fee Frequency: Annually
- Association Fee Includes: Barbecue, Beach Access, Clubhouse, Pool, Fitness Center, Gated, Maintenance Structure, Maintenance, Management, Picnic Area, Security Gates, Security, Sidewalks, Street Lights, Tennis Court(s)
Senior Community
- No
Location
- City: Bolivia
- County/Parrish: Brunswick
Listing courtesy of: Jerry L Helms, Brunswick Forest Realty, LLC Listing Agent Contact Information: [email protected]
MLS ID: 100554826
The data relating to real estate on this web site comes in part from the Internet Data Exchange program of Hive MLS, and is updated as of May 26, 2026. All information is deemed reliable but not guaranteed and should be independently verified. All properties are subject to prior sale, change, or withdrawal. Neither listing broker(s) nor 55places.com shall be responsible for any typographical errors, misinformation, or misprints, and shall be held totally harmless from any damages arising from reliance upon these data. © 2026 Hive MLS
Winding River Plantation Real Estate Agent
Want to learn more about Winding River Plantation?
Here is the community real estate expert who can answer your questions, take you on a tour, and help you find the perfect home.
Get started today with your personalized 55+ search experience!
Want to learn more about Winding River Plantation?
Get in touch with a community real estate expert who can answer your questions, take you on a tour, and help you find the perfect home.
Get started today with your personalized 55+ search experience!
Homes Sold:
55+ Homes Sold:
Sold for this Community:
Avg. Response Time:
Community Key Facts
Age Restrictions
- None
Amenities & Lifestyle
- See Winding River Plantation amenities
- See Winding River Plantation clubs, activities, and classes
Homes in Community
- Total Homes: 1,134
- Home Types: Condos, Single-Family
Gated
- Yes
Construction
- Construction Dates: 1998 - Present
Similar homes in this community
Popular cities in North Carolina
The following amenities are available to Winding River Plantation - Bolivia, NC residents:
- Clubhouse/Amenity Center
- Fitness Center
- Outdoor Pool
- Library
- Walking & Biking Trails
- Tennis Courts
- Pickleball Courts
- Bocce Ball Courts
- Lakes - Scenic Lakes & Ponds
- Demonstration Kitchen
- Outdoor Patio
- Picnic Area
- Multipurpose Room
- Boat Launch
- Beach
There are plenty of activities available in Winding River Plantation. Here is a sample of some of the clubs, activities and classes offered here.
- BBQs
- Boating
- Bocce
- Community Events
- Fishing
- Golf
- Holiday Parties
- Pickbleball
- Picnics
- Social Clubs
- Tennis




