-
Home type
Single family
-
Year built
1988
-
Lot size
7,841 sq ft
-
Price per sq ft
$125
-
Taxes
$808 / Yr
-
HOA fees
$150 / Mo
-
Last updated
Today
-
Views
28
-
Saves
1
Questions? Call us: (352) 414-5765
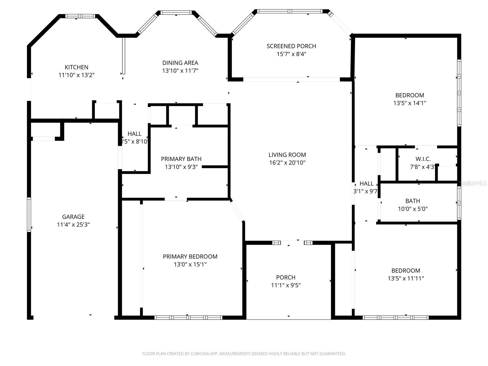
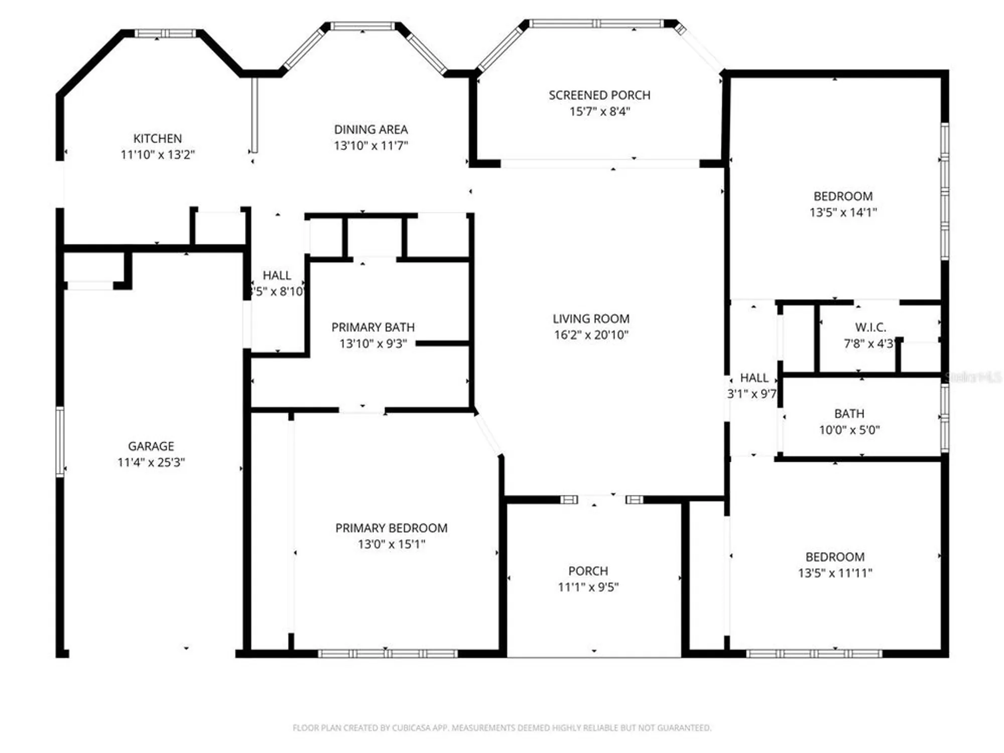
Overview
3 Bedroom 2 Bath home in Oak Run Country Club with roof 2024. electrical panel 2022, AC 2021. Move in ready with no big ticket items for the buyer. The 55+ community of Oak Run Country Club was voted 5th in the nation for places to retire in 2024. The amenities include 6 pools (1 indoor heated) 5 hot tubs, 2 club houses, 2 fitness centers recently updated with new equipment, over 100 clubs to join, library, crafts. billiards, and card rooms, pickleball, tennis, and shuffleboard courts. Don't forget the 18 hole golf course and the Oak Room restaurant bar and grill will make entertaining guests easy when you take them for lunch or dinner. There is also a dog park in the community. The Envera gated entrances keep the gated community safe. All of this for low amenities fee of $150 dollars monthly. And only 20 minutes to the World Equestrian Center. 20 minutes to Rainbow state park, shopping and restaurants near by. You will think you're living on a resort. Your paradise awaits. Some photos have been virtually staged.
Interior
Appliances
- Dishwasher, Electric Water Heater, Range, Refrigerator
Bedrooms
- Bedrooms: 3
Bathrooms
- Total bathrooms: 2
- Full baths: 2
Laundry
- In Garage
Cooling
- Central Air
Heating
- Electric
Fireplace
- None
Features
- Split Bedrooms, Thermostat, Walk-In Closet(s), Window Treatments
Levels
- One
Size
- 1,637 sq ft
Exterior
Private Pool
- No
Roof
- Shingle
Garage
- Attached
- Garage Spaces: 1
Carport
- None
Year Built
- 1988
Lot Size
- 0.18 acres
- 7,841 sq ft
Waterfront
- No
Water Source
- Public
Sewer
- Public Sewer
Community Info
HOA Fee
- $150
- Frequency: Monthly
Taxes
- Annual amount: $808.00
- Tax year: 2024
Senior Community
- Yes
Location
- City: Ocala
- County/Parrish: Marion
- Township: 16
Listing courtesy of: Judith Morrell, PLATINUM HOMES AND LAND REALTY, 352-620-0207
MLS ID: OM712212
Listings courtesy of Stellar MLS as distributed by MLS GRID. Based on information submitted to the MLS GRID as of Nov 10, 2025, 05:25am PST. All data is obtained from various sources and may not have been verified by broker or MLS GRID. Supplied Open House Information is subject to change without notice. All information should be independently reviewed and verified for accuracy. Properties may or may not be listed by the office/agent presenting the information. Properties displayed may be listed or sold by various participants in the MLS.
Oak Run Real Estate Agent
Want to learn more about Oak Run?
Here is the community real estate expert who can answer your questions, take you on a tour, and help you find the perfect home.
Get started today with your personalized 55+ search experience!
Want to learn more about Oak Run?
Get in touch with a community real estate expert who can answer your questions, take you on a tour, and help you find the perfect home.
Get started today with your personalized 55+ search experience!
Homes Sold:
55+ Homes Sold:
Sold for this Community:
Avg. Response Time:
Community Key Facts
Age Restrictions
- 55+
Amenities & Lifestyle
- See Oak Run amenities
- See Oak Run clubs, activities, and classes
Homes in Community
- Total Homes: 3,509
- Home Types: Single-Family, Attached
Gated
- Yes
Construction
- Construction Dates: 1985 - 2007
- Builder: Decca
Similar homes in this community
Popular cities in Florida
The following amenities are available to Oak Run - Ocala, FL residents:
- Clubhouse/Amenity Center
- Golf Course
- Restaurant
- Fitness Center
- Indoor Pool
- Outdoor Pool
- Hobby & Game Room
- Card Room
- Ceramics Studio
- Arts & Crafts Studio
- Ballroom
- Library
- Billiards
- Walking & Biking Trails
- Tennis Courts
- Pickleball Courts
- Bocce Ball Courts
- Shuffleboard Courts
- Horseshoe Pits
- Volleyball Court
- Demonstration Kitchen
- Outdoor Patio
- On-site Retail
- Multipurpose Room
There are plenty of activities available in Oak Run. Here is a sample of some of the clubs, activities and classes offered here.
- Anglers
- Aquatic Walkers
- Art
- Baby Boomers
- Bible Study
- Bridge (Fri Night)
- Bridge (Thurs AM)
- Bunco
- Can't Help Singing
- Canine Club
- Ceramics
- Chess/Checkers
- Chords
- Chorus Line
- Computer
- Country Western Dance
- Country Western Line Dance
- Cribbage
- Cultural Folk Dance
- Democrats
- Duplicate Bridge
- Euchre
- Exercise
- FYI Show
- Fabricholics
- Friends of the Library
- Fun Games
- Gabby Group
- Garden
- Genealogy
- German American
- Golf Exercise
- Irish American
- Italian-American
- Jewish Social
- Kitchen Band
- Line Dancing
- Lucky Iowan's
- Mahjong
- Motorcycle
- Needle Crafters
- New Jersey
- New York
- Newbie Computer
- Non-Smoking Bowling
- OMI
- Pen-Del-Mar
- Penny Poker
- Photography
- Pilates
- Pinochle
- Poker
- Quilters
- Reach Out
- Red Hat Society
- Renaissance Woman
- Republicans
- Showcase of Stars
- Singles
- Southern States
- Table Tennis
- Twirlers
- Upper Midwest
- Upstate New York
- Young Friends




