- 4 beds
- 5 baths
- 2,785 sq ft
1022 Kestrel Ct, Bradenton, FL, 34208
Community: Tidewater Preserve
-
Home type
Single family
-
Year built
2012
-
Lot size
9,714 sq ft
-
Price per sq ft
$463
-
Taxes
$15796 / Yr
-
HOA fees
$1672 / Qtr
-
Last updated
2 days ago
-
Views
3
Questions? Call us: (941) 900-3297
Overview
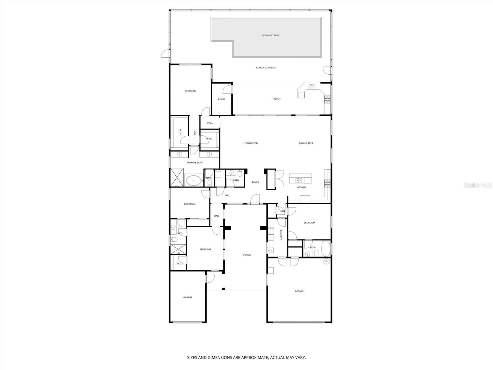
Luxury Waterfront Living in Tidewater Preserve—This gorgeous home offers 4 Bedrooms, 4.5 Bathrooms, Pool & Spa plus Private Dock w/ 14,000 LB boat Lift and a 3-car garage. Discover the perfect balance of elegance, comfort, and true Florida waterfront living in this exceptional residence located in the highly sought-after, guard-gated community of Tidewater Preserve. Thoughtfully designed with an open floor plan and elevated finishes throughout, this home offers a seamless blend of refined interior spaces and resort-style outdoor amenities. This is a Boater’s Paradise with Direct Water Access. Positioned on premium waterfront, the property features a private dock with a 14,000-pound boat lift with unobstructed access, making it effortless to launch your boat and explore the Manatee River, Tampa Bay, Anna Maria, and Gulf of America. Whether you’re heading out for a morning cruise or a sunset adventure, this home places the best of coastal living right at your doorstep. Resort-Style Outdoor Living & Entertaining: The expansive outdoor living area is the true centerpiece of the home — a private retreat designed for unforgettable gatherings and everyday relaxation. Enjoy A large outdoor bar with seating for multiple guests, two refrigerators for effortless entertaining, A built-in grill and Kamado Joe smoker for gourmet outdoor cooking, two retractable awnings offering shade and comfort on demand. An outdoor TV perfect for game days and movie nights, A sparkling pool and spa overlooking the water, and A convenient pool bathroom with shower. This is outdoor living at its finest — a space that feels like your own personal resort. Elegant Interior with High-End Finishes. Inside, the home continues to impress with a bright, open layout that flows naturally toward the outdoor living area. The kitchen features custom cabinetry and quartz countertops, offering both beauty and functionality. The master bedroom offers privacy it's own expansive ensuite bath complete with garden tub and large walk in shower. One guest bedroom includes its own ensuite bathroom while the other two share a bathroom, providing privacy and comfort for family and guests. Additional highlights include a new washer and dryer and thoughtfully selected finishes throughout. Central vacuum, Rare 3-Car Garage Configuration: A highly desirable feature, the home offers a 2-car garage plus a separate 3rd-car garage, ideal for additional vehicles, storage, recreational equipment, or a dedicated workshop. Tidewater Preserve is a Premier Waterfront Community--Residents of Tidewater Preserve enjoy an unmatched array of amenities, including: Private on-site marina, Tennis courts, Gym, Three community pools, Two clubhouses, Playground & dog park, Walking trails, Kayak launch ,Community boat lift, Direct access to the Manatee River and Gulf of America and resident activities that are offered throughout the year. All within a guard-gated community offering peace of mind and a vibrant, active lifestyle. Conveniently located near grocery stores, restaurants, shopping, and some of Florida’s most beautiful beaches, this home offers the perfect combination of luxury, convenience, and coastal living.
Interior
Appliances
- Bar Fridge, Dishwasher, Disposal, Dryer, Gas Water Heater, Microwave, Range, Refrigerator
Bedrooms
- Bedrooms: 4
Bathrooms
- Total bathrooms: 5
- Half baths: 1
- Full baths: 4
Laundry
- Laundry Room
Cooling
- Central Air
Heating
- Central
Features
- Ceiling Fan(s), Central Vacuum, High Ceilings, Open Floorplan, Solid-Wood Cabinets, Tray Ceiling(s), Walk-In Closet(s), Window Treatments
Levels
- One
Size
- 2,785 sq ft
Exterior
Private Pool
- Yes
Patio & Porch
- Screened
Roof
- Tile
Garage
- Attached
- Garage Spaces: 3
Carport
- None
Year Built
- 2012
Lot Size
- 0.22 acres
- 9,714 sq ft
Waterfront
- Yes
Water Source
- Public
Sewer
- Public Sewer
Community Info
HOA Information
- Association Fee: $1,672
- Association Fee Frequency: Quarterly
- Association Fee Includes: Clubhouse, Fitness Center, Gated, Maintenance, Playground, Pool, Recreation Facilities, Tennis Court(s), Trail(s), 24 Hour Guard, Cable TV, Pool(s), Escrow Reserves Fund, Maintenance Grounds, Association Management, Recreation Facilities
Taxes
- Annual amount: $15,796.00
- Tax year: 2025
Senior Community
- No
Features
- Clubhouse, Community Mailbox, Deed Restrictions, Dog Park, Fitness Center, Gated, Guarded Entrance, Playground, Pool, Sidewalks, Tennis Court(s), Street Lights
Location
- City: Bradenton
- County/Parrish: Manatee
- Township: 34
Listing courtesy of: Larry Curphey, CHARLES RUTENBERG REALTY INC, 866-580-6402
MLS ID: TB8485331
Listings courtesy of Stellar MLS as distributed by MLS GRID. Based on information submitted to the MLS GRID as of May 04, 2026, 11:58pm PDT. All data is obtained from various sources and may not have been verified by broker or MLS GRID. Supplied Open House Information is subject to change without notice. All information should be independently reviewed and verified for accuracy. Properties may or may not be listed by the office/agent presenting the information. Properties displayed may be listed or sold by various participants in the MLS.
Tidewater Preserve Real Estate Agent
Want to learn more about Tidewater Preserve?
Here is the community real estate expert who can answer your questions, take you on a tour, and help you find the perfect home.
Get started today with your personalized 55+ search experience!
Want to learn more about Tidewater Preserve?
Get in touch with a community real estate expert who can answer your questions, take you on a tour, and help you find the perfect home.
Get started today with your personalized 55+ search experience!
Homes Sold:
55+ Homes Sold:
Sold for this Community:
Avg. Response Time:
Community Key Facts
Age Restrictions
- None
Amenities & Lifestyle
- See Tidewater Preserve amenities
- See Tidewater Preserve clubs, activities, and classes
Homes in Community
- Total Homes: 361
- Home Types: Single-Family, Attached, Condos
Gated
- Yes
Construction
- Construction Dates: 2012 - Present
- Builder: Lennar, WCI
Similar homes in this community
Popular cities in Florida
The following amenities are available to Tidewater Preserve - Bradenton, FL residents:
- Clubhouse/Amenity Center
- Fitness Center
- Outdoor Pool
- Hobby & Game Room
- Walking & Biking Trails
- Tennis Courts
- Lakes - Scenic Lakes & Ponds
- Playground for Grandkids
- Demonstration Kitchen
- Outdoor Patio
- Pet Park
- Multipurpose Room
- Gazebo
- Boat Launch
There are plenty of activities available in Tidewater Preserve. Here is a sample of some of the clubs, activities and classes offered here.
- Boating
- Canoeing
- Cards
- Community Events
- Exercise Groups
- Games
- Mariners Club
- Neighborhood Gatherings
- Shanghai Rummy
- Swimming
- Tennis
- Wine Tastings




