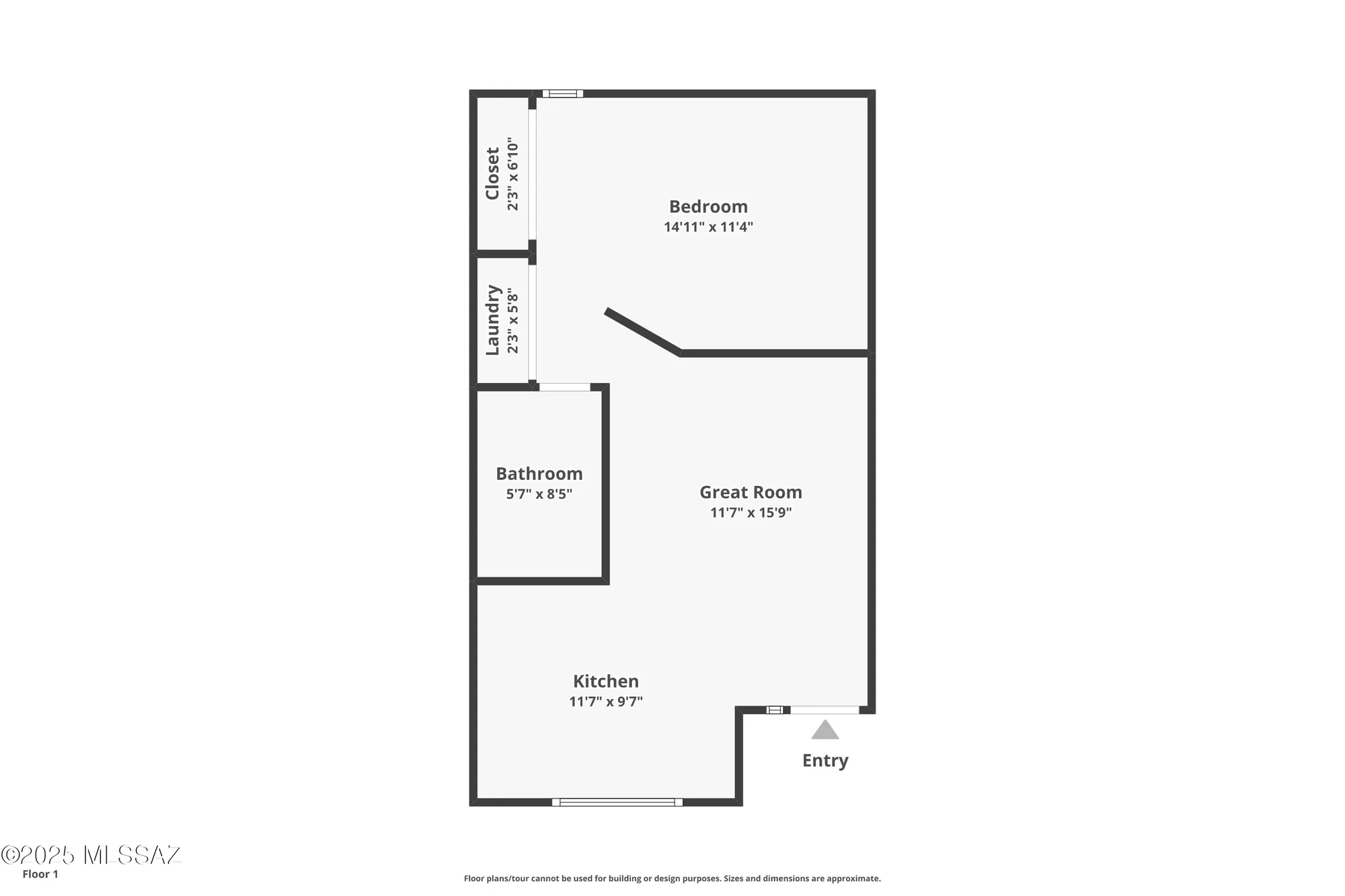
- 1 bed
- 1 bath
- 554 sq ft
1022 S Calle De La Temporada, Green Valley, AZ, 85614
Community: Green Valley Recreation
-
Home type
Townhouse
-
Year built
1977
-
Lot size
576 sq ft
-
Price per sq ft
$244
-
Taxes
$560 / Yr
-
HOA fees
$115 / Semi-Annually
-
Last updated
1 day ago
-
Views
3
-
Saves
7
Questions? Call us: (520) 394-8013
Overview
Escape the winter blues and indulge in the ultimate desert retreat--are you ready to discover the perfect casita? This charming one-bedroom unit features a newer mini-split system, tile flooring throughout, and updated appliances, including a new refrigerator, ensuring comfort and convenience from day one. Enjoy added peace of mind with a wrought-iron security door and newer Anderson windows, providing enhanced security and energy efficiency. The roof was recoated in 2025, offering long-lasting protection and reduced maintenance worries. Inside, a dedicated laundry closet with a dryer and newer washer makes everyday living even easier. The community pool, just around the corner, offers a refreshing escape from the Arizona sun. Even better--all exterior and yard maintenance is taken care of,
Interior
Appliances
- Dishwasher, Electric Range, Microwave, Refrigerator
Bedrooms
- Bedrooms: 1
Bathrooms
- Total bathrooms: 1
- Full baths: 1
Laundry
- Dryer
- Laundry Closet
- Washer
Cooling
- Ceiling Fan(s)
Heating
- Electric, Split System
Features
- Ceiling Fan(s)
Size
- 554 sq ft
Exterior
Private Pool
- No
Patio & Porch
- Patio
Roof
- Built-Up
Garage
- None
Carport
- None
Year Built
- 1977
Lot Size
- 0.01 acres
- 576 sq ft
Waterfront
- No
Water Source
- Water Company
Sewer
- Connected
Community Info
HOA Information
- Association Fee: $115
- Association Fee Frequency: Semi-Annually
Taxes
- Annual amount: $559.86
- Tax year: 2025
Senior Community
- Yes
Location
- City: Green Valley
- County/Parrish: Pima
- Township: 18
Listing courtesy of: Sofia Gil, Realty Executives Arizona Territory Listing Agent Contact Information: [email protected]
MLS ID: 22530437
The data relating to real estate listings on this website comes in part from the Internet Data Exchange (IDX) program of Multiple Listing Service of Southern Arizona. IDX information is provided exclusively for consumers' personal, non-commercial use and may not be used for any purpose other than to identify prospective properties consumers may be interested in purchasing. Listings provided by brokerages other than 55Places.com are identified with the MLSSAZ IDX Logo. All Information Is Deemed Reliable But Is Not Guaranteed Accurate. Listing information Copyright 2026 MLS of Southern Arizona. All Rights Reserved.
Green Valley Recreation Real Estate Agent
Want to learn more about Green Valley Recreation?
Here is the community real estate expert who can answer your questions, take you on a tour, and help you find the perfect home.
Get started today with your personalized 55+ search experience!
Want to learn more about Green Valley Recreation?
Get in touch with a community real estate expert who can answer your questions, take you on a tour, and help you find the perfect home.
Get started today with your personalized 55+ search experience!
Homes Sold:
55+ Homes Sold:
Sold for this Community:
Avg. Response Time:
Community Key Facts
Age Restrictions
- 55+
Amenities & Lifestyle
- See Green Valley Recreation amenities
- See Green Valley Recreation clubs, activities, and classes
Homes in Community
- Total Homes: 13,800
- Home Types: Single-Family, Attached, Condos
Gated
- No
Construction
- Construction Dates: 1978 - Present
- Builder: Multiple Builders
Similar homes in this community
Popular cities in Arizona
The following amenities are available to Green Valley Recreation - Green Valley, AZ residents:
- Clubhouse/Amenity Center
- Fitness Center
- Indoor Pool
- Outdoor Pool
- Aerobics & Dance Studio
- Hobby & Game Room
- Ceramics Studio
- Arts & Crafts Studio
- Lapidary Studio
- Woodworking Shop
- Ballroom
- Performance/Movie Theater
- Computers
- Billiards
- Tennis Courts
- Pickleball Courts
- Bocce Ball Courts
- Shuffleboard Courts
- Horseshoe Pits
- Basketball Court
- Volleyball Court
- Lawn Bowling
- Outdoor Amphitheater
- Gardening Plots
- Demonstration Kitchen
- Outdoor Patio
- Steam Room/Sauna
- Racquetball Courts
- Picnic Area
- On-site Retail
- Photography Studio
- Multipurpose Room
There are plenty of activities available in Green Valley Recreation. Here is a sample of some of the clubs, activities and classes offered here.
- Aquabelles
- Arts and Craft Association
- Bocce Ball
- Clay Studio
- Couples Social Bridge
- Duplicate Bridge
- Eastern States Club
- Green Bay Packers Club
- Iowa Club
- Irma's Crafters
- La Tienda
- Ladies Bridge
- Line Dancers
- Los Bailadores
- Men's Poker
- Men's Social Bridge
- Michigan Club
- Minnesota Club
- Oregon Club
- Progressive Bridge
- Roun-de-lays
- Santa Rita Art League
- Sheepshead (Schafskopf) Card Club
- Shuffleboard
- Squares
- Tap Dancers
- The Alaska Club
- The Canadian Club
- The Colorado Club
- The New England Club
- The Valley Players
- Women's Club
- Woodworkers
- Wright-Patterson Mahjong




