- 2 beds
- 2 baths
- 1,528 sq ft
12710 Sorrento Way Unit 204, Lakewood Ranch, FL, 34211
Community: Esplanade at Lakewood Ranch
-
Home type
Condominium
-
Year built
2018
-
Lot size
0 sq ft
-
Price per sq ft
$274
-
Taxes
$3844 / Yr
-
HOA fees
$2315 /
-
Last updated
1 day ago
Questions? Call us: (941) 877-5061
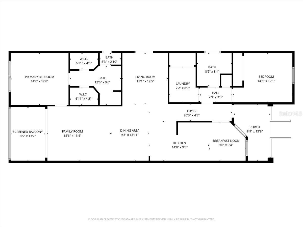
Overview
Welcome Home to Esplanade Golf & Country Club of Lakewood Ranch. This upgraded second floor end unit condominium is a must see. It has spectacular views of the pristine 10th green and the beautiful sunsets will be one of its best feature’s. ENJOY resort style amenities and a deeded full golf membership as you begin living your best life in this friendly vibrant community. Soaring vaulted ceilings and the open floor plan provide a feeling of spaciousness, as well as a warm and inviting ambiance for relaxation with friends and family. This unit has recently installed plantation shutters in all rooms. It also has a new washer, dryer, dishwasher and microwave. The owner has installed custom lighting and ceiling fans in all rooms. The primary bedroom and guest room has recently installed new carpeting. The primary has an ensuite with dual sinks, two walk in closets with custom shelving and closet organizers. It also has a large walk-in shower with a separate pocket door water closet. The guest bedroom is in its own separate wing offering privacy for all. It has a secondary bath with a shower and oversize soaking tub. This wing can be closed with pocket doors separating the hall and the guest space. The laundry room is spacious and ready for your customization. The home also features a keyless entry and a security system. It also includes a smart thermostat for cooling and heating. The air system has installed a ultra violet light to eliminate mold and bacteria. Most of the home’s furniture is negotiable in the sale. Stacking sliding doors opens to the covered lanai with stunning views of the 10th hole and sparkling pond. You can enjoy all the advantages of the Lakewood Ranch lifestyle while enjoying the unmatched Amenties such as Golf Course, Tennis Courts, Pickleball, Bocce Ball, Coquina Spa, Resort style pool, Two hot tubs, Amenity center pool, Resistance pool, Barrel House dining, Bahama Bar, Dodici 951 fine dining and the Two Fitness centers that offer classes as well as personal training. Come see for yourself why Lakewood Ranch is the #1 Master Plan Community in the Nation.
Interior
Appliances
- Dishwasher, Disposal, Dryer, Microwave, Range, Refrigerator, Washer
Bedrooms
- Bedrooms: 2
Bathrooms
- Total bathrooms: 2
- Full baths: 2
Laundry
- Inside
- Laundry Room
Cooling
- Central Air
Heating
- Central
Features
- Ceiling Fan(s), Crown Molding, Eat-in Kitchen, High Ceilings, Kitchen/Family Room Combo, Living/Dining Room, Open Floorplan, Stone Counters, Thermostat, Vaulted Ceiling(s)
Levels
- One
Size
- 1,528 sq ft
Exterior
Private Pool
- No
Patio & Porch
- Covered, Front Porch
Roof
- Tile
Garage
- Garage Spaces: 1
Carport
- None
Year Built
- 2018
Waterfront
- No
Water Source
- Public
Sewer
- Public Sewer
Community Info
HOA Fee
- $2,315
- Includes: Fitness Center, Gated, Golf Course
Taxes
- Annual amount: $3,843.98
- Tax year: 2025
Senior Community
- No
Features
- Clubhouse, Deed Restrictions, Dog Park, Fitness Center, Gated, Guarded Entrance, Golf, Playground, Pool, Sidewalks, Tennis Court(s)
Location
- City: Lakewood Ranch
- County/Parrish: Manatee
- Township: 35S
Listing courtesy of: Paul Gallagher, GALLAGHER REAL ESTATE INC, 413-536-7232
MLS ID: FC315356
Listings courtesy of Stellar MLS as distributed by MLS GRID. Based on information submitted to the MLS GRID as of Jan 18, 2026, 10:46pm PST. All data is obtained from various sources and may not have been verified by broker or MLS GRID. Supplied Open House Information is subject to change without notice. All information should be independently reviewed and verified for accuracy. Properties may or may not be listed by the office/agent presenting the information. Properties displayed may be listed or sold by various participants in the MLS.
Esplanade at Lakewood Ranch Real Estate Agent
Want to learn more about Esplanade at Lakewood Ranch?
Here is the community real estate expert who can answer your questions, take you on a tour, and help you find the perfect home.
Get started today with your personalized 55+ search experience!
Want to learn more about Esplanade at Lakewood Ranch?
Get in touch with a community real estate expert who can answer your questions, take you on a tour, and help you find the perfect home.
Get started today with your personalized 55+ search experience!
Homes Sold:
55+ Homes Sold:
Sold for this Community:
Avg. Response Time:
Community Key Facts
Age Restrictions
- None
Amenities & Lifestyle
- See Esplanade at Lakewood Ranch amenities
- See Esplanade at Lakewood Ranch clubs, activities, and classes
Homes in Community
- Total Homes: 1,250
- Home Types: Single-Family
Gated
- Yes
Construction
- Construction Dates: 2012 - Present
- Builder: Taylor Morrison
Similar homes in this community
Popular cities in Florida
The following amenities are available to Esplanade at Lakewood Ranch - Lakewood Ranch, FL residents:
- Clubhouse/Amenity Center
- Golf Course
- Fitness Center
- Outdoor Pool
- Aerobics & Dance Studio
- Card Room
- Arts & Crafts Studio
- Ballroom
- Library
- Billiards
- Walking & Biking Trails
- Pickleball Courts
- Bocce Ball Courts
- Polo Fields
- Lakes - Scenic Lakes & Ponds
- Parks & Natural Space
- Playground for Grandkids
- Demonstration Kitchen
- Outdoor Patio
- Pet Park
- On-site Retail
- Gazebo
- Boat Launch
- BBQ
- Fire Pit
There are plenty of activities available in Esplanade at Lakewood Ranch. Here is a sample of some of the clubs, activities and classes offered here.




