• Home type

    Single family

  • Year built

    2025

  • Lot size

    8,276 sq ft

  • Price per sq ft

    $301

  • Taxes

    $15 / Yr

  • HOA fees

    $181 / Mo

  • Last updated

    1 day ago

  • Views

    11

  • Saves

    5


Questions? Call us: (865) 205-1079


Overview

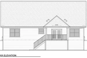
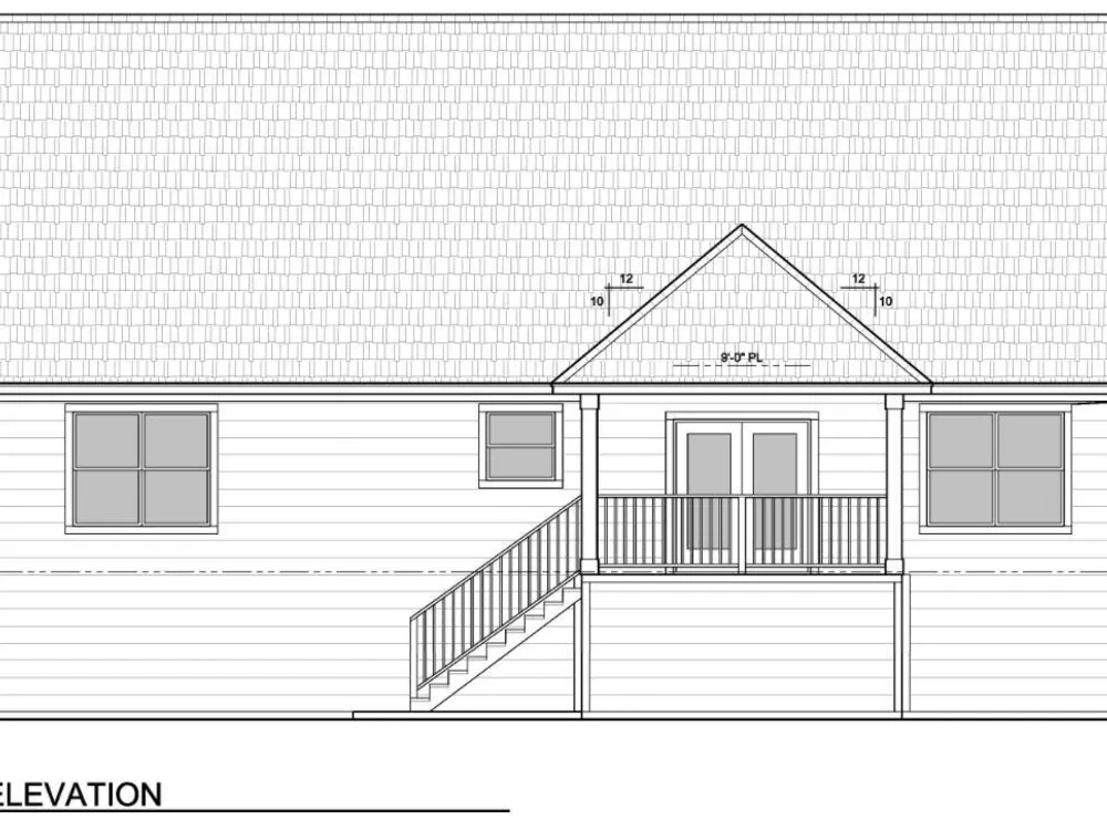
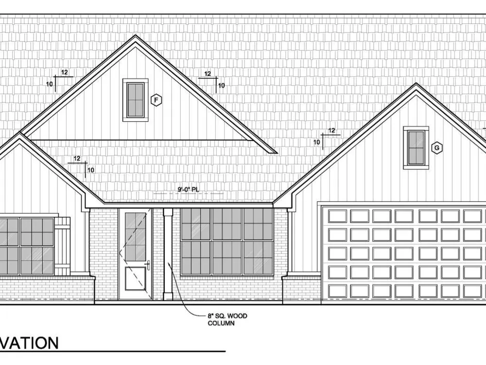
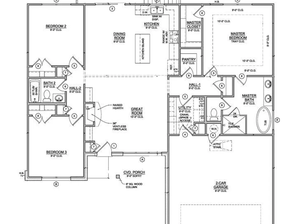
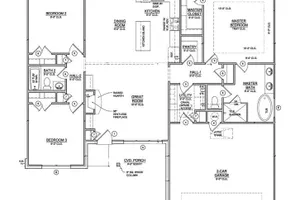
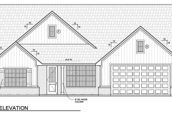
TO BE BUILT: Join the building process and create your dream home on a level lot in Tellico Village from start to finish! This charming open-concept floor plan will feature 3 bedrooms, 2 bathrooms, and a 2-car garage, offering 1,561 sq. ft. of spacious elegance and delightful details throughout. The main living area will showcase a tray ceiling, electric fireplace, and LVP flooring. Gourmet kitchen will be equipped with an island, beautiful countertops, SS appliances, soft-close drawers, and a pantry. Spacious master suite will include tray ceiling, a spa-like bath with custom tile work, double vanities, a freestanding tub, and a large walk-in closet with custom shelving. Tiled laundry room adds convenience, while the split-bedroom design ensures privacy. Carpet in the bedrooms. Enjoy the covered and screened deck—perfect for entertaining. Professional landscaping and an irrigation system will complete the home. Don't miss the opportunity to customize your dream home! Buyer to reimburse Seller at closing the one-time Loudon County Impact tax 1.00 dollar per finished sq.


Interior

Appliances

  • Dishwasher, Disposal, Microwave, Refrigerator

Bedrooms

  • Bedrooms: 3

Bathrooms

  • Total bathrooms: 2
  • Full baths: 2

Cooling

  • Central Cooling, Ceiling Fan(s)

Heating

  • Central, Forced Air, Heat Pump, Propane, Electric

Fireplace

  • 1

Features

  • Walk-In Closet(s), Kitchen Island, Pantry, Eat-in Kitchen

Exterior

Private Pool

  • No

Patio & Porch

  • Porch - Covered, Patio, Deck

Garage

  • Attached
  • Garage Spaces: 2
  • Garage Door Opener
  • Attached
  • Main Level

Carport

  • None

Year Built

  • 2025

Lot Size

  • 0.19 acres
  • 8,276 sq ft

Waterfront

  • No

Water Source

  • Public

Sewer

  • Public Sewer

Community Info

HOA Fee

  • $181
  • Frequency: Monthly
  • Includes: Swimming Pool, Tennis Courts, Club House, Golf Course, Playground, Recreation Facilities, Sauna, Other

Taxes

  • Annual amount: $15.47
  • Tax year:

Senior Community

  • No

Location

  • City: Loudon
  • County/Parrish: Loudon County - 32

Listing courtesy of: Vio Rotar, Coach Realty, LLC

Source: Kaarmls
MLS ID: 1290999

Kaarmls

IDX information is provided exclusively for consumers' personal, non-commercial use, that it may not be used for any purpose other than to identify prospective properties consumers may be interested in purchasing. Data is deemed reliable but is not guaranteed accurate by the MLS.


Tellico Village Real Estate Agent

Want to learn more about Tellico Village?

Here is the community real estate expert who can answer your questions, take you on a tour, and help you find the perfect home.

Get started today with your personalized 55+ search experience!

Want to learn more about Tellico Village?

Get in touch with a community real estate expert who can answer your questions, take you on a tour, and help you find the perfect home.

Get started today with your personalized 55+ search experience!

Homes Sold:

55+ Homes Sold:

Sold for this Community:

Avg. Response Time:

Global - Lead Form - Buyer Only
*55places does not provide or maintain community HOA information.
By requesting more information, you agree that 55places placeholder may call, text, or email you about your inquiry, which may be made with automated means (including recorded voice messages, SMS, or text messages). You understand that your consent is not a prerequisite for buying, selling or renting a property. You may revoke your consent at any time by contacting [email protected]. Message/data rates may apply. You also agree to 55places.com's Privacy Policy and Terms of Use.

Community Key Facts

Tellico Village

Age Restrictions

Amenities & Lifestyle

  • See Tellico Village amenities
  • See Tellico Village clubs, activities, and classes

Homes in Community

  • Total Homes: 3,375
  • Home Types: Single-Family, Attached

Gated

  • No

Construction

  • Construction Dates: 1987 - Present
  • Builder: Multiple Builders

Similar homes in this community Tellico Village

$714,999
3 Beds | 2 Baths | 2315 Sq. Ft.
MLS #1319179
Coach Realty, Llc, Vio Rotar
$464,000
3 Beds | 2 Baths | 2187 Sq. Ft.
MLS #1319065
Team Kukla, Ron Kukla
$800,000
3 Beds | 3 Baths | 2534 Sq. Ft.
MLS #1318979
Remax Excels, Cindy Nash Miller

Tellico Village Real Estate Agent

Want to learn more about Tellico Village?

Here is the community real estate expert who can answer your questions, take you on a tour, and help you find the perfect home.

Get started today with your personalized 55+ search experience!

Want to learn more about Tellico Village?

Get in touch with a community real estate expert who can answer your questions, take you on a tour, and help you find the perfect home.

Get started today with your personalized 55+ search experience!

Homes Sold:

55+ Homes Sold:

Sold for this Community:

Avg. Response Time:

Global - Lead Form - Buyer Only
*55places does not provide or maintain community HOA information.
By requesting more information, you agree that 55places placeholder may call, text, or email you about your inquiry, which may be made with automated means (including recorded voice messages, SMS, or text messages). You understand that your consent is not a prerequisite for buying, selling or renting a property. You may revoke your consent at any time by contacting [email protected]. Message/data rates may apply. You also agree to 55places.com's Privacy Policy and Terms of Use.

Agent Image
 

Community Expert

Call Us Call Us
Scroll to Top