-
Home type
Single family
-
Year built
1978
-
Lot size
9,664 sq ft
-
Price per sq ft
$218
-
Taxes
$2213 / Yr
-
HOA fees
$25 / Annually
-
Last updated
2 days ago
-
Saves
4
Questions? Call us: (623) 777-7994
Overview
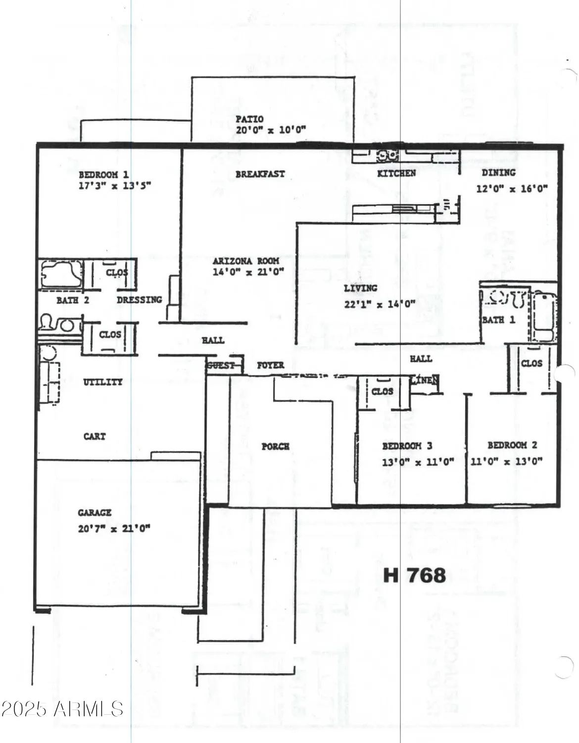
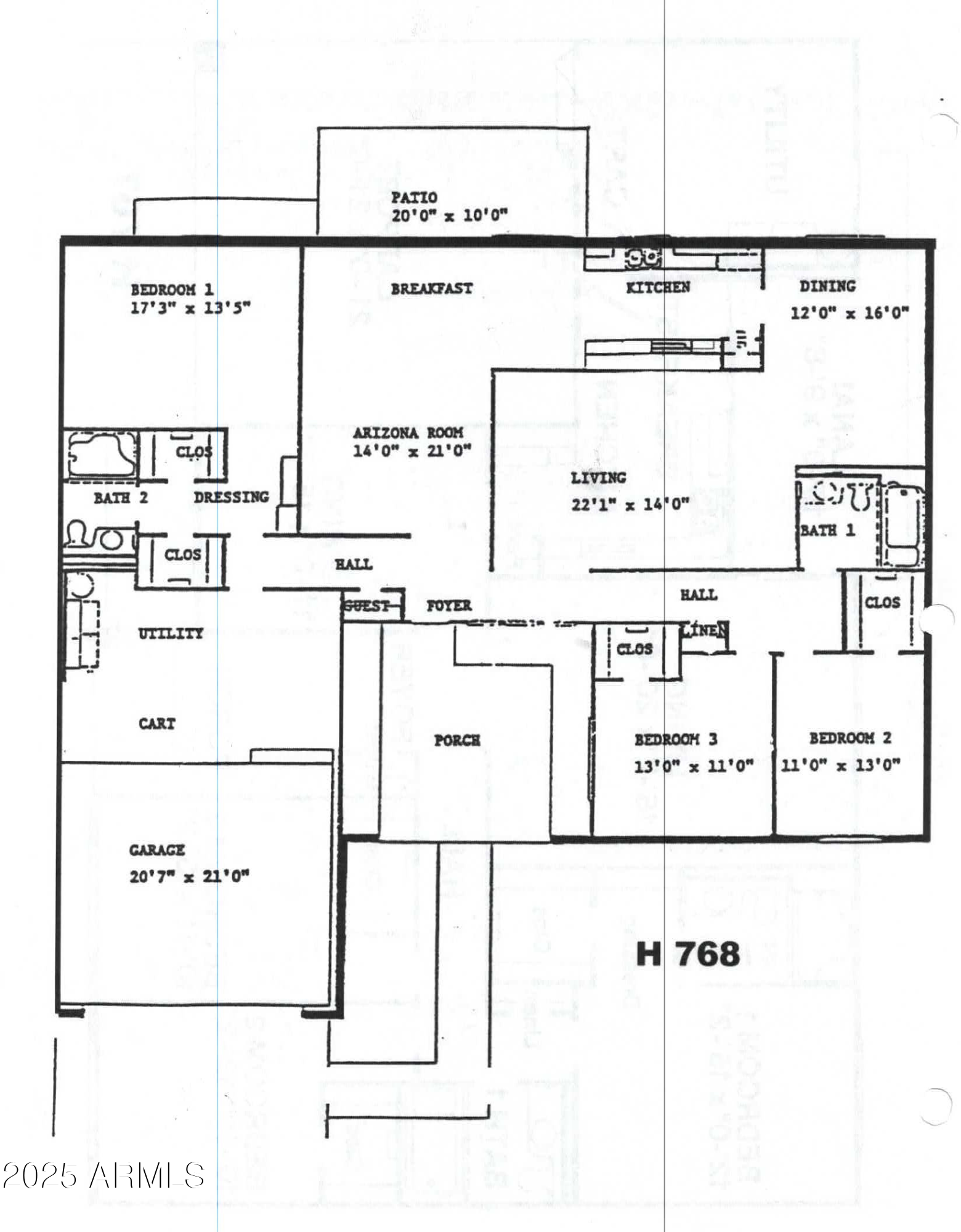
Don't Miss This Castillo Model Home On The Golf Course With A Pool, In Sun City! From The Moment You Enter The Private Front Courtyard, You'll Feel The Charm Of This Property. Step Inside And You're Greeted With A Bright, Open-Concept Living Space, Walls Have Been Removed To Create An Expansive Flow, And You Can See Straight Through The Home To The Stunning Golf Course View. This Desirable Split Floor Plan Places The Primary Suite On One Side Of The Home And The 2 Guest Bedrooms And Bath On The Other, Offering Privacy For Everyone. The Primary Bedroom Is Spacious And Features Two Walk-In Closets And Doors To The AZ Room. The Kitchen Is A Galley Layout, And Has Been Updated With Appliances Cabinets And Countertops, And Excellent Workspace. Just Off The Living Room You'll Find A Dining Area Plus Two Bonus Rooms. Adaptable For Hobbies, An Office, Or Additional Lounging. At The Back Of The Home, You'll Love The Massive Arizona Room With Panoramic Views Of The Pool And Golf Course. This Space Is Heated And Cooled With A Mini-Split System, Making It Comfortable Year-Round. Step Outside To Your Personal Retreat: A Sparkling Pool, Surrounded By Patio Space, Plus A Large Gazebo Offering Shade And Relaxation. There Is So Much To Enjoy Here, Views, Privacy, Entertaining Space, And A Fantastic Layout. Be Sure To Stop By And See This One Soon!
Interior
Appliances
- Dryer, Washer, Refrigerator, Built-in Microwave, Dishwasher, Disposal, Built-In Electric Oven
Bedrooms
- Bedrooms: 3
Bathrooms
- Total bathrooms: 2
- Full baths: 2
Laundry
- In Garage
Cooling
- Central Air, Ceiling Fan(s), Window/Wall Unit
Heating
- Electric, Ceiling
Features
- Quartz Countertops, High Speed Internet, 9+ Flat Ceilings, No Interior Steps, Pantry, 3/4 Bath Master Bdrm
Size
- 2,294 sq ft
Exterior
Private Pool
- Yes
Patio & Porch
- Covered Patio(s), Patio
Roof
- Built-Up
Garage
- Garage Spaces: 2
- Garage Door Opener
- Direct Access
Carport
- None
Year Built
- 1978
Lot Size
- 0.22 acres
- 9,664 sq ft
Waterfront
- No
Water Source
- Pvt Water Company
Sewer
- Private Sewer
Community Info
HOA Information
- Association Fee: $25
- Association Fee Frequency: Annually
- Association Fee Includes: No Fees
Taxes
- Annual amount: $2,213.00
- Tax year: 2024
Senior Community
- No
Features
- Pool, Racquetball, Golf, Pickleball, Community Spa, Community Spa Htd, Community Media Room, Tennis Court(s), Biking/Walking Path, Fitness Center
Location
- City: Sun City
- County/Parrish: Maricopa
- Township: 4N
Listing courtesy of: Amy Nixon, My Home Group Real Estate Listing Agent Contact Information: 602-824-8787
MLS ID: 6944766
Copyright 2026 Arizona Regional Multiple Listing Service, Inc. All rights reserved. The ARMLS logo indicates a property listed by a real estate brokerage other than 55places.com. All information should be verified by the recipient and none is guaranteed as accurate by ARMLS.
Sun City Real Estate Agent
Want to learn more about Sun City?
Here is the community real estate expert who can answer your questions, take you on a tour, and help you find the perfect home.
Get started today with your personalized 55+ search experience!
Want to learn more about Sun City?
Get in touch with a community real estate expert who can answer your questions, take you on a tour, and help you find the perfect home.
Get started today with your personalized 55+ search experience!
Homes Sold:
55+ Homes Sold:
Sold for this Community:
Avg. Response Time:
Community Key Facts
Age Restrictions
- 55+
Amenities & Lifestyle
- See Sun City amenities
- See Sun City clubs, activities, and classes
Homes in Community
- Total Homes: 28,257
- Home Types: Single-Family, Attached, Condos
Gated
- No
Construction
- Construction Dates: 1960 - 2016
- Builder: Del Webb, HBE, Ryerson, ,
Similar homes in this community
Popular cities in Arizona
The following amenities are available to Sun City - Sun City, AZ residents:
- Clubhouse/Amenity Center
- Golf Course
- Restaurant
- Fitness Center
- Indoor Pool
- Outdoor Pool
- Aerobics & Dance Studio
- Indoor Walking Track
- Card Room
- Ceramics Studio
- Arts & Crafts Studio
- Lapidary Studio
- Stained Glass Studio
- Woodworking Shop
- Ballroom
- Performance/Movie Theater
- Computers
- Library
- Billiards
- Bowling
- Walking & Biking Trails
- Tennis Courts
- Pickleball Courts
- Bocce Ball Courts
- Shuffleboard Courts
- Horseshoe Pits
- Softball/Baseball Field
- Lawn Bowling
- Lakes - Fishing Lakes
- Outdoor Amphitheater
- Parks & Natural Space
- Table Tennis
- Outdoor Patio
- Racquetball Courts
- Golf Practice Facilities/Putting Green
- Picnic Area
- On-site Retail
- Hospital
- Worship Centers
- Multipurpose Room
- Spa
There are plenty of activities available in Sun City. Here is a sample of some of the clubs, activities and classes offered here.
- 500 Club
- Aerobics
- Apple Macintosh Computer Club
- Aqua Fitness
- Armchair Photo Explorers
- Artistic Stained Glass
- Artists at the Lake
- Backgammon Club of Sun City
- Bell Ceramics
- Bell Crafts
- Bell Lapidary
- Bell Lawn Bowls
- Bell Metal Club
- Bell Shuffleboard
- Bell Silvercraft
- Bell Stitchers
- Bell Tea Dance
- Bell Woodworking
- Best Friends Dog Club
- Bocce
- Book in Hand Club
- Bunco Broncos
- Camera Guild
- Canasta
- Card Sharks Bridge
- Chamber Orchestra
- Chess Club
- China Painters Cupboard
- China Painting
- Computer Club of Sun City
- Country Dance Club
- Creative Quilters
- Dance For Fitness
- Euchre
- Fairway Sterling and Stones
- Fairway Woodworking
- Fairway/Mountain View Lawn Bowls
- Friday Afternoon Bridge
- Friendship Quilters, Fabric Artists
- Garden Club
- Gourmet Social Club
- Grand Slam Bridge
- Grandmothers and Friends
- Handbell Ringers
- Handi-Capables
- Hatha Yoga
- Kachina Bridge
- Knitters
- Ladies Exercise
- Lakeview Lawn Bowls
- Lakeview Woodworking
- Leathercraft
- Lifelong Learning Club
- Mahjong
- Marinette Clay Corner
- Men's Club
- Mini-Golf Club
- Mixed Cards
- Mixed Cribbage
- Monday Nite Pinochle Club
- New England Club
- Newcomer Hospitality
- NextGen Club
- Oakmont Ceramics
- Oakmont Lawn Bowls
- One Partner Bridge
- Outdoor Shuffleboard Club
- Palo Verde Artists
- Piano Club
- Pickleball Club
- Pinochle
- RV Club
- Racquetball Club of Sun City
- Readers Ensemble
- Rhythm Ramblers
- Rockhounds
- Rockin' Thru the Years
- Saguaro Bridge
- Saturday Pinochle
- Senior Softball Club
- Sew 'N Sew
- Silver Stones
- Six Shooter Horseshoes
- So Grand Exercise
- Spanish Club
- Stamp Club
- Sun City Ballroom Dance Club
- Sun City Billiards
- Sun City Calligraphy Society
- Sun City Carvers
- Sun City Choraliers
- Sun City Clay Club
- Sun City Concert Band
- Sun City Democrats
- Sun City Duplicate Bridge
- Sun City Lawn Bowls (USLBA)
- Sun City Line Dance Club
- Sun City Model Railroad Club
- Sun City Players Community Theater
- Sun City Poms
- Sun City Republican Club
- Sun City Singles Dance Club
- Sun City Singles Social Club
- Sun City Squares
- Sun City Women's Social Club
- Sundial Crafts
- Sundial Dance Club
- Sundial Shuffleboard Club
- Swim Club
- Table Tennis Club
- Tennis Club
- Thursday Afternoon Bridge
- Tip Top Dance Club
- Ukulele Club
- Water Volleyball
- Wednesday Afternoon Bridge
- Women's Chorus




