- 3 beds
- 3 baths
- 2,172 sq ft
1834 Torrey Pkwy, Libertyville, IL, 60048
Community: Victoria Park
-
Year built
2008
-
Price per sq ft
$209
-
Taxes
$9091 / Yr
-
HOA fees
$455 / Mo
-
Last updated
1 day ago
-
Views
8
-
Saves
1
Questions? Call us: (224) 337-4005
Overview
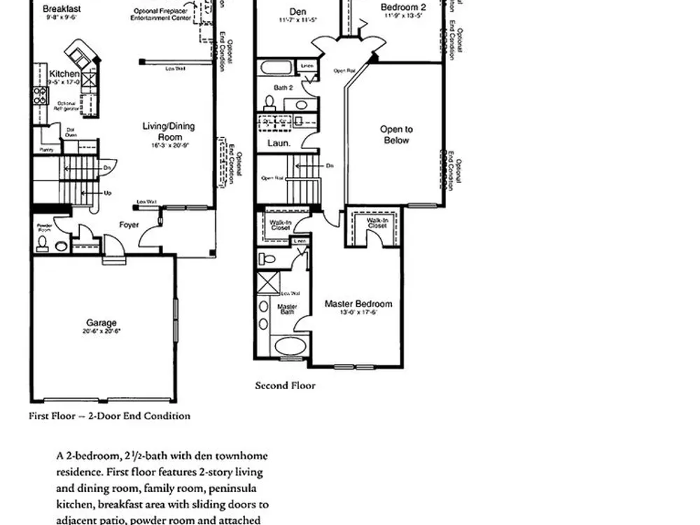
Remarkable and spacious maintenance free living in Victoria Park, a premier 55+ townhome community located in NW Libertyville. Inside the front door you will be greeted by an inviting foyer highlighted by beautiful hardwood flooring that leads the way to the grand two-story living/dining room combo illuminated with natural light. The updated kitchen with breakfast area has open views to the family room and fireplace. The cozy family room basks in natural light and warmth, courtesy of large windows and a charming gas fireplace, perfect for relaxing evenings at home. The adjacent kitchen is a chef's delight, featuring ample cabinets topped with crown molding, undercabinet lighting, quality stainless steel appliances, including a new refrigerator and dishwasher, and a generous walk-in pantry, providing all the storage you will need for your kitchen essentials. New homeowners can enjoy casual meals in the sunlit breakfast area, which offers sliding door access to your private patio. This spot is perfect for enjoying the fresh air or for entertaining guests at your next summer BBQ. A large powder room completes the main level. Upstairs you will find all new carpet and plenty of space for everyone to call their own. The primary suite offers a high vaulted ceiling, two large walk-in closets, and a private bath with a dual sink vanity, a large whirlpool tub, and a separate shower. The conveniently located laundry room includes a utility sink and new washer and dryer. A full hall bathroom, and two additional bedrooms with large closets complete the second level. The hall bathroom has a recently completed walk-in shower! In the finished and carpeted basement, you'll find plenty of additional living area with storage and rough-in plumbing for the addition of a full bathroom. This is a large versatile space that can adapt to your lifestyle; be it as a home theater, fitness area, second family room or hobby room. A new water heater with on-demand hot water pump has been installed. There is a large attached two car garage with remote opener. New garage door spring has recently been installed. This wonderful neighborhood is conveniently located minutes from Independence Grove recreational area and bike path, local shopping, restaurants and conveniences. The neighborhood community center includes many scheduled activities and has a gym available to all residents. There is also dedicated walking path around the community. 55 years of age or older Community-occupancy by persons under age 21 is prohibited. *However, up to 20% of the homeowners can be under the age of 55. Currently there is 0% ownership under the age of 55*
Interior
Appliances
- Double Oven, Range, Microwave, Dishwasher, Refrigerator, Washer, Dryer, Disposal, Stainless Steel Appliance(s)
Bedrooms
- Bedrooms: 3
Bathrooms
- Total bathrooms: 3
- Half baths: 1
- Full baths: 2
Laundry
- Upper Level
- In Unit
- Laundry Closet
Cooling
- Central Air
Heating
- Natural Gas, Forced Air
Fireplace
- 1, Fireplace Screen,Gas Log,Gas Starter,Family Room
Features
- Cathedral Ceiling(s), Storage, Walk-In Closet(s), Game Room, Separate Shower, Dual Sinks, Soaking Tub, Living/Dining Room
Size
- 2,172 sq ft
Exterior
Private Pool
- No
Roof
- Asphalt
Garage
- Garage Spaces: 2
- Asphalt
- Garage Door Opener
- Yes
- Garage
- Attached
Carport
- None
Year Built
- 2008
Waterfront
- No
Water Source
- Lake Drawn
Sewer
- Public Sewer
Community Info
HOA Information
- Association Fee: $455
- Association Fee Frequency: Monthly
- Association Fee Includes: Exercise Room, Party Room, Insurance, Clubhouse, Fitness Facility, Maintenance Exterior, Maintenance Grounds, Snow Removal
Taxes
- Annual amount: $9,091.00
- Tax year: 2024
Senior Community
- No
Location
- City: Libertyville
- County/Parrish: Lake
- Township: Libertyville
Listing courtesy of: Michael Smith, Berkshire Hathaway HomeServices Chicago Listing Agent Contact Information: [email protected]
MLS ID: 12485566
Based on information submitted to the MLS GRID as of Feb 22, 2026, 12:00pm PST. All data is obtained from various sources and may not have been verified by broker or MLS GRID. Supplied Open House Information is subject to change without notice. All information should be independently reviewed and verified for accuracy. Properties may or may not be listed by the office/agent presenting the information. Some listings have been excluded from this website.
Victoria Park Real Estate Agent
Want to learn more about Victoria Park?
Here is the community real estate expert who can answer your questions, take you on a tour, and help you find the perfect home.
Get started today with your personalized 55+ search experience!
Want to learn more about Victoria Park?
Get in touch with a community real estate expert who can answer your questions, take you on a tour, and help you find the perfect home.
Get started today with your personalized 55+ search experience!
Homes Sold:
55+ Homes Sold:
Sold for this Community:
Avg. Response Time:
Community Key Facts
Age Restrictions
- 55+
Amenities & Lifestyle
- See Victoria Park amenities
- See Victoria Park clubs, activities, and classes
Homes in Community
- Total Homes: 52
- Home Types: Attached
Gated
- No
Construction
- Construction Dates: 2004 - 2018
- Builder: Shea Homes, , St. Joe, Maronda Homes, Residential Homes of America, St Joe, Great Southern Homes, D.R. Horton
Popular cities in Illinois
The following amenities are available to Victoria Park - Libertyville, IL residents:
- Clubhouse/Amenity Center
- Fitness Center
- Walking & Biking Trails
- Multipurpose Room
There are plenty of activities available in Victoria Park. Here is a sample of some of the clubs, activities and classes offered here.
- Holiday Parties
- Social Events




