-
Home type
Single family
-
Year built
2025
-
Lot size
6,011 sq ft
-
Price per sq ft
$259
-
Taxes
$2 / Yr
-
HOA fees
$660 / Annually
-
Last updated
1 day ago
-
Views
4
Questions? Call us: (830) 358-5544
Overview
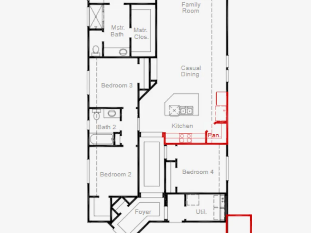
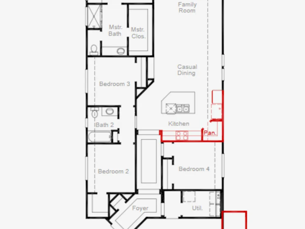
The Leona floorplan is a charming one-story design that perfectly combines space and convenience. Boasting 4 bedrooms and 2 bathrooms, with a two-and-a half garage. This home provides a versatile layout tailored to meet the needs of families or those who love hosting guests. The open design of the living areas fosters connection, with the kitchen seamlessly flowing into the dining space and family room-ideal for both everyday life and special gatherings. The primary suite offers a peaceful retreat, complete with a private bathroom and a generously sized walk-in closet. The additional three bedrooms are thoughtfully positioned, offering flexibility for children, visitors, or even a home office. The two-car garage ensures ample space for vehicles, storage, and more. With its smart layout and modern touches, the Leona floorplan is designed to enhance both comfort and style for any household.
Interior
Bedrooms
- Bedrooms: 4
Bathrooms
- Total bathrooms: 3
- Half baths: 1
- Full baths: 2
Fireplace
- None
Levels
- One
Size
- 1,739 sq ft
Exterior
Private Pool
- No
Roof
- Composition
Garage
- None
Carport
- None
Year Built
- 2025
Lot Size
- 0.14 acres
- 6,011 sq ft
Waterfront
- No
Community Info
HOA Fee
- $660
- Frequency: Annually
- Includes: Pool, Clubhouse, Park/Playground, Jogging Trails, Bike Trails
Taxes
- Annual amount: $2.15
- Tax year: 2024
Senior Community
- No
Location
- City: New Braunfels
- County/Parrish: Comal
Listing courtesy of: Dayton Schrader, eXp Realty Listing Agent Contact Information: (210) 757-9785
MLS ID: 1873062
© 2016 San Antonio Board of REALTORS. All rights reserved. The data relating to real estate for sale on this website comes in part from the IDX Program of the San Antonio Board of REALTORS MLS. The data is deemed reliable but not guaranteed accurate by San Antonio Board of REALTORS. Listing information is intended only for personal, non-commercial use and may not be used for any purpose other than to identify prospective properties consumers may be interested in purchasing.
Veramendi Real Estate Agent
Want to learn more about Veramendi?
Here is the community real estate expert who can answer your questions, take you on a tour, and help you find the perfect home.
Get started today with your personalized 55+ search experience!
Want to learn more about Veramendi?
Get in touch with a community real estate expert who can answer your questions, take you on a tour, and help you find the perfect home.
Get started today with your personalized 55+ search experience!
Homes Sold:
55+ Homes Sold:
Sold for this Community:
Avg. Response Time:
Community Key Facts
Age Restrictions
- None
Amenities & Lifestyle
- See Veramendi amenities
- See Veramendi clubs, activities, and classes
Homes in Community
- Total Homes: 650
- Home Types: Single-Family
Gated
- No
Construction
- Construction Dates: 2019 - Present
- Builder: Multiple Builders
Similar homes in this community
Popular cities in Texas
The following amenities are available to Veramendi - New Braunfels, TX residents:
- Clubhouse/Amenity Center
- Multipurpose Room
- Outdoor Pool
- Outdoor Patio
- Sports Courts
- Walking & Biking Trails
- Parks & Natural Space
- Picnic Area
- Playground for Grandkids
There are plenty of activities available in Veramendi. Here is a sample of some of the clubs, activities and classes offered here.
- Cycling



