• Home type

    Manufactured home

  • Year built

    1997

  • Lot size

    5,475 sq ft

  • Price per sq ft

    $127

  • Taxes

    $1514 / Yr

  • HOA fees

    $400 / Mo

  • Last updated

    Today

  • Views

    10

  • Saves

    1


Questions? Call us: (863) 250-3004


Overview

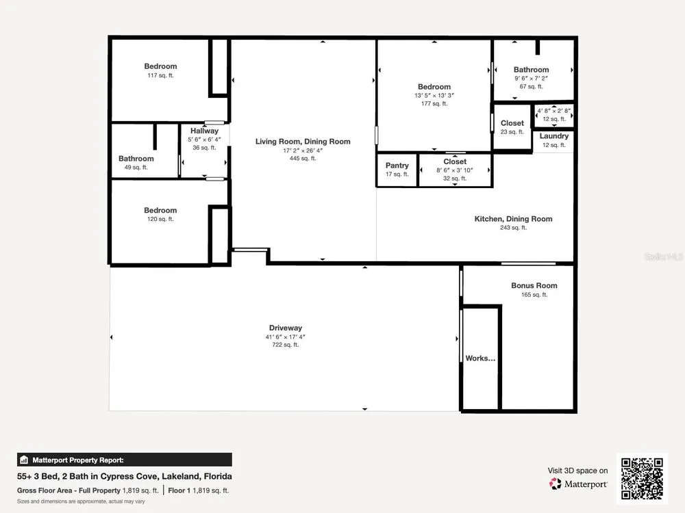
Welcome to Cypress Lakes Village—a premier 55+ resort-style community in North Lakeland where you can enjoy the country club lifestyle and own the land beneath your home! This charming WATERFRONT 1,568 sqft, 3-bedroom, 2-bath manufactured home offers comfortable living in one of Florida’s most desirable active adult communities. Unlike many similar properties in the community, this home is on deeded land, meaning you own it outright with no rising lot rent—just peace of mind and long-term value. Step inside and you’ll find a bright, open floor plan with a spacious living and dining areas ideal for entertaining. The home features fresh newly installed carpet, neutral colors, and plenty of natural light. The dining area flows into a galley-style kitchen offering abundant cabinet storage, walk-in pantry, and an extended countertop for casual meals or prep space. A cozy breakfast nook with surrounding windows makes the perfect spot to enjoy your morning coffee while overlooking the peaceful backyard lake. Just beyond the kitchen, sliding glass doors lead to a fully enclosed Florida room ( window unit AC) with expansive windows that fill the space with light—perfect for use as a sunroom, hobby space, or evening retreat. Additional features include a covered carport with ample parking for two vehicles, a utility/storage shed with built-in shelving and workbench. The primary suite offers comfortable proportions, two walk-in closets, and an ensuite bath with dual sinks and a walk-in shower. Two additional bedrooms provide flexibility for guests, or use as an office, or crafts room, while the second full bath ensures convenience for everyone. Living in Cypress Lakes means more than just a home—it’s a vibrant, active lifestyle. This secure guard gated community spans over 1,000 acres of beautifully maintained grounds and conservation areas, featuring two championship 18-hole golf courses, a full-service restaurant and bar, two sparkling resort pools and spas, a state-of-the-art fitness center, pickleball and tennis courts, a driving range, billiards and card rooms, and countless clubs and social events. There is even a storage area for your RV or Boat!!! From themed parties to arts and crafts, bocce ball, and the Big Cypress Bar & Grill, there’s always something to enjoy. https://covecommunities.com/55-mh-communities/florida/cypress-lakes-village/community-lifestyle/amenities/ Cypress Lakes is ideally located between Tampa and Orlando, offering quick access to shopping, dining, medical facilities, and major highways while still maintaining a peaceful, resort-like atmosphere. Whether you’re seeking a full-time residence or a seasonal Florida retreat, this home provides the perfect blend of comfort, community, and convenience—all with the added benefit of owning your land. Come see why Cypress Lakes Village is one of Lakeland’s most sought-after 55+ communities and start living the Florida lifestyle you’ve been dreaming of. Schedule your private showing today!


Interior

Appliances

  • Dishwasher, Disposal, Dryer, Electric Water Heater, Exhaust Fan, Microwave, Range, Refrigerator, Washer

Bedrooms

  • Bedrooms: 3

Bathrooms

  • Total bathrooms: 2
  • Full baths: 2

Laundry

  • In Kitchen
  • Inside
  • Laundry Closet

Cooling

  • Central Air

Heating

  • Central

Fireplace

  • None

Features

  • Ceiling Fan(s), Eat-in Kitchen, Living/Dining Room, Open Floorplan, Main Level Primary, Split Bedrooms, Thermostat

Levels

  • One

Size

  • 1,568 sq ft

Exterior

Private Pool

  • No

Roof

  • Shingle

Garage

  • None

Carport

  • Carport Spaces:
  • Driveway

Year Built

  • 1997

Lot Size

  • 0.13 acres
  • 5,475 sq ft

Waterfront

  • Yes

Water Source

  • Public

Sewer

  • Public Sewer

Community Info

HOA Fee

  • $400
  • Frequency: Monthly
  • Includes: Clubhouse, Fitness Center, Gated, Golf Course, Pickleball, Pool, Recreation Facilities, Security, Tennis Court(s)

Taxes

  • Annual amount: $1,513.73
  • Tax year: 2024

Senior Community

  • Yes

Features

  • Clubhouse, Community Mailbox, Deed Restrictions, Fitness Center, Gated, Guarded Entrance, Golf Carts Permitted, Golf, Pool, Tennis Court(s)

Location

  • City: Lakeland
  • County/Parrish: Polk
  • Township: 26

Listing courtesy of: April Spaulding, LPT REALTY, LLC, 877-366-2213

Source: Stellar
MLS ID: P4936419

Stellar

Listings courtesy of Stellar MLS as distributed by MLS GRID. Based on information submitted to the MLS GRID as of Oct 13, 2025, 03:21pm PDT. All data is obtained from various sources and may not have been verified by broker or MLS GRID. Supplied Open House Information is subject to change without notice. All information should be independently reviewed and verified for accuracy. Properties may or may not be listed by the office/agent presenting the information. Properties displayed may be listed or sold by various participants in the MLS.


Cypress Lakes Real Estate Agent

Want to learn more about Cypress Lakes?

Here is the community real estate expert who can answer your questions, take you on a tour, and help you find the perfect home.

Get started today with your personalized 55+ search experience!

Want to learn more about Cypress Lakes?

Get in touch with a community real estate expert who can answer your questions, take you on a tour, and help you find the perfect home.

Get started today with your personalized 55+ search experience!

Homes Sold:

55+ Homes Sold:

Sold for this Community:

Avg. Response Time:

Global - Lead Form - Buyer Only
*55places does not provide or maintain community HOA information.
By requesting more information, you agree that 55places placeholder may call, text, or email you about your inquiry, which may be made with automated means (including recorded voice messages, SMS, or text messages). You understand that your consent is not a prerequisite for buying, selling or renting a property. You may revoke your consent at any time by contacting [email protected]. Message/data rates may apply. You also agree to 55places.com's Privacy Policy and Terms of Use.

Community Key Facts

Cypress Lakes

Age Restrictions

  • 55+

Amenities & Lifestyle

  • See Cypress Lakes amenities
  • See Cypress Lakes clubs, activities, and classes

Homes in Community

  • Total Homes: 1,604
  • Home Types: Single-Family

Gated

  • Yes

Construction

  • Construction Dates: 1987 - 2016
  • Builder: Blair Group

Similar homes in this community Cypress Lakes

$139,900
2 Beds | 2 Baths | 768 Sq. Ft.
MLS #L4956160
Keller Williams Realty Smart, Casandra Vann
$250,000
2 Beds | 2 Baths | 1320 Sq. Ft.
MLS #L4952461
Keller Williams Realty Smart, Ben Becton

Cypress Lakes Real Estate Agent

Want to learn more about Cypress Lakes?

Here is the community real estate expert who can answer your questions, take you on a tour, and help you find the perfect home.

Get started today with your personalized 55+ search experience!

Want to learn more about Cypress Lakes?

Get in touch with a community real estate expert who can answer your questions, take you on a tour, and help you find the perfect home.

Get started today with your personalized 55+ search experience!

Homes Sold:

55+ Homes Sold:

Sold for this Community:

Avg. Response Time:

Global - Lead Form - Buyer Only
*55places does not provide or maintain community HOA information.
By requesting more information, you agree that 55places placeholder may call, text, or email you about your inquiry, which may be made with automated means (including recorded voice messages, SMS, or text messages). You understand that your consent is not a prerequisite for buying, selling or renting a property. You may revoke your consent at any time by contacting [email protected]. Message/data rates may apply. You also agree to 55places.com's Privacy Policy and Terms of Use.

Agent Image
 

Community Expert

Call Us Call Us
Scroll to Top