- 2 beds
- 2 baths
- 1,313 sq ft
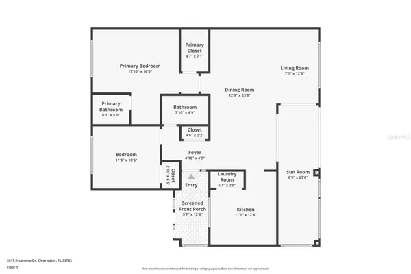
2617 Sycamore Dr, Clearwater, FL, 33763
Community: Village on the Green
-
Home type
Single family
-
Year built
1979
-
Lot size
6,852 sq ft
-
Price per sq ft
$221
-
Taxes
$4291 / Yr
-
HOA fees
$248 / Mo
-
Last updated
Today
-
Views
9
Questions? Call us: (727) 205-7610
Overview
Welcome home to the highly desired community of Village on the Green. Purchase with peace of mind! This property has an elevation of over 70'. It is in Flood Zone X and a Non Evacuation Zone. This is a single family home with 2 bedrooms, 2 full bathrooms, a climate controlled Florida Room, and a 1 car garage. The roof was replace in December of 2025 and the electric panel has been upgraded. The open living, dining room leads directly to the Florida room and is great for entertaining. The eat in kitchen also overlooks the Florida room and has a view of the screened front porch. The primary suite is very large, features a en-suite bathroom and a walk in closet. The guest bedroom can double as an office, craft room or whatever suits your needs. The HOA covers lawn cutting, watering and fertilizing, Fences, cable TV, internet along with the gorgeous recreation center. This community is a lifestyle, not just a location. Enjoy a sparkling pool, a clubhouse with a fitness center, library, card room and banquet room. Outside you will find the shuffleboard courts and community picnic area complete with gas grills for residents use. The clubhouse offers card playing and board game groups of all kinds as well as a shuffleboard group that meets weekly in the fall through the spring. Additionally there are regular community events throughout the year. And the best part, you're just minutes away from the heart of vibrant Downtown Dunedin, with its charming shops, delectable dining, and lively entertainment. Plus, you’re close to Honeymoon Island, Caladesi Island and more of Florida’s best beaches and fun activities. This home offers you peace of mind and fun in the sunshine. Don’t just dream of the Florida lifestyle – live it!
Interior
Appliances
- Dishwasher, Dryer, Electric Water Heater, Range, Refrigerator, Washer
Bedrooms
- Bedrooms: 2
Bathrooms
- Total bathrooms: 2
- Full baths: 2
Laundry
- Inside
- Laundry Closet
Cooling
- Central Air
Heating
- Central, Electric, Heat Pump
Features
- Ceiling Fan(s), Main Level Primary, Thermostat
Levels
- One
Size
- 1,313 sq ft
Exterior
Private Pool
- No
Roof
- Shingle
Garage
- Garage Spaces: 1
Carport
- None
Year Built
- 1979
Lot Size
- 0.16 acres
- 6,852 sq ft
Waterfront
- No
Water Source
- Public
Sewer
- Public Sewer
Community Info
HOA Information
- Association Fee: $248
- Association Fee Frequency: Monthly
- Association Fee Includes: Clubhouse, Pool, Recreation Facilities, Shuffleboard Court, Cable TV, Pool(s), Escrow Reserves Fund, Maintenance Grounds, Association Management, Private Roads, Recreation Facilities
Taxes
- Annual amount: $4,290.58
- Tax year: 2024
Senior Community
- Yes
Features
- Association Recreation - Owned, Buyer Approval Required, Clubhouse, Deed Restrictions, Pool
Location
- City: Clearwater
- County/Parrish: Pinellas
- Township: 28
Listing courtesy of: Paul Radtke, BHHS FLORIDA PROPERTIES GROUP, 727-799-2227
MLS ID: TB8465212
Listings courtesy of Stellar MLS as distributed by MLS GRID. Based on information submitted to the MLS GRID as of Mar 13, 2026, 02:46am PDT. All data is obtained from various sources and may not have been verified by broker or MLS GRID. Supplied Open House Information is subject to change without notice. All information should be independently reviewed and verified for accuracy. Properties may or may not be listed by the office/agent presenting the information. Properties displayed may be listed or sold by various participants in the MLS.
Village on the Green Real Estate Agent
Want to learn more about Village on the Green?
Here is the community real estate expert who can answer your questions, take you on a tour, and help you find the perfect home.
Get started today with your personalized 55+ search experience!
Want to learn more about Village on the Green?
Get in touch with a community real estate expert who can answer your questions, take you on a tour, and help you find the perfect home.
Get started today with your personalized 55+ search experience!
Homes Sold:
55+ Homes Sold:
Sold for this Community:
Avg. Response Time:
Community Key Facts
Age Restrictions
- 55+
Amenities & Lifestyle
- See Village on the Green amenities
- See Village on the Green clubs, activities, and classes
Homes in Community
- Total Homes: 448
- Home Types: Single-Family, Attached, Condos
Gated
- No
Construction
- Construction Dates: 1978 - 1981
Similar homes in this community
Popular cities in Florida
The following amenities are available to Village on the Green - Clearwater, FL residents:
- Clubhouse/Amenity Center
- Fitness Center
- Outdoor Pool
- Card Room
- Ballroom
- Library
- Billiards
- Walking & Biking Trails
- Shuffleboard Courts
- Lakes - Scenic Lakes & Ponds
- Parks & Natural Space
- Demonstration Kitchen
- Outdoor Patio
- Picnic Area
- Multipurpose Room
There are plenty of activities available in Village on the Green. Here is a sample of some of the clubs, activities and classes offered here.
- Arts & Crafts
- BBQ Parties
- Billiards
- Cards
- Community Events
- Dancing
- Exercise Groups
- Picnics
- Shuffleboard
- Swimming




