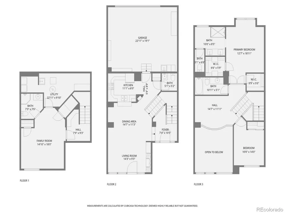
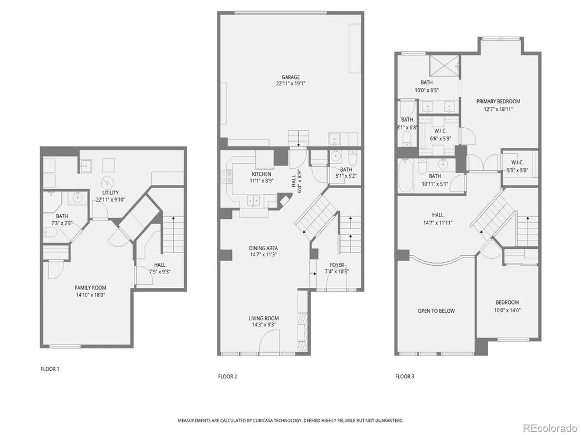
- 3 beds
- 4 baths
- 2,120 sq ft
2712 W Greens Pl, Littleton, CO, 80123
Community: Centennial at RiverWalk
-
Home type
Condominium
-
Year built
1997
-
Lot size
1,742 sq ft
-
Price per sq ft
$250
-
Taxes
$4019 / Yr
-
HOA fees
$428 / Mo
-
Last updated
Today
-
Views
8
-
Saves
1
Questions? Call us: (720) 706-8756
Overview
Enjoy living at The Greens at Riverwalk! Discover the beautiful upgrades of this well-maintained 3 bedroom, 4 bathroom home nestled near the Littleton Golf & Tennis Club. Upon entering the covered stone-wrapped porch, you're greeted with gorgeous hardwood floors and vaulted ceilings. The tastefully upgraded kitchen features granite countertops, stainless appliances and custom cabinetry. The living room opens to the deck, providing an indoor/outdoor experience and includes a gas fireplace, wide plank plantation shutters, and vaulted ceilings. There is a large pantry and convenient powder bathroom also on the main level. As you make your way upstairs you will find additional living space offered in the spacious loft, as well as the primary suite, en-suite, second bedroom and second full bathroom. In the primary you will find two custom walk-in closets with built-in shelving, motion activated lighting, and the spacious en-suite features floor to ceiling tile, a walk-in shower, granite counters, and dual sinks. As you head downstairs there is a built-in nook, great for an office! The third bedroom could also be perfect for a home gym or flex room. Also on the lower level is the 4th bathroom, laundry room with a utility sink, and tons of storage! Newer Furnace & A/C, Newer Roof and Exterior Paint, and a Central Vacuum System! Short distance to the clubhouse, community pool, hot tub, fitness center, and sauna. Within walking distance to the Platte River Trail, Littleton Golf Club and Downtown Littleton which offers shopping, dining, and entertainment. Bonus! Seller is including all wall-mounted TV's, a commercial grade elliptical, and all garage storage!
Interior
Appliances
- Dishwasher, Disposal, Dryer, Gas Water Heater, Humidifier, Microwave, Range, Refrigerator, Self Cleaning Oven, Sump Pump, Washer
Bedrooms
- Bedrooms: 3
Bathrooms
- Total bathrooms: 4
- Half baths: 1
- Three-quarter baths: 2
- Full baths: 1
Laundry
- Sink
- In Unit
Cooling
- Central Air
Heating
- Forced Air
Fireplace
- 1, Gas,Living Room
Features
- Ceiling Fan(s), Central Vacuum, Entrance Foyer, Granite Counters, High Speed Internet, Pantry, Primary Suite, Smoke Free, Vaulted Ceiling(s), Walk-In Closet(s)
Levels
- Two
Size
- 2,120 sq ft
Exterior
Private Pool
- No
Patio & Porch
- Covered, Front Porch
Roof
- Composition
Garage
- Attached
- Garage Spaces: 2
- Concrete
- Unfinished Garage
- Finished Garage
- Epoxy Flooring
- Lighted
- Oversized
- Storage
Carport
- None
Year Built
- 1997
Lot Size
- 0.04 acres
- 1,742 sq ft
Waterfront
- No
Water Source
- Public
Sewer
- Public Sewer
Community Info
HOA Information
- Association Fee: $428
- Association Fee Frequency: Monthly
- Association Fee 2: $70
- Association Fee 2 Frequency: Monthly
- Association Fee Includes: Clubhouse, Fitness Center, Receiving Room, Gated, Parking, Pool, Sauna, Spa/Hot Tub, Reserves, Maintenance Grounds, Maintenance Structure, Recycling, Road Maintenance, Sewer, Snow Removal, Trash, Water
Taxes
- Annual amount: $4,019.00
- Tax year: 2024
Senior Community
- No
Location
- City: Littleton
- County/Parrish: Arapahoe
Listing courtesy of: Megan Gibson, Realty One Group Platinum Elite Listing Agent Contact Information: [email protected]
MLS ID: REC9399898
Listings courtesy of REcolorado MLS as distributed by MLS GRID. Based on information submitted to the MLS GRID as of Mar 21, 2026, 01:34am PDT. All data is obtained from various sources and may not have been verified by broker or MLS GRID. Supplied Open House Information is subject to change without notice. All information should be independently reviewed and verified for accuracy. Properties may or may not be listed by the office/agent presenting the information. Properties displayed may be listed or sold by various participants in the MLS.
Centennial at RiverWalk Real Estate Agent
Want to learn more about Centennial at RiverWalk?
Here is the community real estate expert who can answer your questions, take you on a tour, and help you find the perfect home.
Get started today with your personalized 55+ search experience!
Want to learn more about Centennial at RiverWalk?
Get in touch with a community real estate expert who can answer your questions, take you on a tour, and help you find the perfect home.
Get started today with your personalized 55+ search experience!
Homes Sold:
55+ Homes Sold:
Sold for this Community:
Avg. Response Time:
Community Key Facts
Age Restrictions
- 55+
Amenities & Lifestyle
- See Centennial at RiverWalk amenities
- See Centennial at RiverWalk clubs, activities, and classes
Homes in Community
- Total Homes: 552
- Home Types: Condos
Gated
- No
Construction
- Construction Dates: 1985 - 2001
Similar homes in this community
Popular cities in Colorado
The following amenities are available to Centennial at RiverWalk - Littleton, CO residents:
- Clubhouse/Amenity Center
- Restaurant
- Fitness Center
- Outdoor Pool
- Ballroom
- Library
- Billiards
- Walking & Biking Trails
- Demonstration Kitchen
- Multipurpose Room
There are plenty of activities available in Centennial at RiverWalk. Here is a sample of some of the clubs, activities and classes offered here.
- Active Minds
- Bingo
- Bunco
- Chair Yoga
- Community Coffee
- Hand & Foot
- Laugh Out Loud
- Men's Golf
- Orientation
- Out-to-Dinner
- Pinochle
- Pizza & Movie
- Potluck Tuesday
- Resident Brunch
- RiverWalk Book Club
- Rummikub
- Sequence
- Social Group
- Tai Chi
- Train Dominoes
- Water Aerobics
- Wild Rummy




