- 3 beds
- 3 baths
- 2,958 sq ft
3695 New Haven Cir, Castle Rock, CO, 80109
Community: The Patios at The Meadows
-
Home type
Single family
-
Year built
2017
-
Lot size
5,227 sq ft
-
Price per sq ft
$203
-
Taxes
$4480 / Yr
-
HOA fees
$272 / Qtr
-
Last updated
1 day ago
-
Views
11
Questions? Call us: (720) 477-4680
Overview
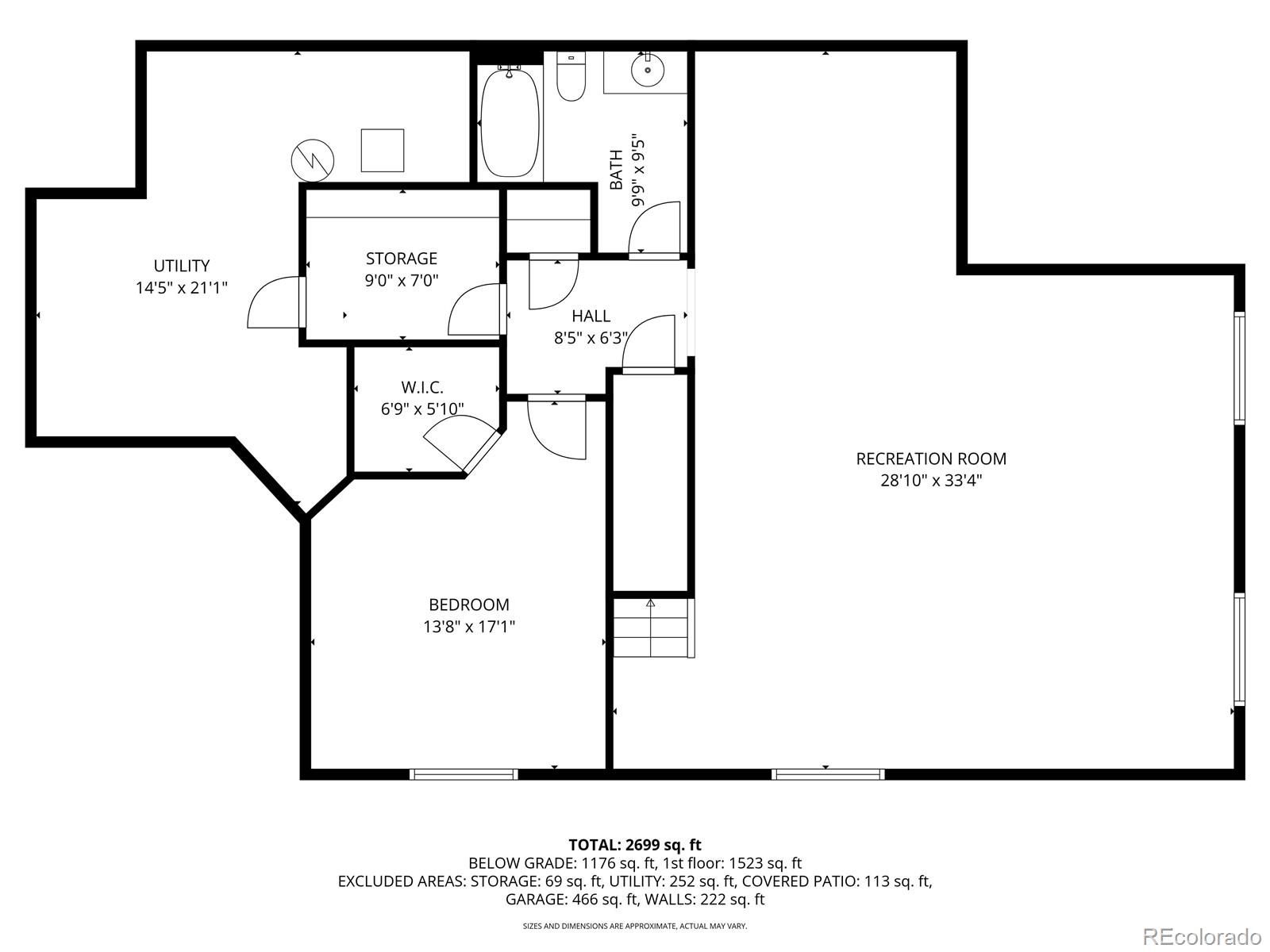
Priced to Sell!! Discover the ease of single-level living in this beautifully maintained ranch-style home in the sought-after New Haven neighborhood. Designed for comfort and convenience, this residence offers low-maintenance living with the HOA handling all landscaping—front and back—as well as snow removal, so you can simply relax and enjoy life. Exterior maintenance with roof coverage included as part of HOA as well! The spacious driveway and covered front porch welcomes you to this lovely home. Step inside to find soaring ceilings, spacious bedrooms, a versatile office or sitting room, two full baths, a dedicated dining area, and laundry—all on the main level. The primary suite features high ceilings, en-suite bath, double vanity & a large walk in closet. The open floor plan creates an inviting flow ideal for entertaining or quiet evenings at home. The gourmet kitchen features a large island, quartz countertops, stainless steel appliances, double ovens, a gas range & large dining area —perfect for both everyday meals & hosting gatherings. A stacked stone gas fireplace & built in shelves highlight the den. The finished basement adds valuable living space, with plenty of natural light, a large bedroom, a full bath, and a flexible area that’s pre-plumbed for a wet bar. Storage is abundant, including a finished storage room plus addl unfinished areas for all your keepsakes and hobbies. Enjoy morning coffee or sunset views from the private, covered back porch accessed through the sliding glass doors with automated blinds. The patio overlooks a peaceful greenbelt with no neighbors directly behind & mountain views to the west. 2 car attached garage with epoxy floors. Newer roof, new exterior paint. Perfectly located near AdventHealth Hospital, The Meadows Town Center, shops, restaurants, AMC movie theater, the Castle Rock Outlets, grocery, and nearby parks, this home offers the ideal balance of convenience and tranquility. community.
Interior
Appliances
- Convection Oven, Cooktop, Dishwasher, Disposal, Double Oven, Dryer, Microwave, Oven, Refrigerator, Washer
Bedrooms
- Bedrooms: 3
Bathrooms
- Total bathrooms: 3
- Three-quarter baths: 1
- Full baths: 2
Laundry
- In Unit
Cooling
- Central Air
Heating
- Forced Air, Natural Gas
Fireplace
- 1
Features
- Built-in Features, Ceiling Fan(s), Eat-in Kitchen, Entrance Foyer, High Ceilings, Kitchen Island, Open Floorplan, Pantry, Primary Suite, Quartz Countertops, Walk-In Closet(s)
Levels
- One
Size
- 2,958 sq ft
Exterior
Private Pool
- No
Patio & Porch
- Covered, Front Porch, Patio
Roof
- Composition
Garage
- Attached
- Garage Spaces: 2
- Concrete
Carport
- None
Year Built
- 2017
Lot Size
- 0.12 acres
- 5,227 sq ft
Waterfront
- No
Water Source
- Public
Sewer
- Public Sewer
Community Info
HOA Fee
- $272
- Frequency: Quarterly
- Includes: Clubhouse, Park, Playground, Pool, Tennis Court(s), Trail(s)
Taxes
- Annual amount: $4,480.00
- Tax year: 2024
Senior Community
- No
Location
- City: Castle Rock
- County/Parrish: Douglas
Listing courtesy of: The Thayer Group, Keller Williams Action Realty LLC Listing Agent Contact Information: [email protected],720-663-1224
MLS ID: REC6648452
Listings courtesy of REcolorado MLS as distributed by MLS GRID. Based on information submitted to the MLS GRID as of Nov 27, 2025, 01:31pm PST. All data is obtained from various sources and may not have been verified by broker or MLS GRID. Supplied Open House Information is subject to change without notice. All information should be independently reviewed and verified for accuracy. Properties may or may not be listed by the office/agent presenting the information. Properties displayed may be listed or sold by various participants in the MLS.
The Patios at The Meadows Real Estate Agent
Want to learn more about The Patios at The Meadows?
Here is the community real estate expert who can answer your questions, take you on a tour, and help you find the perfect home.
Get started today with your personalized 55+ search experience!
Want to learn more about The Patios at The Meadows?
Get in touch with a community real estate expert who can answer your questions, take you on a tour, and help you find the perfect home.
Get started today with your personalized 55+ search experience!
Homes Sold:
55+ Homes Sold:
Sold for this Community:
Avg. Response Time:
Community Key Facts
Age Restrictions
- None
Amenities & Lifestyle
- See The Patios at The Meadows amenities
- See The Patios at The Meadows clubs, activities, and classes
Homes in Community
- Total Homes: 153
- Home Types: Single-Family, Attached
Gated
- No
Construction
- Construction Dates: 2014 - 2018
- Builder: Ryland Homes, Cal Atlantic, Calatlantic Homes
Similar homes in this community
Popular cities in Colorado
The following amenities are available to The Patios at The Meadows - Castle Rock, CO residents:
- Clubhouse/Amenity Center
- Indoor Pool
- Outdoor Pool
- Ballroom
- Walking & Biking Trails
- Tennis Courts
- Horseshoe Pits
- Softball/Baseball Field
- Basketball Court
- Outdoor Amphitheater
- Parks & Natural Space
- Playground for Grandkids
- Soccer Fields
- Demonstration Kitchen
- Outdoor Patio
- Pet Park
- Picnic Area
- Multipurpose Room
- Rock Climbing Wall
There are plenty of activities available in The Patios at The Meadows. Here is a sample of some of the clubs, activities and classes offered here.
- Basics of Floral Design
- Bridge Group at The Grange
- Cake Decorating Class
- Cycling Club
- Dessert and Wine Pairing
- Exterior Paint Color Class
- Fabulous Freebees Class
- Holiday Parties
- Mixed Media Workshop
- Music in The Meadows
- Odette's Cuisine
- Paint Your Own Birdhouse
- Pinot and Pallettes
- The Meadows Hiking Club




