• Home type

    Single family

  • Year built

    2005

  • Lot size

    6,578 sq ft

  • Price per sq ft

    $203

  • Taxes

    $12 / Yr

  • HOA fees

    $272 / Mo

  • Last updated

    Today

  • Views

    10

  • Saves

    1


Questions? Call us: (863) 262-7998


Overview

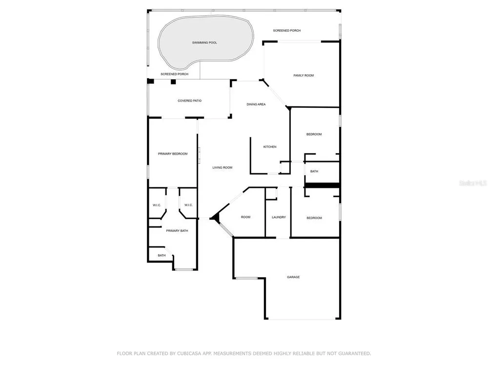
Welcome to this beautiful 3 bedroom PLUS an office, 2+ car garage SALT WATER pool home in the gated community of Carillon Lakes. This home screams pride of ownership from the curb. The manicured front lawn welcomes you in to the screened front entrance. The home boasts both a formal living room and a very large family room with a split bedroom floorplan. The bright master bedroom has an oversized en-suite bathroom. The bathroom has two walk-in closets, a dual sink vanity, jetted garden tub, walk-in shower, linen closet and private water closet. There are sliding doors that lead from the master to the pool deck. There are sliding doors from the living room, breakfast nook and family room that also leads out the the screened in pool. These sliders let in loads of natural light and offer amazing views of the wooded area behind the home. The kitchen has corian counters, wood cabinetry, small breakfast bar as well as the nook. Just off the kitchen is the spacious family room. The two guest bedrooms are both roomy and bright and share the second bathroom. The inside laundry leads to the oversized two car garage with an extra "bump" out perfect for storage or golf cart parking. Updates - All new irrigation system, New outdoor and POOL LED lighting that changes colors and has multiple modes.. New Pool pump and pool heater. New washer and dryer. New refrigerator and microwave. Roof and solar fans 2020, new windows 2019. This is a homeowner friendly HOA which includes Spectrum cable and wifi, grass maintenance (cut and edging included). Carillon Lakes offers residents a multitude of great amenities - a community pool/spa, fitness center, tennis courts, a recreation/reception hall, pickleball, a playground, billiard & card rooms, and even walking paths around the Lake! There is something for everyone in Carillon Lakes! Schedule your private tour today!


Interior

Appliances

  • Dishwasher, Disposal, Dryer, Microwave, Range, Refrigerator, Washer

Bedrooms

  • Bedrooms: 3

Bathrooms

  • Total bathrooms: 2
  • Full baths: 2

Laundry

  • Inside
  • Laundry Room

Cooling

  • Central Air

Heating

  • Central, Heat Pump

Fireplace

  • None

Features

  • Ceiling Fan(s), Eat-in Kitchen, High Ceilings, In-Wall Pest Control, Living/Dining Room, Open Floorplan, Main Level Primary, Solid Surface Counters, Solid-Wood Cabinets, Split Bedrooms, Walk-In Closet(s), Window Treatments

Levels

  • One

Size

  • 2,121 sq ft

Exterior

Private Pool

  • Yes

Roof

  • Shingle

Garage

  • Attached
  • Garage Spaces: 2

Carport

  • None

Year Built

  • 2005

Lot Size

  • 0.15 acres
  • 6,578 sq ft

Waterfront

  • No

Water Source

  • Public

Sewer

  • Public Sewer

Community Info

HOA Fee

  • $272
  • Frequency: Monthly

Taxes

  • Annual amount: $12.00
  • Tax year: 2024

Senior Community

  • No

Features

  • Street Lights

Location

  • City: Lakeland
  • County/Parrish: Polk
  • Township: 28

Listing courtesy of: Mike DelGrande, 1% LISTS CENTRAL FLORIDA, 727-967-9779

Source: Stellar
MLS ID: W7878009

Stellar

Listings courtesy of Stellar MLS as distributed by MLS GRID. Based on information submitted to the MLS GRID as of Oct 03, 2025, 12:35am PDT. All data is obtained from various sources and may not have been verified by broker or MLS GRID. Supplied Open House Information is subject to change without notice. All information should be independently reviewed and verified for accuracy. Properties may or may not be listed by the office/agent presenting the information. Properties displayed may be listed or sold by various participants in the MLS.


Carillon Lakes Real Estate Agent

Want to learn more about Carillon Lakes?

Here is the community real estate expert who can answer your questions, take you on a tour, and help you find the perfect home.

Get started today with your personalized 55+ search experience!

Want to learn more about Carillon Lakes?

Get in touch with a community real estate expert who can answer your questions, take you on a tour, and help you find the perfect home.

Get started today with your personalized 55+ search experience!

Homes Sold:

55+ Homes Sold:

Sold for this Community:

Avg. Response Time:

Global - Lead Form - Buyer Only
*55places does not provide or maintain community HOA information.
By requesting more information, you agree that 55places placeholder may call, text, or email you about your inquiry, which may be made with automated means (including recorded voice messages, SMS, or text messages). You understand that your consent is not a prerequisite for buying, selling or renting a property. You may revoke your consent at any time by contacting [email protected]. Message/data rates may apply. You also agree to 55places.com's Privacy Policy and Terms of Use.

Community Key Facts

Carillon Lakes

Age Restrictions

  • None

Amenities & Lifestyle

  • See Carillon Lakes amenities
  • See Carillon Lakes clubs, activities, and classes

Homes in Community

  • Total Homes: 650
  • Home Types: Single-Family, Attached

Gated

  • Yes

Construction

  • Construction Dates: 2000 - 2006
  • Builder: Florida Leisure Communities

Similar homes in this community Carillon Lakes

$319,900
3 Beds | 2 Baths | 1434 Sq. Ft.
MLS #L4955479
Remax Experts, Maria Santillo
$657,000
5 Beds | 4 Baths | 3461 Sq. Ft.
MLS #L4955562
Real Broker, Llc, Briana Isidore
$314,500
2 Beds | 2 Baths | 1722 Sq. Ft.
MLS #L4954498
Keller Williams Realty Smart, Joe Christian

Carillon Lakes Real Estate Agent

Want to learn more about Carillon Lakes?

Here is the community real estate expert who can answer your questions, take you on a tour, and help you find the perfect home.

Get started today with your personalized 55+ search experience!

Want to learn more about Carillon Lakes?

Get in touch with a community real estate expert who can answer your questions, take you on a tour, and help you find the perfect home.

Get started today with your personalized 55+ search experience!

Homes Sold:

55+ Homes Sold:

Sold for this Community:

Avg. Response Time:

Global - Lead Form - Buyer Only
*55places does not provide or maintain community HOA information.
By requesting more information, you agree that 55places placeholder may call, text, or email you about your inquiry, which may be made with automated means (including recorded voice messages, SMS, or text messages). You understand that your consent is not a prerequisite for buying, selling or renting a property. You may revoke your consent at any time by contacting [email protected]. Message/data rates may apply. You also agree to 55places.com's Privacy Policy and Terms of Use.

Agent Image
 

Community Expert

Call Us Call Us
Scroll to Top