• Year built

    2014

  • Price per sq ft

    $297

  • Taxes

    $10092 / Yr

  • HOA fees

    $314 / Mo

  • Last updated

    1 day ago

  • Views

    5

  • Saves

    1


Questions? Call us: (630) 716-3945


Overview

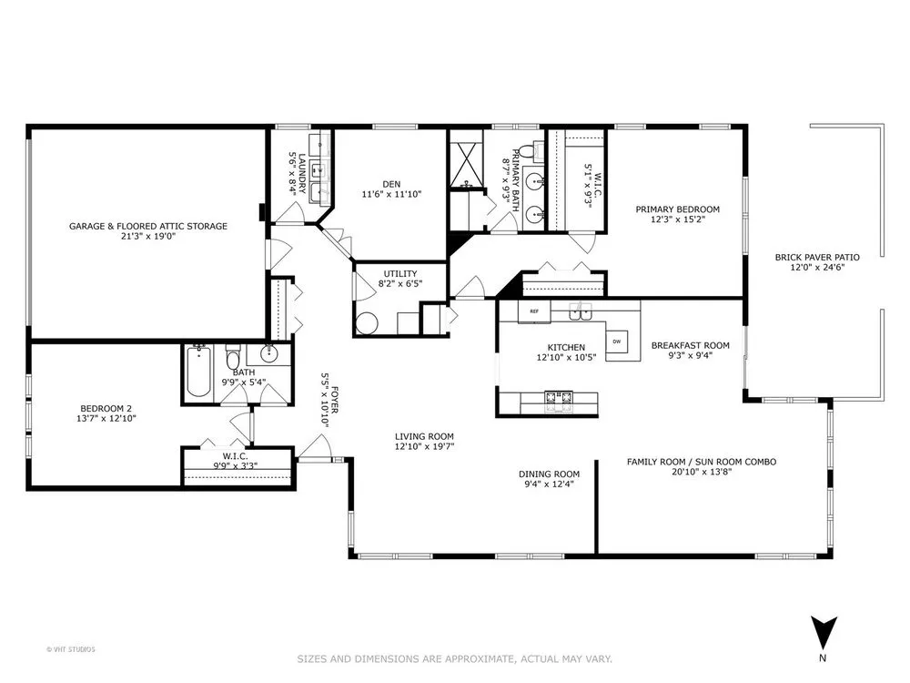
YOU'RE WAIT IS OVER @ CARILLON CLUB!! This ABSOLUTELY STUNNING 'Greenbriar' Model Features Unmatched Luxury, New Upgrades, New Updates, Mature Landscape, Great Location & Conveniences LIKE NO OTHER!! Nestled on a Lushly Landscaped Private Lot & only a short walk to the PREMIER 55+ ACTIVE RESORT STYLE CARILLON CLUBHOUSE, THIS HOME IS TRULY THE MOST SPECTACULAR Detached Home you will find with TRUE MAIN LEVEL LIVING, AN ABUNDANCE OF STORAGE RIGHT AT YOUR FINGERTIPS & EVEN MORE CONVENIENT STORAGE ABOVE THE GARAGE!! The Welcoming Covered Front Porch is just the right spot for morning coffee & greeting guests. Upon Entry you Will Fall in LOVE with the Large Foyer Featuring Gorgeous Walnut Hardwood Flooring, Neutral Paint & High-End Light Fixtures that expand throughout the Main Living Areas of this Beautiful Home. The *2020 New Kitchen Remodel is Exquisite - A Well Thought Out Desing, High-End Finishes & Timeless Design will Last a Lifetime - There is So Much Room Here to Entertain Family & Friends - The Living Room & Dining Room is a Perfect Spot for Large Gatherings with direct access to a Spacious Family & Sun Room Overlooking the Gorgeous 12'x25' Paver Patio & Tree Views - Private Primary Ensuite is ready for your R&R, 2 Closets, Spa Like Bathroom & Yet Another Deep Closet - Set at the Front of the home is a HUGE 2nd Bedroom, Walk-in Closet & 2nd Full Bathroom (the Greenbriar Model offers the LARGEST 2nd Bedroom of ALL Carillon Club Models) - WOW there's So Much More!! Perfectly Tucked Away is a Charming Den with Glass French Doors & the Perfect spot for work, crafts, sitting area ... the Options are Endless!! The Outdoor Living Space is Magnificent Featuring a Brick Paver Patio, Remote Awning & Views of Tranquility - THERE IS SO MUCH STORAGE HERE!! FLOORED ATTIC, PULL DOWN STAIRS & LIGHTS conveniently located above the Spacious 2 Car Garage - THIS HOME IS ONE OF A KIND, A RARE FIND & LIKE NO OTHER - * 2024 NEW HVAC SYSTEM + HUMIDIFIER * 2024 NEW 10 YR BATTERY SMOKE DETECTORS * 2020 NEW KITCHEN REMODEL * APPROX 2020 NEW 2ND BEDROOM, SUNROOM & PRIMARY BATHROOM DOUBLE HUNG WINDOWS * 2018 NEW LG REFRIGERATOR * NEWER WASHER/DRYER - METICULOUSLY MAINTAINED BY THE ORIGINAL OWNER & NOT A THING TO DO!! Don't miss your opportunity to own this beautiful home with all the upscale amenities you desire. CARILLON CLUB INCLUDES 24 HOUR GUARD/GATED ENTRY, LAWN & SNOW MAINTENANCE, CLUBHOUSE, INDOOR AND OUTDOOR POOLS, OUTDOOR GRANDCHILDREN'S POOL, 3 HOLE GOLF COURSE, WALKING PATHS, PONDS, PLAYGROUND, EXERCISE FACILITY, ACTIVITIES, TRIPS, CLUBS AND SO MUCH MORE .... THIS IS THE LIFE YOU'VE WORKED FOR!!!!


Interior

Appliances

  • Range, Microwave, Dishwasher, Refrigerator, Washer, Dryer, Disposal, Stainless Steel Appliance(s), Range Hood, Gas Oven, Humidifier

Bedrooms

  • Bedrooms: 2

Bathrooms

  • Total bathrooms: 2
  • Full baths: 2

Cooling

  • Central Air

Heating

  • Natural Gas

Fireplace

  • None

Features

  • Breakfast Room, Den, Entrance Foyer, Storage, Utility Room, Walk-In Closet(s), Other Room(s), Separate/Formal Dining Room

Levels

  • One

Size

  • 2,140 sq ft

Exterior

Private Pool

  • No

Roof

  • Asphalt

Garage

  • Garage Spaces: 2
  • Asphalt
  • Garage Door Opener
  • Garage
  • On Site
  • Attached

Carport

  • None

Year Built

  • 2014

Waterfront

  • No

Water Source

  • Lake Drawn

Sewer

  • Public Sewer

Community Info

HOA Fee

  • $314
  • Frequency: Monthly

Taxes

  • Annual amount: $10,092.00
  • Tax year: 2024

Senior Community

  • No

Features

  • Clubhouse, Park, Pool, Tennis Court(s), Lake, Curbs, Gated, Sidewalks, Street Lights, Paved Streets, Other

Location

  • City: Naperville
  • County/Parrish: Will
  • Township: Wheatland

Listing courtesy of: Angela Testa-Kerivan, Baird & Warner Listing Agent Contact Information: [email protected]

Source: Mred
MLS ID: 12413372

Mred

Based on information submitted to the MLS GRID as of Oct 14, 2025, 06:28am PDT. All data is obtained from various sources and may not have been verified by broker or MLS GRID. Supplied Open House Information is subject to change without notice. All information should be independently reviewed and verified for accuracy. Properties may or may not be listed by the office/agent presenting the information.


Carillon Club Real Estate Agent

Want to learn more about Carillon Club?

Here is the community real estate expert who can answer your questions, take you on a tour, and help you find the perfect home.

Get started today with your personalized 55+ search experience!

Want to learn more about Carillon Club?

Get in touch with a community real estate expert who can answer your questions, take you on a tour, and help you find the perfect home.

Get started today with your personalized 55+ search experience!

Homes Sold:

55+ Homes Sold:

Sold for this Community:

Avg. Response Time:

Global - Lead Form - Buyer Only
*55places does not provide or maintain community HOA information.
By requesting more information, you agree that 55places placeholder may call, text, or email you about your inquiry, which may be made with automated means (including recorded voice messages, SMS, or text messages). You understand that your consent is not a prerequisite for buying, selling or renting a property. You may revoke your consent at any time by contacting [email protected]. Message/data rates may apply. You also agree to 55places.com's Privacy Policy and Terms of Use.

Community Key Facts

Carillon Club

Age Restrictions

  • 55+

Amenities & Lifestyle

  • See Carillon Club amenities
  • See Carillon Club clubs, activities, and classes

Homes in Community

  • Total Homes: 778
  • Home Types: Attached, Condos, Single-Family

Gated

  • Yes

Construction

  • Construction Dates: 2006 - 2017
  • Builder: Cambridge Homes

Similar homes in this community Carillon Club

$500,000
2 Beds | 2 Baths | 1885 Sq. Ft.
MLS #12471150
Keller Williams Infinity, Steve Johnstone
$489,710
2 Beds | 2 Baths | 1467 Sq. Ft.
MLS #12488002
Re/max Action, Jeff Stainer
$567,000
2 Beds | 2 Baths | 2113 Sq. Ft.
MLS #12481177
Baird & Warner, Angela Testa-Kerivan

Carillon Club Real Estate Agent

Want to learn more about Carillon Club?

Here is the community real estate expert who can answer your questions, take you on a tour, and help you find the perfect home.

Get started today with your personalized 55+ search experience!

Want to learn more about Carillon Club?

Get in touch with a community real estate expert who can answer your questions, take you on a tour, and help you find the perfect home.

Get started today with your personalized 55+ search experience!

Homes Sold:

55+ Homes Sold:

Sold for this Community:

Avg. Response Time:

Global - Lead Form - Buyer Only
*55places does not provide or maintain community HOA information.
By requesting more information, you agree that 55places placeholder may call, text, or email you about your inquiry, which may be made with automated means (including recorded voice messages, SMS, or text messages). You understand that your consent is not a prerequisite for buying, selling or renting a property. You may revoke your consent at any time by contacting [email protected]. Message/data rates may apply. You also agree to 55places.com's Privacy Policy and Terms of Use.

Agent Image
 

Community Expert

Call Us Call Us
Scroll to Top