- 2 beds
- 2 baths
- 1,771 sq ft
4446 Branwen St, Rancho Cordova, CA, 95742
Community: Four Seasons at the Ranch
-
Home type
Single family
-
Year built
2025
-
Lot size
6,004 sq ft
-
Price per sq ft
$316
-
HOA fees
$265 / Mo
-
Last updated
1 day ago
-
Views
16
Questions? Call us: (916) 299-3913
Overview
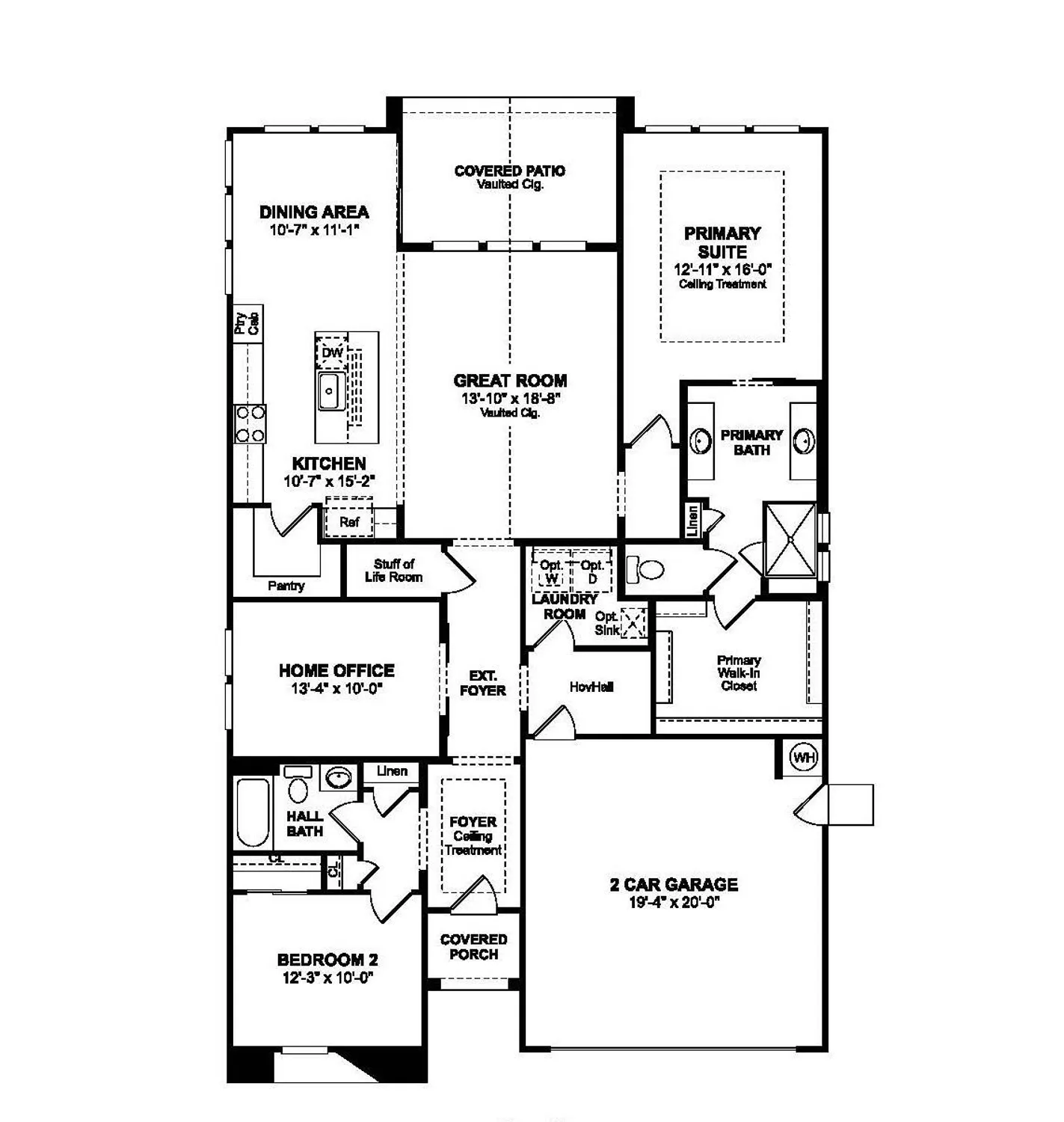
Experience the best of vibrant 55+ living at Four Seasons at The Ranch, where sophistication meets everyday comfort. The beautifully designed Astaire plan offers 2 bedrooms, 3 baths, and a private home office, perfectly balancing style, versatility, and ease. Inspired by our signature Loft design collection, this home showcases refined finishes and open living at its finest. The gourmet kitchen stands out with Quill-stained cabinetry, elegant marble-look quartz counters, and a generous island ideal for meal prep or casual gatherings. The kitchen flows effortlessly into the sunlit great room, where a dramatic vaulted ceiling adds a touch of grandeur. Enjoy peaceful moments or lively get-togethers on the expansive patio, thoughtfully crafted for year-round enjoyment. The private home office, framed by double barn doors, provides a quiet escape, while the split floor plan ensures the luxurious primary suite remains your personal haven complete with a spa-inspired bath. Designed for comfort, connection, and carefree living, this remarkable home lets you truly thrive every day. **Prices subject to change.
Interior
Appliances
- Built-In Electric Oven, Range Hood, Dishwasher, Disposal, Microwave, Plumbed For Ice Maker, ENERGY STAR Qualified Appliances, Free-Standing Electric Range
Bedrooms
- Bedrooms: 2
Bathrooms
- Total bathrooms: 2
- Full baths: 2
Laundry
- Electric
- Hookups Only
- Inside Room
Cooling
- Central Air
Heating
- Central
Fireplace
- None
Features
- Cathedral Ceiling(s), Bedroom on Main Level, Family Room Lower Level, Primary Bedroom, Full Bathroom, Half Bathroom, Kitchen, Lower-Level Entry
Levels
- One
Size
- 1,771 sq ft
Exterior
Private Pool
- No
Patio & Porch
- Front Porch, Covered Patio
Roof
- Tile
Garage
- Garage Spaces: 2
- Attached
- Garage Faces Front
Carport
- None
Year Built
- 2025
Lot Size
- 0.14 acres
- 6,004 sq ft
Waterfront
- No
Water Source
- Public
Sewer
- Public Sewer
Community Info
HOA Fee
- $265
- Frequency: Monthly
- Includes: Barbecue, Pool, Clubhouse, Dog Park, Game Court Interior, Tennis Court(s), Park
Senior Community
- Yes
Location
- City: Rancho Cordova
- County/Parrish: Sacramento
Listing courtesy of: Michelle H Nguyen, K. Hovnanian California Operations
MLS ID: 225136550
Every person who intends to view or use such MLS information agrees to Terms of Use that include substantially the following terms and conditions: All measurements and all calculations of area (i.e., Sq Ft and Acreage) are approximate. Broker has represented to MetroList that Broker has a valid listing signed by seller authorizing placement in the MLS. Above information is provided by Seller and/or other sources and has not been verified by Broker. Copyright 2025 MetroList Services, Inc. Information being provided by Metrolist Services, Inc. is for consumers' personal, non-commercial use and may not be used for any purpose other than to identify prospective properties consumers may be interested in purchasing.The following are terms of a legal agreement between you, the person viewing and/or using this Internet site ('User') and the operator ('Provider') of this Internet site ('Site'), By accessing, browsing and/or using this Site, User acknowledges that User has read ©MetroList Services, Inc. MLS Rules Effective Date May 1, 2016 understood, and agrees to be bound by these terms and to comply with all applicable laws and regulations, including but not limited to U.S. export and re-export control laws and regulations. If User does not agree to these terms, User is not authorized to use this Site. The material provided on this Site is protected by law, including, but not limited to, United States Copyright law and international treaties. User must be a prospective purchaser or seller of real estate with a bona fide interest in the purchase or sale of such real estate. All real estate data provided on this Site (including but not limited to descriptions, images, and other information constituting or relating to real estate listings) is strictly for the personal, private, non-commercial use of User and is not made available for redistribution, retransmission, reformatting, modification or copying. User may not sell or use any of the real estate data on this Site for any purpose other than attempting to evaluate houses or properties for sale or purchase by User. User acknowledges that the real estate data on this Site is provided by MetroList Services, Inc., a California corporation ('MetroList'), and User acknowledges the validity of MetroList's copyright as to such data. User expressly acknowledges and agrees that MetroList is a third-party beneficiary of these Terms of Use, and that MetroList will be entitled to enforce these Terms of Use against User. To the fullest extent permitted by law, the data on this Site is provided 'as is,' without warranty or representation of any kind, either express or implied, as to the nature, quality, characteristics or value of any property or information to which the data pertains. NEITHER PROVIDER NOR METROLIST MAKES ANY WARRANTIES, EXPRESS OR IMPLIED, REGARDING THE DATA DISPLAYED ON THIS SITE, INCLUDING, BUT NOT LIMITED TO, THE IMPLIED WARRANTIES OF MERCHANTABILITY AND FITNESS FOR A PARTICULAR PURPOSE, OR AS TO THE TIMELINESS, ACCURACY AND/OR COMPLETENESS OF THE DATA.NEITHER PROVIDER NOR METROLIST SHALL BE LIABLE FOR ANY INCIDENTAL, SPECIAL, CONSEQUENTIAL, INDIRECT, SPECIAL, PUNITIVE OR EXEMPLARY DAMAGES WHATSOEVER (INCLUDING WITHOUT LIMITATION, DAMAGES FOR LOSS OF BUSINESS INFORMATION, LOSS OF DATA, LOST PROFITS, LOSS OF CUSTOMERS OR OTHER PECUNIARY LOSS), ARISING OUT OF THE USE OR INABILITY TO USE THE DATA DISPLAYED ON THIS SITE, WHETHER THE CLAIM OR CAUSE OF ACTION ARISES IN TORT, CONTRACT, NEGLIGENCE, STRICT LIABILITY OR UNDER ANY OTHER LEGAL THEORY. User agrees that the prevailing party or parties in any action brought to enforce or for breach of these Terms of Use shall be entitled to recover, in addition to any other relief, that party’s or those parties’ reasonable attorney’s fees and court costs incurred in such action from the non-prevailing party or parties.
Four Seasons at the Ranch Real Estate Agent
Want to learn more about Four Seasons at the Ranch?
Here is the community real estate expert who can answer your questions, take you on a tour, and help you find the perfect home.
Get started today with your personalized 55+ search experience!
Want to learn more about Four Seasons at the Ranch?
Get in touch with a community real estate expert who can answer your questions, take you on a tour, and help you find the perfect home.
Get started today with your personalized 55+ search experience!
Homes Sold:
55+ Homes Sold:
Sold for this Community:
Avg. Response Time:
Community Key Facts
Age Restrictions
- 55+
Amenities & Lifestyle
- See Four Seasons at the Ranch amenities
- See Four Seasons at the Ranch clubs, activities, and classes
Homes in Community
- Total Homes: 704
- Home Types: Single-Family
Gated
- Yes
Construction
- Construction Dates: 2025 - Present
- Builder: K. Hovnanian Homes
Similar homes in this community
Popular cities in California
The following amenities are available to Four Seasons at the Ranch - Rancho Cordova, CA residents:
- Clubhouse/Amenity Center
- Multipurpose Room
- Fitness Center
- Indoor Pool
- Lounge
- Catering Kitchen
- Billiards
- Card Room
- Outdoor Pool
- Outdoor Patio
- Pickleball Courts
- Bocce Ball Courts
- BBQ
- Fire Pit
- Horseshoe Pits
- Walking & Biking Trails
There are plenty of activities available in Four Seasons at the Ranch. Here is a sample of some of the clubs, activities, and classes offered here.
- Bocce Ball
- Clubs
- Fitness Classes
- Holiday Gatherings
- Pickleball
- Special Events
- Swimming
- Walking




