-
Home type
Manufactured home
-
Year built
1987
-
Lot size
4,404 sq ft
-
Price per sq ft
$160
-
Taxes
$2600 / Yr
-
HOA fees
$185 / Mo
-
Last updated
Today
-
Views
5
Questions? Call us: (863) 825-7628
Overview
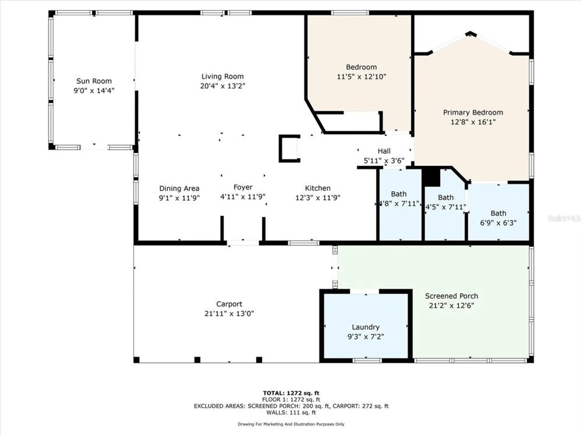
Assumable 5.62% FHA mortgage may be available for qualified buyers! Welcome to easy Florida living in the sought-after Colonnades, a 55+ community in Lakeland. This bright and welcoming 2-bedroom, 2-bath manufactured home offers a smart layout and a sunny Florida Room that’s perfect for sewing, crafting, or simply enjoying your morning coffee in the natural light. Inside, you’ll appreciate the open living area, generous bedrooms, and plenty of storage space. The roof was replaced in 2023, the AC was updated in 2017 — giving you added peace of mind. A carport with an attached storage room keeps things tidy and organized. Colonnades residents enjoy great active adult community amenities and a friendly neighborhood feel — all close to shopping, dining, and everything Lakeland has to offer. If you’re looking for low-maintenance living with a little extra sunshine, 4865 Goldenview Lane is ready for you to make it your own.
Interior
Appliances
- Dishwasher, Dryer, Microwave, Range, Range Hood, Refrigerator, Washer
Bedrooms
- Bedrooms: 2
Bathrooms
- Total bathrooms: 2
- Full baths: 2
Laundry
- Electric Dryer Hookup
- Laundry Room
- Washer Hookup
Cooling
- Central Air
Heating
- Central
Features
- Ceiling Fan(s), Open Floorplan, Main Level Primary
Levels
- One
Size
- 1,170 sq ft
Exterior
Private Pool
- No
Roof
- Shingle
Garage
- None
Carport
- Carport Spaces:
Year Built
- 1987
Lot Size
- 0.1 acres
- 4,404 sq ft
Waterfront
- No
Water Source
- Public
Sewer
- Public Sewer
Community Info
HOA Information
- Association Fee: $185
- Association Fee Frequency: Monthly
- Association Fee Includes: Cable TV, Clubhouse, Fence Restrictions, Fitness Center, Pool, Sauna, Shuffleboard Court, Spa/Hot Tub, Cable TV, Pool(s), Internet, Maintenance Grounds, Private Roads
Taxes
- Annual amount: $2,600.00
- Tax year: 2024
Senior Community
- Yes
Features
- Buyer Approval Required, Clubhouse, Community Mailbox, Deed Restrictions, Fitness Center, Gated, Pool
Location
- City: Lakeland
- County/Parrish: Polk
- Township: 29
Listing courtesy of: Kelly Smith, JOSEPH SULLIVAN REAL ESTATE, 813-898-7150
MLS ID: TB8410808
Listings courtesy of Stellar MLS as distributed by MLS GRID. Based on information submitted to the MLS GRID as of Feb 25, 2026, 02:40pm PST. All data is obtained from various sources and may not have been verified by broker or MLS GRID. Supplied Open House Information is subject to change without notice. All information should be independently reviewed and verified for accuracy. Properties may or may not be listed by the office/agent presenting the information. Properties displayed may be listed or sold by various participants in the MLS.
Colonnades Real Estate Agent
Want to learn more about Colonnades?
Here is the community real estate expert who can answer your questions, take you on a tour, and help you find the perfect home.
Get started today with your personalized 55+ search experience!
Want to learn more about Colonnades?
Get in touch with a community real estate expert who can answer your questions, take you on a tour, and help you find the perfect home.
Get started today with your personalized 55+ search experience!
Homes Sold:
55+ Homes Sold:
Sold for this Community:
Avg. Response Time:
Community Key Facts
Age Restrictions
- 55+
Amenities & Lifestyle
- See Colonnades amenities
- See Colonnades clubs, activities, and classes
Homes in Community
- Total Homes: 360
- Home Types: Single-Family, Manufactured
Gated
- Yes
Construction
- Construction Dates: 1985 - 1994
- Builder: Florida Leisure Communities
Similar homes in this community
Popular cities in Florida
The following amenities are available to Colonnades - Lakeland, FL residents:
- Clubhouse/Amenity Center
- Fitness Center
- Outdoor Pool
- Hobby & Game Room
- Card Room
- Arts & Crafts Studio
- Ballroom
- Library
- Billiards
- Walking & Biking Trails
- Shuffleboard Courts
- Lakes - Scenic Lakes & Ponds
- Lakes - Fishing Lakes
- Parks & Natural Space
- Outdoor Patio
- Steam Room/Sauna
- Golf Practice Facilities/Putting Green
- Picnic Area
- Gazebo
There are plenty of activities available in Colonnades. Here is a sample of some of the clubs, activities and classes offered here.
- Billiards
- Bingo
- Bowling
- Cards
- Community Events
- Crafts
- Euchre
- Fishing
- Flea Market
- Game Night
- Get Fit
- Hand & Foot
- Happy Hour
- Koffee Klatch
- Mah Jongg
- Painting
- Poker
- Seasonal Parties
- Shuffleboard
- Walk Aerobics




