-
Home type
Single family
-
Year built
1993
-
Lot size
12,144 sq ft
-
Price per sq ft
$176
-
Taxes
$4673 / Yr
-
HOA fees
$305 / Mo
-
Last updated
1 day ago
-
Views
3
Questions? Call us: (352) 675-2583
Overview
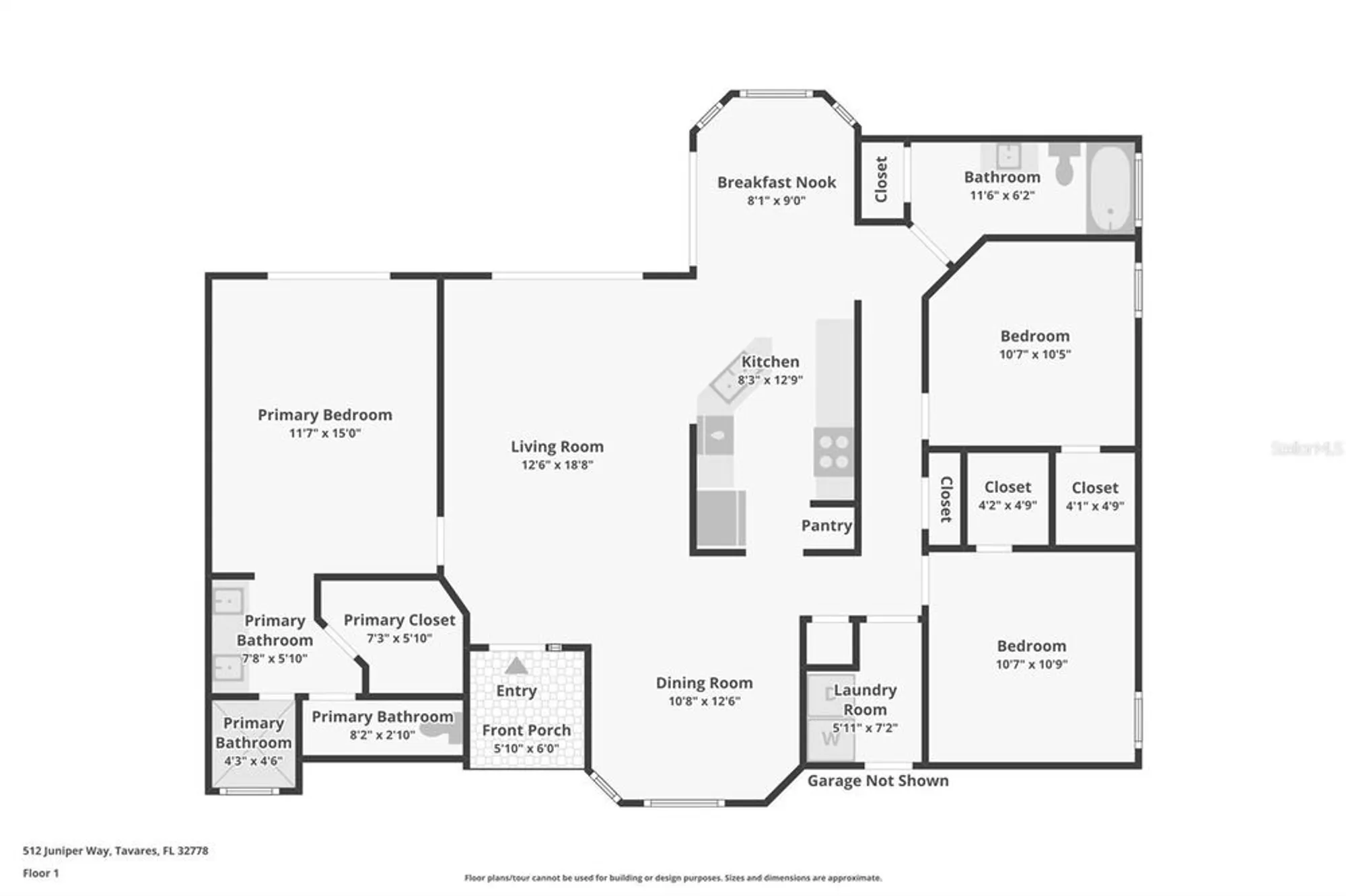
One or more photo(s) has been virtually staged. Experience the best of Florida living in this inviting home on a spacious corner lot in the desirable 55+ community of Baytree. Graceful oak trees, a circular driveway, and lush landscaping create a warm welcome. Inside, natural light and soaring vaulted ceilings enhance the open, flowing layout. New luxury vinyl plank flooring in soft, neutral tones and freshly painted interiors give the home a bright, modern feel. The thoughtfully designed kitchen features a cozy breakfast nook for easy mornings, while the adjacent dining room is ideal for entertaining. The open concept connects seamlessly to the family room and covered lanai, blending indoor and outdoor living for year-round enjoyment. The spacious owner’s suite is a private retreat with dual vanities, a walk-in shower, generous walk-in closet, and separate water closet. Two additional bedrooms, each with a walk-in closet, provides flexibility for guests, hobbies, or a home office. A separate laundry room and abundant storage add convenience. Recent updates include new ceiling fans, updated electrical and GFI outlets, smart thermostat, garbage disposal, water heater (2022), and roof (2018). At Baytree, everyday living feels like a getaway. The low-maintenance HOA covers lawn care, irrigation, landscaping, and annual exterior power washing, giving you more time to enjoy resort-style amenities, swimming, pickleball, fitness, and community gatherings at the clubhouse. Ideally located near downtown Tavares, you’ll be close to waterfront dining, boutique shopping, and lively entertainment. Whether you’re downsizing, wintering in the sunshine, or simply embracing a slower pace, 512 Juniper Way offers comfort, community, and carefree living.
Interior
Appliances
- Dishwasher, Disposal, Electric Water Heater, Microwave, Range, Refrigerator
Bedrooms
- Bedrooms: 3
Bathrooms
- Total bathrooms: 2
- Full baths: 2
Laundry
- Inside
- Laundry Room
Cooling
- Central Air
Heating
- Central, Electric
Features
- Ceiling Fan(s), High Ceilings, Open Floorplan, Main Level Primary, Smart Home, Thermostat, Vaulted Ceiling(s), Walk-In Closet(s)
Levels
- One
Size
- 1,625 sq ft
Exterior
Private Pool
- No
Patio & Porch
- Covered, Patio
Roof
- Shingle
Garage
- Attached
- Garage Spaces: 2
- Garage Door Opener
Carport
- None
Year Built
- 1993
Lot Size
- 0.28 acres
- 12,144 sq ft
Waterfront
- No
Water Source
- Public
Sewer
- Public Sewer
Community Info
HOA Information
- Association Fee: $305
- Association Fee Frequency: Monthly
- Association Fee Includes: Clubhouse, Fitness Center, Maintenance, Pickleball, Pool, Recreation Facilities, Spa/Hot Tub, Pool(s), Maintenance Grounds, Recreation Facilities
Taxes
- Annual amount: $4,672.71
- Tax year: 2025
Senior Community
- Yes
Features
- Buyer Approval Required, Clubhouse, Community Mailbox, Deed Restrictions, Fitness Center, Golf Carts Permitted, Pool
Location
- City: Tavares
- County/Parrish: Lake
- Township: 19S
Listing courtesy of: Alyse Carter, COLDWELL BANKER VANGUARD EDGE, 904-269-7117
MLS ID: G5104072
Listings courtesy of Stellar MLS as distributed by MLS GRID. Based on information submitted to the MLS GRID as of Feb 24, 2026, 06:22am PST. All data is obtained from various sources and may not have been verified by broker or MLS GRID. Supplied Open House Information is subject to change without notice. All information should be independently reviewed and verified for accuracy. Properties may or may not be listed by the office/agent presenting the information. Properties displayed may be listed or sold by various participants in the MLS.
Baytree Real Estate Agent
Want to learn more about Baytree?
Here is the community real estate expert who can answer your questions, take you on a tour, and help you find the perfect home.
Get started today with your personalized 55+ search experience!
Want to learn more about Baytree?
Get in touch with a community real estate expert who can answer your questions, take you on a tour, and help you find the perfect home.
Get started today with your personalized 55+ search experience!
Homes Sold:
55+ Homes Sold:
Sold for this Community:
Avg. Response Time:
Community Key Facts
Age Restrictions
- 55+
Amenities & Lifestyle
- See Baytree amenities
- See Baytree clubs, activities, and classes
Homes in Community
- Total Homes: 221
- Home Types: Single-Family, Attached
Gated
- No
Construction
- Construction Dates: 1990 - 2003
- Builder: D.R. Horton, Chesapeake Homes
Similar homes in this community
Popular cities in Florida
The following amenities are available to Baytree - Tavares, FL residents:
- Clubhouse/Amenity Center
- Golf Course
- Restaurant
- Fitness Center
- Outdoor Pool
- Ballroom
- Library
- Walking & Biking Trails
- Shuffleboard Courts
- Lakes - Scenic Lakes & Ponds
- Parks & Natural Space
- Demonstration Kitchen
- Outdoor Patio
- Picnic Area
- Multipurpose Room
There are plenty of activities available in Baytree. Here is a sample of some of the clubs, activities and classes offered here.
- BBQs
- Book Club
- Bridge
- Cards
- CERT
- Community Events
- Finance Committee
- Games
- Golf Scramble
- Golf Travel League
- Holiday Parties
- Ladies Golf
- Mah Jongg
- Men's Golf
- Newsletter
- Nominating Committee
- Poker
- Pool Exercise
- Sewing Group
- Shuffleboard
- Social Dinners
- Socials
- Sock Hop
- Stitch & Sew
- Sunshine Committee
- Swimming



