-
Home type
Single family
-
Year built
2006
-
Lot size
7,111 sq ft
-
Price per sq ft
$370
-
Taxes
$16526 / Yr
-
HOA fees
$157 / Annually
-
Last updated
1 day ago
-
Saves
2
Questions? Call us: (727) 591-6448
Overview
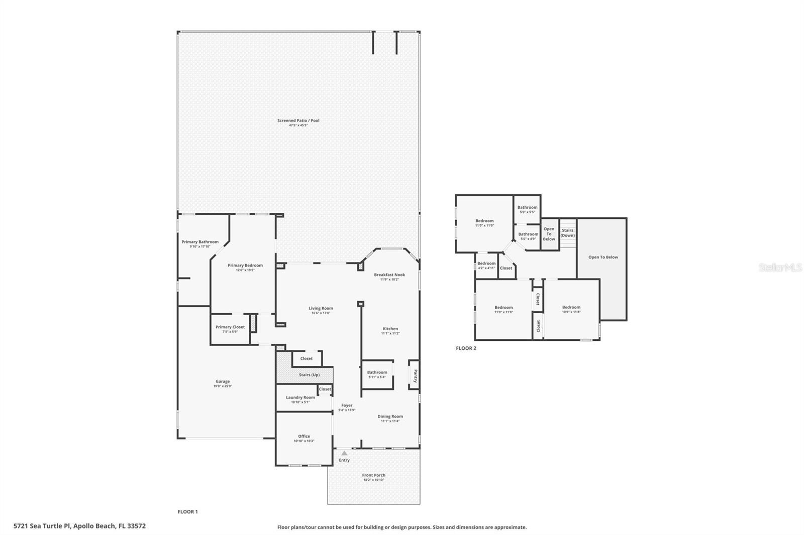
SELLERS ARE OFFERING A $10,000.00 CREDIT TOWARDS BUYERS' CLOSING COSTS WITH ACCEPTABLE CONTRACT. Exquisite waterfront, turn-key Florida style, 4 Bd/2.5 Bth home located in the exclusive resort style gated community of MiraBay in Apollo Beach! This house sits on a saltwater canal with easy access to Tampa Bay, the surrounding rivers, and the Gulf. Enjoy your 60 ft deep waterfront canal with seawall, 13k lb. boatlift, water, electricity, and ladder to access the canal, launch kayaks, paddleboards, or any other fun in the sun adventures. This home offers a low assumable flood insurance policy under $1,000 for the most recent year. If Florida hurricanes are your concern, new Hurricane impact windows were installed in 2024 & new Hurricane rated garage door with impact windows in 2025. Upon arrival notice the manicured lawn and tropical foliage. When entering you are greeted with beautiful wood flooring and custom archways which flow through various areas of the home. Love to cook and entertain! This kitchen answers all your wishes; stainless steel appliances, gas stove with double oven and center grill, Blue Sky Leathered Quartzite counter tops/2024 & blue subway backsplash tile/2024. Adjoining dining area and a breakfast bar overlooking your great room complete with volume ceilings. Also located on the first floor is the primary bedroom with a sitting area, walk-in closet and ensuite bathroom with a free-standing tub & separate stand-up shower. The first floor also has additional rooms for a formal dining room, office, or whatever suits your family’s needs. French doors from the great room lead to an expansive 1500 sq ft screened patio complete with a combo pool/spa, custom pavers, outdoor TV hook-up and an outdoor Mont Alpi 805 Deluxe Island 6-burner stainless steel grill that the sellers are leaving for you. The second floor overlooks the main floor, providing an open and airy feeling with high windows providing lots of light and features 3 additional bedrooms and a full bath. This home has too many features and upgrades to mention, NEST thermostats with smartphone app, remodeled laundry room with tub and cabinet, updated fixtures and lighting, tile flooring, ceiling fans, additional shelving for storage, countertop upgrades in bathrooms, new sinks, installed feature walls, roof/2021 etc. Let’s not forget about the MiraBay community which features a clubhouse with a cafe, fitness center, two resort style pools, pickle ball, tennis, basketball, and walking trails. This coastal community is minutes from supermarkets, fine dining, and a short drive to Downtown Tampa, St Petersburg, Bradenton, and Sarasota. Schedule your private showing today.
Interior
Appliances
- Dishwasher, Disposal, Dryer, Gas Water Heater, Ice Maker, Microwave, Range, Refrigerator, Washer, Water Softener
Bedrooms
- Bedrooms: 4
Bathrooms
- Total bathrooms: 3
- Half baths: 1
- Full baths: 2
Laundry
- Inside
- Laundry Room
Cooling
- Central Air
Heating
- Central
Fireplace
- None
Features
- Ceiling Fan(s), Eat-in Kitchen, High Ceilings, Open Floorplan, Main Level Primary, Smart Home, Solid-Wood Cabinets, Stone Counters, Walk-In Closet(s)
Levels
- Two
Size
- 2,620 sq ft
Exterior
Private Pool
- Yes
Patio & Porch
- Covered, Deck, Enclosed, Front Porch, Patio
Roof
- Shingle
Garage
- Attached
- Garage Spaces: 2
- Driveway
- Garage Door Opener
Carport
- None
Year Built
- 2006
Lot Size
- 0.16 acres
- 7,111 sq ft
Waterfront
- Yes
Water Source
- Public
Sewer
- Public Sewer
Community Info
HOA Fee
- $157
- Frequency: Annually
- Includes: Clubhouse, Fitness Center, Gated, Park, Pickleball, Playground, Pool, Recreation Facilities, Tennis Court(s)
Taxes
- Annual amount: $16,525.90
- Tax year: 2024
Senior Community
- No
Features
- Deed Restrictions, Fitness Center, Gated, Guarded Entrance, Park, Playground, Pool, Sidewalks, Tennis Court(s), Street Lights
Location
- City: Apollo Beach
- County/Parrish: Hillsborough
- Township: 31
Listing courtesy of: Arthur Lester, PA, COLDWELL BANKER REALTY, 813-286-6563
MLS ID: TB8409725
Listings courtesy of Stellar MLS as distributed by MLS GRID. Based on information submitted to the MLS GRID as of Nov 30, 2025, 10:01pm PST. All data is obtained from various sources and may not have been verified by broker or MLS GRID. Supplied Open House Information is subject to change without notice. All information should be independently reviewed and verified for accuracy. Properties may or may not be listed by the office/agent presenting the information. Properties displayed may be listed or sold by various participants in the MLS.
MiraBay Real Estate Agent
Want to learn more about MiraBay?
Here is the community real estate expert who can answer your questions, take you on a tour, and help you find the perfect home.
Get started today with your personalized 55+ search experience!
Want to learn more about MiraBay?
Get in touch with a community real estate expert who can answer your questions, take you on a tour, and help you find the perfect home.
Get started today with your personalized 55+ search experience!
Homes Sold:
55+ Homes Sold:
Sold for this Community:
Avg. Response Time:
Community Key Facts
Age Restrictions
- None
Amenities & Lifestyle
- See MiraBay amenities
- See MiraBay clubs, activities, and classes
Homes in Community
- Total Homes: 1,700
- Home Types: Single-Family
Gated
- Yes
Construction
- Construction Dates: 2003 - Present
- Builder: Multiple Builders, Park Square Homes, Bistro Builders
Similar homes in this community
Popular cities in Florida
The following amenities are available to MiraBay - Apollo Beach, FL residents:
- Clubhouse/Amenity Center
- Restaurant
- Fitness Center
- Outdoor Pool
- Tennis Courts
- Basketball Court
- Lakes - Scenic Lakes & Ponds
- Lakes - Boat Accessible
- Parks & Natural Space
- Playground for Grandkids
- Outdoor Patio
- Day Spa/Salon/Barber Shop
- Multipurpose Room
- Boat Launch
There are plenty of activities available in MiraBay. Here is a sample of some of the clubs, activities and classes offered here.
- Dragon Boat Club
- Mariners Club
- Neighborhood Watch
- Ballroom Dancing
- Soccer Club
- Bike Club
- Running Club
- Book Club
- Bridge
- Euchre
- Italian American Club




