- 2 beds
- 2 baths
- 1,200 sq ft
660 S Alton Way 7a, Denver, CO, 80247
Community: Windsor Gardens
-
Home type
Condominium
-
Year built
1969
-
Price per sq ft
$200
-
Taxes
$1064 / Yr
-
HOA fees
$623 / Mo
-
Last updated
1 day ago
-
Views
2
-
Saves
1
Questions? Call us: (720) 573-1094
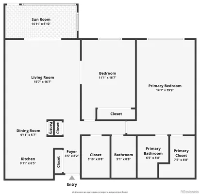
Overview
Yes, it’s another Windsor Gardens unit—but this one’s got a few tricks up its sleeve. **Seller is offering a $5,000 flooring allowance... so you can add the LVP of your dreams.** This well-maintained, freshly painted, 2-bedroom, 2-bathroom home offers 1,200 square feet of comfortable, easy living plus the rare luxury of not one, but two garages (#63 and #138 in Lot-13), conveniently located near the building entrance. That’s right—no epic treks with groceries required. The kitchen has had a solid glow-up, featuring oak cabinets, stainless steel appliances, quartz countertops, a fresh backsplash, and updated fixtures and lighting. It’s basically meal prep with style. Both bathrooms are updated, too—solid surface countertops, freshly painted vanities, brand new toilets, and upgraded lighting. The primary bedroom includes its own 3/4 bath, making mornings just a bit smoother. The enclosed, south-facing lanai is a cozy bonus space with double-pane glass/vinyl windows and shades—perfect for your morning coffee or plant collection, all with peaceful views of greenery. Living in Windsor Gardens means you’re not just buying a home—you’re joining a vibrant 55+ community with a 9-hole par-3 golf course, indoor and outdoor pools, a fitness center, classes, a restaurant, and more. Plus, the HOA covers pretty much everything: taxes, capital reserves, heat, water, sewer, trash, and 24-hour security. This cheerful, well-sized home with rare double garages is a sweet spot in one of Denver’s most sought-after active adult communities. Don’t miss out!
Interior
Appliances
- Dishwasher, Disposal, Microwave, Oven, Refrigerator
Bedrooms
- Bedrooms: 2
Bathrooms
- Total bathrooms: 2
- Three-quarter baths: 1
- Full baths: 1
Laundry
- Common Area
Cooling
- Air Conditioning, 2 Wall AC Units
Heating
- Baseboard, Hot Water
Features
- Ceiling Fan(s), Eat-in Kitchen, Primary Suite, Quartz Countertops, Walk-In Closet(s)
Levels
- One
Size
- 1,200 sq ft
Exterior
Private Pool
- No
Patio & Porch
- Covered
Roof
- Other
Garage
- Garage Spaces: 2
Carport
- None
Year Built
- 1969
Waterfront
- No
Water Source
- Public
Sewer
- Public Sewer
Community Info
HOA Information
- Association Fee: $623
- Association Fee Frequency: Monthly
- Association Fee Includes: Clubhouse, Elevator(s), Fitness Center, Golf Course, Pool, Security, Trail(s), Heat, Insurance, Maintenance Grounds, Sewer, Snow Removal, Trash, Water
Taxes
- Annual amount: $1,064.00
- Tax year: 2023
Senior Community
- Yes
Location
- City: Denver
- County/Parrish: Denver
Listing courtesy of: Treana Bennett, Sterling Real Estate Group Inc Listing Agent Contact Information: [email protected],720-833-8588
MLS ID: REC4454287
Listings courtesy of REcolorado MLS as distributed by MLS GRID. Based on information submitted to the MLS GRID as of Feb 25, 2026, 05:43am PST. All data is obtained from various sources and may not have been verified by broker or MLS GRID. Supplied Open House Information is subject to change without notice. All information should be independently reviewed and verified for accuracy. Properties may or may not be listed by the office/agent presenting the information. Properties displayed may be listed or sold by various participants in the MLS.
Windsor Gardens Real Estate Agent
Want to learn more about Windsor Gardens?
Here is the community real estate expert who can answer your questions, take you on a tour, and help you find the perfect home.
Get started today with your personalized 55+ search experience!
Want to learn more about Windsor Gardens?
Get in touch with a community real estate expert who can answer your questions, take you on a tour, and help you find the perfect home.
Get started today with your personalized 55+ search experience!
Homes Sold:
55+ Homes Sold:
Sold for this Community:
Avg. Response Time:
Community Key Facts
Age Restrictions
- 55+
Amenities & Lifestyle
- See Windsor Gardens amenities
- See Windsor Gardens clubs, activities, and classes
Homes in Community
- Total Homes: 2,689
- Home Types: Attached, Condos
Gated
- No
Construction
- Construction Dates: 1962 - 1973
- Builder: EDI
Similar homes in this community
Popular cities in Colorado
The following amenities are available to Windsor Gardens - Denver, CO residents:
- Clubhouse/Amenity Center
- Golf Course
- Fitness Center
- Indoor Pool
- Outdoor Pool
- Aerobics & Dance Studio
- Card Room
- Arts & Crafts Studio
- Lapidary Studio
- Stained Glass Studio
- Woodworking Shop
- Ballroom
- Performance/Movie Theater
- Library
- Billiards
- Walking & Biking Trails
- Bocce Ball Courts
- Shuffleboard Courts
- Horseshoe Pits
- Lakes - Scenic Lakes & Ponds
- R.V./Boat Parking
- Gardening Plots
- Outdoor Patio
- Steam Room/Sauna
- Golf Practice Facilities/Putting Green
- Picnic Area
- On-site Retail
- Multipurpose Room
- Business Center
There are plenty of activities available in Windsor Gardens. Here is a sample of some of the clubs, activities and classes offered here.
- Artists
- Bridge Clubs
- Canasta
- Children's Hospital Guild
- Colorado Symphony Guild
- Computers
- Democratic Book Club
- Democratics
- East High Angels
- Euchre
- Gates Retirees
- Genaology
- Glass Slumping
- Horseshoes
- Marine Corps League
- Men's Club
- New Garments Always
- Photography
- Republicans
- Single Friendship Group
- The Lunch Bunch
- Watercolor
- Women's Club
- Writers Group




