• Home type

    Adult community

  • Year built

    2025

  • Lot size

    1,307 sq ft

  • Price per sq ft

    $344

  • Taxes

    $2238 / Yr

  • HOA fees

    $380 / Mo

  • Last updated

    Today

  • Views

    23


Questions? Call us: (848) 301-1019


Overview

Be in your New Home for 2026! Enjoy maintenance-free, carefree lifestyle, two-story living at the Venue at Monroe! This gated active adult community offers a vibrant lifestyle with a stunning 23,000 sq. ft. clubhouse, indoor & outdoor pools, tennis, pickleball, bocce, dog parks, amphitheater, community garden & more. The Apollo is the perfect blend of open-concept comfort and charm, featuring white shaker cabinets, Quartz countertops, hardwood floors, a gourmet kitchen, outdoor living space, gas fireplace, washer, dryer, refrigerator & more—all included! One resident must be 55+ (no one under 48 as a permanent resident). As a resident, you'll have exclusive access to a spectacular 23,000 square foot state-of-the-art clubhouse offering a full social calendar to enjoy so many activities.


Interior

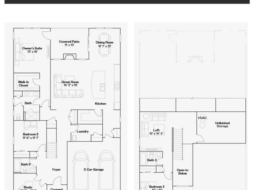
Bedrooms

  • Bedrooms: 3

Bathrooms

  • Total bathrooms: 3
  • Full baths: 3

Cooling

  • Central Air

Heating

  • Natural Gas, Forced Air

Fireplace

  • 1

Features

  • Attic - Pull Down Stairs, Bonus Room, Ceilings - 9Ft+ 1st Flr, Center Hall, Loft, Eat-in Kitchen, Recessed Lighting

Levels

  • 2 Story

Size

  • 2,400 sq ft

Exterior

Private Pool

  • No

Patio & Porch

  • Patio

Roof

  • Shingle

Garage

  • Attached
  • Garage Spaces: 2
  • Direct Access
  • Asphalt
  • Double Wide Drive
  • Driveway

Carport

  • None

Year Built

  • 2025

Lot Size

  • 0.03 acres
  • 1,307 sq ft

Waterfront

  • No

Water Source

  • Public

Sewer

  • Public Sewer

Community Info

HOA Fee

  • $380
  • Frequency: Monthly
  • Includes: Tennis Court(s), Spa/Hot Tub, Management, Association, Exercise Room, Community Room, Swimming, Pool, Clubhouse, Common Area, Jogging Path, Landscaping, Bocci

Taxes

  • Annual amount: $2,238.00
  • Tax year: 2024

Senior Community

  • Yes

Location

  • City: Monroe
  • County/Parrish: Middlesex

Listing courtesy of: Debra A Glatz, Lennar Sales Corp. Listing Agent Contact Information: [email protected]

Source: Mocar
MLS ID: 22531714

Mocar

© 2025 Monmouth Ocean Regional REALTORS (MORMLS). All rights reserved. The data relating to real estate for sale on this website comes in part from the IDX Program of the Monmouth Ocean Regional REALTORS (MORMLS). The data is deemed reliable but not guranteed accurate by Monmouth Ocean Regional REALTORS (MORMLS). Listing information is intended only for personal, non-commercial use and may not be used for any purpose other than to identify prospective properties consumers may be interested in purchasing.


Venue at Monroe Real Estate Agent

Want to learn more about Venue at Monroe?

Here is the community real estate expert who can answer your questions, take you on a tour, and help you find the perfect home.

Get started today with your personalized 55+ search experience!

Want to learn more about Venue at Monroe?

Get in touch with a community real estate expert who can answer your questions, take you on a tour, and help you find the perfect home.

Get started today with your personalized 55+ search experience!

Homes Sold:

55+ Homes Sold:

Sold for this Community:

Avg. Response Time:

Global - Lead Form - Buyer Only
*55places does not provide or maintain community HOA information.
By requesting more information, you agree that 55places placeholder may call, text, or email you about your inquiry, which may be made with automated means (including recorded voice messages, SMS, or text messages). You understand that your consent is not a prerequisite for buying, selling or renting a property. You may revoke your consent at any time by contacting [email protected]. Message/data rates may apply. You also agree to 55places.com's Privacy Policy and Terms of Use.

Community Key Facts

Venue at Monroe

Age Restrictions

  • 55+

Amenities & Lifestyle

  • See Venue at Monroe amenities
  • See Venue at Monroe clubs, activities, and classes

Homes in Community

  • Total Homes: 587
  • Home Types: Single-Family, Attached

Gated

  • Yes

Construction

  • Construction Dates: 2019 - Present
  • Builder: Lennar Homes

Similar homes in this community Venue at Monroe

$818,240
3 Beds | 3 Baths | 2700 Sq. Ft.
MLS #22531712
Lennar Sales Corp., Debra A Glatz
$724,590
2 Beds | 2 Baths | 1800 Sq. Ft.
MLS #22531307
Lennar Sales Corp., Debra A Glatz
$699,999
3 Beds | 3 Baths | 2111 Sq. Ft.
MLS #2601294R
Green Light Realty Llc, GREEN LIGHT REALTY LLC

Venue at Monroe Real Estate Agent

Want to learn more about Venue at Monroe?

Here is the community real estate expert who can answer your questions, take you on a tour, and help you find the perfect home.

Get started today with your personalized 55+ search experience!

Want to learn more about Venue at Monroe?

Get in touch with a community real estate expert who can answer your questions, take you on a tour, and help you find the perfect home.

Get started today with your personalized 55+ search experience!

Homes Sold:

55+ Homes Sold:

Sold for this Community:

Avg. Response Time:

Global - Lead Form - Buyer Only
*55places does not provide or maintain community HOA information.
By requesting more information, you agree that 55places placeholder may call, text, or email you about your inquiry, which may be made with automated means (including recorded voice messages, SMS, or text messages). You understand that your consent is not a prerequisite for buying, selling or renting a property. You may revoke your consent at any time by contacting [email protected]. Message/data rates may apply. You also agree to 55places.com's Privacy Policy and Terms of Use.

Agent Image
 

Community Expert

Call Us Call Us
Scroll to Top