- 3 beds
- 2 baths
- 1,914 sq ft
73 Skull Creek Dr C318, Hilton Head Island, SC, 29926
Community: Hilton Head Plantation
-
Home type
Condominium
-
Year built
1985
-
Price per sq ft
$433
-
Last updated
Today
-
Views
12
Questions? Call us: (843) 773-4172
Overview
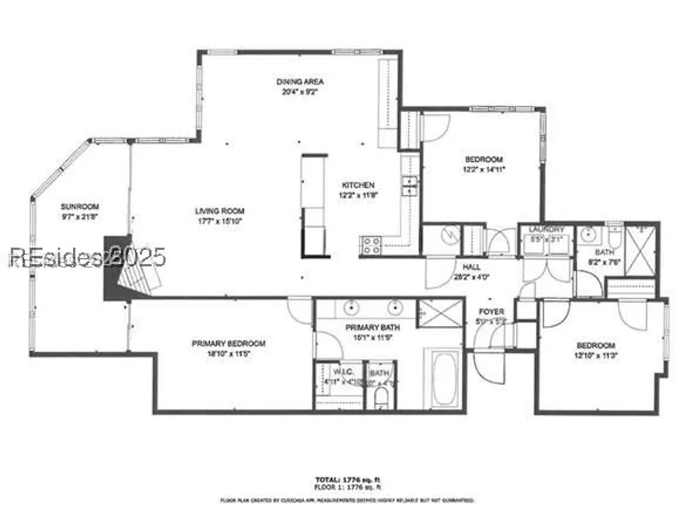
A beautiful Sunset view from this top floor end unit villa C318. Open floor plan 3 bedroom, 2 bath, hardwood floors, lovely cabinetry with granite, in the remodeled kitchen. The living room has a fireplace and opens to a large 218 sqft Carolina room, heated and cooled with newly installed hurricane rated tinted windows,2 Full baths completely remodeled. A private pool and tennis court. Boaters walk to Skull Creek Marina. Enjoy all Hilton Head Plantation Amenities, including a lazy-river pool. A lovely villa and a perfect location. Don’t miss this Opportunity!
Interior
Appliances
- Dryer, Dishwasher, Microwave, Refrigerator, Self Cleaning Oven, Washer
Bedrooms
- Bedrooms: 3
Cooling
- Central Air, Electric
Heating
- Electric, Heat Pump
Fireplace
- None
Features
- Attic Access, Ceiling Fan(s), Fireplace, Jetted Tub, Pull Down Attic Stairs, Smooth Ceilings, Separate Shower, Cable TV, Window Treatments, Entrance Foyer, Eat-in Kitchen
Size
- 1,914 sq ft
Exterior
Private Pool
- No
Patio & Porch
- Enclosed, Patio, Porch, Screened
Roof
- Asphalt
Garage
- None
Carport
- None
Year Built
- 1985
Waterfront
- No
Water Source
- Public
Community Info
Senior Community
- No
Location
- City: Hilton Head Island
- County/Parrish: Beaufort
Listing courtesy of: Joan Sambuchino, RE/MAX Island Realty (521) Listing Agent Contact Information: 843-422-4698
MLS ID: 444999
We do not attempt to independently verify the currency, completeness, accuracy or authenticity of the data contained herein. All area measurements and calculations are approximate and should be independently verified. Data may be subject to transcription and transmission errors. Accordingly, the data is provided on an ”as is” ”as available” basis only and may not reflect all real estate activity in the market. © [2023] REsides, Inc. All rights reserved. Certain information contained herein is derived from information, which is the licensed property of, and copyrighted by, REsides, Inc.
Hilton Head Plantation Real Estate Agent
Want to learn more about Hilton Head Plantation?
Here is the community real estate expert who can answer your questions, take you on a tour, and help you find the perfect home.
Get started today with your personalized 55+ search experience!
Want to learn more about Hilton Head Plantation?
Get in touch with a community real estate expert who can answer your questions, take you on a tour, and help you find the perfect home.
Get started today with your personalized 55+ search experience!
Homes Sold:
55+ Homes Sold:
Sold for this Community:
Avg. Response Time:
Community Key Facts
Age Restrictions
- None
Amenities & Lifestyle
- See Hilton Head Plantation amenities
- See Hilton Head Plantation clubs, activities, and classes
Homes in Community
- Total Homes: 4,278
- Home Types: Single-Family, Attached, Condos
Gated
- Yes
Construction
- Construction Dates: 1973 - 2020
- Builder: Multiple Builders
Similar homes in this community
Popular cities in South Carolina
The following amenities are available to Hilton Head Plantation - Hilton Head Island, SC residents:
- Clubhouse/Amenity Center
- Fitness Center
- Outdoor Pool
- Hobby & Game Room
- Walking & Biking Trails
- Tennis Courts
- Bocce Ball Courts
- Shuffleboard Courts
- Horseshoe Pits
- Softball/Baseball Field
- Volleyball Court
- Lakes - Scenic Lakes & Ponds
- Lakes - Fishing Lakes
- Gardening Plots
- Parks & Natural Space
- Playground for Grandkids
- Soccer Fields
- Demonstration Kitchen
- Outdoor Patio
- Picnic Area
- Multipurpose Room
- Gazebo
- BBQ
- Fire Pit
There are plenty of activities available in Hilton Head Plantation. Here is a sample of some of the clubs, activities and classes offered here.
- Aerobics
- Alley Gators
- Artists Association
- Avid Gardeners
- Beginners Pilates
- Big Wheels Bike Club
- Bocce Ball Club
- Book Club
- Bridge Lessons
- Bunco
- Caregivers Support Group
- Chair Yoga
- Cheers by the Sound
- Community Blood Drive
- Craft Workshop
- Dance Club
- Dog Club
- Euchre
- Farmers Club
- Fishing Club
- Gentle Yoga
- Green Thumbers
- Happy Times Society
- Heels on Wheels
- HHP Artists
- HHP Big Band
- Holiday Hayride
- Holiday Lighting Contest
- Informal Bridge
- Island Hoppers
- Keyboard Club
- Knit Wits
- Ladies Bridge
- Land Trust
- Macriobiotic
- Mah Jongg
- Marathon Bridge
- Men's Bridge
- Men's Cards
- Men's Cooking
- Newcomers Club
- Out-to-Lunch Bunch
- Painters
- Pickleball Club
- Pilates
- SL Tennis
- Softball
- Team Bridge
- Tee Timers
- Tennis Social Club
- The Lucky Shots
- Total Body Fitness
- Turkey Trot
- Vino Formaggio
- Women's Club
- Woodcarvers
- Yacht Club
- Zumba




