-
Home type
Condominium
-
Year built
1963
-
Price per sq ft
$169
-
Taxes
$279 / Yr
-
HOA fees
$452 / Mo
-
Last updated
Today
-
Views
4
-
Saves
4
Questions? Call us: (720) 573-1094
Overview
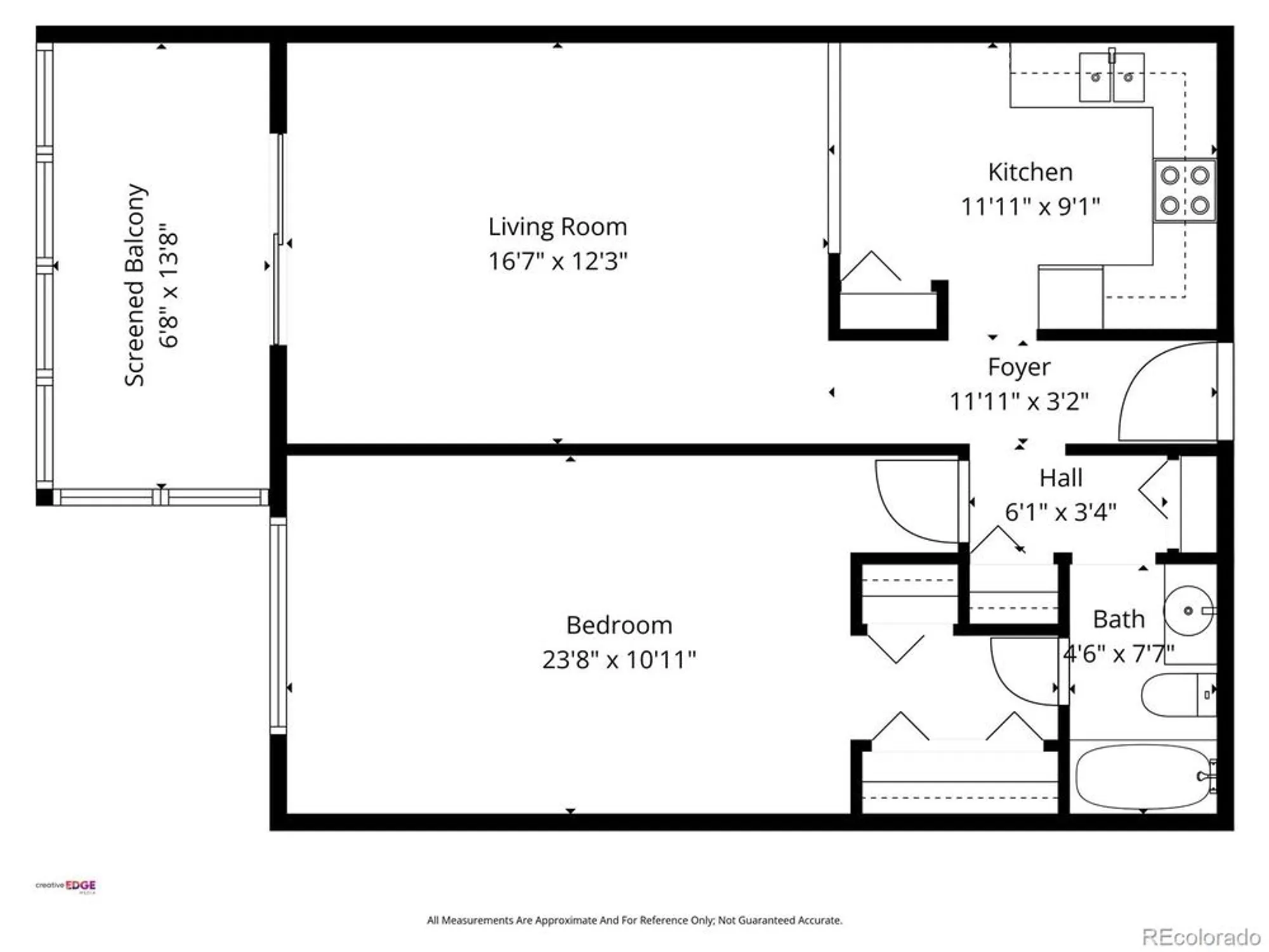
Best Value in Windsor Gardens! Don’t miss this incredible opportunity—the lowest-priced condo in all of Windsor Gardens! This move-in ready, top-floor (no one above you!) home is located in one of the desirable two-story buildings and offers unbeatable value. Step inside to a bright, open floor plan filled with natural light from abundant windows. Fresh paint and recently cleaned carpet make this home feel fresh and inviting. The spacious living area flows seamlessly to a large, covered patio—perfect for relaxing or entertaining in comfort. The sought-after layout includes a generous primary bedroom with a large en suite bathroom and ample closet space. The kitchen opens to the living room and sun-room, creating a warm and connected living space that’s ideal for both everyday living and hosting guests. Additional features include a reserved parking space and a comprehensive HOA that covers heat, water, property taxes, activities, clubhouse access, and even a 24-hour community response team. Enjoy all that Windsor Gardens has to offer in this well-maintained, move-in ready home—priced to sell and ready for you!
Interior
Appliances
- Microwave, Range, Refrigerator
Bedrooms
- Bedrooms: 1
Bathrooms
- Total bathrooms: 1
- Full baths: 1
Laundry
- Common Area
Cooling
- Air Conditioning
Heating
- Baseboard, Hot Water
Features
- Open Floorplan
Levels
- One
Size
- 712 sq ft
Exterior
Private Pool
- No
Garage
- None
Carport
- None
Year Built
- 1963
Waterfront
- No
Water Source
- Public
Sewer
- Public Sewer
Community Info
HOA Information
- Association Fee: $452
- Association Fee Frequency: Monthly
- Association Fee Includes: Bike Storage, Business Center, Clubhouse, Fitness Center, Garden Area, Golf Course, On Site Manager/Engineer, Parking, Pool, Gas, Heat, Maintenance Grounds, Maintenance Structure, Recycling, Security, Sewer, Snow Removal, Trash, Water
Taxes
- Annual amount: $279.00
- Tax year: 2024
Senior Community
- Yes
Location
- City: Denver
- County/Parrish: Denver
Listing courtesy of: Leo Rowen, RE/MAX of Cherry Creek Listing Agent Contact Information: [email protected],303-521-0360
MLS ID: REC5039365
Listings courtesy of REcolorado MLS as distributed by MLS GRID. Based on information submitted to the MLS GRID as of Mar 21, 2026, 01:34am PDT. All data is obtained from various sources and may not have been verified by broker or MLS GRID. Supplied Open House Information is subject to change without notice. All information should be independently reviewed and verified for accuracy. Properties may or may not be listed by the office/agent presenting the information. Properties displayed may be listed or sold by various participants in the MLS.
Windsor Gardens Real Estate Agent
Want to learn more about Windsor Gardens?
Here is the community real estate expert who can answer your questions, take you on a tour, and help you find the perfect home.
Get started today with your personalized 55+ search experience!
Want to learn more about Windsor Gardens?
Get in touch with a community real estate expert who can answer your questions, take you on a tour, and help you find the perfect home.
Get started today with your personalized 55+ search experience!
Homes Sold:
55+ Homes Sold:
Sold for this Community:
Avg. Response Time:
Community Key Facts
Age Restrictions
- 55+
Amenities & Lifestyle
- See Windsor Gardens amenities
- See Windsor Gardens clubs, activities, and classes
Homes in Community
- Total Homes: 2,689
- Home Types: Attached, Condos
Gated
- No
Construction
- Construction Dates: 1962 - 1973
- Builder: EDI
Similar homes in this community
Popular cities in Colorado
The following amenities are available to Windsor Gardens - Denver, CO residents:
- Clubhouse/Amenity Center
- Golf Course
- Fitness Center
- Indoor Pool
- Outdoor Pool
- Aerobics & Dance Studio
- Card Room
- Arts & Crafts Studio
- Lapidary Studio
- Stained Glass Studio
- Woodworking Shop
- Ballroom
- Performance/Movie Theater
- Library
- Billiards
- Walking & Biking Trails
- Bocce Ball Courts
- Shuffleboard Courts
- Horseshoe Pits
- Lakes - Scenic Lakes & Ponds
- R.V./Boat Parking
- Gardening Plots
- Outdoor Patio
- Steam Room/Sauna
- Golf Practice Facilities/Putting Green
- Picnic Area
- On-site Retail
- Multipurpose Room
- Business Center
There are plenty of activities available in Windsor Gardens. Here is a sample of some of the clubs, activities and classes offered here.
- Artists
- Bridge Clubs
- Canasta
- Children's Hospital Guild
- Colorado Symphony Guild
- Computers
- Democratic Book Club
- Democratics
- East High Angels
- Euchre
- Gates Retirees
- Genaology
- Glass Slumping
- Horseshoes
- Marine Corps League
- Men's Club
- New Garments Always
- Photography
- Republicans
- Single Friendship Group
- The Lunch Bunch
- Watercolor
- Women's Club
- Writers Group




