- 1 bed
- 1 bath
- 600 sq ft
7625 Sun Island Dr 106, South Pasadena, FL, 33707
Community: Bay Island
-
Home type
Condominium
-
Year built
1973
-
Lot size
20,479 sq ft
-
Price per sq ft
$258
-
Taxes
$417 / Yr
-
Last updated
3 days ago
-
Views
2
Questions? Call us: (727) 610-8216
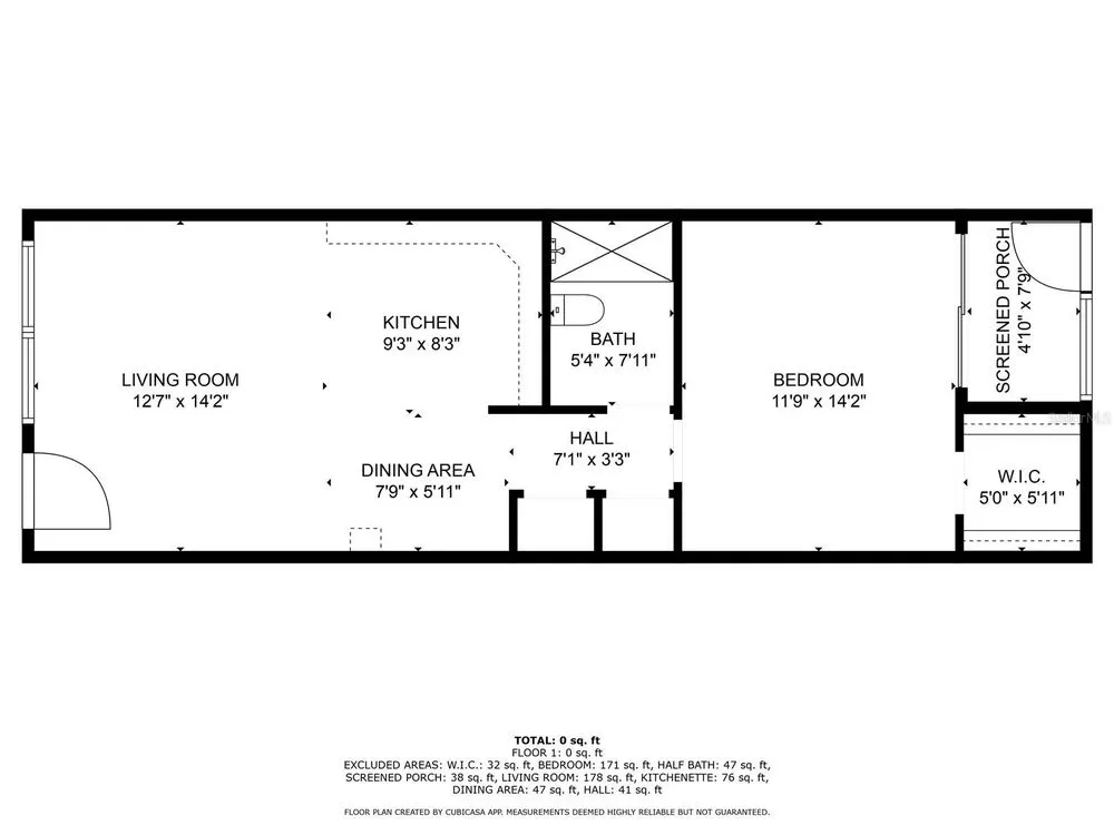
Overview
Welcome to the beautiful community of Bay Island. This unit located in the Heritage Building is directly on the water. The unit had minimal water intrusion during Hurricane Helene with no interior damage however the condo and all the first floor units are being remediated by the association to ensure all first floor units are fully renovated and free of storm damage. The unit is nearly completed. In progress photos updated (Jan 2026). The cost of remediation is being covered by the HOA and a renovation finish package with details is available for review with COMPLETION SCHEDULED for January 2026. A weekly progress report of scheduled of repairs is being provided for clear communication. This first floor unit has an open floorplan with living, dining and kitchen. The bathroom has a walk-in shower with white subway tile. The bedroom has a walk-in closet and sliding door that opens to a screen enclosed covered porch overlooking the water! Flooring, kitchen finishes, appliances and bathroom finishes will be re-installed and covered by the community under their flood insurance coverage. Depending on timing, this may allow the buyer to choose their preferred options. This 24-hr guard gated waterfront community has an exceptional array of activities for the active resident including multiple pools & spas, tennis & pickleball courts, community room with activities such as yoga, entertainment and socials, shuffleboard courts, fitness center with sauna, waterfront tiki huts with grilling area and community marina for fishing or boating opportunities. The indoor amenities are in process of remediation and photos are pre storm for reference. Bay Island is a 55+ community. Ask for more details on this exceptional value condo. UPDATE: Cabinets installed, Drywall installed, all new baseboard & trim & doors installed, painting complete, sliding door replaced with hurricane rated sliding leading out to the waterfront, bathroom completed - only minor finishing details to complete. SELLER OPEN TO PAYING HOA FEES until unit has CO & is able to be occupied - ask for details. 2026 HOA fee is LOWER @ $539.99/month
Interior
Appliances
- None
Bedrooms
- Bedrooms: 1
Bathrooms
- Total bathrooms: 1
- Full baths: 1
Laundry
- Common Area
- Upper Level
Cooling
- Central Air
Heating
- Central, Electric
Features
- Kitchen/Family Room Combo, Open Floorplan, Main Level Primary
Levels
- One
Size
- 600 sq ft
Exterior
Private Pool
- No
Patio & Porch
- Covered, Rear Porch, Screened
Roof
- Other
Garage
- None
Carport
- Carport Spaces:
- Assigned
Year Built
- 1973
Lot Size
- 0.47 acres
- 20,479 sq ft
Waterfront
- No
Water Source
- Public
Sewer
- Public Sewer
Community Info
HOA Information
- Association Fee: $539
- Association Fee Frequency: Monthly
- Association Fee Includes: Pickleball, Pool, Recreation Facilities, Sauna, Pool(s), Escrow Reserves Fund, Maintenance Structure, Maintenance Grounds, Maintenance, Recreation Facilities, Sewer, Trash, Water
Taxes
- Annual amount: $417.24
- Tax year: 2024
Senior Community
- Yes
Features
- Buyer Approval Required, Clubhouse, Community Mailbox, Deed Restrictions, Fitness Center, Gated, Guarded Entrance, Pool, Sidewalks, Tennis Court(s), Street Lights
Location
- City: South Pasadena
- County/Parrish: Pinellas
- Township: 31
Listing courtesy of: Julie Jones, SMITH & ASSOCIATES REAL ESTATE, 727-342-3800
MLS ID: TB8380070
Listings courtesy of Stellar MLS as distributed by MLS GRID. Based on information submitted to the MLS GRID as of Feb 25, 2026, 08:26pm PST. All data is obtained from various sources and may not have been verified by broker or MLS GRID. Supplied Open House Information is subject to change without notice. All information should be independently reviewed and verified for accuracy. Properties may or may not be listed by the office/agent presenting the information. Properties displayed may be listed or sold by various participants in the MLS.
Bay Island Real Estate Agent
Want to learn more about Bay Island?
Here is the community real estate expert who can answer your questions, take you on a tour, and help you find the perfect home.
Get started today with your personalized 55+ search experience!
Want to learn more about Bay Island?
Get in touch with a community real estate expert who can answer your questions, take you on a tour, and help you find the perfect home.
Get started today with your personalized 55+ search experience!
Homes Sold:
55+ Homes Sold:
Sold for this Community:
Avg. Response Time:
Community Key Facts
Age Restrictions
- 55+
Amenities & Lifestyle
- See Bay Island amenities
- See Bay Island clubs, activities, and classes
Homes in Community
- Total Homes: 708
- Home Types: Condos
Gated
- Yes
Construction
- Construction Dates: 1971 - 1980
Similar homes in this community
Popular cities in Florida
The following amenities are available to Bay Island - South Pasadena, FL residents:
- Clubhouse/Amenity Center
- Fitness Center
- Outdoor Pool
- Hobby & Game Room
- Card Room
- Arts & Crafts Studio
- Ballroom
- Library
- Billiards
- Walking & Biking Trails
- Tennis Courts
- Shuffleboard Courts
- Lakes - Scenic Lakes & Ponds
- Lakes - Fishing Lakes
- Lakes - Boat Accessible
- Parks & Natural Space
- Demonstration Kitchen
- Table Tennis
- Outdoor Patio
- Picnic Area
- Boat Launch
- Lounge
There are plenty of activities available in Bay Island. Here is a sample of some of the clubs, activities and classes offered here.
- Arts & Crafts
- BBQ Parties
- Biking
- Billiards
- Boating
- Cards
- Community Events
- Dancing
- Fishing
- Games
- Holiday Parties
- Pickleball
- Poker
- Shuffleboard
- Swimming
- Table Tennis
- Tennis




