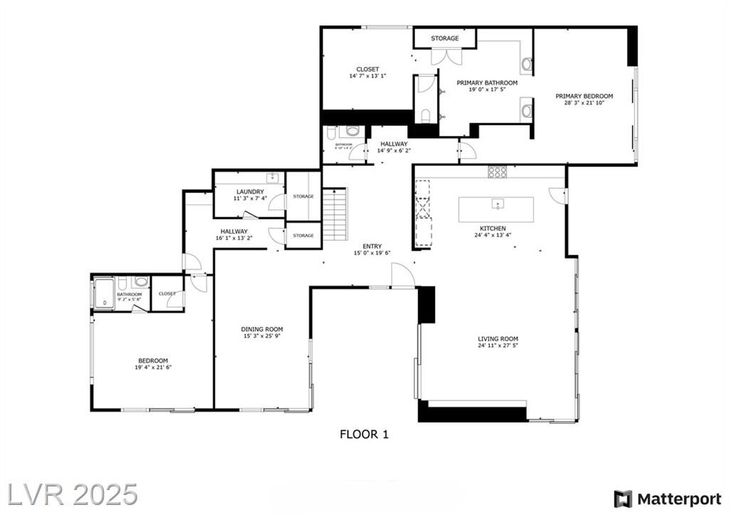
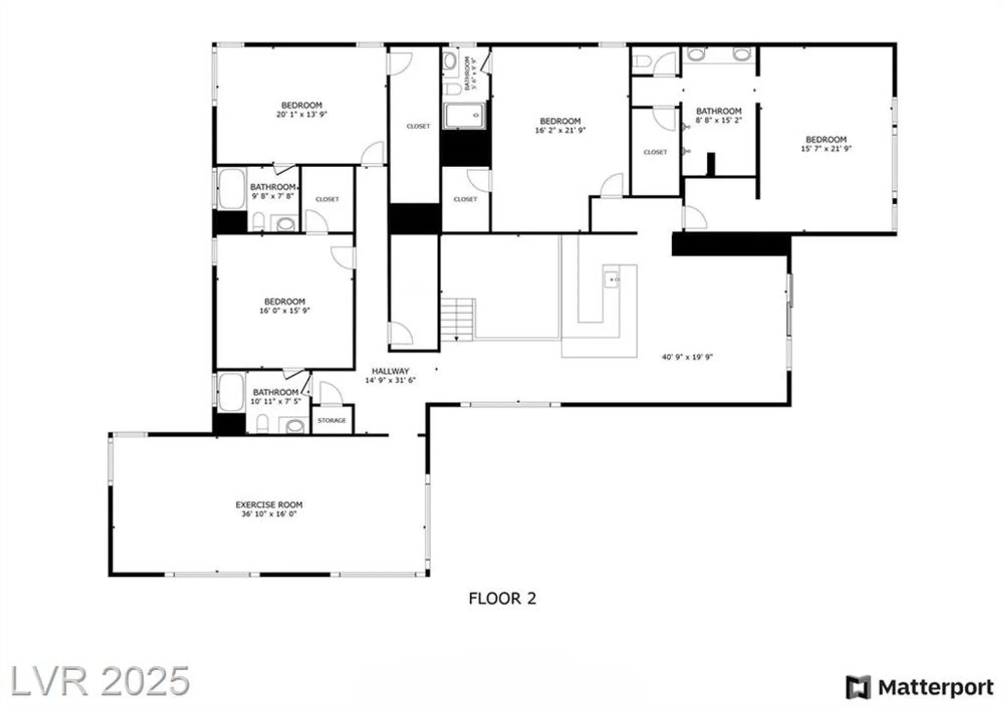
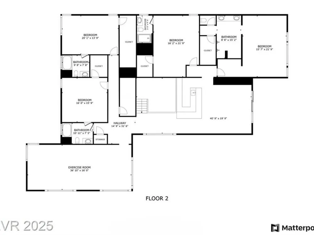
- 6 beds
- 8 baths
- 7,690 sq ft
1548 Pleasant Bay Ct, Henderson, NV, 89011
Community: Del Webb at Lake Las Vegas
-
Home type
Single family
-
Year built
2024
-
Lot size
13,068 sq ft
-
Price per sq ft
$585
-
Taxes
$30467 / Yr
-
Last updated
Today
-
Views
8
-
Saves
1
Questions? Call us: (725) 677-5505
Overview
Experience refined waterfront living on The Island at Lake Las Vegas, a new guard-gated waterfront community by Raintree Development. This modern two-story residence is uniquely positioned on of the largest waterfront lots in the neighborhood with an expanded side yard, offering enhanced privacy and additional space for outdoor entertaining. The backyard enjoys direct lake frontage and mountain views and showcases a grand pool and spa with elegant water bowl features, creating a striking resort-style setting. The home also includes approval for a private dock, providing effortless access to boating and water sports. The Vegas Modern upgrade package and custom closets by Classy Closets blend clean architectural design with everyday functionality. Residents enjoy 320 acres of water recreation, Reflection Bay Golf Club, scenic walking and running trails, and The Village’s charming lakeside dining, shopping, & entertainment. Sports Club membership valued at $25,000 included with purchase.
Interior
Appliances
- Microwave, Wine Refrigerator
Bedrooms
- Bedrooms: 6
Bathrooms
- Total bathrooms: 8
- Half baths: 1
- Three-quarter baths: 4
- Full baths: 3
Cooling
- 2 or More Central Units, Central, Refrigeration, SEER 13 or Above
Heating
- 2 or More Units, Central, Zoned HVAC
Fireplace
- 2, Gas,Glass Doors
Features
- Blinds, Ceiling Fan(s), Fire Sprinklers, Window Coverings Partial
Size
- 7,690 sq ft
Exterior
Private Pool
- Yes
Roof
- Flat
Garage
- Garage Spaces: 4
- Garage/Private
Carport
- None
Year Built
- 2024
Lot Size
- 0.3 acres
- 13,068 sq ft
Waterfront
- No
Water Source
- Public
Sewer
- Public Sewer
Community Info
Taxes
- Annual amount: $30,467.00
- Tax year:
Senior Community
- No
Location
- City: Henderson
- County/Parrish: Clark County
- Township: 21
Listing courtesy of: Gene Northup, Las Vegas Sotheby's Int'l Listing Agent Contact Information: (702) 497-0300
MLS ID: 2761183
The data relating to real estate for sale on this web site comes in part from the Internet Data Exchange Program of the Greater Las Vegas Association of REALTORS® MLS. Real estate listings held by brokerage firms other than this site owner are marked with the IDX logo. GLVAR deems information reliable but not guaranteed. Information provided for consumers personal, non-commercial use and may not be used for any purpose other than to identify prospective properties consumers may be interested in purchasing. Copyright 2026 of the Greater Las Vegas Association of REALTORS® MLS. All rights reserved.
Del Webb at Lake Las Vegas Real Estate Agent
Want to learn more about Del Webb at Lake Las Vegas?
Here is the community real estate expert who can answer your questions, take you on a tour, and help you find the perfect home.
Get started today with your personalized 55+ search experience!
Want to learn more about Del Webb at Lake Las Vegas?
Get in touch with a community real estate expert who can answer your questions, take you on a tour, and help you find the perfect home.
Get started today with your personalized 55+ search experience!
Homes Sold:
55+ Homes Sold:
Sold for this Community:
Avg. Response Time:
Community Key Facts
Age Restrictions
- 55+
Amenities & Lifestyle
- See Del Webb at Lake Las Vegas amenities
- See Del Webb at Lake Las Vegas clubs, activities, and classes
Homes in Community
- Total Homes: 464
- Home Types: Single-Family
Gated
- Yes
Construction
- Construction Dates: 2019 - Present
- Builder: Del Webb
Similar homes in this community
The following amenities are available to Del Webb at Lake Las Vegas - Henderson, NV residents:
- Clubhouse/Amenity Center
- Golf Course
- Fitness Center
- Outdoor Pool
- Aerobics & Dance Studio
- Card Room
- Billiards
- Tennis Courts
- Pickleball Courts
- Bocce Ball Courts
- Lakes - Scenic Lakes & Ponds
- Outdoor Patio
- On-site Retail
- Multipurpose Room
There are plenty of activities available in Del Webb at Lake Las Vegas. Here is a sample of some of the clubs, activities and classes offered here.
- Aqua (Arthritis) Class
- Aqua Fitness Class
- Balance the Brain Class
- Basketball
- Billiards Club
- Bocce Ball
- Bridge Club
- Bunco Club
- Camera Club
- Canasta Club
- Cardio Class
- Ceramics Club
- Challenge Step Class
- Community Singers Club
- Computer Club
- Concerts 4 U Club
- Cooking & Recipe Club
- Core Conditioning Class
- Creative Arts Club
- Desert Life Club
- Discussion Forum Club
- Fireside Chat Club
- Games Plus Club
- Golf
- Golf Club
- Happy Tappers Club
- Hatha, Integral, and Power Yoga Classes
- Interval Step Class
- Karaoke Club
- Kings and Queens Card Club
- Line Dancing Club
- Mahjong Club
- Marathon Training
- Mat & Reformer Pilates Classes
- Mexican Train Dominoes Club
- Motorcycle Riders Club
- Opera Club
- Paddle Tennis Club
- Pan Club
- Performing Arts Club
- Pet Club
- Pickleball
- Political Discussion Club
- RV Club
- Rainbow Friends Club
- Readers' Ink Club
- Retirement Club
- Road Bicycle Riders
- Shopping
- Shuffleboard
- Softball Club
- Solos Club
- Stamps Club
- Stitching Club
- Stretch Class
- Table Tennis Club
- Tennis
- That's Entertainment Club
- Thera-Band Exercise Class
- Total Body Strengthening Class
- Total Body on Ball Class
- Travel Club
- Ukulele Strummers Club
- Understanding Social Media Club
- Veterans Club
- Wii Bowling
- Wine & Paint Club
- Wine Club
- Writer's Club
- Zumba Classes




