- 3 beds
- 2 baths
- 1,328 sq ft
15907 Se 101st Cir, Summerfield, FL, 34491
Community: Spruce Creek South
-
Home type
Single family
-
Year built
2025
-
Lot size
6,600 sq ft
-
Price per sq ft
$200
-
HOA fees
$69 / Mo
-
Last updated
2 days ago
-
Views
12
-
Saves
2
Questions? Call us: (352) 704-0640
Overview
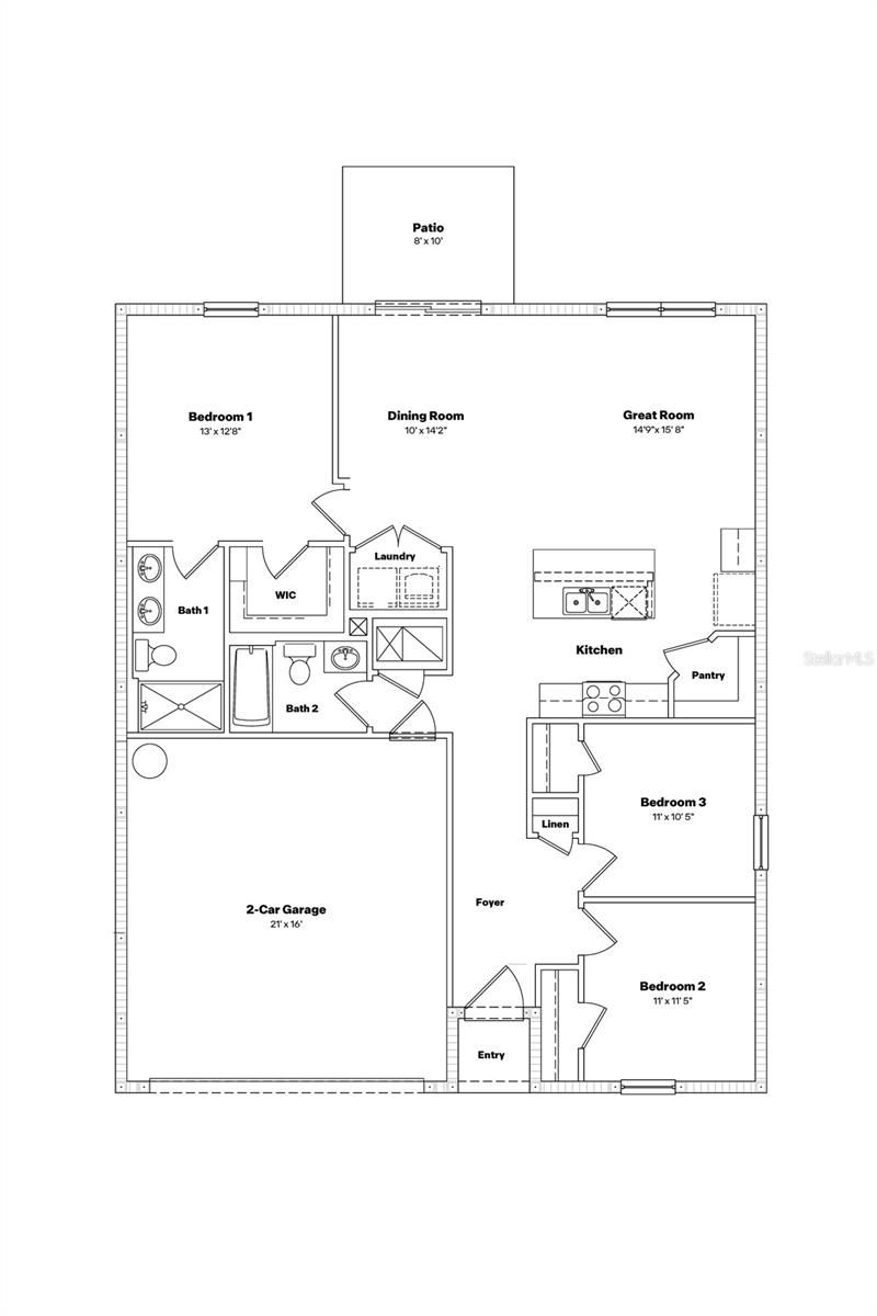
One or more photo(s) has been virtually staged. Under Construction. This single-story, all concrete block constructed 3 bedroom, 2 bathroom home features an open concept floorplan that optimizes living space. The spacious kitchen overlooks the great room, dining area, and outdoor patio. The kitchen comes full equipped with stainless-steel appliances including a built-in dishwasher, range, and microwave. The primary suite is located towards the back of the home, featuring a spacious walk-in closet and ensuite bathroom with double vanity sinks. Two additional bedrooms are located towards the front of the home and share a bathroom across the hall. Pictures, photographs, colors, features, and sizes are for illustration purposes only and will vary from the homes as built. Home and community information including pricing, included features, terms, availability and amenities are subject to change and prior sale at any time without notice or obligation. CRC057592.
Interior
Appliances
- Dishwasher, Microwave, Range
Bedrooms
- Bedrooms: 3
Bathrooms
- Total bathrooms: 2
- Full baths: 2
Laundry
- Laundry Room
Cooling
- Central Air
Heating
- Electric, Heat Pump
Fireplace
- None
Features
- Open Floorplan
Levels
- One
Size
- 1,328 sq ft
Exterior
Private Pool
- No
Roof
- Shingle
Garage
- Attached
- Garage Spaces: 2
Carport
- None
Year Built
- 2025
Lot Size
- 0.15 acres
- 6,600 sq ft
Waterfront
- No
Water Source
- Public
Sewer
- Public Sewer
Community Info
HOA Fee
- $69
- Frequency: Monthly
Senior Community
- No
Location
- City: Summerfield
- County/Parrish: Marion
- Township: 17
Listing courtesy of: Anne Peterson Eger, DR HORTON REALTY OF WEST CENTRAL FLORIDA, 352-558-6840
MLS ID: OM712085
Listings courtesy of Stellar MLS as distributed by MLS GRID. Based on information submitted to the MLS GRID as of Dec 05, 2025, 02:51pm PST. All data is obtained from various sources and may not have been verified by broker or MLS GRID. Supplied Open House Information is subject to change without notice. All information should be independently reviewed and verified for accuracy. Properties may or may not be listed by the office/agent presenting the information. Properties displayed may be listed or sold by various participants in the MLS.
Spruce Creek South Real Estate Agent
Want to learn more about Spruce Creek South?
Here is the community real estate expert who can answer your questions, take you on a tour, and help you find the perfect home.
Get started today with your personalized 55+ search experience!
Want to learn more about Spruce Creek South?
Get in touch with a community real estate expert who can answer your questions, take you on a tour, and help you find the perfect home.
Get started today with your personalized 55+ search experience!
Homes Sold:
55+ Homes Sold:
Sold for this Community:
Avg. Response Time:
Community Key Facts
Age Restrictions
- 55+
Amenities & Lifestyle
- See Spruce Creek South amenities
- See Spruce Creek South clubs, activities, and classes
Homes in Community
- Total Homes: 1,650
- Home Types: Single-Family
Gated
- Yes
Construction
- Construction Dates: 1989 - 1995
- Builder: Harvey Erp
Similar homes in this community
Popular cities in Florida
The following amenities are available to Spruce Creek South - Summerfield, FL residents:
- Clubhouse/Amenity Center
- Golf Course
- Restaurant
- Fitness Center
- Outdoor Pool
- Hobby & Game Room
- Card Room
- Arts & Crafts Studio
- Ballroom
- Library
- Billiards
- Walking & Biking Trails
- Tennis Courts
- Pickleball Courts
- Bocce Ball Courts
- Shuffleboard Courts
- Horseshoe Pits
- Softball/Baseball Field
- Basketball Court
- Volleyball Court
- R.V./Boat Parking
- Parks & Natural Space
- Demonstration Kitchen
- Outdoor Patio
- Gazebo
There are plenty of activities available in Spruce Creek South. Here is a sample of some of the clubs, activities and classes offered here.
- Billiards (Ladies)
- Billiards (Men)
- Bingo
- Bocce Ball
- Book Club
- Bridge (Social)
- C.E.R.T.S
- Canasta
- Clowning Around
- Co-ed Bowling
- Computer Club
- Cribbage
- Dominoes
- Duplicate Bridge
- Friendship Club
- Golden Notes Chorus Group
- Hand & Foot
- Hearts
- Ladies Golf 18 hole Association
- Mahjong
- Men's Golf 18 hole Association
- Ping Pong/Table Tennis
- SCS Dance Club
- Silver Liners (line dancing)
- Tennis/Pickleball
- The Lighthouse (rescue group)
- Veteran's Group




