- 3 beds
- 2 baths
- 2,350 sq ft
17211 Se 85th Willowick Cir, The Villages, FL, 32162
Community: The Villages®
-
Home type
Single family
-
Year built
2002
-
Lot size
9,583 sq ft
-
Price per sq ft
$245
-
Taxes
$4924 / Yr
-
Last updated
Today
-
Views
4
Questions? Call us: (352) 704-0687
Overview
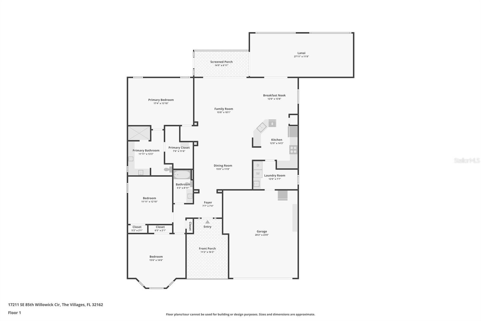
No bond and truly turnkey, this beautifully maintained Live Oak model home sits on a quiet cul-de-sac in the highly desirable Brairmeadow South neighborhood and is a rare find. From the moment you arrive, the level of care and quality is immediately apparent. Major updates include a 2020 roof by Batterbee, an Infinity HVAC system 2010 and servicing home by Munn’s since 2002, and a 2022 gas water heater. The exterior was painted with 25-year Sherwin-Williams paint in 2016, and the property is protected by lightning rods and an OmniShield safety system with fire, water, and heat detectors installed in 2019, offering added peace of mind and potential insurance discounts. Inside, the home is thoughtfully upgraded throughout with sunburst shutters on all exterior windows, crown molding in every room, and four strategically placed solar tubes that flood the space with natural light. The kitchen features quartz countertops, stainless steel appliances, and both above-and below-cabinet lighting, while the bathrooms and laundry room are finished with granite countertops and a Corian shower in the primary bath. Flooring throughout the home was upgraded in 2021 to Mohawk Crest Loft waterproof flooring with a lifetime warranty, including labor, and there is no carpet anywhere. A spacious 344-square-foot bonus room just off the kitchen provides flexible space for entertaining, hobbies, or guests. Additional features include higher toilets installed in 2019, a Nova whole-home water filtration system, thirteen water sensors for added security, a Wi-Fi enabled front door lock with programmable code access, and a Wi-Fi sprinkler system. Outdoor living is equally impressive with stacked stone landscaping surrounding the home and newly installed driveway and walkway pavers completed in 2023, including a charming front patio. A $9,500 queen-size Murphy bed installed in 2025 adds exceptional functionality, and the home even includes a 2022 red Yamaha gas golf cart. Location completes the picture. This home is just a short golf cart ride from Nancy Lopez Country Club, First Responders Recreation Center, Sumter Landing, Spanish Springs, Savannah Recreation Center, Saddlebrook Recreation Center and Softball Complex, and Buffalo Glen Softball Complex. Everyday conveniences such as Publix, Walgreens, CVS, Walmart, Fresh Market, Starbucks, ALDI, Costco, Hobby Lobby, restaurants, banks, and shopping are all close by. Whether you are nearby or viewing from afar, schedule a private or virtual showing and experience just how exceptional this home truly is.
Interior
Appliances
- Dishwasher, Disposal, Dryer, Gas Water Heater, Microwave, Range, Refrigerator, Washer, Water Filter
Bedrooms
- Bedrooms: 3
Bathrooms
- Total bathrooms: 2
- Full baths: 2
Laundry
- Laundry Room
Cooling
- Central Air
Heating
- Central
Fireplace
- None
Features
- Ceiling Fan(s), Crown Molding, Eat-in Kitchen, High Ceilings, Kitchen/Family Room Combo, Living/Dining Room, Open Floorplan, Main Level Primary, Stone Counters, Walk-In Closet(s), Window Treatments
Levels
- One
Size
- 2,350 sq ft
Exterior
Private Pool
- No
Patio & Porch
- Patio
Roof
- Shingle
Garage
- Attached
- Garage Spaces: 2
Carport
- None
Year Built
- 2002
Lot Size
- 0.22 acres
- 9,583 sq ft
Waterfront
- No
Water Source
- Public
Sewer
- Public Sewer
Community Info
Taxes
- Annual amount: $4,924.07
- Tax year: 2025
Senior Community
- Yes
Features
- Community Mailbox, Deed Restrictions, Dog Park, Fitness Center, Golf, Irrigation-Reclaimed Water, Park, Playground, Pool, Restaurant, Street Lights
Location
- City: The Villages
- County/Parrish: Marion
- Township: 17S
Listing courtesy of: Patrick Shores, COLDWELL BANKER VANGUARD LIFESTYLE REALTY, 800-948-0938
MLS ID: G5105903
Listings courtesy of Stellar MLS as distributed by MLS GRID. Based on information submitted to the MLS GRID as of Jan 02, 2026, 03:54am PST. All data is obtained from various sources and may not have been verified by broker or MLS GRID. Supplied Open House Information is subject to change without notice. All information should be independently reviewed and verified for accuracy. Properties may or may not be listed by the office/agent presenting the information. Properties displayed may be listed or sold by various participants in the MLS.
The Villages® Real Estate Agent
Want to learn more about The Villages®?
Here is the community real estate expert who can answer your questions, take you on a tour, and help you find the perfect home.
Get started today with your personalized 55+ search experience!
Want to learn more about The Villages®?
Get in touch with a community real estate expert who can answer your questions, take you on a tour, and help you find the perfect home.
Get started today with your personalized 55+ search experience!
Homes Sold:
55+ Homes Sold:
Sold for this Community:
Avg. Response Time:
Community Key Facts
Age Restrictions
- 55+
Amenities & Lifestyle
- See The Villages® amenities
- See The Villages® clubs, activities, and classes
Homes in Community
- Total Homes: 70,000
- Home Types: Single-Family, Attached, Condos, Manufactured
Gated
- No
Construction
- Construction Dates: 1978 - Present
- Builder: The Villages, Multiple Builders
Similar homes in this community
Popular cities in Florida
The following amenities are available to The Villages® - The Villages, FL residents:
- Clubhouse/Amenity Center
- Golf Course
- Restaurant
- Fitness Center
- Outdoor Pool
- Aerobics & Dance Studio
- Card Room
- Ceramics Studio
- Arts & Crafts Studio
- Sewing Studio
- Woodworking Shop
- Performance/Movie Theater
- Library
- Bowling
- Walking & Biking Trails
- Tennis Courts
- Pickleball Courts
- Bocce Ball Courts
- Shuffleboard Courts
- Horseshoe Pits
- Softball/Baseball Field
- Basketball Court
- Volleyball Court
- Polo Fields
- Lakes - Fishing Lakes
- Outdoor Amphitheater
- R.V./Boat Parking
- Gardening Plots
- Playground for Grandkids
- Continuing Education Center
- On-site Retail
- Hospital
- Worship Centers
- Equestrian Facilities
There are plenty of activities available in The Villages®. Here is a sample of some of the clubs, activities and classes offered here.
- Acoustic Guitar
- Air gun
- Al Kora Ladies Shrine
- Alcoholic Anonymous
- Aquatic Dancers
- Ballet
- Ballroom Dance
- Basketball
- Baton Twirlers
- Beading
- Bicycle
- Big Band
- Bingo
- Bluegrass music
- Bunco
- Ceramics
- Chess
- China Painting
- Christian Bible Study
- Christian Women
- Classical Music Lovers
- Computer Club
- Concert Band
- Country Music Club
- Country Two-Step
- Creative Writers
- Cribbage
- Croquet
- Democrats
- Dirty Uno
- Dixieland Band
- Euchre
- Gaelic Dance
- Gamblers Anonymous
- Genealogical Society
- Gin Rummy
- Guitar
- Happy Stitchers
- Harmonica
- Hearts
- In-line skating
- Irish Music
- Italian Study
- Jazz 'n' Tap
- Journalism
- Knitting Guild
- Mah Jongg
- Model Yacht Racing
- Motorcycle Club
- Needlework
- Overeaters Anonymous
- Overseas living
- Peripheral Neuropathy support
- Philosophy
- Photography
- Pinochle
- Pottery
- Quilters
- RC Flyers
- Recovery Inc.
- Republicans
- Scooter
- Scrabble
- Scrappers
- Senior soccer
- Shuffleboard
- Singles
- Stamping
- Street hockey
- String Orchestra
- Support Groups
- Swing Dance
- Table tennis
- Tai-Chi
- Tappers
- Trivial Pursuit
- VAA
- Village Theater Company
- Volleyball
- Whist




