-
Home type
Single family
-
Year built
2025
-
Lot size
11,326 sq ft
-
Price per sq ft
$215
-
HOA fees
$289 / Mo
-
Last updated
2 days ago
-
Saves
1
Questions? Call us: (803) 797-0441
Overview
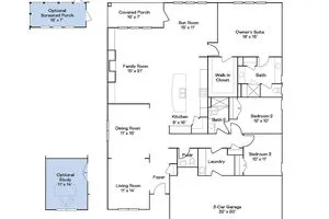
The Garland floorplan is a new single-story home design that combines comfort and elegance. It features a formal living and dining room for entertaining, a family room with a fireplace for casual gatherings, a covered porch, three-car garage and a sunroom for indoor-outdoor living. Two secondary bedrooms and a lavish owner’s suite are made for rest and relaxation. Plus, our signature Everything's Included program means you will get a gourmet kitchen with double ovens and cooktop, quartz or granite kitchen countertops, subway tile backsplash, ceramic tile, luxury vinyl plank flooring throughout the home, and a gas fireplace (per plan). Roselyn is a master-planned community offering exclusive ranch homes designed for active adults!
Interior
Appliances
- Disposal, Double Oven, Electric Water Heater, ENERGY STAR Qualified Dishwasher, Exhaust Fan, Gas Cooktop, Gas Oven, Microwave, Tankless Water Heater, Wall Oven
Bedrooms
- Bedrooms: 3
Bathrooms
- Total bathrooms: 3
- Half baths: 1
- Full baths: 2
Laundry
- Electric Dryer Hookup
- Laundry Room
- Upper Level
Cooling
- Central Air, Electric, Zoned
Heating
- Forced Air, Natural Gas, Zoned
Fireplace
- None
Features
- Attic Stairs Pulldown, Kitchen Island, Pantry, Walk-In Closet(s)
Levels
- One
Size
- 2,475 sq ft
Exterior
Private Pool
- No
Roof
- Architectural Shingle
Garage
- Attached
- Garage Spaces: 3
- Driveway
- Attached Garage
- Garage Door Opener
- Garage Faces Front
Carport
- None
Year Built
- 2025
Lot Size
- 0.26 acres
- 11,326 sq ft
Waterfront
- No
Water Source
- County Water
Sewer
- County Sewer
Community Info
HOA Fee
- $289
- Frequency: Monthly
Senior Community
- Yes
Features
- Fifty Five and Older, Clubhouse, Fitness Center, Game Court, Outdoor Pool, Recreation Area, Sidewalks, Sport Court, Street Lights, Walking Trails
Location
- City: Lancaster
- County/Parrish: Lancaster
Listing courtesy of: Lee Anne Barbrey, Lennar Sales Corp Listing Agent Contact Information: 704-759-6048
MLS ID: 4306398
Listings courtesy of Canopy MLS as distributed by MLS GRID. Based on information submitted to the MLS GRID as of Jan 05, 2026, 06:46am PST. All data is obtained from various sources and may not have been verified by broker or MLS GRID. Supplied Open House Information is subject to change without notice. All information should be independently reviewed and verified for accuracy. Properties may or may not be listed by the office/agent presenting the information. Properties displayed may be listed or sold by various participants in the MLS. Some IDX listings have been excluded from this website.The Digital Millennium Copyright Act of 1998, 17 U.S.C. § 512 (the "DMCA") provides recourse for copyright owners who believe that material appearing on the Internet infringes their rights under U.S. copyright law. If you believe in good faith that any content or material made available in connection with our website or services infringes your copyright, you (or your agent) may send us a notice requesting that the content or material be removed, or access to it blocked. Notices must be sent in writing by email to [email protected] DMCA requires that your notice of alleged copyright infringement include the following information:(1) description of the copyrighted work that is the subject of claimed infringement;(2) description of the alleged infringing content and information sufficient to permit us to locate the content;(3) contact information for you, including your address, telephone number and email address;(4) a statement by you that you have a good faith belief that the content in the manner complained of is not authorized by the copyright owner, or its agent, or by the operation of any law;(5) a statement by you, signed under penalty of perjury, that the information in the notification is accurate and that you have the authority to enforce the copyrights that are claimed to be infringed; and(6) a physical or electronic signature of the copyright owner or a person authorized to act on the copyright owner’s behalf. Failure to include all of the above information may result in the delay of the processing of your complaint.
Roselyn Real Estate Agent
Want to learn more about Roselyn?
Here is the community real estate expert who can answer your questions, take you on a tour, and help you find the perfect home.
Get started today with your personalized 55+ search experience!
Want to learn more about Roselyn?
Get in touch with a community real estate expert who can answer your questions, take you on a tour, and help you find the perfect home.
Get started today with your personalized 55+ search experience!
Homes Sold:
55+ Homes Sold:
Sold for this Community:
Avg. Response Time:
Community Key Facts
Age Restrictions
- 55+
Amenities & Lifestyle
- See Roselyn amenities
- See Roselyn clubs, activities, and classes
Homes in Community
- Total Homes: 1,860
- Home Types: Single-Family
Gated
- No
Construction
- Construction Dates: 2023 - Present
- Builder: Lennar
Similar homes in this community
Popular cities in South Carolina
The following amenities are available to Roselyn - Lancaster, SC residents:
- Clubhouse/Amenity Center
- Multipurpose Room
- Fitness Center
- Outdoor Pool
- Outdoor Patio
- Pickleball Court
- Pet Park
- Walking & Biking Trails
There are plenty of activities available in Roselyn. Here is a sample of some of the clubs, activities, and classes offered here.
- Pickleball
- Swimming
- Walking/Jogging




