-
Home type
Condominium
-
Year built
1975
-
Price per sq ft
$173
-
Taxes
$1746 / Yr
-
HOA fees
$828 / Mo
-
Last updated
1 day ago
-
Views
4
-
Saves
4
Questions? Call us: (720) 605-3670
Overview
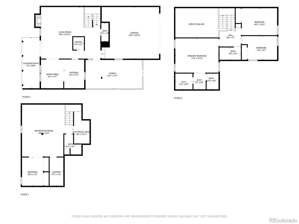
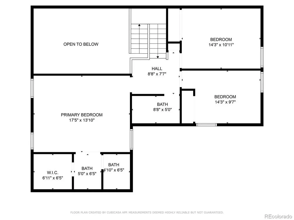
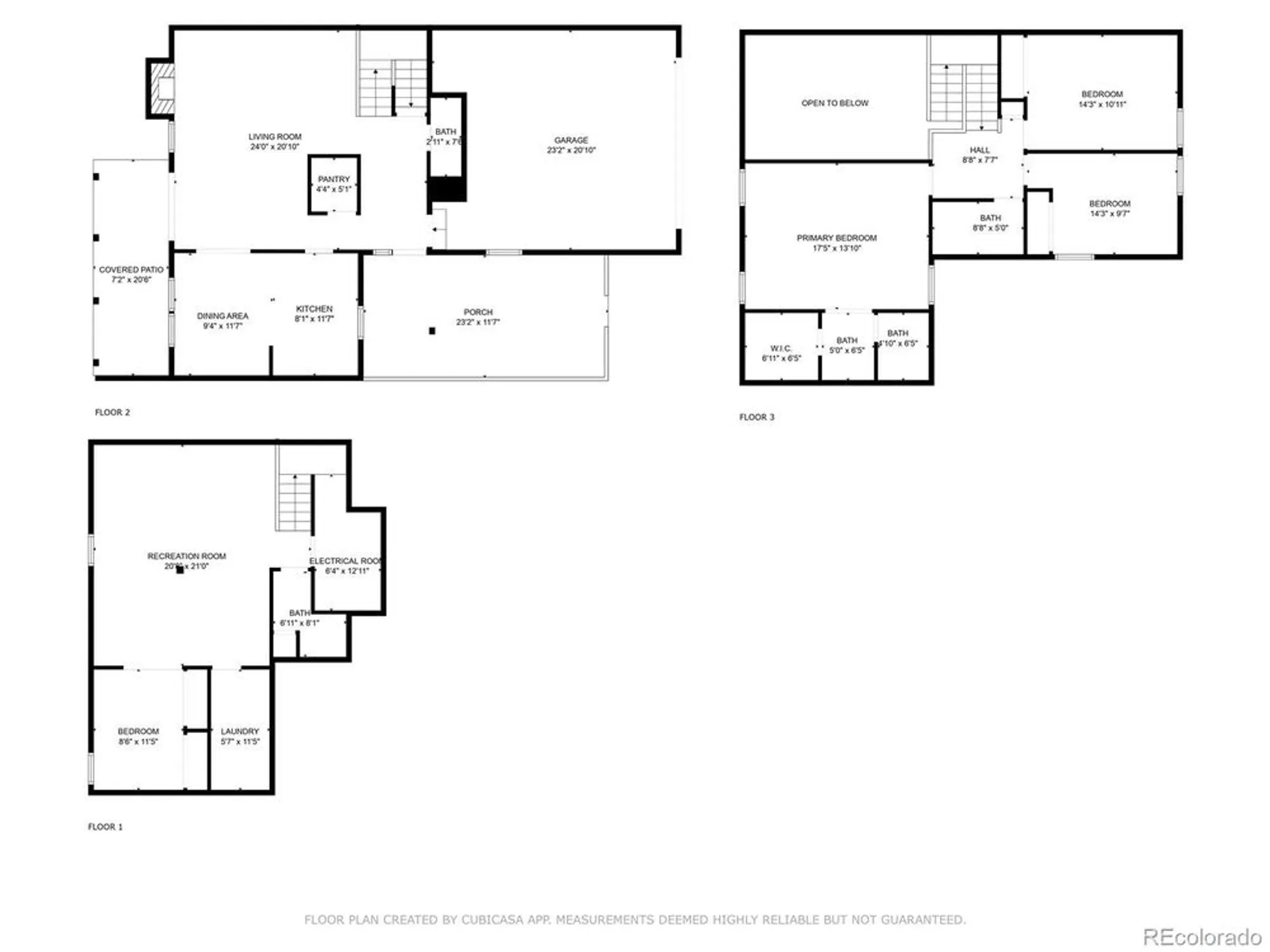
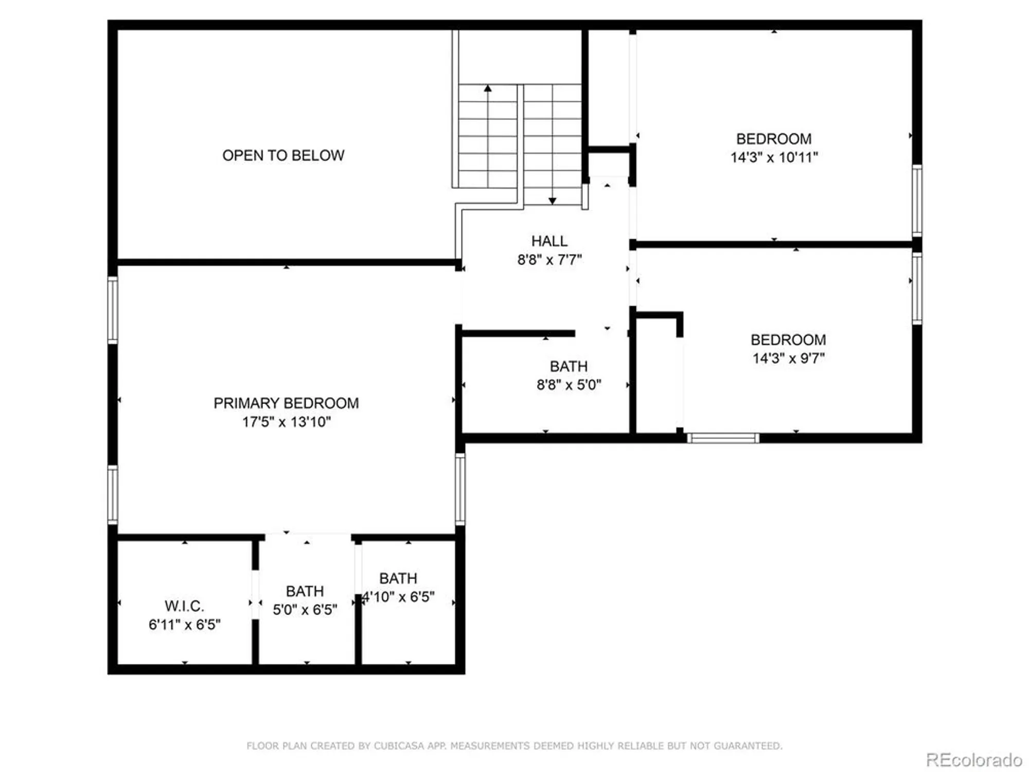
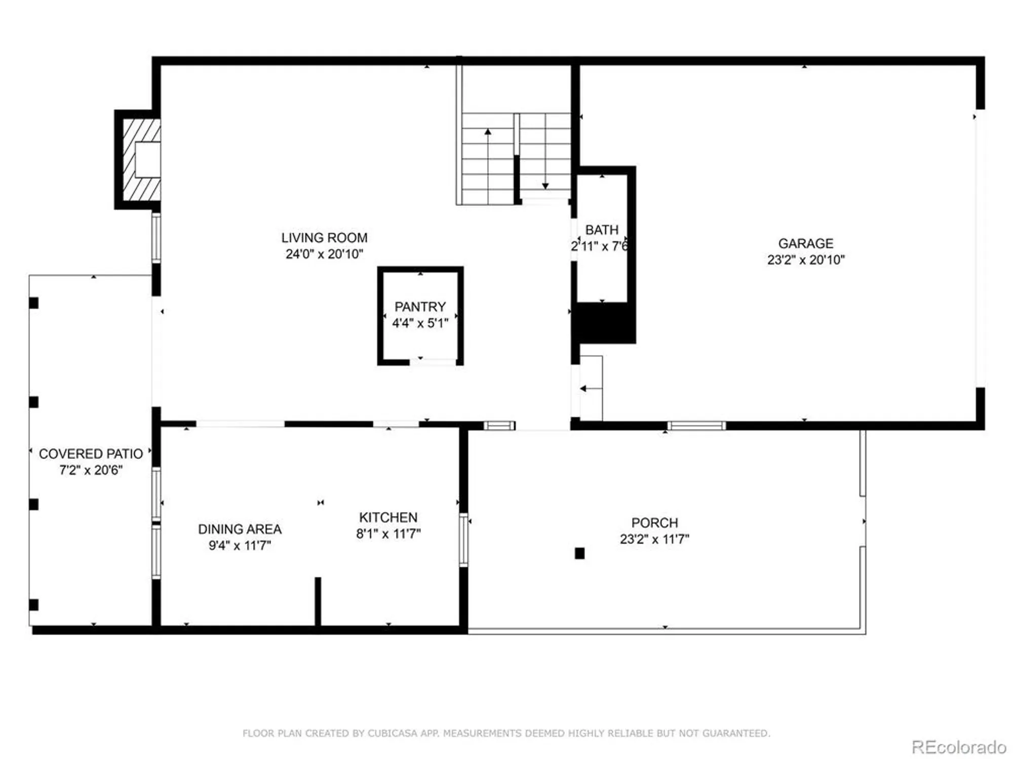
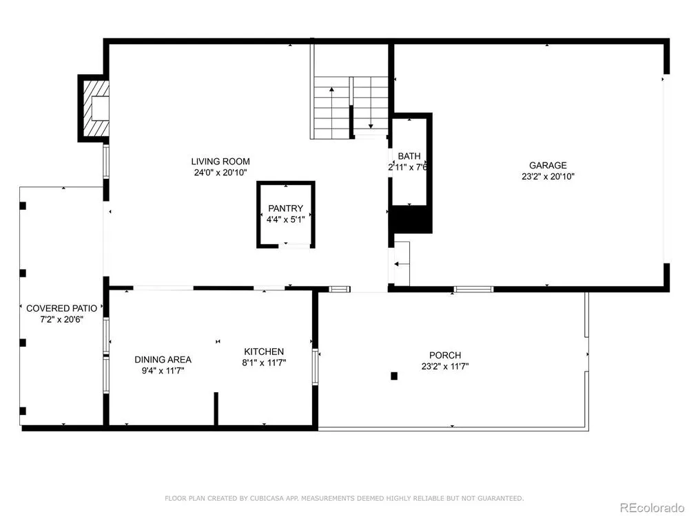
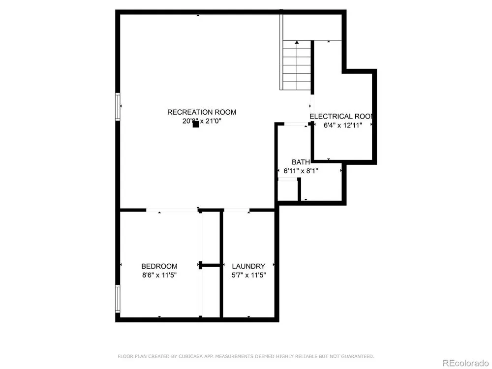
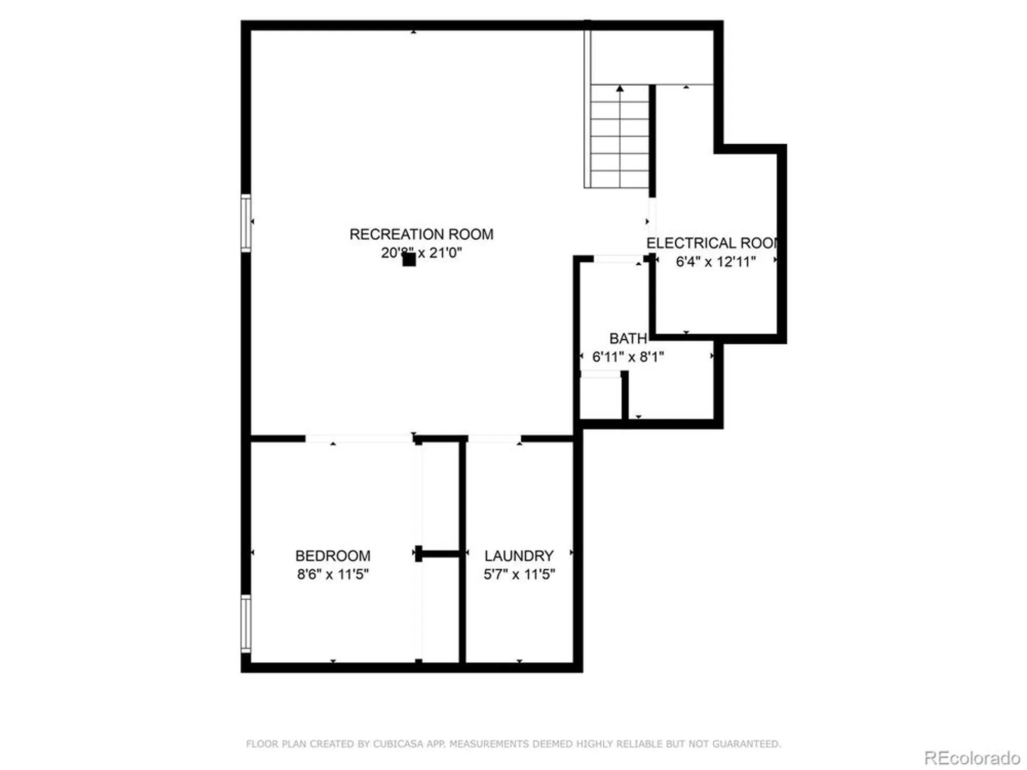
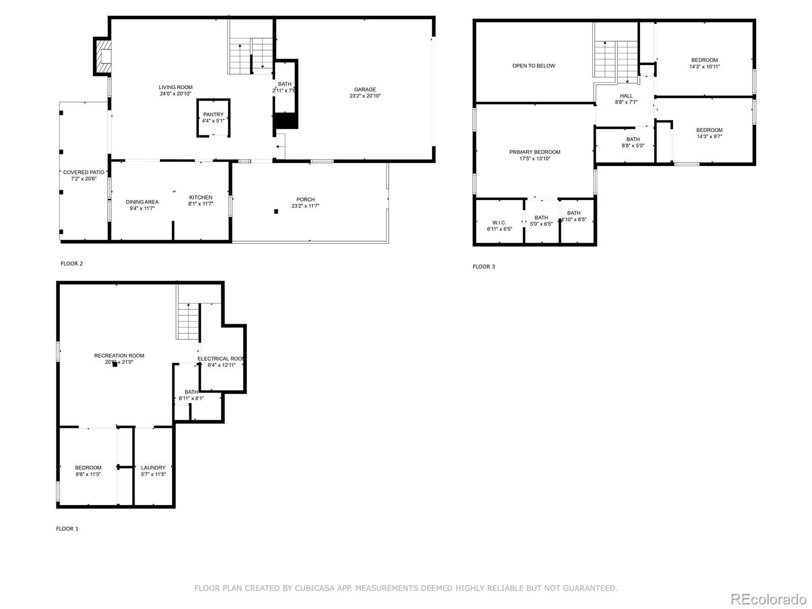
Back on market—no fault of the property. Previous contract terminated due to buyer’s financing. Welcome Home to Heather Gardens! Nestled in the prestigious 55+ Heather Gardens community, this rarely available three-bedroom, four-bath residence offers an impressive 2,164 square feet of living space, including a finished basement for added flexibility. Step through the large, private courtyard, surrounded by a white privacy fence, and into a welcoming entryway that opens to a mudroom with a convenient half-bath—perfect for guests. The adjacent kitchen has granite countertops and backsplash, ample cabinetry, and a peninsula ideal for meal prep or casual dining. A true highlight of this home is the open-concept living and dining area, where dramatic cathedral ceilings create an expansive, airy feel. Hardwood floors flow throughout the main level, while a wood-burning fireplace adds warmth and charm—perfect for cozy winter evenings. Upstairs, the primary bedroom suite includes a remodeled en-suite bath and walk-in closet—the non-negotiables for comfort and convenience. Two additional bedrooms and a full bath complete the upper level. Downstairs, the finished basement offers even more living space along with a half-bath—ideal for a home theater, gym, office, or extra storage. An attached, oversized two-car garage rounds out the home, providing plenty of room for vehicles and storage. As part of Heather Gardens, residents enjoy a wealth of amenities including a clubhouse, golf course, tennis courts, indoor and outdoor pools, jacuzzi, and sauna. A convenient on-site restaurant, along with easy access to shopping, dining, public transportation, and the Cherry Creek Reservoir, make this a vibrant, worry-free lifestyle.
Interior
Appliances
- Dishwasher, Disposal, Dryer, Microwave, Range, Refrigerator, Self Cleaning Oven, Washer
Bedrooms
- Bedrooms: 3
Bathrooms
- Total bathrooms: 4
- Half baths: 2
- Three-quarter baths: 1
- Full baths: 1
Laundry
- In Unit
Cooling
- Central Air
Heating
- Forced Air
Fireplace
- 1, Wood Burning
Features
- Ceiling Fan(s), Eat-in Kitchen, Granite Counters, High Ceilings, Kitchen Island, Smoke Free, Vaulted Ceiling(s), Wet Bar
Levels
- Two
Size
- 2,164 sq ft
Exterior
Private Pool
- No
Patio & Porch
- Covered, Patio
Roof
- Shingle
Garage
- Attached
- Garage Spaces: 2
- Concrete
Carport
- None
Year Built
- 1975
Waterfront
- No
Water Source
- Public
Sewer
- Public Sewer
Community Info
HOA Information
- Association Fee: $828
- Association Fee Frequency: Monthly
- Association Fee Includes: Clubhouse, Elevator(s), Fitness Center, Receiving Room, Garden Area, Golf Course, On Site Manager/Engineer, Parking, Pool, Sauna, Security, Spa/Hot Tub, Tennis Court(s), Reserves, Insurance, Maintenance Grounds, Maintenance Structure, Recycling, Road Maintenance, Security, Sewer, Snow Removal, Trash, Water
Taxes
- Annual amount: $1,746.00
- Tax year: 2024
Senior Community
- Yes
Location
- City: Aurora
- County/Parrish: Arapahoe
Listing courtesy of: Bruce L Henson, Heather Gardens Brokers Listing Agent Contact Information: 303-358-8210
MLS ID: REC3810067
Listings courtesy of REcolorado MLS as distributed by MLS GRID. Based on information submitted to the MLS GRID as of May 30, 2026, 05:10am PDT. All data is obtained from various sources and may not have been verified by broker or MLS GRID. Supplied Open House Information is subject to change without notice. All information should be independently reviewed and verified for accuracy. Properties may or may not be listed by the office/agent presenting the information. Properties displayed may be listed or sold by various participants in the MLS.
Heather Gardens Real Estate Agent
Want to learn more about Heather Gardens?
Here is the community real estate expert who can answer your questions, take you on a tour, and help you find the perfect home.
Get started today with your personalized 55+ search experience!
Want to learn more about Heather Gardens?
Get in touch with a community real estate expert who can answer your questions, take you on a tour, and help you find the perfect home.
Get started today with your personalized 55+ search experience!
Homes Sold:
55+ Homes Sold:
Sold for this Community:
Avg. Response Time:
Community Key Facts
Age Restrictions
- 55+
Amenities & Lifestyle
- See Heather Gardens amenities
- See Heather Gardens clubs, activities, and classes
Homes in Community
- Total Homes: 2,426
- Home Types: Attached, Condos, Single-Family
Gated
- No
Construction
- Construction Dates: 1973 - 1986
- Builder: EDI
Similar homes in this community
Popular cities in Colorado
The following amenities are available to Heather Gardens - Aurora, CO residents:
- Clubhouse/Amenity Center
- Golf Course
- Restaurant
- Fitness Center
- Indoor Pool
- Outdoor Pool
- Card Room
- Ceramics Studio
- Arts & Crafts Studio
- Woodworking Shop
- Ballroom
- Computers
- Library
- Billiards
- Walking & Biking Trails
- Tennis Courts
- Horseshoe Pits
- Lakes - Scenic Lakes & Ponds
- R.V./Boat Parking
- Gardening Plots
- Table Tennis
- Golf Practice Facilities/Putting Green
- Picnic Area
- On-site Retail
- Locker Rooms
- Lounge
There are plenty of activities available in Heather Gardens. Here is a sample of some of the clubs, activities and classes offered here.
- 500 Club
- 55 Bowling League
- ACBL Duplicate Bridge
- Arts and Craft Fair
- Aurora Republican Women (ARW)
- Billiards
- Breakfast Optimist
- Bunko
- Caregiver Support Group
- Colorado Symphony Guild
- Columbine Belles Social Club
- Crossroads - AA Fellowship
- Daughters of the Nile
- Deaf/Hard of Hearing
- Democrats
- Fifty (50) & Who's Counting
- Flea Market
- Foundation
- Friends of Colorado Boys Ranch
- Frolics
- Gardening
- Genealogy
- Grief Support Group
- Hand & Foot
- Harmoneers
- High 12
- Kiwanis
- Ladies First Friday Bridge
- Ladies Golf
- Low-Vision Support Group
- Luncheon Optimist
- Mac User's Group
- Mah Jongg
- Men's Bridge
- Men's Golf
- Men with a Purpose
- Mexican Train Dominoes
- NARFE (National Association for Retired Federal Employees)
- Order of Eastern Star
- P.E.O. Group
- Parkinson Support Group
- Photography
- Ping Pong
- Pinochle
- Republicans
- Round Table Book Review
- Shriner
- Society of Military Widows
- Stamp Collectors
- Tennis
- TOPS (Take Off Pounds Sensibly)
- Visiting Nurse Association (VNA)
- Visually Impaired Support Group
- Wine & Cheese Club
- Women and Investing
- Woodworking
- Writing




