-
Home type
Ranch
-
Year built
1997
-
Lot size
8,276 sq ft
-
Price per sq ft
$273
-
Taxes
$5613 / Yr
-
HOA fees
$717 / Qtr
-
Last updated
Today
-
Views
16
Questions? Call us: (848) 217-5235
Overview
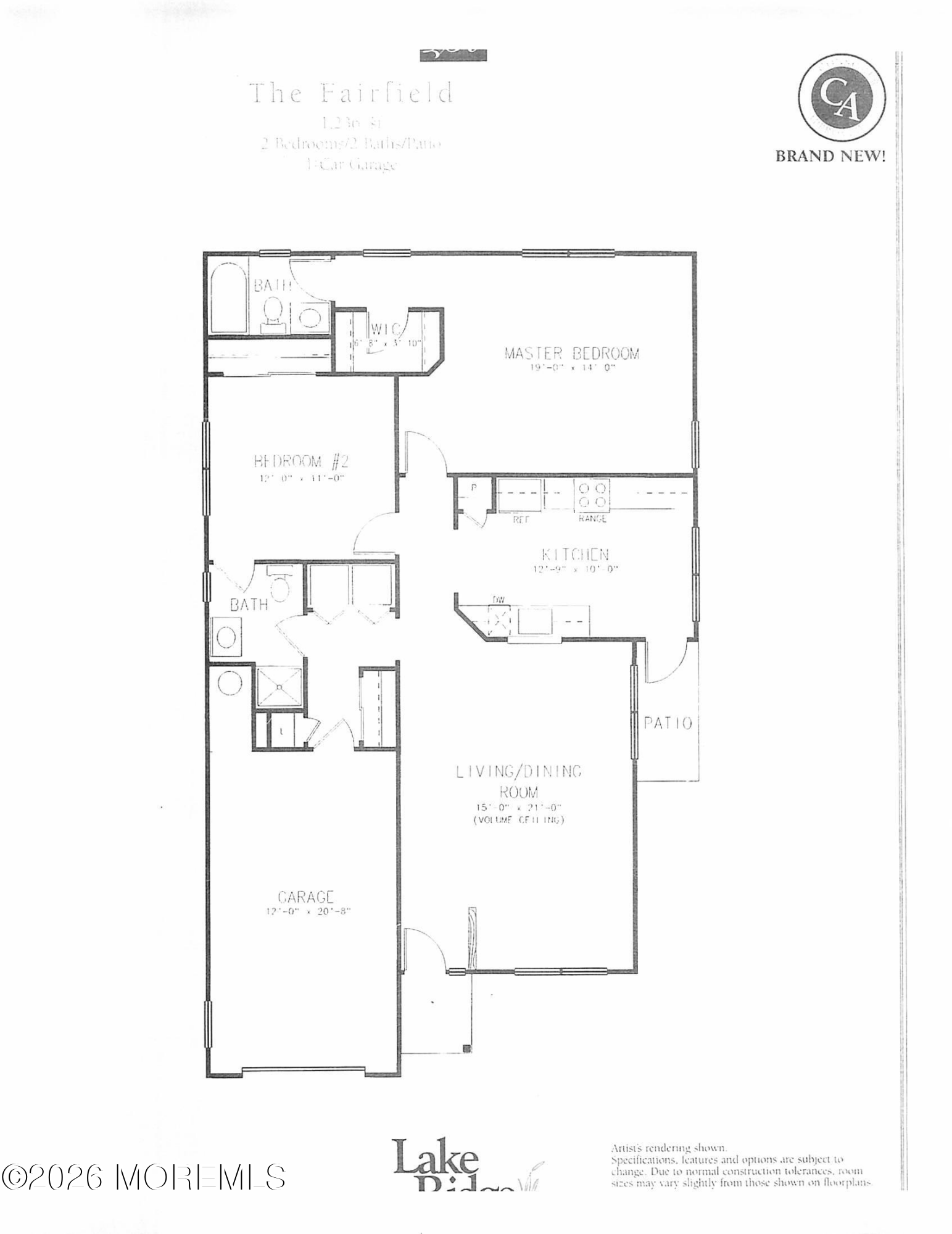
This is a very well maintained and updated home with lots to offer! Formal Living Room, Formal Dining Room, Eat-in-Kitchen with new double oven, Quartz counter tops, updated Appliances and Pantry, Family Room with a gas Fire Place, Spacious Master Bedroom & Bath with 2 Walk-in Closets, Second Bedroom, Guest Bathroom, Laundry Room with Washer & Dryer and Wood Floors throughout. The attached 2-Car Garage with storage above is a just another great feature with its double wide driveway. The New Roof is only months old. The Clubhouse has entertainment from the many Clubs and Committees. The Travel Club has various trips throughout the year. There is Shuffleboard, Tennis, Pickle Ball, Bocci, Exercise Room to workout, Billiards Room, Indoor Heated Pool w/whirlpool and Sauna open all year. and the Outdoor Pool to name a few. All this and more is situated in a 55+ Adult Community with a 24 hour Security Guard at the front entrance and only 15 minutes to various beaches. THIS IS A MUST SEE!!!
Interior
Bedrooms
- Bedrooms: 2
Bathrooms
- Total bathrooms: 2
- Full baths: 2
Laundry
- Laundry Tub
Cooling
- Central Air
Heating
- Natural Gas, Forced Air
Fireplace
- 1
Features
- Attic - Pull Down Stairs, Built-in Features, Recessed Lighting
Size
- 1,814 sq ft
Exterior
Private Pool
- No
Patio & Porch
- Porch - Covered, Patio
Roof
- Timberline,Shingle
Garage
- Attached
- Garage Spaces: 2
- Storage Above
- Direct Access
- Asphalt
- Double Wide Drive
- Driveway
Carport
- None
Year Built
- 1997
Lot Size
- 0.19 acres
- 8,276 sq ft
Waterfront
- No
Water Source
- Public
Sewer
- Public Sewer
Community Info
HOA Fee
- $717
- Frequency: Quarterly
- Includes: Tennis Court(s), Shuffleboard Court, Pickleball Court, Management, Controlled Access, Association, Exercise Room, Community Room, Common Access, Swimming, Pool, Basketball Court, Clubhouse, Common Area, Jogging Path, Bocci
Taxes
- Annual amount: $5,613.00
- Tax year: 2025
Senior Community
- Yes
Location
- City: Toms River
- County/Parrish: Ocean
Listing courtesy of: Cara Mullins, ML Realty Group Inc. Listing Agent Contact Information: [email protected]
MLS ID: 22601684
© 2026 Monmouth Ocean Regional REALTORS (MORMLS). All rights reserved. The data relating to real estate for sale on this website comes in part from the IDX Program of the Monmouth Ocean Regional REALTORS (MORMLS). The data is deemed reliable but not guranteed accurate by Monmouth Ocean Regional REALTORS (MORMLS). Listing information is intended only for personal, non-commercial use and may not be used for any purpose other than to identify prospective properties consumers may be interested in purchasing.
Lake Ridge Real Estate Agent
Want to learn more about Lake Ridge?
Here is the community real estate expert who can answer your questions, take you on a tour, and help you find the perfect home.
Get started today with your personalized 55+ search experience!
Want to learn more about Lake Ridge?
Get in touch with a community real estate expert who can answer your questions, take you on a tour, and help you find the perfect home.
Get started today with your personalized 55+ search experience!
Homes Sold:
55+ Homes Sold:
Sold for this Community:
Avg. Response Time:
Community Key Facts
Age Restrictions
- 55+
Amenities & Lifestyle
- See Lake Ridge amenities
- See Lake Ridge clubs, activities, and classes
Homes in Community
- Total Homes: 926
- Home Types: Single-Family
Gated
- Yes
Construction
- Construction Dates: 1994 - 1998
- Builder: Kokes Organization
Similar homes in this community
Popular cities in New Jersey
The following amenities are available to Lake Ridge - Toms River, NJ residents:
- Clubhouse/Amenity Center
- Restaurant
- Fitness Center
- Indoor Pool
- Outdoor Pool
- Hobby & Game Room
- Arts & Crafts Studio
- Ballroom
- Library
- Billiards
- Tennis Courts
- Bocce Ball Courts
- Shuffleboard Courts
- Horseshoe Pits
- Basketball Court
- Lakes - Scenic Lakes & Ponds
- Outdoor Patio
- Multipurpose Room
- Gazebo
There are plenty of activities available in Lake Ridge. Here is a sample of some of the clubs, activities and classes offered here.
- Book Club
- Bridge
- Chorus
- Computer Club
- Fishing Club
- Gardening Club
- Golf
- Holiday Parties
- Horseshoes
- Italian Culture Club
- Men and Women Veterans Club
- Men's Club
- Music Club
- Shalom Club
- Shuffleboard
- Singers Club
- Singles Group
- Tennis
- Theater
- Travel Club
- Women's Club




