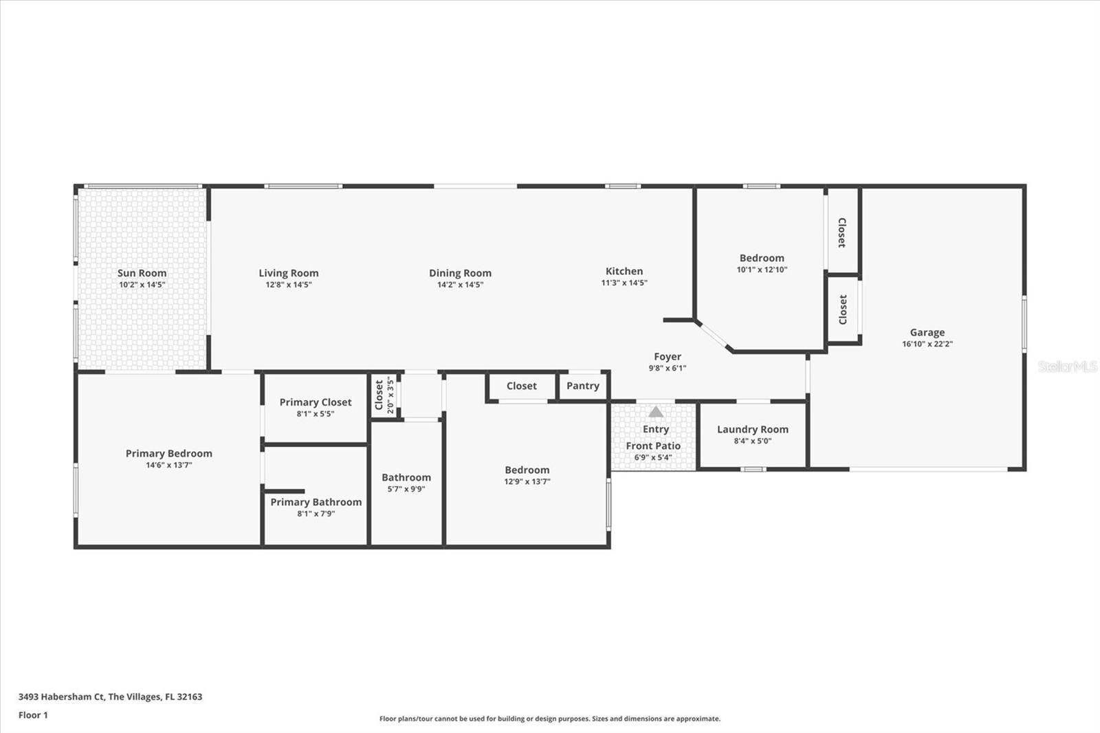
- 3 beds
- 2 baths
- 1,446 sq ft
3493 Habersham Ct, The Villages, FL, 32163
Community: The Villages®
-
Home type
Villa
-
Year built
2013
-
Lot size
4,306 sq ft
-
Price per sq ft
$311
-
Taxes
$4937 / Yr
-
HOA fees
$199 /
-
Last updated
4 days ago
-
Views
5
Questions? Call us: (352) 704-0687
Overview
LOCATION 1 MILE TO BROWNWOOD TOWN SQUARE!! Charming 3 Bedroom, 2 Bath Courtyard Villa in the Village of Collier! Enjoy low-maintenance landscaping and a private courtyard setting ideal for relaxing or entertaining. Step inside to an open and split floor plan featuring luxury vinyl plank flooring in the main living area, carpet in 2 bedrooms and tile in the wet areas and custom closets. The kitchen is a delight with stainless steel appliances, granite counters, breakfast bar, pantry closet, and enhanced natural light from a solar tube and window. The master bedroom has access to the lanai, tray ceiling, custom closet and an ensuite bath with a step-in shower. The additional bedrooms are versatile, with one easily transforming into an office or den, and the other having a pocket door that adds privacy, making it ideal for visitors or family. Additional highlights include interior laundry with storage cabinets and a mud sink, ceiling fans with light kits, cornices and blinds on all windows, and carpet in the master and guest bedrooms for added comfort, and additional storage in the garage. The enclosed lanai with custom sunshades extends the living space outdoors—perfect for morning coffee or evening relaxation. Just a short golf cart ride to the Collier Pool, Eisenhower Regional Recreation Center, Mangrove and Sweet Gum golf courses. This exceptional location is close to Brownwood Paddock Square, shopping, dining, and recreation. This lovely courtyard villa offers style, convenience, and a lifestyle waiting for you to embrace. Watch our video and make an appointment to see it today and start living the Villages dream.
Interior
Appliances
- Dishwasher, Disposal, Dryer, Microwave, Range, Refrigerator, Washer
Bedrooms
- Bedrooms: 3
Bathrooms
- Total bathrooms: 2
- Full baths: 2
Laundry
- Inside
- Laundry Room
Cooling
- Humidity Control
Heating
- Heat Pump
Fireplace
- None
Features
- Ceiling Fan(s), High Ceilings, Living/Dining Room, Open Floorplan, Solid-Wood Cabinets, Split Bedrooms, Stone Counters, Tray Ceiling(s), Vaulted Ceiling(s), Walk-In Closet(s), Window Treatments
Levels
- One
Size
- 1,446 sq ft
Exterior
Private Pool
- No
Patio & Porch
- Enclosed
Roof
- Shingle
Garage
- Attached
- Garage Spaces: 1
Carport
- None
Year Built
- 2013
Lot Size
- 0.1 acres
- 4,306 sq ft
Waterfront
- No
Water Source
- Public
Sewer
- Public Sewer
Community Info
HOA Fee
- $199
- Includes: Basketball Court, Fitness Center, Golf Course, Park, Pickleball, Pool, Racquetball, Recreation Facilities, Shuffleboard Court, Tennis Court(s), Trail(s)
Taxes
- Annual amount: $4,937.29
- Tax year: 2024
Senior Community
- Yes
Features
- Deed Restrictions, Fitness Center, Golf Carts Permitted, Golf, Irrigation-Reclaimed Water, Pool, Racquetball, Sidewalks, Tennis Court(s)
Location
- City: The Villages
- County/Parrish: Sumter
- Township: 19S
Listing courtesy of: Karen Kamperman, KELLER WILLIAMS CORNERSTONE RE, 352-233-2200
MLS ID: G5103942
Listings courtesy of Stellar MLS as distributed by MLS GRID. Based on information submitted to the MLS GRID as of Nov 28, 2025, 05:06am PST. All data is obtained from various sources and may not have been verified by broker or MLS GRID. Supplied Open House Information is subject to change without notice. All information should be independently reviewed and verified for accuracy. Properties may or may not be listed by the office/agent presenting the information. Properties displayed may be listed or sold by various participants in the MLS.
The Villages® Real Estate Agent
Want to learn more about The Villages®?
Here is the community real estate expert who can answer your questions, take you on a tour, and help you find the perfect home.
Get started today with your personalized 55+ search experience!
Want to learn more about The Villages®?
Get in touch with a community real estate expert who can answer your questions, take you on a tour, and help you find the perfect home.
Get started today with your personalized 55+ search experience!
Homes Sold:
55+ Homes Sold:
Sold for this Community:
Avg. Response Time:
Community Key Facts
Age Restrictions
- 55+
Amenities & Lifestyle
- See The Villages® amenities
- See The Villages® clubs, activities, and classes
Homes in Community
- Total Homes: 70,000
- Home Types: Single-Family, Attached, Condos, Manufactured
Gated
- No
Construction
- Construction Dates: 1978 - Present
- Builder: The Villages, Multiple Builders
Similar homes in this community
Popular cities in Florida
The following amenities are available to The Villages® - The Villages, FL residents:
- Clubhouse/Amenity Center
- Golf Course
- Restaurant
- Fitness Center
- Outdoor Pool
- Aerobics & Dance Studio
- Card Room
- Ceramics Studio
- Arts & Crafts Studio
- Sewing Studio
- Woodworking Shop
- Performance/Movie Theater
- Library
- Bowling
- Walking & Biking Trails
- Tennis Courts
- Pickleball Courts
- Bocce Ball Courts
- Shuffleboard Courts
- Horseshoe Pits
- Softball/Baseball Field
- Basketball Court
- Volleyball Court
- Polo Fields
- Lakes - Fishing Lakes
- Outdoor Amphitheater
- R.V./Boat Parking
- Gardening Plots
- Playground for Grandkids
- Continuing Education Center
- On-site Retail
- Hospital
- Worship Centers
- Equestrian Facilities
There are plenty of activities available in The Villages®. Here is a sample of some of the clubs, activities and classes offered here.
- Acoustic Guitar
- Air gun
- Al Kora Ladies Shrine
- Alcoholic Anonymous
- Aquatic Dancers
- Ballet
- Ballroom Dance
- Basketball
- Baton Twirlers
- Beading
- Bicycle
- Big Band
- Bingo
- Bluegrass music
- Bunco
- Ceramics
- Chess
- China Painting
- Christian Bible Study
- Christian Women
- Classical Music Lovers
- Computer Club
- Concert Band
- Country Music Club
- Country Two-Step
- Creative Writers
- Cribbage
- Croquet
- Democrats
- Dirty Uno
- Dixieland Band
- Euchre
- Gaelic Dance
- Gamblers Anonymous
- Genealogical Society
- Gin Rummy
- Guitar
- Happy Stitchers
- Harmonica
- Hearts
- In-line skating
- Irish Music
- Italian Study
- Jazz 'n' Tap
- Journalism
- Knitting Guild
- Mah Jongg
- Model Yacht Racing
- Motorcycle Club
- Needlework
- Overeaters Anonymous
- Overseas living
- Peripheral Neuropathy support
- Philosophy
- Photography
- Pinochle
- Pottery
- Quilters
- RC Flyers
- Recovery Inc.
- Republicans
- Scooter
- Scrabble
- Scrappers
- Senior soccer
- Shuffleboard
- Singles
- Stamping
- Street hockey
- String Orchestra
- Support Groups
- Swing Dance
- Table tennis
- Tai-Chi
- Tappers
- Trivial Pursuit
- VAA
- Village Theater Company
- Volleyball
- Whist




