- 3 beds
- 2 baths
- 1,975 sq ft
371 Quane Ave, Spring Hill, FL, 34609
Community: Wellington at Seven Hills
-
Home type
Single family
-
Year built
2003
-
Lot size
5,750 sq ft
-
Price per sq ft
$127
-
Taxes
$4233 / Yr
-
HOA fees
$225 / Mo
-
Last updated
1 day ago
-
Views
2
-
Saves
16
Questions? Call us: (727) 605-4367
Overview
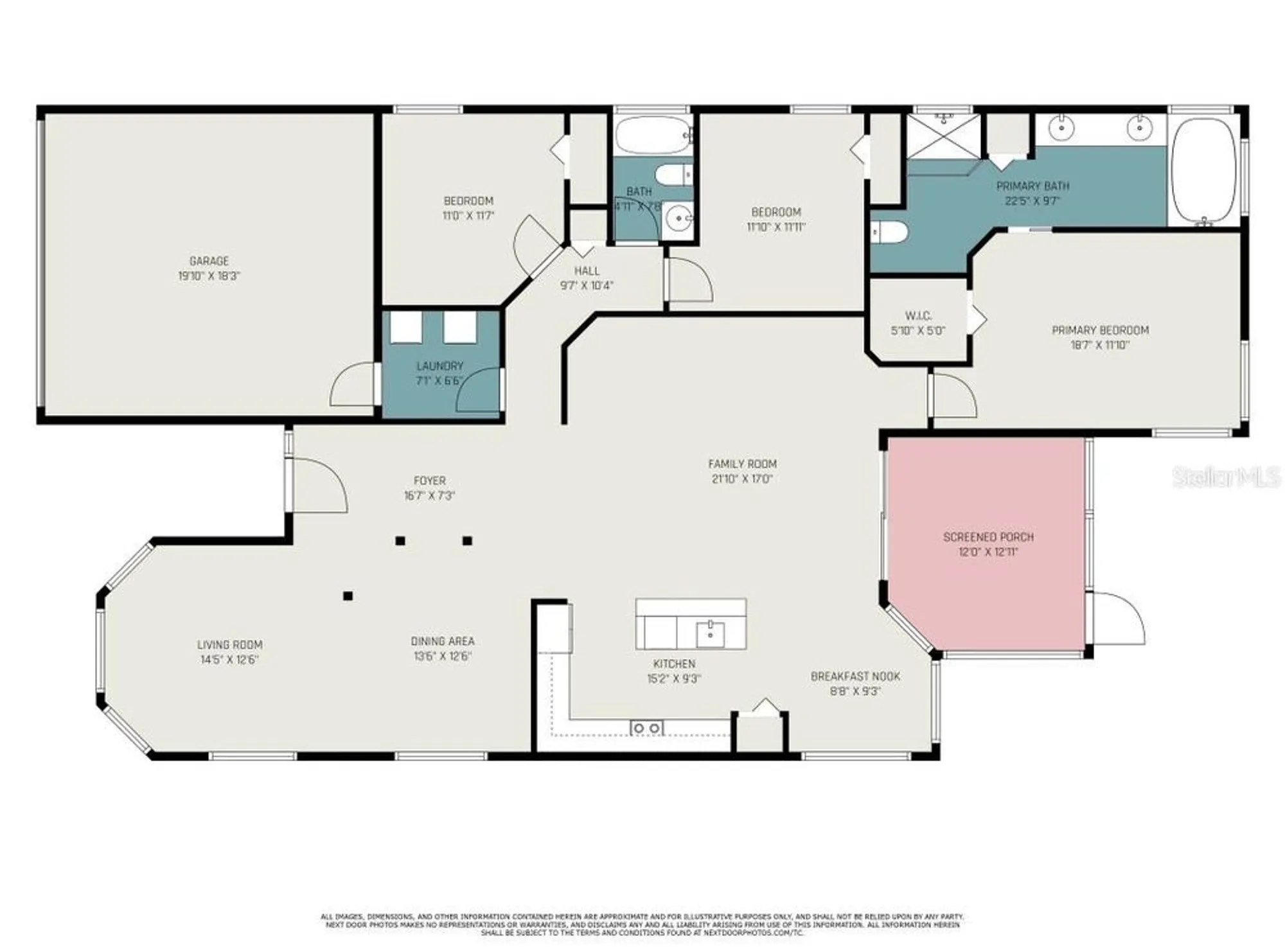
BIG PRICE REDUCTION!!! MOTIVATED SELLERS! ALL THE WALLPAPER IS DOWN!! Looking to retire with an active lifestyle and enjoy the year-round Florida sunshine? The Wellington at Seven Hills offers one of the area's most sought-after 55+ lifestyles in West Central Florida and this home may be the perfect fit for your next chapter in life. The seller's have recently moved to a new home so this amazing opportunity is offered by very motivated sellers offering a significant recent price reduction! Built in 2003, this maintenance-free home provides 1,975 square feet of thoughtfully designed living space and includes the added peace of mind of a new roof installed in 2023. From the moment you enter, the floor plan strikes a balance between openness and practical separation, giving you flexibility whether you're entertaining, relaxing, or taking advantage of the community amenities. You'll find both a living room and a separate family room, as well as a breakfast nook and a formal dining area, offering multiple options for everyday living. The kitchen features an open layout overlooking the breakfast nook and family room, ideal for hosting guests or enjoying your favorite television shows while preparing meals. The indoor laundry keeps you in an air-conditioned environment, making daily chores more comfortable. The primary suite is generously sized, easily accommodating a king-sized bed, and is connected to a large primary bath. Two additional bedrooms provide versatility for guests, crafts, or a home office. As part of The Wellington's maintenance-free homes, the lawn and exterior upkeep are handled by the community, giving you the freedom to enjoy the amenities that make Wellington at Seven Hills so desirable. Residents enjoy access to the clubhouse, pool, fitness facilities, and a full calendar of activities that define this vibrant 55+ community. This home offers comfort, practicality, and the ease of maintenance-free living. For those ready to embrace the best of the Florida retirement lifestyle, this home checks all the boxes. Schedule your tour today! All information is intended to be accurate. Buyer and Buyer's Agent to verify all information.
Interior
Appliances
- Dishwasher, Dryer, Electric Water Heater, Microwave, Range, Refrigerator
Bedrooms
- Bedrooms: 3
Bathrooms
- Total bathrooms: 2
- Full baths: 2
Laundry
- Laundry Room
Cooling
- Central Air
Heating
- Central, Electric
Features
- Ceiling Fan(s), High Ceilings, Kitchen/Family Room Combo, Open Floorplan, Main Level Primary, Walk-In Closet(s)
Levels
- One
Size
- 1,975 sq ft
Exterior
Private Pool
- No
Roof
- Shingle
Garage
- Attached
- Garage Spaces: 2
Carport
- None
Year Built
- 2003
Lot Size
- 0.13 acres
- 5,750 sq ft
Waterfront
- No
Water Source
- Public
Sewer
- Public Sewer
Community Info
HOA Information
- Association Fee: $225
- Association Fee Frequency: Monthly
Taxes
- Annual amount: $4,233.30
- Tax year: 2024
Senior Community
- Yes
Location
- City: Spring Hill
- County/Parrish: Hernando
- Township: 23S
Listing courtesy of: John Allocco Jr, PA, HOME LAND REAL ESTATE INC, 352-556-0909
MLS ID: W7880853
Listings courtesy of Stellar MLS as distributed by MLS GRID. Based on information submitted to the MLS GRID as of Mar 03, 2026, 10:55am PST. All data is obtained from various sources and may not have been verified by broker or MLS GRID. Supplied Open House Information is subject to change without notice. All information should be independently reviewed and verified for accuracy. Properties may or may not be listed by the office/agent presenting the information. Properties displayed may be listed or sold by various participants in the MLS.
Wellington at Seven Hills Real Estate Agent
Want to learn more about Wellington at Seven Hills?
Here is the community real estate expert who can answer your questions, take you on a tour, and help you find the perfect home.
Get started today with your personalized 55+ search experience!
Want to learn more about Wellington at Seven Hills?
Get in touch with a community real estate expert who can answer your questions, take you on a tour, and help you find the perfect home.
Get started today with your personalized 55+ search experience!
Homes Sold:
55+ Homes Sold:
Sold for this Community:
Avg. Response Time:
Community Key Facts
Age Restrictions
- 55+
Amenities & Lifestyle
- See Wellington at Seven Hills amenities
- See Wellington at Seven Hills clubs, activities, and classes
Homes in Community
- Total Homes: 1,108
- Home Types: Attached, Single-Family
Gated
- Yes
Construction
- Construction Dates: 1999 - 2008
- Builder: Ryland Homes, Ryland
Similar homes in this community
Popular cities in Florida
The following amenities are available to Wellington at Seven Hills - Spring Hill, FL residents:
- Clubhouse/Amenity Center
- Restaurant
- Fitness Center
- Outdoor Pool
- Ballroom
- Computers
- Library
- Billiards
- Walking & Biking Trails
- Tennis Courts
- Bocce Ball Courts
- Shuffleboard Courts
- Horseshoe Pits
- Lakes - Scenic Lakes & Ponds
- Outdoor Patio
- Multipurpose Room
- Spa
There are plenty of activities available in Wellington at Seven Hills. Here is a sample of some of the clubs, activities and classes offered here.
- Art Group
- Bingo
- Bocce Ball
- Book Club
- Bowling League
- Bridge
- C.E.R.T. (Community Emergency Response Team)
- Canasta
- Crime Watch
- Democratic Club
- Dominos
- Duplicate Bridge
- Euchre
- Gadabouts (Singles group)
- Genealogy Class
- Horseshoes
- Indoor Walking
- Ladies 9 Ball
- Ladies 9-Hole Golf
- Line Dancing Classes
- Mahjong
- Men's Billiards
- Mixed Shuffleboard
- Piano Night
- Poker
- Quilting & Stitchery Club
- Red Hats
- Republican Club
- Scrapbookers/Card Makers Club
- Tai Chi
- Tennis (Levels 1-2- above
- The TRI-State Club (NJ. PA, NY
- Tuesday Men's Golf League
- Water Aerobics
- Water Exercises
- Wellington Golf Leagues
- Wellington Veterans Club Meetings
- Wellington Wanderers Travel Group




