-
Home type
Condominium
-
Year built
2016
-
Price per sq ft
$470
-
Taxes
$13502 / Yr
-
HOA fees
$418 / Mo
-
Last updated
Today
-
Views
3
-
Saves
1
Questions? Call us: (941) 269-2633
Overview
Get ready to be impressed with this rarely available PENTHOUSE in beautiful One Particular Harbour in Harbour Isle. This condo has magnificant views of Anna Maria Sound and the luxurious pool area right outside your home. The Penthouse offers high ceilings with no one living above you. This condo has been the second home for the owners and never rented. Beautiful plantation shutters throughout with shades on the sliding glass doors to the screened porch. Heated pool , spa and fitness center in amazing Beach Club with Sky Bar and is a great place to meet your neighbors or entertain friends. Close to beautiful beaches of Anna Maria Island, restaurants, Robinson Preserve and convenient to downtown Bradenton and Bradenton-Sarasota airport. It is being sold furnished and ready to move-in. If you're ready to have a home in Paradise, make an appointment today. You'll be glad you did.
Interior
Appliances
- Dishwasher, Disposal, Dryer, Electric Water Heater, Microwave, Range, Refrigerator, Washer
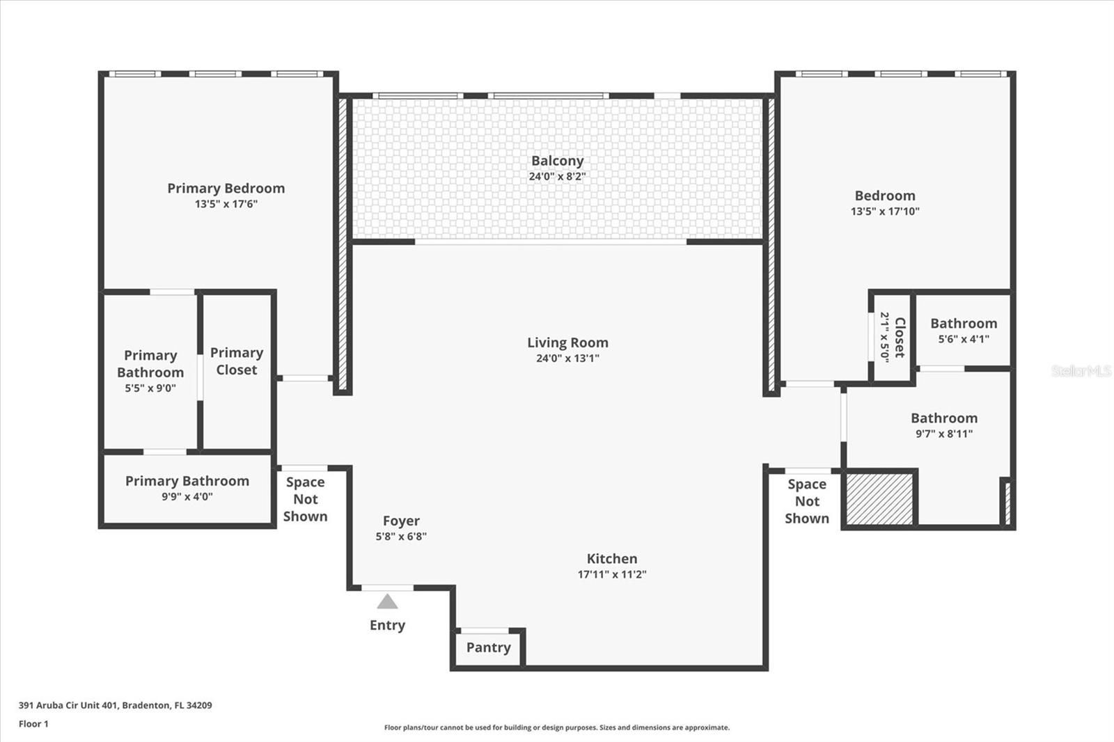
Bedrooms
- Bedrooms: 2
Bathrooms
- Total bathrooms: 2
- Full baths: 2
Laundry
- Laundry Closet
- On Floor
Cooling
- Central Air
Heating
- Central, Electric
Features
- Ceiling Fan(s), Eat-in Kitchen, High Ceilings, Main Level Primary, Solid Surface Counters, Thermostat, Window Treatments
Levels
- One
Size
- 1,456 sq ft
Exterior
Private Pool
- No
Patio & Porch
- Covered, Porch, Screened
Roof
- Built-Up
Garage
- None
Carport
- Carport Spaces:
- Assigned
- Covered
- Ground Level
- Basement
Year Built
- 2016
Waterfront
- No
Water Source
- Public
Sewer
- Public Sewer
Community Info
HOA Information
- Association Fee: $418
- Association Fee Frequency: Monthly
- Association Fee 2: $1,247
- Association Fee 2 Frequency: Monthly
- Association Fee Includes: Clubhouse, Elevator(s), Fitness Center, Gated, Playground, Pool, 24 Hour Guard, Cable TV, Common Area Taxes, Pool(s), Escrow Reserves Fund, Insurance, Internet, Maintenance Structure, Maintenance Grounds, Maintenance, Association Management, Pest Control, Private Roads, Security, Sewer, Trash
Taxes
- Annual amount: $13,501.70
- Tax year: 2024
Senior Community
- No
Features
- Clubhouse, Community Mailbox, Gated, Golf Carts Permitted, Playground, Pool
Location
- City: Bradenton
- County/Parrish: Manatee
- Township: 34S
Listing courtesy of: Kathy Bergloff, MICHAEL SAUNDERS & COMPANY, 941-748-6300
MLS ID: A4678976
Listings courtesy of Stellar MLS as distributed by MLS GRID. Based on information submitted to the MLS GRID as of Mar 20, 2026, 10:16pm PDT. All data is obtained from various sources and may not have been verified by broker or MLS GRID. Supplied Open House Information is subject to change without notice. All information should be independently reviewed and verified for accuracy. Properties may or may not be listed by the office/agent presenting the information. Properties displayed may be listed or sold by various participants in the MLS.
Harbour Isle Real Estate Agent
Want to learn more about Harbour Isle?
Here is the community real estate expert who can answer your questions, take you on a tour, and help you find the perfect home.
Get started today with your personalized 55+ search experience!
Want to learn more about Harbour Isle?
Get in touch with a community real estate expert who can answer your questions, take you on a tour, and help you find the perfect home.
Get started today with your personalized 55+ search experience!
Homes Sold:
55+ Homes Sold:
Sold for this Community:
Avg. Response Time:
Community Key Facts
Age Restrictions
- None
Amenities & Lifestyle
- See Harbour Isle amenities
- See Harbour Isle clubs, activities, and classes
Homes in Community
- Total Homes: 686
- Home Types: Attached, Condos
Gated
- Yes
Construction
- Construction Dates: 2010 - Present
- Builder: , Minto Communities
Similar homes in this community
Popular cities in Florida
The following amenities are available to Harbour Isle - Bradenton, FL residents:
- Clubhouse/Amenity Center
- Fitness Center
- Outdoor Pool
- Billiards
- Walking & Biking Trails
- Lakes - Scenic Lakes & Ponds
- Lakes - Boat Accessible
- Outdoor Amphitheater
- Outdoor Patio
- Multipurpose Room
- Boat Launch
- Beach
- Lounge
- BBQ
- Fire Pit
- Kayaking/Kayak Equipment
- Bar
There are plenty of activities available in Harbour Isle. Here is a sample of some of the clubs, activities and classes offered here.
- Arts & Craft
- Billiards
- Boating & Fishing
- Book Club
- Golf
- Kayaking
- Party by the Pool
- Photography Group
- Sewing Group
- Swimming
- Water Aerobics
- Yoga




