- 2 beds
- 2 baths
- 1,188 sq ft
407 Tarrson Blvd, The Villages, FL, 32159
Community: The Villages®
-
Home type
Manufactured home
-
Year built
1985
-
Lot size
8,580 sq ft
-
Price per sq ft
$160
-
Taxes
$785 / Yr
-
HOA fees
$199 /
-
Last updated
1 day ago
-
Views
15
Questions? Call us: (352) 704-0687
Overview
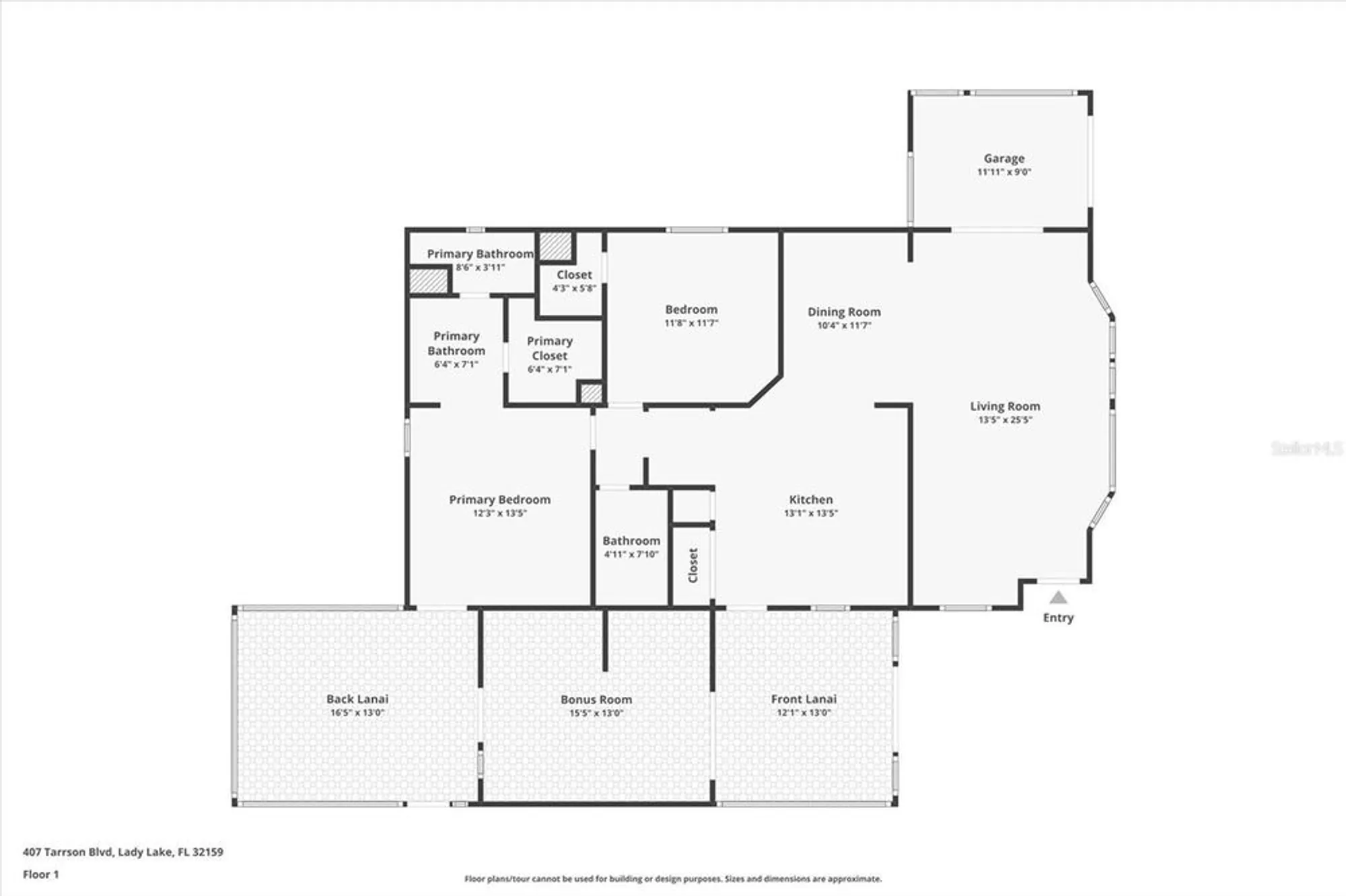
2/2 Manufactured Home with Dual Screened Lanais, Carport and Golf Cart Garage in the Village of Silver Lake! New Roof 2024, HVAC 2019 and Hot Water Heater 2011. NO BOND and NO CDD. Tucked away at a peaceful cul-de-sac, this inviting home offers comfort, functionality, and great spaces for relaxing or entertaining. Enjoy two screened lanais, including a rear lanai featuring a hot tub and convenient access from the master bedroom. Inside, you’ll find vaulted ceilings and wood look laminate flooring throughout with carpet in the guest bedroom. Wainscoting throughout adds warmth and character. The dining room features built-in cabinets and shelves, while sunshades in the large living room provide comfort and privacy. The kitchen is complete with a cooking island and breakfast bar for casual dining, built-in oven, solar tube, dual pantry closets, and a window for natural light. A built-in desk in the hall adds a convenient workspace. The master suite includes an en-suite bath with dual vanities, a private water closet with shower, and a walk-in closet. Between the two lanais, you’ll find a versatile laundry room and workshop/man cave, perfect for hobbies or projects. Additional highlights include stained glass front door, walk in closet in guest bedroom, a golf cart garage with easy access into the home, and window blinds throughout. Furniture is optional. Ideally located just minutes from Spanish Springs Town Square, shopping, dining, and recreation. Make your appointment to see this home and enjoy all The Villages lifestyle has to provide!
Interior
Appliances
- Built-In Oven, Cooktop, Dishwasher, Disposal, Dryer, Refrigerator, Washer
Bedrooms
- Bedrooms: 2
Bathrooms
- Total bathrooms: 2
- Full baths: 2
Laundry
- Laundry Room
Cooling
- Central Air
Heating
- Central
Fireplace
- None
Features
- Ceiling Fan(s), Chair Rail, Eat-in Kitchen, High Ceilings, Vaulted Ceiling(s), Walk-In Closet(s), Window Treatments
Levels
- One
Size
- 1,188 sq ft
Exterior
Private Pool
- No
Patio & Porch
- Covered, Rear Porch, Screened, Side Porch
Roof
- Shingle
Garage
- None
Carport
- Carport Spaces:
- Driveway
- Golf Cart Garage
Year Built
- 1985
Lot Size
- 0.2 acres
- 8,580 sq ft
Waterfront
- No
Water Source
- Public
Sewer
- Public Sewer
Community Info
HOA Fee
- $199
- Includes: Basketball Court, Fitness Center, Golf Course, Park, Pickleball, Pool, Racquetball, Recreation Facilities, Shuffleboard Court, Tennis Court(s)
Taxes
- Annual amount: $785.09
- Tax year: 2024
Senior Community
- Yes
Features
- Community Mailbox, Deed Restrictions, Dog Park, Fitness Center, Golf Carts Permitted, Golf, Irrigation-Reclaimed Water, Pool
Location
- City: The Villages
- County/Parrish: Lake
- Township: 18S
Listing courtesy of: Karen Kamperman, KELLER WILLIAMS CORNERSTONE RE, 352-233-2200
MLS ID: G5104340
Listings courtesy of Stellar MLS as distributed by MLS GRID. Based on information submitted to the MLS GRID as of Nov 28, 2025, 05:06am PST. All data is obtained from various sources and may not have been verified by broker or MLS GRID. Supplied Open House Information is subject to change without notice. All information should be independently reviewed and verified for accuracy. Properties may or may not be listed by the office/agent presenting the information. Properties displayed may be listed or sold by various participants in the MLS.
The Villages® Real Estate Agent
Want to learn more about The Villages®?
Here is the community real estate expert who can answer your questions, take you on a tour, and help you find the perfect home.
Get started today with your personalized 55+ search experience!
Want to learn more about The Villages®?
Get in touch with a community real estate expert who can answer your questions, take you on a tour, and help you find the perfect home.
Get started today with your personalized 55+ search experience!
Homes Sold:
55+ Homes Sold:
Sold for this Community:
Avg. Response Time:
Community Key Facts
Age Restrictions
- 55+
Amenities & Lifestyle
- See The Villages® amenities
- See The Villages® clubs, activities, and classes
Homes in Community
- Total Homes: 70,000
- Home Types: Single-Family, Attached, Condos, Manufactured
Gated
- No
Construction
- Construction Dates: 1978 - Present
- Builder: The Villages, Multiple Builders
Similar homes in this community
Popular cities in Florida
The following amenities are available to The Villages® - The Villages, FL residents:
- Clubhouse/Amenity Center
- Golf Course
- Restaurant
- Fitness Center
- Outdoor Pool
- Aerobics & Dance Studio
- Card Room
- Ceramics Studio
- Arts & Crafts Studio
- Sewing Studio
- Woodworking Shop
- Performance/Movie Theater
- Library
- Bowling
- Walking & Biking Trails
- Tennis Courts
- Pickleball Courts
- Bocce Ball Courts
- Shuffleboard Courts
- Horseshoe Pits
- Softball/Baseball Field
- Basketball Court
- Volleyball Court
- Polo Fields
- Lakes - Fishing Lakes
- Outdoor Amphitheater
- R.V./Boat Parking
- Gardening Plots
- Playground for Grandkids
- Continuing Education Center
- On-site Retail
- Hospital
- Worship Centers
- Equestrian Facilities
There are plenty of activities available in The Villages®. Here is a sample of some of the clubs, activities and classes offered here.
- Acoustic Guitar
- Air gun
- Al Kora Ladies Shrine
- Alcoholic Anonymous
- Aquatic Dancers
- Ballet
- Ballroom Dance
- Basketball
- Baton Twirlers
- Beading
- Bicycle
- Big Band
- Bingo
- Bluegrass music
- Bunco
- Ceramics
- Chess
- China Painting
- Christian Bible Study
- Christian Women
- Classical Music Lovers
- Computer Club
- Concert Band
- Country Music Club
- Country Two-Step
- Creative Writers
- Cribbage
- Croquet
- Democrats
- Dirty Uno
- Dixieland Band
- Euchre
- Gaelic Dance
- Gamblers Anonymous
- Genealogical Society
- Gin Rummy
- Guitar
- Happy Stitchers
- Harmonica
- Hearts
- In-line skating
- Irish Music
- Italian Study
- Jazz 'n' Tap
- Journalism
- Knitting Guild
- Mah Jongg
- Model Yacht Racing
- Motorcycle Club
- Needlework
- Overeaters Anonymous
- Overseas living
- Peripheral Neuropathy support
- Philosophy
- Photography
- Pinochle
- Pottery
- Quilters
- RC Flyers
- Recovery Inc.
- Republicans
- Scooter
- Scrabble
- Scrappers
- Senior soccer
- Shuffleboard
- Singles
- Stamping
- Street hockey
- String Orchestra
- Support Groups
- Swing Dance
- Table tennis
- Tai-Chi
- Tappers
- Trivial Pursuit
- VAA
- Village Theater Company
- Volleyball
- Whist




