-
Home type
Single family
-
Year built
1997
-
Lot size
10,454 sq ft
-
Price per sq ft
$199
-
Taxes
$2872 / Yr
-
HOA fees
$185 / Mo
-
Last updated
Today
-
Views
9
-
Saves
3
Questions? Call us: (352) 780-7415
Overview
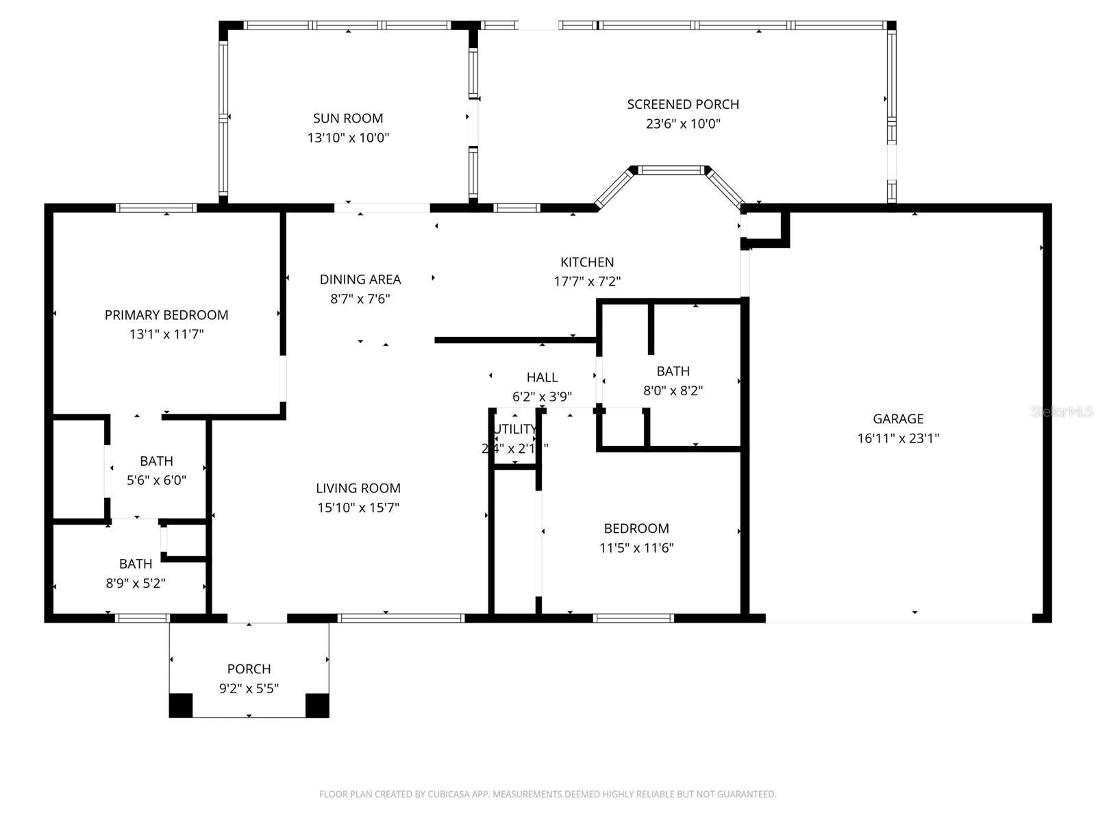
Welcome to this beautifully well-maintained home located in the desirable 55+ community of Cherrywood Estates in Ocala! Situated at 6196 SW 101st Place, this charming 2-bedroom, 2-bath home offers comfort, style, and easy Florida living in a friendly, golf-cart-friendly neighborhood. Step inside and you’ll immediately notice the lovely LVP flooring throughout the home — with NO carpet, making it both stylish and easy to maintain. The home features a bright dining area that opens to the spacious living room, creating a welcoming space perfect for relaxing or entertaining. The kitchen includes a cozy breakfast nook, ideal for morning coffee or casual meals. Enjoy peace of mind with major updates already completed, including a new roof and HVAC system installed in 2020. Whole house water softner. Pre-wired generator hook-up. One of the highlights of this home is the additional living space. A 10 x 15 enclosed patio offers a wonderful bonus room that can be used as a sitting room, hobby space, or home office. Step outside to the 10 x 24 screened patio, perfect for grilling, entertaining guests, or simply relaxing and enjoying Florida’s beautiful weather. Cherrywood Estates is known for its active lifestyle and welcoming atmosphere, and the HOA includes cable and internet, adding even more value and convenience. Plus, the neighborhood is golf cart friendly, making it easy and fun to explore the community and amenities. Whether you’re looking to downsize or enjoy a relaxed retirement lifestyle, this move-in ready home offers comfort, charm, and the best of Florida living. Come see why so many love calling Cherrywood Estates home!
Interior
Appliances
- Dishwasher, Dryer, Microwave, Range, Refrigerator, Washer, Water Softener
Bedrooms
- Bedrooms: 2
Bathrooms
- Total bathrooms: 2
- Full baths: 2
Laundry
- In Garage
Cooling
- Central Air
Heating
- Electric
Features
- Cathedral Ceiling(s), Ceiling Fan(s), Living/Dining Room, Split Bedrooms
Levels
- One
Size
- 1,148 sq ft
Exterior
Private Pool
- No
Roof
- Shingle
Garage
- Attached
- Garage Spaces: 2
Carport
- None
Year Built
- 1997
Lot Size
- 0.24 acres
- 10,454 sq ft
Waterfront
- No
Water Source
- None
Sewer
- Septic Tank
Community Info
HOA Information
- Association Fee: $185
- Association Fee Frequency: Monthly
- Association Fee 2: $143
- Association Fee Includes: Basketball Court, Cable TV, Clubhouse, Fitness Center, Pickleball, Pool, Shuffleboard Court, Tennis Court(s), Cable TV, Internet
Taxes
- Annual amount: $2,871.56
- Tax year: 2025
Senior Community
- Yes
Features
- Clubhouse, Fitness Center, Golf Carts Permitted, Pool, Tennis Court(s)
Location
- City: Ocala
- County/Parrish: Marion
- Township: 16S
Listing courtesy of: Bobbie Jo Clark, CROWN & GLORY REALTY INC, 352-274-8046
MLS ID: OM719965
Listings courtesy of Stellar MLS as distributed by MLS GRID. Based on information submitted to the MLS GRID as of Mar 06, 2026, 05:03pm PST. All data is obtained from various sources and may not have been verified by broker or MLS GRID. Supplied Open House Information is subject to change without notice. All information should be independently reviewed and verified for accuracy. Properties may or may not be listed by the office/agent presenting the information. Properties displayed may be listed or sold by various participants in the MLS.
Cherrywood Real Estate Agent
Want to learn more about Cherrywood?
Here is the community real estate expert who can answer your questions, take you on a tour, and help you find the perfect home.
Get started today with your personalized 55+ search experience!
Want to learn more about Cherrywood?
Get in touch with a community real estate expert who can answer your questions, take you on a tour, and help you find the perfect home.
Get started today with your personalized 55+ search experience!
Homes Sold:
55+ Homes Sold:
Sold for this Community:
Avg. Response Time:
Community Key Facts
Age Restrictions
- 55+
Amenities & Lifestyle
- See Cherrywood amenities
- See Cherrywood clubs, activities, and classes
Homes in Community
- Total Homes: 700
- Home Types: Single-Family
Gated
- No
Construction
- Construction Dates: 1996 - 2003
- Builder: Cherry Developers,
Similar homes in this community
Popular cities in Florida
The following amenities are available to Cherrywood - Ocala, FL residents:
- Clubhouse/Amenity Center
- Fitness Center
- Outdoor Pool
- Card Room
- Arts & Crafts Studio
- Sewing Studio
- Ballroom
- Library
- Billiards
- Tennis Courts
- Bocce Ball Courts
- Shuffleboard Courts
- Horseshoe Pits
- Basketball Court
- Picnic Area
There are plenty of activities available in Cherrywood. Here is a sample of some of the clubs, activities and classes offered here.
- Accordion
- Aerobics
- Billiards
- Bingo
- Bowling
- Chess
- Crochet
- Democratic
- Dominoes
- Ladies Billiards
- Ladies Luncheon
- Line Dancing
- Mah Jongg
- Needlecraft
- Painting
- Pickleball
- Pilates
- Ping Pong
- Pinochle
- Pokeno
- Poker
- Quilting
- Tennis
- Travel
- Shuffleboard
- Singles
- Songbirds




