- 2 beds
- 2 baths
- 1,595 sq ft
6243 Scuttle Ln, Denver, NC, 28037
Community: Trilogy® Lake Norman
-
Home type
Single family
-
Year built
2023
-
Lot size
4,922 sq ft
-
Price per sq ft
$313
-
HOA fees
$540 / Mo
-
Last updated
1 day ago
-
Saves
1
Questions? Call us: (980) 385-8734
Overview
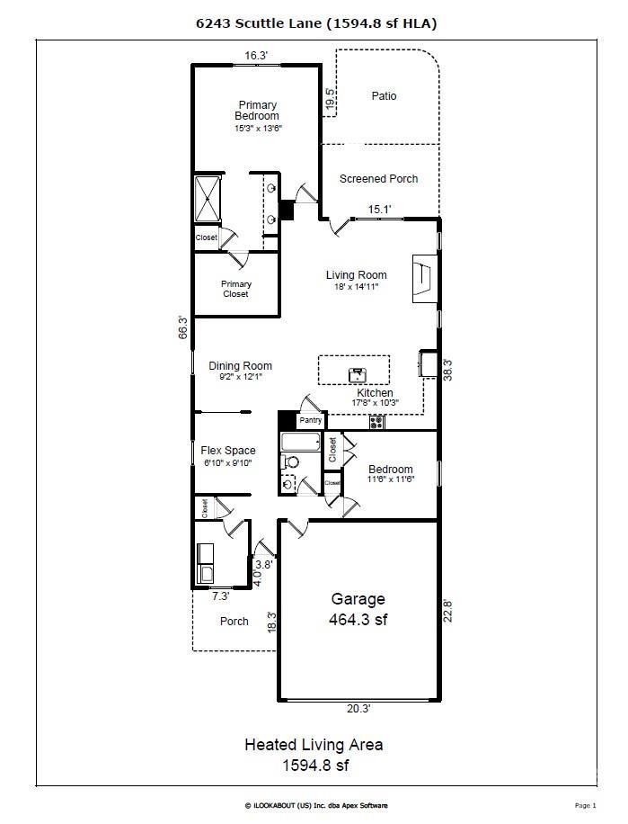
Welcome to Trilogy Lake Norman, a resort-style, golf cart friendly, gated community for ages 55 and better. This 2023 beautifully maintained move-in ready home is ready for you to live your best life. The popular single level open-concept Glory floor plan is a well-planned blend of function and space designed for daily living. The heart of the house is a well-appointed chef’s kitchen with a 9-foot island, substantial cabinet space with upper and lower lighting, configurable pantry and stainless-steel appliances that include an upgraded gas range with dual ovens. The kitchen flows seamlessly into the dining room and great room making this home for ideal entertaining. A spacious primary suite overlooks the backyard and leads into a master bath with dual vanities, toilet closet and a walk-in shower with bench seating. Thoughtful upgrades inside and out include a gas fireplace with logs, designer lighting & fans, recessed lighting, extended finished garage with epoxy flooring, screened porch with extended paver patio and seating wall, customizable shelving, security system and custom window shades. Smart home features are throughout the home and can be managed through simple app connections to your phone. Features include programmable interior and exterior lighting, programmable thermostat, a front door Ring doorbell with camera, back patio Ring camera, app accessible garage door control and front door keyless entry. The beautifully landscaped lot borders a common area giving an extended feel to the backyard. The HOA creates ease of living with fees including front and side yard maintenance. Trilogy Lake Norman’s social membership offers an active lifestyle of indoor & outdoor pools, fitness center & classes, walking trails, pickleball, tennis, community events and an on-site restaurant. In addition to the amazing resort amenities, members have access to Lake Norman through the Freedom Boat Club giving you all the pleasures of boating without the stress of ownership. Schedule your showing and be one step closer to living the lifestyle you've always dreamed of.
Interior
Appliances
- Dishwasher, Disposal, Double Oven, Electric Water Heater, Exhaust Fan, Exhaust Hood, Gas Cooktop, Gas Range, Microwave, Self Cleaning Oven
Bedrooms
- Bedrooms: 2
Bathrooms
- Total bathrooms: 2
- Full baths: 2
Laundry
- Electric Dryer Hookup
- Laundry Room
- Main Level
Cooling
- Ceiling Fan(s), Central Air
Heating
- Forced Air, Natural Gas
Fireplace
- 1, Gas Log,Great Room
Features
- Attic Stairs Pulldown, Kitchen Island, Pantry, Walk-In Closet(s)
Levels
- One
Size
- 1,595 sq ft
Exterior
Private Pool
- No
Garage
- Attached
- Garage Spaces: 2
- Attached Garage
- Garage Door Opener
Carport
- None
Year Built
- 2023
Lot Size
- 0.11 acres
- 4,922 sq ft
Waterfront
- No
Water Source
- County Water
Sewer
- County Sewer
Community Info
HOA Information
- Association Fee: $540
- Association Fee Frequency: Monthly
Senior Community
- Yes
Features
- Fifty Five and Older, Clubhouse, Dog Park, Fitness Center, Outdoor Pool, Tennis Court(s), Walking Trails
Location
- City: Denver
- County/Parrish: Lincoln
Listing courtesy of: Robin Hurd, Carolina Realty Solutions Listing Agent Contact Information: 704-968-5273
MLS ID: 4362017
Listings courtesy of Canopy MLS as distributed by MLS GRID. Based on information submitted to the MLS GRID as of May 26, 2026, 12:39am PDT. All data is obtained from various sources and may not have been verified by broker or MLS GRID. Supplied Open House Information is subject to change without notice. All information should be independently reviewed and verified for accuracy. Properties may or may not be listed by the office/agent presenting the information. Properties displayed may be listed or sold by various participants in the MLS. Some IDX listings have been excluded from this website.The Digital Millennium Copyright Act of 1998, 17 U.S.C. § 512 (the "DMCA") provides recourse for copyright owners who believe that material appearing on the Internet infringes their rights under U.S. copyright law. If you believe in good faith that any content or material made available in connection with our website or services infringes your copyright, you (or your agent) may send us a notice requesting that the content or material be removed, or access to it blocked. Notices must be sent in writing by email to [email protected] DMCA requires that your notice of alleged copyright infringement include the following information:(1) description of the copyrighted work that is the subject of claimed infringement;(2) description of the alleged infringing content and information sufficient to permit us to locate the content;(3) contact information for you, including your address, telephone number and email address;(4) a statement by you that you have a good faith belief that the content in the manner complained of is not authorized by the copyright owner, or its agent, or by the operation of any law;(5) a statement by you, signed under penalty of perjury, that the information in the notification is accurate and that you have the authority to enforce the copyrights that are claimed to be infringed; and(6) a physical or electronic signature of the copyright owner or a person authorized to act on the copyright owner’s behalf. Failure to include all of the above information may result in the delay of the processing of your complaint.
Trilogy® Lake Norman Real Estate Agent
Want to learn more about Trilogy® Lake Norman?
Here is the community real estate expert who can answer your questions, take you on a tour, and help you find the perfect home.
Get started today with your personalized 55+ search experience!
Want to learn more about Trilogy® Lake Norman?
Get in touch with a community real estate expert who can answer your questions, take you on a tour, and help you find the perfect home.
Get started today with your personalized 55+ search experience!
Homes Sold:
55+ Homes Sold:
Sold for this Community:
Avg. Response Time:
Community Key Facts
Age Restrictions
- 55+
Amenities & Lifestyle
- See Trilogy® Lake Norman amenities
- See Trilogy® Lake Norman clubs, activities, and classes
Homes in Community
- Total Homes: 1,100
- Home Types: Single-Family
Gated
- Yes
Construction
- Construction Dates: 2015 - Present
- Builder: Shea Homes
Similar homes in this community
Popular cities in North Carolina
The following amenities are available to Trilogy® Lake Norman - Denver, NC residents:
- Clubhouse/Amenity Center
- Restaurant
- Fitness Center
- Indoor Pool
- Outdoor Pool
- Arts & Crafts Studio
- Ballroom
- Walking & Biking Trails
- Tennis Courts
- Pickleball Courts
- Bocce Ball Courts
- Outdoor Amphitheater
- Parks & Natural Space
- Demonstration Kitchen
- Outdoor Patio
- Multipurpose Room
- Lounge
There are plenty of activities available in Trilogy® Lake Norman. Here is a sample of some of the clubs, activities and classes offered here.
- All Things Italian Club
- Art Club
- Bicycle
- Bikers
- Billiards
- Bingo
- Birding
- Bocce Ball
- Book Clubs
- Bowling
- Bunco
- Camera
- Canasta
- Car Club
- Chess
- Cigar
- Cigar Club of Twin Mills
- Community Affairs Club
- Community Garden
- Craft Beer Club
- Cycling
- Dance
- Debate
- Dinner Club
- Duplicate Bridge Club
- Emergency Preparedness Team
- Euchre Club
- Financial Sharing
- Fishing Club of Twin Mills
- Fitness Classes
- Food Talk
- Garden Club of Twin Mills
- Geneaology
- Glass Fusing
- Golf
- Hiking
- Italian Interest
- Lake Norman Social Club
- Mahjong
- Men's Breakfast Club
- Men's Shotgun Group
- Mexican Train
- Musicians Meet-Up
- Mystery Book
- Nubian Experience
- Photography
- Pickleball
- Pilates
- Ping Pong
- Pinochle
- Poker Club
- Pottery Club at Twin Mills
- Progressive Dinner
- Quilting Club
- RV Club
- STEM
- Shalom
- Singles
- Ski
- Social Bridge Club
- Softball
- Stick Ball Club
- Table Tennis Club of Twin Mills
- Tai Chi
- Tennis
- Texas Hold 'Em
- Theater
- Travel
- Twin Mills Golf Group
- Twin Mills Service Club
- Veterans
- Wine
- Women's Coffee Club
- Women's Lunch Club
- Yoga




