- 3 beds
- 2 baths
- 1,568 sq ft
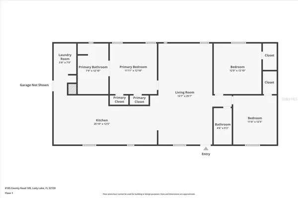
8185 County Rd 109, Lady Lake, FL, 32159
Community: The Villages®
-
Home type
Manufactured home
-
Year built
1993
-
Lot size
21,780 sq ft
-
Price per sq ft
$128
-
Taxes
$826 / Yr
-
Last updated
Today
-
Views
24
-
Saves
3
Questions? Call us: (352) 704-0687
Overview
3/2 Manufactured home on 1/2 acres in The Oakland Hills subdivision. This great location is close to shopping and dining and just minutes to Spanish Springs Town Center in The Villages. New Roof 2021 and HVAC 2022. New Septic Tank 2021. Enjoy comfortable living in this well-designed home featuring an open and split floor plan ideal for both everyday living and entertaining. Carpeted main areas are complemented by durable vinyl flooring in the wet areas. Enjoy a spacious living room and eat-in kitchen that offers stainless steel appliances, abundant cabinetry, and plenty of room for casual dining. An interior laundry room adds convenience to this home. The private master suite includes an ensuite bath with a relaxing garden tub and separate shower. Guests will appreciate an updated bath with a walk-in shower and no tub for easy access. Step outside to the screened lanai — perfect for morning coffee or evening relaxation. A 2-car carport provides ample covered parking with a separate storage room behind. And With no home beside you and a retention pond next door, you’ll enjoy added privacy and open views. Call us today for your private showing.
Interior
Appliances
- Dishwasher, Dryer, Electric Water Heater, Range, Refrigerator, Washer
Bedrooms
- Bedrooms: 3
Bathrooms
- Total bathrooms: 2
- Full baths: 2
Laundry
- Laundry Room
Cooling
- Central Air
Heating
- Central
Features
- Ceiling Fan(s), Eat-in Kitchen, Open Floorplan, Split Bedrooms, Vaulted Ceiling(s), Walk-In Closet(s)
Levels
- One
Size
- 1,568 sq ft
Exterior
Private Pool
- No
Patio & Porch
- Rear Porch, Screened
Roof
- Shingle
Garage
- None
Carport
- Carport Spaces:
- Driveway
Year Built
- 1993
Lot Size
- 0.5 acres
- 21,780 sq ft
Waterfront
- No
Water Source
- Private
Sewer
- Septic Tank
Community Info
Taxes
- Annual amount: $825.53
- Tax year: 2025
Senior Community
- No
Location
- City: Lady Lake
- County/Parrish: Sumter
- Township: 18S
Listing courtesy of: Lili Whittington, EXP REALTY LLC, 888-883-8509
MLS ID: G5107934
Listings courtesy of Stellar MLS as distributed by MLS GRID. Based on information submitted to the MLS GRID as of Feb 12, 2026, 06:44pm PST. All data is obtained from various sources and may not have been verified by broker or MLS GRID. Supplied Open House Information is subject to change without notice. All information should be independently reviewed and verified for accuracy. Properties may or may not be listed by the office/agent presenting the information. Properties displayed may be listed or sold by various participants in the MLS.
The Villages® Real Estate Agent
Want to learn more about The Villages®?
Here is the community real estate expert who can answer your questions, take you on a tour, and help you find the perfect home.
Get started today with your personalized 55+ search experience!
Want to learn more about The Villages®?
Get in touch with a community real estate expert who can answer your questions, take you on a tour, and help you find the perfect home.
Get started today with your personalized 55+ search experience!
Homes Sold:
55+ Homes Sold:
Sold for this Community:
Avg. Response Time:
Community Key Facts
Age Restrictions
- 55+
Amenities & Lifestyle
- See The Villages® amenities
- See The Villages® clubs, activities, and classes
Homes in Community
- Total Homes: 70,000
- Home Types: Single-Family, Attached, Condos, Manufactured
Gated
- No
Construction
- Construction Dates: 1978 - Present
- Builder: The Villages, Multiple Builders
Similar homes in this community
Popular cities in Florida
The following amenities are available to The Villages® - The Villages, FL residents:
- Clubhouse/Amenity Center
- Golf Course
- Restaurant
- Fitness Center
- Outdoor Pool
- Aerobics & Dance Studio
- Card Room
- Ceramics Studio
- Arts & Crafts Studio
- Sewing Studio
- Woodworking Shop
- Performance/Movie Theater
- Library
- Bowling
- Walking & Biking Trails
- Tennis Courts
- Pickleball Courts
- Bocce Ball Courts
- Shuffleboard Courts
- Horseshoe Pits
- Softball/Baseball Field
- Basketball Court
- Volleyball Court
- Polo Fields
- Lakes - Fishing Lakes
- Outdoor Amphitheater
- R.V./Boat Parking
- Gardening Plots
- Playground for Grandkids
- Continuing Education Center
- On-site Retail
- Hospital
- Worship Centers
- Equestrian Facilities
There are plenty of activities available in The Villages®. Here is a sample of some of the clubs, activities and classes offered here.
- Acoustic Guitar
- Air gun
- Al Kora Ladies Shrine
- Alcoholic Anonymous
- Aquatic Dancers
- Ballet
- Ballroom Dance
- Basketball
- Baton Twirlers
- Beading
- Bicycle
- Big Band
- Bingo
- Bluegrass music
- Bunco
- Ceramics
- Chess
- China Painting
- Christian Bible Study
- Christian Women
- Classical Music Lovers
- Computer Club
- Concert Band
- Country Music Club
- Country Two-Step
- Creative Writers
- Cribbage
- Croquet
- Democrats
- Dirty Uno
- Dixieland Band
- Euchre
- Gaelic Dance
- Gamblers Anonymous
- Genealogical Society
- Gin Rummy
- Guitar
- Happy Stitchers
- Harmonica
- Hearts
- In-line skating
- Irish Music
- Italian Study
- Jazz 'n' Tap
- Journalism
- Knitting Guild
- Mah Jongg
- Model Yacht Racing
- Motorcycle Club
- Needlework
- Overeaters Anonymous
- Overseas living
- Peripheral Neuropathy support
- Philosophy
- Photography
- Pinochle
- Pottery
- Quilters
- RC Flyers
- Recovery Inc.
- Republicans
- Scooter
- Scrabble
- Scrappers
- Senior soccer
- Shuffleboard
- Singles
- Stamping
- Street hockey
- String Orchestra
- Support Groups
- Swing Dance
- Table tennis
- Tai-Chi
- Tappers
- Trivial Pursuit
- VAA
- Village Theater Company
- Volleyball
- Whist




