- 3 beds
- 2 baths
- 1,948 sq ft
821 San Salvador Dr, The Villages, FL, 32159
Community: The Villages®
-
Home type
Single family
-
Year built
1996
-
Lot size
8,125 sq ft
-
Price per sq ft
$295
-
Taxes
$3306 / Yr
-
HOA fees
$204 /
-
Last updated
1 day ago
-
Views
2
Questions? Call us: (352) 704-0687
Overview
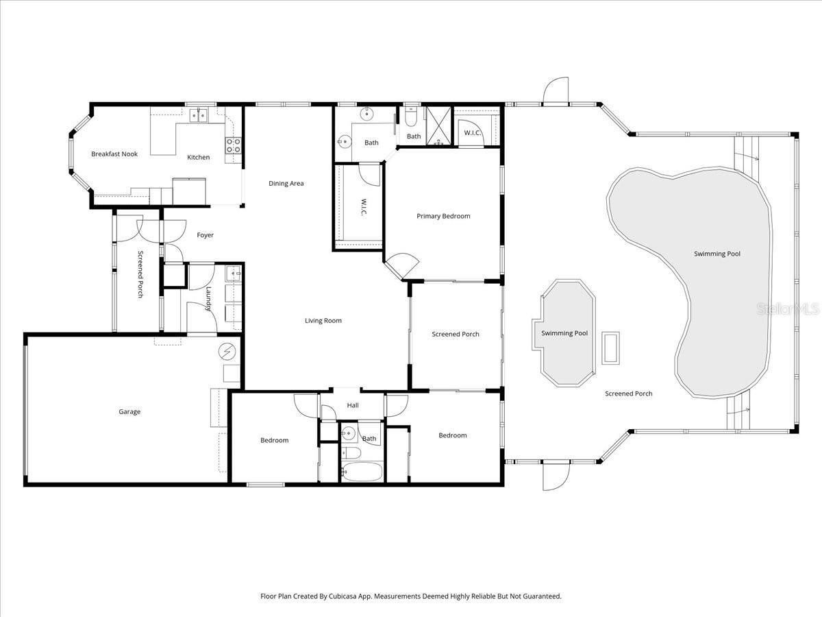
BOND PAID Vera Cruz POOL & SPA Home in the Village of Palo Alto – Minutes to Tierra Del Sol! This beautifully maintained BLOCK & STUCCO home offers nearly 1,950 sq ft under heat and air, and over 3,600 total sq ft of living space... ideally located just minutes from Spanish Springs Town Square, with convenient access to golf, recreation centers, shopping, and dining. Inside, you'll immediately notice the large diagonal CERAMIC TILE FLOORING throughout the living areas and bedrooms, VAULTED CEILINGS, and abundant natural light enhanced by a SOLAR TUBE in the living room. The spacious living and dining areas flow comfortably together, creating an inviting space for both everyday living and entertaining. The private kitchen features GRANITE COUNTERTOPS, a BAY WINDOW with eat-in dining space, extra built-in cabinetry, PULL-OUT DRAWERS IN THE PANTRY AND CABINETS, and bar seating for three, providing both functionality and charm. The primary suite offers a peaceful retreat with TWO WALK-IN CLOSETS and an ensuite bathroom with DUAL SINKS, A VANITY, and a walk-in shower. Guest bedrooms are privately tucked away in their own hallway, with a conveniently located guest bath with tub/shower combination. The third bedroom can easily serve as a den or office while still offering a built-in closet. A standout feature of this home is the beautiful Florida room overlooking the pool, with glass sliders connecting to the primary bedroom, living room, and third bedroom/den, creating seamless indoor-outdoor living. Step outside to your resort-style backyard oasis featuring a large ELECTRIC & SOLAR HEATED saltwater pool, propane heated inground spa, and expansive birdcage enclosure with plenty of space for lounging and entertaining. The home also features a northwest front exposure, allowing the backyard pool area to face southeast, which means beautiful morning sunshine on the pool and more comfortable afternoons without the intense late-day heat—perfect for enjoying your outdoor living space throughout the day. Additional highlights include: • Roof 2017 • HVAC 2022 • 50-gallon hot water heater 2017 • WATER FILTRATION SYSTEM • Inside laundry room with utility sink, cabinets, and folding area • Two-car garage • Front screened porch • Mature landscaping and beautiful flowers surrounding the home. This exceptional property offers the perfect blend of privacy, space, and Florida outdoor living in one of The Villages' most established and convenient locations. This prime Village of Palo Alto places you just minutes from Tierra Del Sol Country Club, Cordoba Recreation Center, Rio Grande Recreation Center, and several nearby executive golf courses including Chula Vista, Mira Mesa, and El Diablo. Spanish Springs Town Square is also just a short golf cart ride away, offering nightly entertainment, dining, and shopping—making it easy to enjoy the vibrant lifestyle The Villages is known for. Be sure to check out the VIRTUAL TOUR and book your showing today!
Interior
Appliances
- Convection Oven, Dishwasher, Disposal, Microwave, Range Hood, Refrigerator, Water Filter, Water Softener
Bedrooms
- Bedrooms: 3
Bathrooms
- Total bathrooms: 2
- Full baths: 2
Laundry
- Inside
Cooling
- Central Air
Heating
- Electric
Features
- Ceiling Fan(s), Eat-in Kitchen, High Ceilings, Walk-In Closet(s), Window Treatments
Levels
- One
Size
- 1,948 sq ft
Exterior
Private Pool
- Yes
Patio & Porch
- Enclosed, Screened
Roof
- Shingle
Garage
- Attached
- Garage Spaces: 2
Carport
- None
Year Built
- 1996
Lot Size
- 0.19 acres
- 8,125 sq ft
Waterfront
- No
Water Source
- Public
Sewer
- Public Sewer
Community Info
HOA Information
- Association Fee: $204
- Association Fee Includes: Pickleball, Pool, Racquetball, Recreation Facilities, Shuffleboard Court, Tennis Court(s), Trail(s), Pool(s), Recreation Facilities
Taxes
- Annual amount: $3,306.25
- Tax year: 2025
Senior Community
- Yes
Features
- Community Mailbox, Dog Park, Gated, Guarded Entrance, Golf Carts Permitted, Golf, Pool, Racquetball, Restaurant, Tennis Court(s)
Location
- City: The Villages
- County/Parrish: Sumter
- Township: 18S
Listing courtesy of: Joanie Snaith, REALTY EXECUTIVES IN THE VILLAGES, 352-753-7500
MLS ID: G5108520
Listings courtesy of Stellar MLS as distributed by MLS GRID. Based on information submitted to the MLS GRID as of Mar 09, 2026, 04:16am PDT. All data is obtained from various sources and may not have been verified by broker or MLS GRID. Supplied Open House Information is subject to change without notice. All information should be independently reviewed and verified for accuracy. Properties may or may not be listed by the office/agent presenting the information. Properties displayed may be listed or sold by various participants in the MLS.
The Villages® Real Estate Agent
Want to learn more about The Villages®?
Here is the community real estate expert who can answer your questions, take you on a tour, and help you find the perfect home.
Get started today with your personalized 55+ search experience!
Want to learn more about The Villages®?
Get in touch with a community real estate expert who can answer your questions, take you on a tour, and help you find the perfect home.
Get started today with your personalized 55+ search experience!
Homes Sold:
55+ Homes Sold:
Sold for this Community:
Avg. Response Time:
Community Key Facts
Age Restrictions
- 55+
Amenities & Lifestyle
- See The Villages® amenities
- See The Villages® clubs, activities, and classes
Homes in Community
- Total Homes: 70,000
- Home Types: Single-Family, Attached, Condos, Manufactured
Gated
- No
Construction
- Construction Dates: 1978 - Present
- Builder: The Villages, Multiple Builders
Similar homes in this community
Popular cities in Florida
The following amenities are available to The Villages® - The Villages, FL residents:
- Clubhouse/Amenity Center
- Golf Course
- Restaurant
- Fitness Center
- Outdoor Pool
- Aerobics & Dance Studio
- Card Room
- Ceramics Studio
- Arts & Crafts Studio
- Sewing Studio
- Woodworking Shop
- Performance/Movie Theater
- Library
- Bowling
- Walking & Biking Trails
- Tennis Courts
- Pickleball Courts
- Bocce Ball Courts
- Shuffleboard Courts
- Horseshoe Pits
- Softball/Baseball Field
- Basketball Court
- Volleyball Court
- Polo Fields
- Lakes - Fishing Lakes
- Outdoor Amphitheater
- R.V./Boat Parking
- Gardening Plots
- Playground for Grandkids
- Continuing Education Center
- On-site Retail
- Hospital
- Worship Centers
- Equestrian Facilities
There are plenty of activities available in The Villages®. Here is a sample of some of the clubs, activities and classes offered here.
- Acoustic Guitar
- Air gun
- Al Kora Ladies Shrine
- Alcoholic Anonymous
- Aquatic Dancers
- Ballet
- Ballroom Dance
- Basketball
- Baton Twirlers
- Beading
- Bicycle
- Big Band
- Bingo
- Bluegrass music
- Bunco
- Ceramics
- Chess
- China Painting
- Christian Bible Study
- Christian Women
- Classical Music Lovers
- Computer Club
- Concert Band
- Country Music Club
- Country Two-Step
- Creative Writers
- Cribbage
- Croquet
- Democrats
- Dirty Uno
- Dixieland Band
- Euchre
- Gaelic Dance
- Gamblers Anonymous
- Genealogical Society
- Gin Rummy
- Guitar
- Happy Stitchers
- Harmonica
- Hearts
- In-line skating
- Irish Music
- Italian Study
- Jazz 'n' Tap
- Journalism
- Knitting Guild
- Mah Jongg
- Model Yacht Racing
- Motorcycle Club
- Needlework
- Overeaters Anonymous
- Overseas living
- Peripheral Neuropathy support
- Philosophy
- Photography
- Pinochle
- Pottery
- Quilters
- RC Flyers
- Recovery Inc.
- Republicans
- Scooter
- Scrabble
- Scrappers
- Senior soccer
- Shuffleboard
- Singles
- Stamping
- Street hockey
- String Orchestra
- Support Groups
- Swing Dance
- Table tennis
- Tai-Chi
- Tappers
- Trivial Pursuit
- VAA
- Village Theater Company
- Volleyball
- Whist




