• Home type

    Manufactured home

  • Year built

    1988

  • Lot size

    4,982 sq ft

  • Price per sq ft

    $211

  • Taxes

    $3058 / Yr

  • Last updated

    Today

  • Views

    9


Questions? Call us: (352) 704-0687


Overview

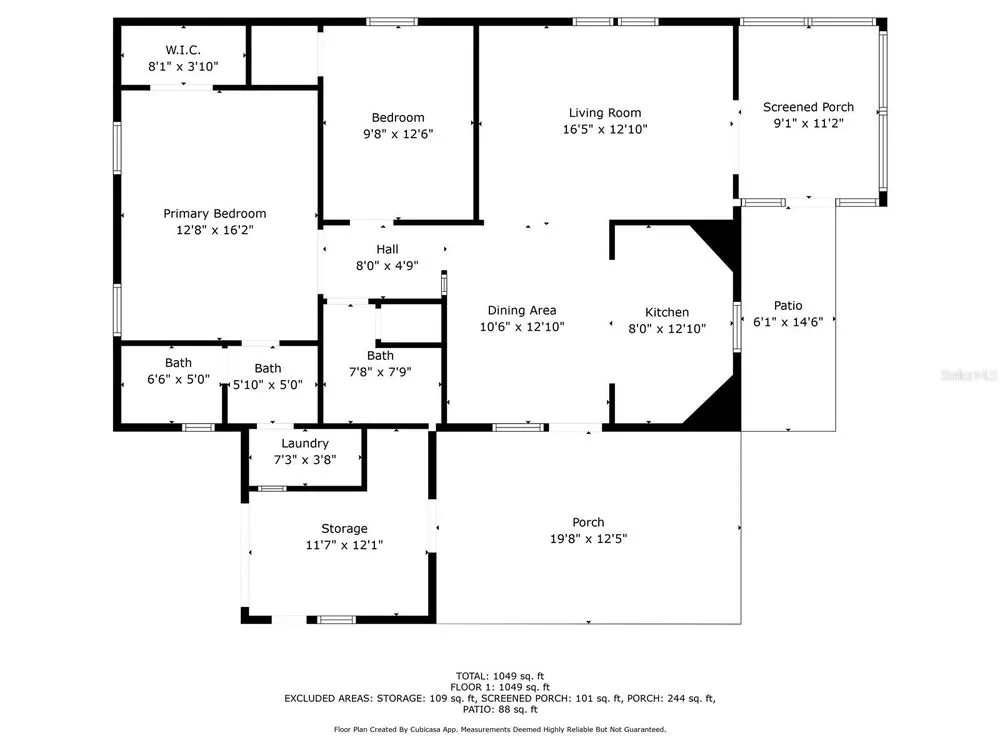
Discover this beautifully refreshed 2BR/2BA home with a GOLF CART GARAGE in the Village of Orange Blossom—just 1.5 miles to Spanish Springs and steps from the Hilltop Adult Pool. Nearly every feature has been updated for comfort and peace of mind: new roof (2022), HVAC (2022), double-pane tilt windows, fresh interior/exterior paint, updated lighting and ceiling fans, blinds, landscaping (2024 & 2025), and refreshed grout throughout (2024). The kitchen received a complete refresh in June 2025 in addition to upgraded plumbing, vented microwave, pull-down faucet, and matching appliances. Bathrooms include COMFORT-HEIGHT TOILETS, new sinks and faucets, and a glass shower door (2023). VAULTED CEILINGS and NO CARPET create a bright, low-maintenance interior. The spacious ENCLOSED LANAI offers new PRIVACY SCREENS and window film (2024), while the newly painted front PATIO with a TRELLIS and lighting extends your outdoor living. Additional highlights include INSIDE LAUNDRY with Whirlpool HE washer, golf cart garage with FRESHLY PAINTED, workbench and added outlets, plus a newly upgraded sprinkler control box (2024). The primary suite includes a walk-in closet, copper sink, and walk-in shower; the guest suite also features vaulted ceilings and a walk-in closet. This home is being offered w/ a separate turn-key (furniture and décor) package —just bring your toothbrush! With NO BOND or bond maintenance and 2024 taxes of $2,749 + fire ($124) + waste ($185) = $3,058, this property is truly move-in ready and perfectly positioned to enjoy The Villages lifestyle.


Interior

Appliances

  • Convection Oven, Dishwasher, Dryer, Freezer, Ice Maker, Microwave, Refrigerator, Washer

Bedrooms

  • Bedrooms: 2

Bathrooms

  • Total bathrooms: 2
  • Full baths: 2

Laundry

  • Inside
  • Laundry Room

Cooling

  • Central Air

Heating

  • Electric

Fireplace

  • None

Features

  • Stone Counters, Thermostat, Window Treatments

Levels

  • One

Size

  • 1,040 sq ft

Exterior

Private Pool

  • No

Roof

  • Shingle

Garage

  • None

Carport

  • Carport Spaces:
  • Golf Cart Garage

Year Built

  • 1988

Lot Size

  • 0.11 acres
  • 4,982 sq ft

Waterfront

  • No

Water Source

  • Public

Sewer

  • Public Sewer

Community Info

Taxes

  • Annual amount: $3,058.11
  • Tax year: 2024

Senior Community

  • Yes

Features

  • Dog Park, Gated, Golf Carts Permitted, Golf, Pool

Location

  • City: Lady Lake
  • County/Parrish: Lake
  • Township: 18S

Listing courtesy of: Joanie Snaith, REALTY EXECUTIVES IN THE VILLAGES, 352-753-7500

Source: Stellar
MLS ID: G5094937

Stellar

Listings courtesy of Stellar MLS as distributed by MLS GRID. Based on information submitted to the MLS GRID as of Oct 14, 2025, 01:20am PDT. All data is obtained from various sources and may not have been verified by broker or MLS GRID. Supplied Open House Information is subject to change without notice. All information should be independently reviewed and verified for accuracy. Properties may or may not be listed by the office/agent presenting the information. Properties displayed may be listed or sold by various participants in the MLS.


The Villages® Real Estate Agent

Want to learn more about The Villages®?

Here is the community real estate expert who can answer your questions, take you on a tour, and help you find the perfect home.

Get started today with your personalized 55+ search experience!

Want to learn more about The Villages®?

Get in touch with a community real estate expert who can answer your questions, take you on a tour, and help you find the perfect home.

Get started today with your personalized 55+ search experience!

Homes Sold:

55+ Homes Sold:

Sold for this Community:

Avg. Response Time:

Global - Lead Form - Buyer Only
*55places does not provide or maintain community HOA information.
By requesting more information, you agree that 55places placeholder may call, text, or email you about your inquiry, which may be made with automated means (including recorded voice messages, SMS, or text messages). You understand that your consent is not a prerequisite for buying, selling or renting a property. You may revoke your consent at any time by contacting [email protected]. Message/data rates may apply. You also agree to 55places.com's Privacy Policy and Terms of Use.

Community Key Facts

The Villages®

Age Restrictions

  • 55+

Amenities & Lifestyle

  • See The Villages® amenities
  • See The Villages® clubs, activities, and classes

Homes in Community

  • Total Homes: 70,000
  • Home Types: Single-Family, Attached, Condos, Manufactured

Gated

  • No

Construction

  • Construction Dates: 1978 - Present
  • Builder: The Villages, Multiple Builders

Similar homes in this community The Villages®

$364,900
3 Beds | 2 Baths | 1409 Sq. Ft.
MLS #O6352058
Best Homes, Llc., Evelyn Otero
$399,900
3 Beds | 2 Baths | 1674 Sq. Ft.
MLS #G5103185
Re/max Premier Realty Lady Lk, Matthew Roberts LLC
$335,000
3 Beds | 2 Baths | 1404 Sq. Ft.
MLS #OM711369
Keller Williams Cornerstone Re, Dora Campbell

The Villages® Real Estate Agent

Want to learn more about The Villages®?

Here is the community real estate expert who can answer your questions, take you on a tour, and help you find the perfect home.

Get started today with your personalized 55+ search experience!

Want to learn more about The Villages®?

Get in touch with a community real estate expert who can answer your questions, take you on a tour, and help you find the perfect home.

Get started today with your personalized 55+ search experience!

Homes Sold:

55+ Homes Sold:

Sold for this Community:

Avg. Response Time:

Global - Lead Form - Buyer Only
*55places does not provide or maintain community HOA information.
By requesting more information, you agree that 55places placeholder may call, text, or email you about your inquiry, which may be made with automated means (including recorded voice messages, SMS, or text messages). You understand that your consent is not a prerequisite for buying, selling or renting a property. You may revoke your consent at any time by contacting [email protected]. Message/data rates may apply. You also agree to 55places.com's Privacy Policy and Terms of Use.

Agent Image
 

Community Expert

Call Us Call Us
Scroll to Top