• Home type

    Single family

  • Year built

    2025

  • Lot size

    10,890 sq ft

  • Price per sq ft

    $162

  • HOA fees

    $289 / Mo

  • Last updated

    2 days ago

  • Views

    11

  • Saves

    1


Questions? Call us: (803) 797-0441


Overview

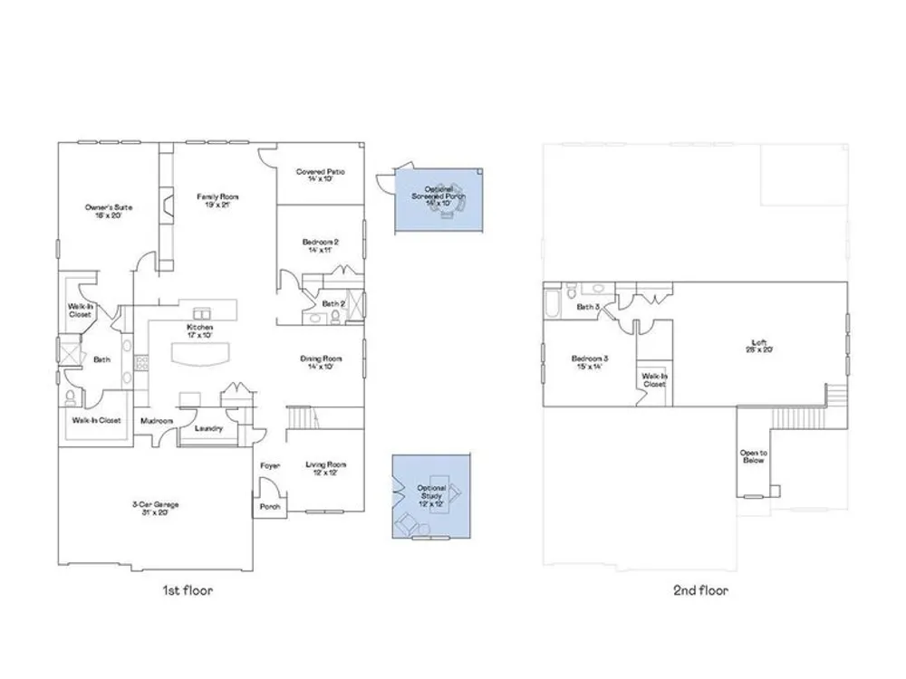
This expansive Holden floorplan is a single-family home made for lavish comfort and entertainment with a gracious layout spread throughout two levels. On the first floor is a formal living room and an open-plan layout shared between the main living and dining spaces, along with a covered patio for outdoor activities. On the same level is a secondary bedroom and a lavish owner’s suite with an attached bathroom. The top floor presents a sprawling loft and a third bedroom. Plus, our signature Everything's Included program means you will get a gourmet kitchen with double ovens and cooktop, quartz or granite kitchen countertops, subway tile backsplash, ceramic tile, luxury vinyl plank flooring throughout the home, and a gas fireplace (per plan). Roselyn is a master-planned community offering exclusive ranch homes designed for active adults!


Interior

Appliances

  • Disposal, Double Oven, Electric Water Heater, ENERGY STAR Qualified Dishwasher, Exhaust Fan, Gas Cooktop, Gas Oven, Microwave, Tankless Water Heater, Wall Oven

Bedrooms

  • Bedrooms: 3

Bathrooms

  • Total bathrooms: 3
  • Full baths: 3

Laundry

  • Electric Dryer Hookup
  • Laundry Room
  • Upper Level

Cooling

  • Central Air, Electric, Zoned

Heating

  • Forced Air, Natural Gas, Zoned

Fireplace

  • None

Features

  • Attic Stairs Pulldown, Kitchen Island, Pantry, Walk-In Closet(s)

Levels

  • Two

Size

  • 3,519 sq ft

Exterior

Private Pool

  • No

Roof

  • Shingle

Garage

  • Attached
  • Garage Spaces: 3
  • Driveway
  • Attached Garage
  • Garage Door Opener
  • Garage Faces Front

Carport

  • None

Year Built

  • 2025

Lot Size

  • 0.25 acres
  • 10,890 sq ft

Waterfront

  • No

Water Source

  • County Water

Sewer

  • County Sewer

Community Info

HOA Fee

  • $289
  • Frequency: Monthly

Senior Community

  • Yes

Features

  • Fifty Five and Older, Clubhouse, Fitness Center, Game Court, Outdoor Pool, Recreation Area, Sidewalks, Sport Court, Street Lights, Walking Trails

Location


Listing courtesy of: Lee Anne Barbrey, Lennar Sales Corp Listing Agent Contact Information: 704-759-6048

Source: Canopy
MLS ID: 4294009

Canopy

Listings courtesy of Canopy MLS as distributed by MLS GRID. Based on information submitted to the MLS GRID as of Oct 12, 2025, 03:43pm PDT. All data is obtained from various sources and may not have been verified by broker or MLS GRID. Supplied Open House Information is subject to change without notice. All information should be independently reviewed and verified for accuracy. Properties may or may not be listed by the office/agent presenting the information. Properties displayed may be listed or sold by various participants in the MLS. Some IDX listings have been excluded from this website.The Digital Millennium Copyright Act of 1998, 17 U.S.C. § 512 (the "DMCA") provides recourse for copyright owners who believe that material appearing on the Internet infringes their rights under U.S. copyright law. If you believe in good faith that any content or material made available in connection with our website or services infringes your copyright, you (or your agent) may send us a notice requesting that the content or material be removed, or access to it blocked. Notices must be sent in writing by email to [email protected] DMCA requires that your notice of alleged copyright infringement include the following information:(1) description of the copyrighted work that is the subject of claimed infringement;(2) description of the alleged infringing content and information sufficient to permit us to locate the content;(3) contact information for you, including your address, telephone number and email address;(4) a statement by you that you have a good faith belief that the content in the manner complained of is not authorized by the copyright owner, or its agent, or by the operation of any law;(5) a statement by you, signed under penalty of perjury, that the information in the notification is accurate and that you have the authority to enforce the copyrights that are claimed to be infringed; and(6) a physical or electronic signature of the copyright owner or a person authorized to act on the copyright owner’s behalf. Failure to include all of the above information may result in the delay of the processing of your complaint.


Roselyn Real Estate Agent

Want to learn more about Roselyn?

Here is the community real estate expert who can answer your questions, take you on a tour, and help you find the perfect home.

Get started today with your personalized 55+ search experience!

Want to learn more about Roselyn?

Get in touch with a community real estate expert who can answer your questions, take you on a tour, and help you find the perfect home.

Get started today with your personalized 55+ search experience!

Homes Sold:

55+ Homes Sold:

Sold for this Community:

Avg. Response Time:

Global - Lead Form - Buyer Only
*55places does not provide or maintain community HOA information.
By requesting more information, you agree that 55places placeholder may call, text, or email you about your inquiry, which may be made with automated means (including recorded voice messages, SMS, or text messages). You understand that your consent is not a prerequisite for buying, selling or renting a property. You may revoke your consent at any time by contacting [email protected]. Message/data rates may apply. You also agree to 55places.com's Privacy Policy and Terms of Use.

Community Key Facts

Roselyn

Age Restrictions

  • 55+

Amenities & Lifestyle

  • See Roselyn amenities
  • See Roselyn clubs, activities, and classes

Homes in Community

  • Total Homes: 1,860
  • Home Types: Single-Family

Gated

  • No

Construction

  • Construction Dates: 2023 - Present
  • Builder: Lennar

Similar homes in this community Roselyn

$385,999
3 Beds | 2 Baths | 1520 Sq. Ft.
MLS #4306396
Lennar Sales Corp, Lee Anne Barbrey
$509,999
3 Beds | 3 Baths | 2475 Sq. Ft.
MLS #4306398
Lennar Sales Corp, Lee Anne Barbrey
$400,319
2 Beds | 2 Baths | 1520 Sq. Ft.
MLS #4298536
Lennar Sales Corp, Lee Anne Barbrey

Roselyn Real Estate Agent

Want to learn more about Roselyn?

Here is the community real estate expert who can answer your questions, take you on a tour, and help you find the perfect home.

Get started today with your personalized 55+ search experience!

Want to learn more about Roselyn?

Get in touch with a community real estate expert who can answer your questions, take you on a tour, and help you find the perfect home.

Get started today with your personalized 55+ search experience!

Homes Sold:

55+ Homes Sold:

Sold for this Community:

Avg. Response Time:

Global - Lead Form - Buyer Only
*55places does not provide or maintain community HOA information.
By requesting more information, you agree that 55places placeholder may call, text, or email you about your inquiry, which may be made with automated means (including recorded voice messages, SMS, or text messages). You understand that your consent is not a prerequisite for buying, selling or renting a property. You may revoke your consent at any time by contacting [email protected]. Message/data rates may apply. You also agree to 55places.com's Privacy Policy and Terms of Use.

Agent Image
 

Community Expert

Call Us Call Us
Scroll to Top