-
Home type
Single family
-
Year built
2004
-
Lot size
6,600 sq ft
-
Price per sq ft
$222
-
Taxes
$8083 / Yr
-
HOA fees
$157 / Annually
-
Last updated
3 days ago
-
Saves
1
Questions? Call us: (727) 591-6448
Overview
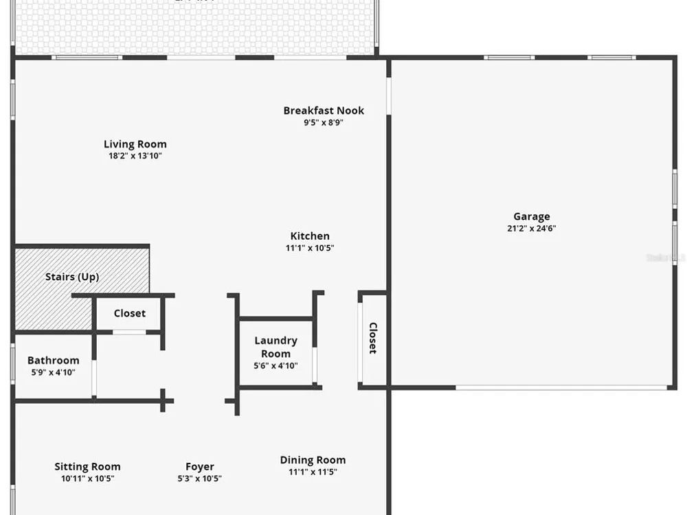
Welcome to your new oasis in the prestigious gated neighborhood of MiraBay where stunning water views await you. This captivating home offers a tranquil setting and ample opportunity to customize your dream backyard, complete with space perfect for a pool. Move IN READY! - NEW AC! Inside, discover a spacious layout featuring 4 bedrooms and 2.5 baths, complemented by a private office, versatile bonus room, a separate dining and living room. The home boasts a beautiful front porch, ideal for relaxing evenings and enjoying the picturesque surroundings and water views. The updated kitchen is a chef's dream, complete with granite countertops, a custom backsplash, and stainless steel appliances. You will feel like you are walking through a model home! Additional storage space ensures everything has its place. The oversized garage provides ample space for storage and parking. The home's location is a 5 minute walk to the BEAUTIFUL 10,000 sq ft clubhouse that offers an Olympic size heated swimming pool, 136 ft water slide, state of the art gym and cafe as well as lighted tennis, basketball and pickleball courts. The neighborhood includes 3 parks and all residents have access to kayaks, paddleboards and sunfish! Situated in a coveted location, this residence combines luxury living with the potential to create your own personal sanctuary. Don't miss out on the chance to own this exceptional property. Contact us today to schedule your exclusive tour.
Interior
Appliances
- Dishwasher, Disposal, Dryer, Exhaust Fan, Microwave, Range, Refrigerator, Washer
Bedrooms
- Bedrooms: 4
Bathrooms
- Total bathrooms: 3
- Half baths: 1
- Full baths: 2
Laundry
- Inside
- Laundry Room
Cooling
- Central Air
Heating
- Heat Pump
Features
- Ceiling Fan(s), Crown Molding, Eat-in Kitchen, Solid Surface Counters, Solid-Wood Cabinets, Stone Counters, Thermostat, Walk-In Closet(s), Window Treatments
Levels
- Two
Size
- 2,844 sq ft
Exterior
Private Pool
- No
Patio & Porch
- Covered, Front Porch, Rear Porch, Screened
Roof
- Shingle
Garage
- Attached
- Garage Spaces: 2
- Driveway
- Garage Door Opener
- Oversized
Carport
- None
Year Built
- 2004
Lot Size
- 0.15 acres
- 6,600 sq ft
Waterfront
- No
Water Source
- Public
Sewer
- Public Sewer
Community Info
HOA Information
- Association Fee: $157
- Association Fee Frequency: Annually
- Association Fee Includes: Basketball Court, Cable TV, Clubhouse, Elevators, Fence Restrictions, Fitness Center, Gated, Modified for Accessibility, Lobby Key Required, Park, Pickleball, Playground, Pool, Recreation Facilities, Sauna, Security, Tennis Court(s), Vehicle Restrictions, Common Area Taxes, Pool(s), Insurance, Internet, Maintenance Structure, Maintenance Grounds, Maintenance, Recreation Facilities, Security
Taxes
- Annual amount: $8,083.00
- Tax year: 2025
Senior Community
- No
Features
- Clubhouse, Deed Restrictions, Fitness Center, Gated, Golf Carts Permitted, Modified for Accessibility, Park, Playground, Pool, Restaurant, Sidewalks, Special Community Restrictions, Tennis Court(s), Street Lights
Location
- City: Apollo Beach
- County/Parrish: Hillsborough
- Township: 31
Listing courtesy of: Kim Hodgskin, CENTURY 21 BEGGINS ENTERPRISES, 813-658-2121
MLS ID: TB8487464
Listings courtesy of Stellar MLS as distributed by MLS GRID. Based on information submitted to the MLS GRID as of May 04, 2026, 09:12pm PDT. All data is obtained from various sources and may not have been verified by broker or MLS GRID. Supplied Open House Information is subject to change without notice. All information should be independently reviewed and verified for accuracy. Properties may or may not be listed by the office/agent presenting the information. Properties displayed may be listed or sold by various participants in the MLS.
MiraBay Real Estate Agent
Want to learn more about MiraBay?
Here is the community real estate expert who can answer your questions, take you on a tour, and help you find the perfect home.
Get started today with your personalized 55+ search experience!
Want to learn more about MiraBay?
Get in touch with a community real estate expert who can answer your questions, take you on a tour, and help you find the perfect home.
Get started today with your personalized 55+ search experience!
Homes Sold:
55+ Homes Sold:
Sold for this Community:
Avg. Response Time:
Community Key Facts
Age Restrictions
- None
Amenities & Lifestyle
- See MiraBay amenities
- See MiraBay clubs, activities, and classes
Homes in Community
- Total Homes: 1,700
- Home Types: Single-Family
Gated
- Yes
Construction
- Construction Dates: 2003 - Present
- Builder: Multiple Builders, Park Square Homes, Bistro Builders
Similar homes in this community
Popular cities in Florida
The following amenities are available to MiraBay - Apollo Beach, FL residents:
- Clubhouse/Amenity Center
- Restaurant
- Fitness Center
- Outdoor Pool
- Tennis Courts
- Basketball Court
- Lakes - Scenic Lakes & Ponds
- Lakes - Boat Accessible
- Parks & Natural Space
- Playground for Grandkids
- Outdoor Patio
- Day Spa/Salon/Barber Shop
- Multipurpose Room
- Boat Launch
There are plenty of activities available in MiraBay. Here is a sample of some of the clubs, activities and classes offered here.
- Dragon Boat Club
- Mariners Club
- Neighborhood Watch
- Ballroom Dancing
- Soccer Club
- Bike Club
- Running Club
- Book Club
- Bridge
- Euchre
- Italian American Club




