- 3 beds
- 2 baths
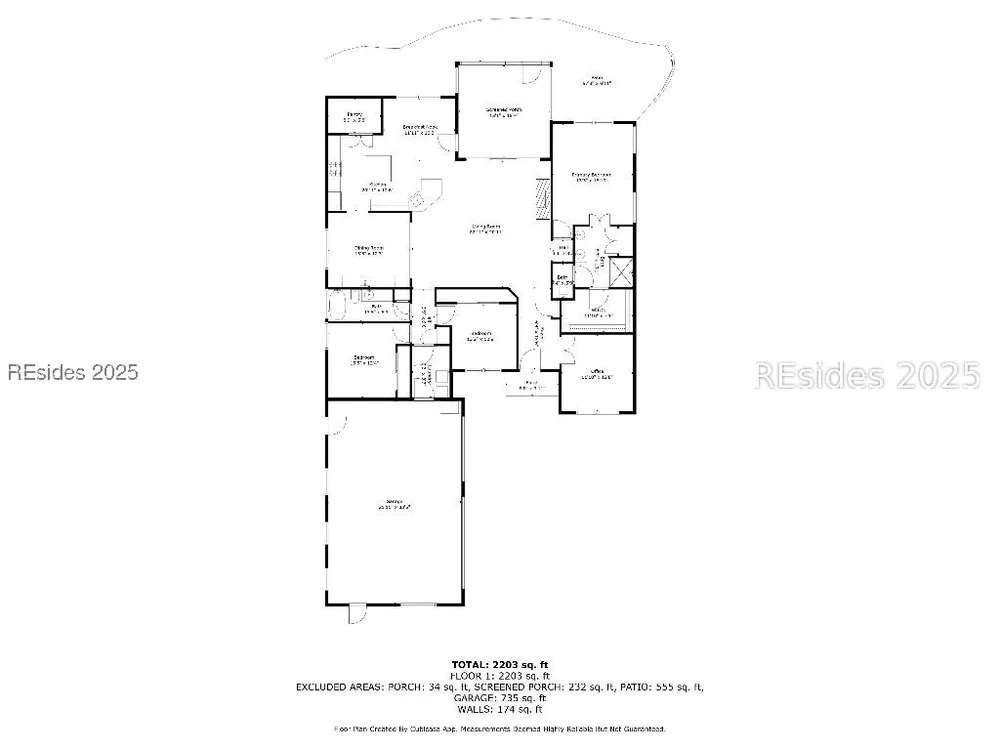
- 2,186 sq ft
417 Full Sweep, Hardeeville, SC, 29927
Community: Latitude Margaritaville Hilton Head
-
Home type
Single family
-
Year built
2016
-
Lot size
20,038 sq ft
-
Price per sq ft
$423
-
Last updated
Today
-
Views
10
-
Saves
3
Questions? Call us: (843) 417-0493
Overview
Discover the best of both worlds in this stunning custom home located in Latitude Lakes, the private, non-age-restricted section of the Latitude Margaritaville community. This beautifully designed residence offers just under 2,200 sq ft of living space with 3 bedrooms, 2 bathrooms, a dedicated office, and an open-concept layout filled with natural light and soaring ceilings. The gourmet chefs kitchen features a gas range, double ovens, an oversized walk-in pantry, an eat-in area, and flows seamlessly into the spacious dining room with a built-in wet bar perfect for entertaining. The cozy indoor gas fireplace adds warmth to the main living area, while the outdoor living space is equally impressive, with a large screened-in lanai, an extended patio with a built-in gas fire pit, and a private, lit walkway to your own dock on the lake, complete with electric and water. Enjoy peaceful lake views right from your backyard. Bring your pontoon boat with you and enjoy sunset cruises every night right from your back door. This home also includes an oversized three-car garage with built-in storage racks and ample closet space throughout. Set on a half-acre lot, it offers the privacy and space thats rare in resort-style communities. Residents of Latitude Lakes enjoy access to their own exclusive amenities, while those 55+ can optionally join the Margaritaville Social Club for full access to all of Latitude Margaritaville's world-class, resort-style offerings. Don't wait to build start enjoying this unique lifestyle now. Living here truly feels like a vacation every day.
Interior
Appliances
- Double Oven, Dryer, Dishwasher, Disposal, Gas Range, Microwave, Refrigerator, Self Cleaning Oven, Washer, Tankless Water Heater
Bedrooms
- Bedrooms: 3
Cooling
- Central Air, Electric
Heating
- Electric, Natural Gas
Fireplace
- 1, Fireplace Screen,Outside
Features
- Attic Access, Wet Bar, Tray Ceiling(s), Ceiling Fan(s), Cathedral Ceiling(s), Fireplace, High Ceilings, Main Level Primary, Multiple Primary Bathrooms, Pull Down Attic Stairs, Smooth Ceilings, Vaulted Ceiling(s), Window Treatments, Entrance Foyer, Eat-in Kitchen, Pantry
Size
- 2,186 sq ft
Exterior
Private Pool
- No
Patio & Porch
- Rear Porch, Patio, Porch, Screened
Roof
- Asphalt
Garage
- Garage Spaces: 3
- Driveway
- Garage
- Three Car
Carport
- None
Year Built
- 2016
Lot Size
- 0.46 acres
- 20,038 sq ft
Waterfront
- No
Water Source
- Public
Community Info
Senior Community
- No
Location
- City: Hardeeville
- County/Parrish: Jasper
Listing courtesy of: May River Group, Maxey Blackstream Christie's International Real Estate (898) Listing Agent Contact Information: 843-384-3006
MLS ID: 503370
We do not attempt to independently verify the currency, completeness, accuracy or authenticity of the data contained herein. All area measurements and calculations are approximate and should be independently verified. Data may be subject to transcription and transmission errors. Accordingly, the data is provided on an ”as is” ”as available” basis only and may not reflect all real estate activity in the market. © [2023] REsides, Inc. All rights reserved. Certain information contained herein is derived from information, which is the licensed property of, and copyrighted by, REsides, Inc.
Latitude Margaritaville Hilton Head Real Estate Agent
Want to learn more about Latitude Margaritaville Hilton Head?
Here is the community real estate expert who can answer your questions, take you on a tour, and help you find the perfect home.
Get started today with your personalized 55+ search experience!
Want to learn more about Latitude Margaritaville Hilton Head?
Get in touch with a community real estate expert who can answer your questions, take you on a tour, and help you find the perfect home.
Get started today with your personalized 55+ search experience!
Homes Sold:
55+ Homes Sold:
Sold for this Community:
Avg. Response Time:
Community Key Facts
Latitude Margaritaville Hilton Head
Age Restrictions
- 55+
Amenities & Lifestyle
- See Latitude Margaritaville Hilton Head amenities
- See Latitude Margaritaville Hilton Head clubs, activities, and classes
Homes in Community
- Total Homes: 3,000
- Home Types: Single-Family, Attached
Gated
- Yes
Construction
- Construction Dates: 2018 - Present
- Builder: Minto Communities
Similar homes in this community
Popular cities in South Carolina
The following amenities are available to Latitude Margaritaville Hilton Head - Hardeeville, SC residents:
- Clubhouse/Amenity Center
- Restaurant
- Fitness Center
- Indoor Pool
- Outdoor Pool
- Card Room
- Arts & Crafts Studio
- Performance/Movie Theater
- Walking & Biking Trails
- Tennis Courts
- Pickleball Courts
- Bocce Ball Courts
- Outdoor Patio
- Pet Park
- On-site Retail
- Multipurpose Room
- Business Center
- Misc.
- Beach
- Gathering Areas
There are plenty of activities available in Latitude Margaritaville Hilton Head. Here is a sample of some of the clubs, activities and classes offered here.
- Canoeing
- Concerts
- Holiday Parties
- Kayaking
- Paddleboarding
- Pickleball
- Swimming
- Tennis



